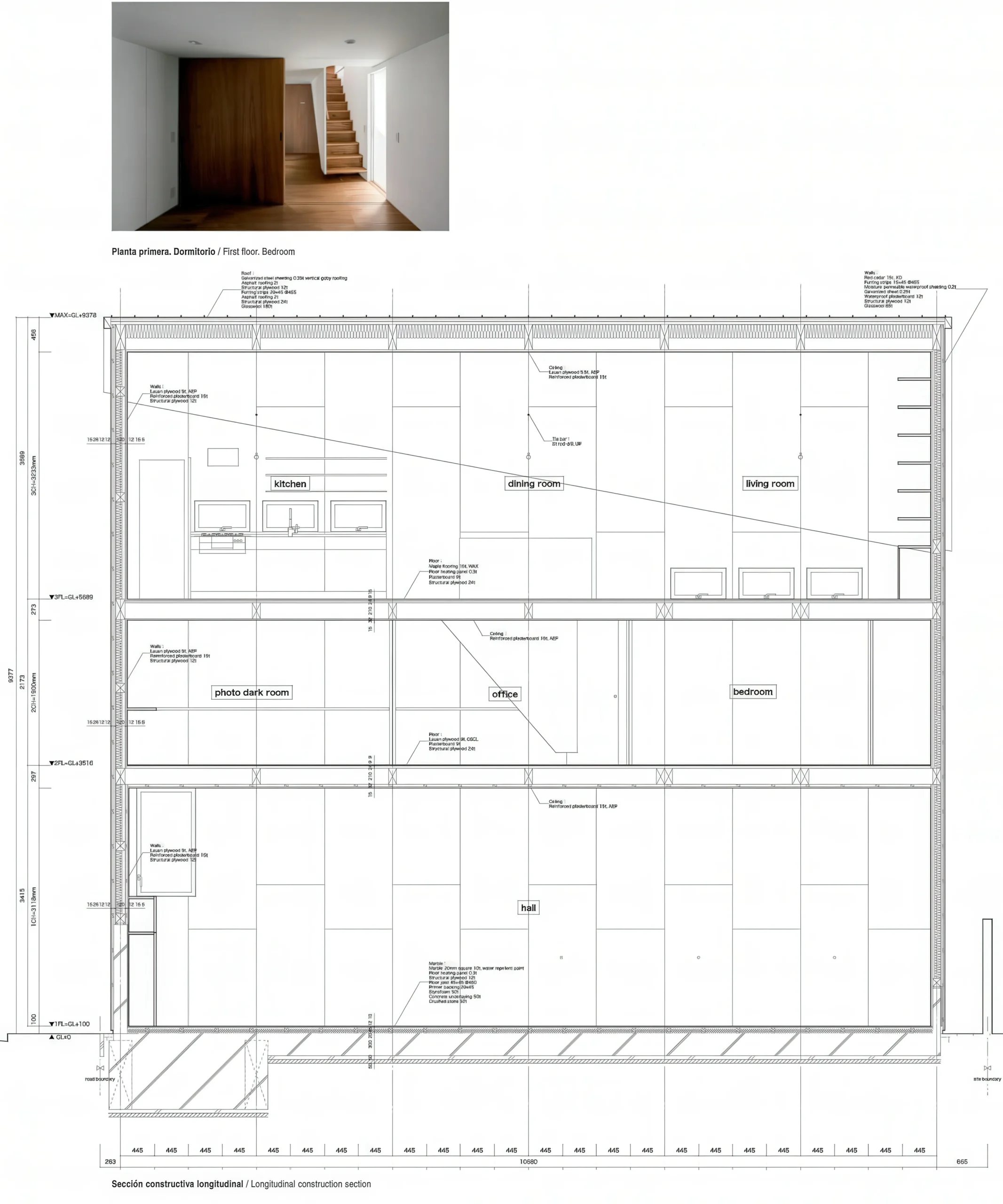
昭谷口之家 / House in Shakujiikouen | 长谷川豪建筑事务所 长谷川豪建筑事务所|Go Hasegawa • 2025-11-16 上午8:50 • 公共建筑设计, 建筑师设计, 建筑设计, 文化建筑设计 昭谷口之家由长谷川豪建筑事务所设计,位于东京住宅区,是一座结合摄影师住宅与工作室功能的建筑。项目通过狭长体量与渐变屋顶处理,巧妙回应狭窄地块限制,创造独特的空间体验与功能布局。 设计: 长谷川豪建筑事务所|Go Hasegawa 类型: 文化建筑设计 功能: 独立住宅 风格: 现代主义 材料: 混凝土 木材 玻璃 尺度: 小型建筑 地点:东京 时间: 2015年 项目概述 昭谷口之家位于东京住宅区,是一座集摄影师住宅与工作室功能于一体的建筑。项目占地面积狭长,建筑面积约200平方米,设计年份为2015年。建筑体量从繁忙的街道向后延伸,形成独特的空间序列。 设计理念 长谷川豪建筑事务所通过昭谷口之家探索了狭窄城市地块的居住可能性。设计采用逆向透视概念,建筑体量从1.1米宽的临街面向后逐渐展开,既满足客户对南向花园和北侧停车场的需求,又创造出独特的空间体验。 空间与功能 昭谷口之家的空间组织体现了功能与形式的完美结合。地面层设有高天花板的摄影工作室,周末兼作家庭影院;一层布置私密空间;二层为开放式生活区,包含厨房、餐厅和起居空间。渐变的天花板高度适应不同活动需求。 材料与技术 建筑采用简洁的材料语言,以混凝土和木材为主要建材。结构设计巧妙处理了狭长地块的挑战,屋顶从三层高度逐渐下降至屋檐高度,既保持建筑整体性又创造丰富的室内空间体验。 项目特色与启发 昭谷口之家展示了在东京高密度城市环境中创造高品质居住空间的创新方法。项目对狭小地块的创造性利用为城市住宅设计提供了重要参考,体现了长谷川豪建筑事务所在住宅设计领域的专业造诣。 设计团队 长谷川豪建筑事务所由建筑师长谷川豪创立,专注于住宅与小型公共建筑设计。事务所以对空间、光线和材料的细腻处理著称,在日本当代建筑界享有盛誉。昭谷口之家体现了其独特的设计理念与实践能力。 项目概述 昭谷口之家位于东京住宅区,是一座集摄影师住宅与工作室功能于一体的建筑。项目占地面积狭长,建筑面积约200平方米,设计年份为2015年。建筑体量从繁忙的街道向后延伸,形成独特的空间序列。 设计理念 长谷川豪建筑事务所通过昭谷口之家探索了狭窄城市地块的居住可能性。设计采用逆向透视概念,建筑体量从1.1米宽的临街面向后逐渐展开,既满足客户对南向花园和北侧停车场的需求,又创造出独特的空间体验。 空间与功能 昭谷口之家的空间组织体现了功能与形式的完美结合。地面层设有高天花板的摄影工作室,周末兼作家庭影院;一层布置私密空间;二层为开放式生活区,包含厨房、餐厅和起居空间。渐变的天花板高度适应不同活动需求。 材料与技术 建筑采用简洁的材料语言,以混凝土和木材为主要建材。结构设计巧妙处理了狭长地块的挑战,屋顶从三层高度逐渐下降至屋檐高度,既保持建筑整体性又创造丰富的室内空间体验。 项目特色与启发 昭谷口之家展示了在东京高密度城市环境中创造高品质居住空间的创新方法。项目对狭小地块的创造性利用为城市住宅设计提供了重要参考,体现了长谷川豪建筑事务所在住宅设计领域的专业造诣。 设计团队 长谷川豪建筑事务所由建筑师长谷川豪创立,专注于住宅与小型公共建筑设计。事务所以对空间、光线和材料的细腻处理著称,在日本当代建筑界享有盛誉。昭谷口之家体现了其独特的设计理念与实践能力。 本文来自 © 长谷川豪建筑事务所|Go Hasegawa, 发布于 © 建筑学院官方网站。 未经授权,禁止转载或摘编。 编辑版本版权归 © 建筑学院官方网站 所有, 设计、图纸及照片版权归设计方 © 长谷川豪建筑事务所|Go Hasegawa ↗ 所有。 查看作者在建筑学院发布的更多作品: 长谷川豪建筑事务所|Go Hasegawa @ 建筑学院官方网站 House in Shakujiikouen东京住宅住宅设计长谷川豪建筑事务所 长谷川豪建筑事务所|Go Hasegawa事务所 & 设计师 下载原图 收藏 0 关于作者 长谷川豪建筑事务所|Go Hasegawa事务所 & 设计师 关注私信 16 文章 0 评论 0 粉丝 长谷川豪建筑事务所(Go Hasegawa)由日本建筑师长谷川豪于2005年创立,以其对空间尺度的独特探索和建筑与自然、城市环境的巧妙融合而闻名。其代表作"樱台之家"以一张巨大桌子重新定义住宅核心,"林中飞屋"则通过架空结构实现与树冠平齐的居住体验。事务所作品强调打破建筑内外界限,营造既亲密又开放的动态空间。 Vault House / Vault House | MARKLEE 建筑事务所 上一篇 2025-11-15 下午12:50 花园别墅 Garden House | 谭姆与维德高德建筑事务所|Tham & Videgård 下一篇 2025-11-16 下午12:50 猜你喜欢 阿斯彭住宅与塔楼 / House and Pavilions in Aspen | Pezo Von Ellrichshausen 2026-04-02 住宅建筑设计 Ageo的排房 / Row House in Ageo | 长谷川豪建筑事务所|Go Hasegawa 2025-11-12 公共建筑设计 CASA EN ESTRELA / HOUSE IN ESTRELA | 艾雷斯·马特乌斯建筑事务所|Aires Mateus 2025-11-11 公共建筑设计 京都的房子 / House in Kyodo | 长谷川豪建筑事务所 2025-11-01 公共建筑设计 Okachimachi公寓 / Apartments in Okachimachi | 长谷川豪建筑事务所 2025-11-24 公共建筑设计 塔卢姆六座房屋 / Six Houses in Tulum | Taller Héctor Barroso 2026-02-19 住宅建筑设计 发表回复 请登录后评论...登录后才能评论 提交