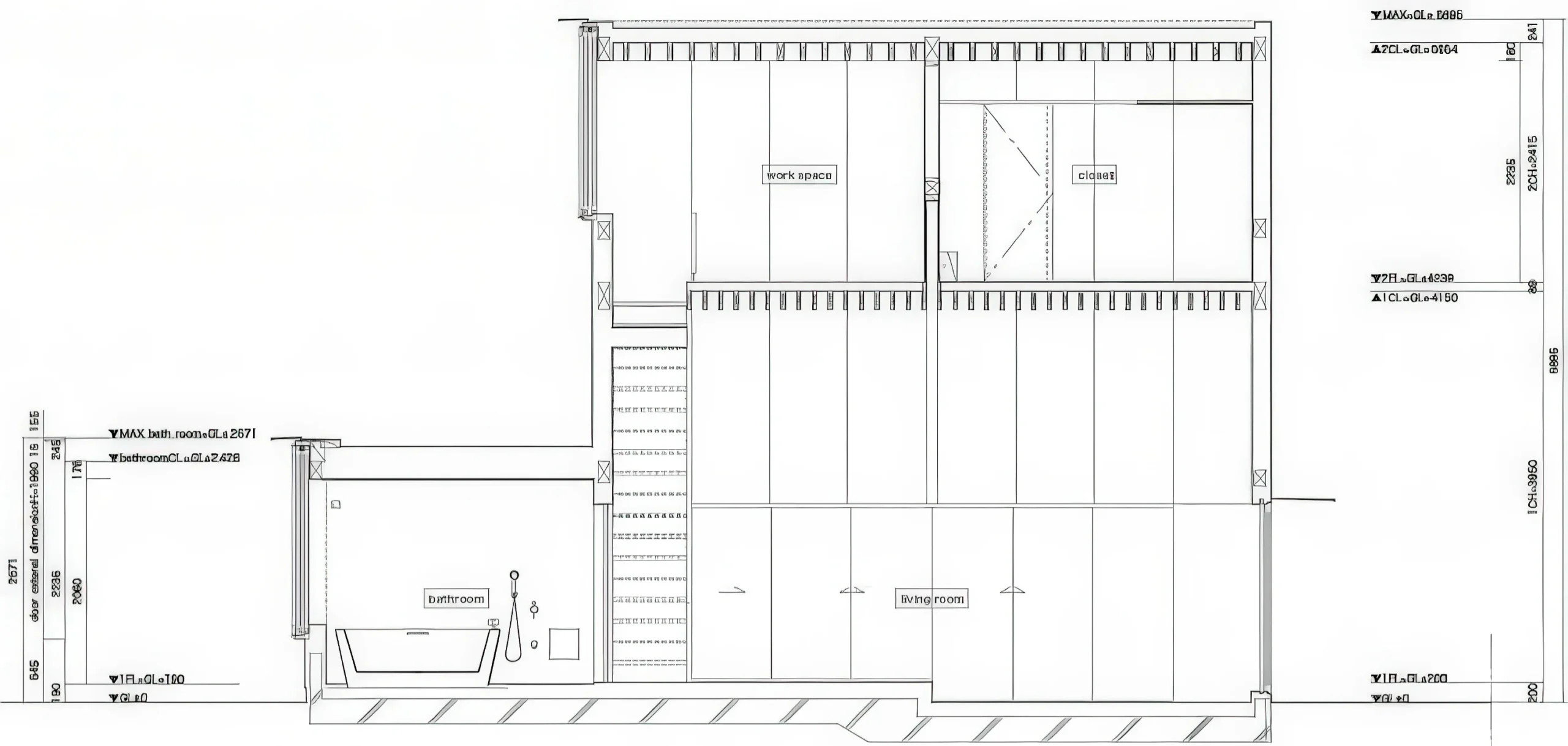
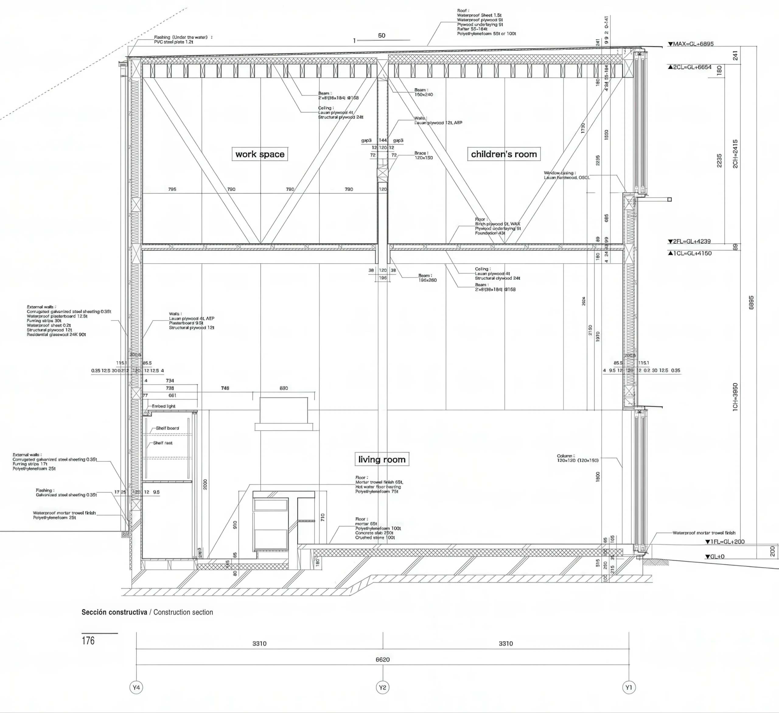
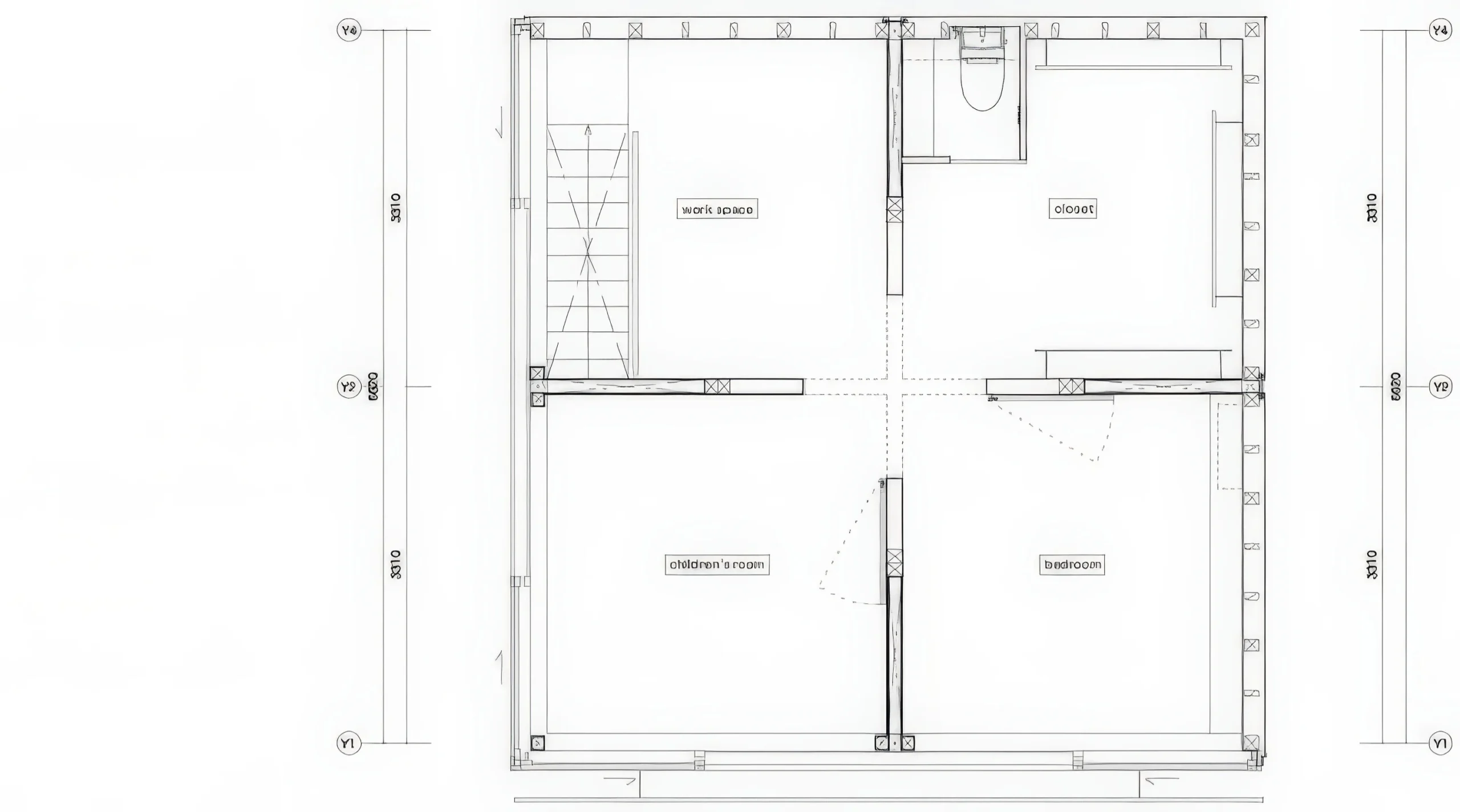
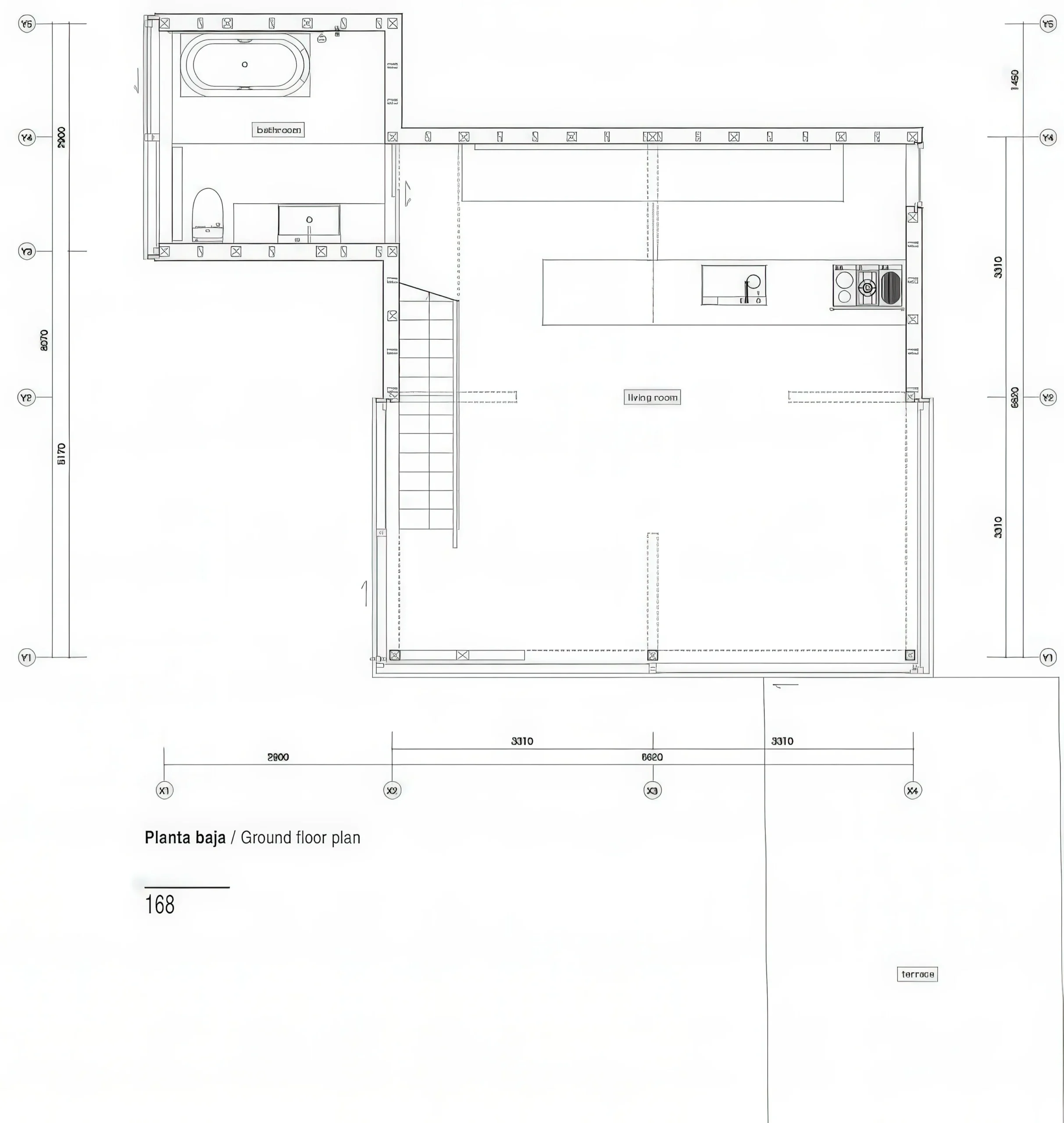
日本横滨的房子 / House in Yokohama | 长谷川豪建筑事务所 长谷川豪建筑事务所|Go Hasegawa • 2025-11-04 下午12:50 • 公共建筑设计, 建筑师设计, 建筑设计, 文化建筑设计 日本横滨的房子由长谷川豪建筑事务所设计,是一座位于日本横滨住宅区的两层木结构独立住宅。项目巧妙利用倾斜地形,通过混凝土块体与X形木桁架结构,创造与自然环境融合的居住空间,展现了当代住宅设计的创新思维。 设计: 长谷川豪建筑事务所|Go Hasegawa 类型: 文化建筑设计 功能: 独立住宅 风格: 当代建筑 材料: 混凝土 木材 尺度: 小型建筑 地点:横滨 时间: 2023年 项目概述 日本横滨的房子位于日本横滨住宅区,是一座两层木结构独立住宅。项目充分利用倾斜地形特征,通过创新的结构设计实现了建筑与自然的和谐共生。 设计理念 长谷川豪建筑事务所以”超越高低、内外、新旧界限”为核心理念,通过混凝土块体秩序和木结构系统,在倾斜场地上创造与自然环境深度对话的居住体验。 空间与功能 底层设置室外露台、起居室和浴室,利用大型混凝土块体适应地形;上层分为四个独立房间区域,通过X形木桁架结构实现大跨度空间,斜向支撑构件形成独特的视角连接室内外景观。 材料与技术 主要采用木材和混凝土材料,运用6.6米跨度的X形木桁架结构体系。由于场地限制,所有材料均采用人工运输,体现了因地制宜的建造智慧。 项目特色与启发 日本横滨的房子通过结构元素的斜向视角创造与景观的意外连接,即使在简单的两层配置中也实现了丰富的空间体验,为坡地住宅设计提供了创新范例。 设计团队 长谷川豪建筑事务所由建筑师长谷川豪创立,以细腻的空间处理和材料运用著称,擅长在限制条件下创造与自然环境深度互动的建筑作品。 项目概述 日本横滨的房子位于日本横滨住宅区,是一座两层木结构独立住宅。项目充分利用倾斜地形特征,通过创新的结构设计实现了建筑与自然的和谐共生。 设计理念 长谷川豪建筑事务所以”超越高低、内外、新旧界限”为核心理念,通过混凝土块体秩序和木结构系统,在倾斜场地上创造与自然环境深度对话的居住体验。 空间与功能 底层设置室外露台、起居室和浴室,利用大型混凝土块体适应地形;上层分为四个独立房间区域,通过X形木桁架结构实现大跨度空间,斜向支撑构件形成独特的视角连接室内外景观。 材料与技术 主要采用木材和混凝土材料,运用6.6米跨度的X形木桁架结构体系。由于场地限制,所有材料均采用人工运输,体现了因地制宜的建造智慧。 项目特色与启发 日本横滨的房子通过结构元素的斜向视角创造与景观的意外连接,即使在简单的两层配置中也实现了丰富的空间体验,为坡地住宅设计提供了创新范例。 设计团队 长谷川豪建筑事务所由建筑师长谷川豪创立,以细腻的空间处理和材料运用著称,擅长在限制条件下创造与自然环境深度互动的建筑作品。 本文来自 © 长谷川豪建筑事务所|Go Hasegawa, 发布于 © 建筑学院官方网站。 未经授权,禁止转载或摘编。 编辑版本版权归 © 建筑学院官方网站 所有, 设计、图纸及照片版权归设计方 © 长谷川豪建筑事务所|Go Hasegawa ↗ 所有。 查看作者在建筑学院发布的更多作品: 长谷川豪建筑事务所|Go Hasegawa @ 建筑学院官方网站 House in Yokohama横滨住宅独立住宅设计长谷川豪建筑事务所 长谷川豪建筑事务所|Go Hasegawa事务所 & 设计师 下载原图 收藏 0 关于作者 长谷川豪建筑事务所|Go Hasegawa事务所 & 设计师 关注私信 16 文章 0 评论 0 粉丝 长谷川豪建筑事务所(Go Hasegawa)由日本建筑师长谷川豪于2005年创立,以其对空间尺度的独特探索和建筑与自然、城市环境的巧妙融合而闻名。其代表作"樱台之家"以一张巨大桌子重新定义住宅核心,"林中飞屋"则通过架空结构实现与树冠平齐的居住体验。事务所作品强调打破建筑内外界限,营造既亲密又开放的动态空间。 香枫公寓 / Cham Apartments | Karamuk Kuo 建筑事务所 上一篇 2025-11-04 下午12:50 圣地亚哥广播塔 Antenna Tower Santiago | 斯米里扬·拉迪奇|Smiljan Radić 下一篇 2025-11-04 下午12:50 猜你喜欢 码房 Barcode House / Barcode House | MVRDV 建筑事务所 2025-11-15 公共建筑设计 土胚房 / Hut House | MARKLEE 建筑事务所 2025-11-15 公共建筑设计 森林里的Pilotis / Pilotis in a Forest | 长谷川豪建筑事务所 2025-11-03 公共建筑设计 弗斯特纳布尔克的库伯尔之家 / Kübler House in Fürstenaubruck | 吉翁·A·卡米纳达|Gion A. Caminada 2025-12-28 住宅建筑设计 别墅托维诺森 / Villa Toivonen | Arrhov Frick 2026-01-05 住宅建筑设计 异域宅院 / Alien House | 阿尔弗雷多·帕亚|Alfredo Payá 2026-04-14 住宅建筑设计 发表回复 请登录后评论...登录后才能评论 提交