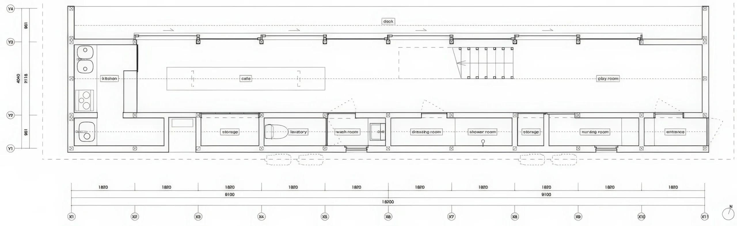
小松柏木屋 / Yoshino Cedar House | 长谷川豪建筑事务所 长谷川豪建筑事务所|Go Hasegawa • 2025-11-16 上午8:50 • 公共建筑设计, 建筑师设计, 建筑设计, 文化建筑设计 小松柏木屋由长谷川豪建筑事务所与Airbnb合作设计,位于日本奈良县吉野川畔。这座两层木结构建筑结合社区空间与民宿功能,采用当地吉野杉木建造,通过创新的”檐廊+阁楼”空间组合,重新定义了主人与客人之间的互动关系。 设计: 长谷川豪建筑事务所|Go Hasegawa 类型: 文化建筑设计 功能: 独立住宅 风格: 地域主义 材料: 木材 尺度: 小型建筑 地点:奈良 时间: 2016年 项目概述 小松柏木屋是由长谷川豪建筑事务所设计的民宿建筑,位于日本奈良县吉野川河畔。项目最初为2016年东京House Vision展览建造,后搬迁至现址。这座两层木结构建筑融合社区公共空间与民宿功能,体现了当代建筑与传统工艺的结合。 设计理念 长谷川豪建筑事务所与Airbnb合作,重新思考民宿中主人与客人的关系。设计灵感来自当地传统建筑的大和栋屋顶形式,通过现代手法重新诠释传统元素,旨在创造一种新型的主客互动模式,让游客能够更深入地体验当地文化。 空间与功能 建筑底层设置大型檐廊空间,部分封闭形成社区起居区;上层为开放式阁楼式客房空间。这种”檐廊+阁楼”的组合方式突破了传统住宅的辅助空间概念,通过扩大这些空间的尺度,创造了独特的空间体验和功能布局。 材料与技术 小松柏木屋主要使用当地吉野杉木和桧木建造。建筑采用传统木结构技术,屋顶为大和栋形式的阶梯式山形屋顶。为便于运输,建筑被分成可在10吨卡车上运输的单元,在柱梁间设置支撑以保持截面形状。 项目特色与启发 小松柏木屋展示了如何通过建筑空间设计促进社区互动与文化传承。项目将传统工艺与现代需求相结合,为当代民宿设计提供了新的思路,体现了建筑在连接人与地方文化中的重要作用。 设计团队 长谷川豪建筑事务所由建筑师长谷川豪创立,以细腻的空间处理和材料运用著称。事务所在住宅和文化建筑领域有着丰富经验,擅长通过现代设计语言重新诠释传统建筑元素。 项目概述 小松柏木屋是由长谷川豪建筑事务所设计的民宿建筑,位于日本奈良县吉野川河畔。项目最初为2016年东京House Vision展览建造,后搬迁至现址。这座两层木结构建筑融合社区公共空间与民宿功能,体现了当代建筑与传统工艺的结合。 设计理念 长谷川豪建筑事务所与Airbnb合作,重新思考民宿中主人与客人的关系。设计灵感来自当地传统建筑的大和栋屋顶形式,通过现代手法重新诠释传统元素,旨在创造一种新型的主客互动模式,让游客能够更深入地体验当地文化。 空间与功能 建筑底层设置大型檐廊空间,部分封闭形成社区起居区;上层为开放式阁楼式客房空间。这种”檐廊+阁楼”的组合方式突破了传统住宅的辅助空间概念,通过扩大这些空间的尺度,创造了独特的空间体验和功能布局。 材料与技术 小松柏木屋主要使用当地吉野杉木和桧木建造。建筑采用传统木结构技术,屋顶为大和栋形式的阶梯式山形屋顶。为便于运输,建筑被分成可在10吨卡车上运输的单元,在柱梁间设置支撑以保持截面形状。 项目特色与启发 小松柏木屋展示了如何通过建筑空间设计促进社区互动与文化传承。项目将传统工艺与现代需求相结合,为当代民宿设计提供了新的思路,体现了建筑在连接人与地方文化中的重要作用。 设计团队 长谷川豪建筑事务所由建筑师长谷川豪创立,以细腻的空间处理和材料运用著称。事务所在住宅和文化建筑领域有着丰富经验,擅长通过现代设计语言重新诠释传统建筑元素。 本文来自 © 长谷川豪建筑事务所|Go Hasegawa, 发布于 © 建筑学院官方网站。 未经授权,禁止转载或摘编。 编辑版本版权归 © 建筑学院官方网站 所有, 设计、图纸及照片版权归设计方 © 长谷川豪建筑事务所|Go Hasegawa ↗ 所有。 查看作者在建筑学院发布的更多作品: 长谷川豪建筑事务所|Go Hasegawa @ 建筑学院官方网站 Yoshino Cedar House奈良建筑民宿设计长谷川豪 长谷川豪建筑事务所|Go Hasegawa事务所 & 设计师 下载原图 收藏 0 关于作者 长谷川豪建筑事务所|Go Hasegawa事务所 & 设计师 关注私信 16 文章 0 评论 0 粉丝 长谷川豪建筑事务所(Go Hasegawa)由日本建筑师长谷川豪于2005年创立,以其对空间尺度的独特探索和建筑与自然、城市环境的巧妙融合而闻名。其代表作"樱台之家"以一张巨大桌子重新定义住宅核心,"林中飞屋"则通过架空结构实现与树冠平齐的居住体验。事务所作品强调打破建筑内外界限,营造既亲密又开放的动态空间。 艺术家之家No.7号房 / House No.7, Artist’s House | +MOS 建筑事务所 上一篇 2025-11-15 下午12:50 Seró 巨石墓/石室冢传输空间 / Seró Megalithic Tomb/Dolmen Transmitter Space | 托尼·希罗内斯|Toni Gironès 下一篇 2025-11-16 下午12:50 猜你喜欢 Sakuradai House / House in Sakuradai | 长谷川豪建筑事务所|Go Hasegawa 2025-11-22 公共建筑设计 瓜斯塔拉教堂 / Chapel in Guastalla | 长谷川豪建筑事务所|Go Hasegawa 2025-11-01 公共建筑设计 森林里的房子 / House in a Forest | 长谷川豪建筑事务所 2025-11-03 公共建筑设计 发表回复 请登录后评论...登录后才能评论 提交