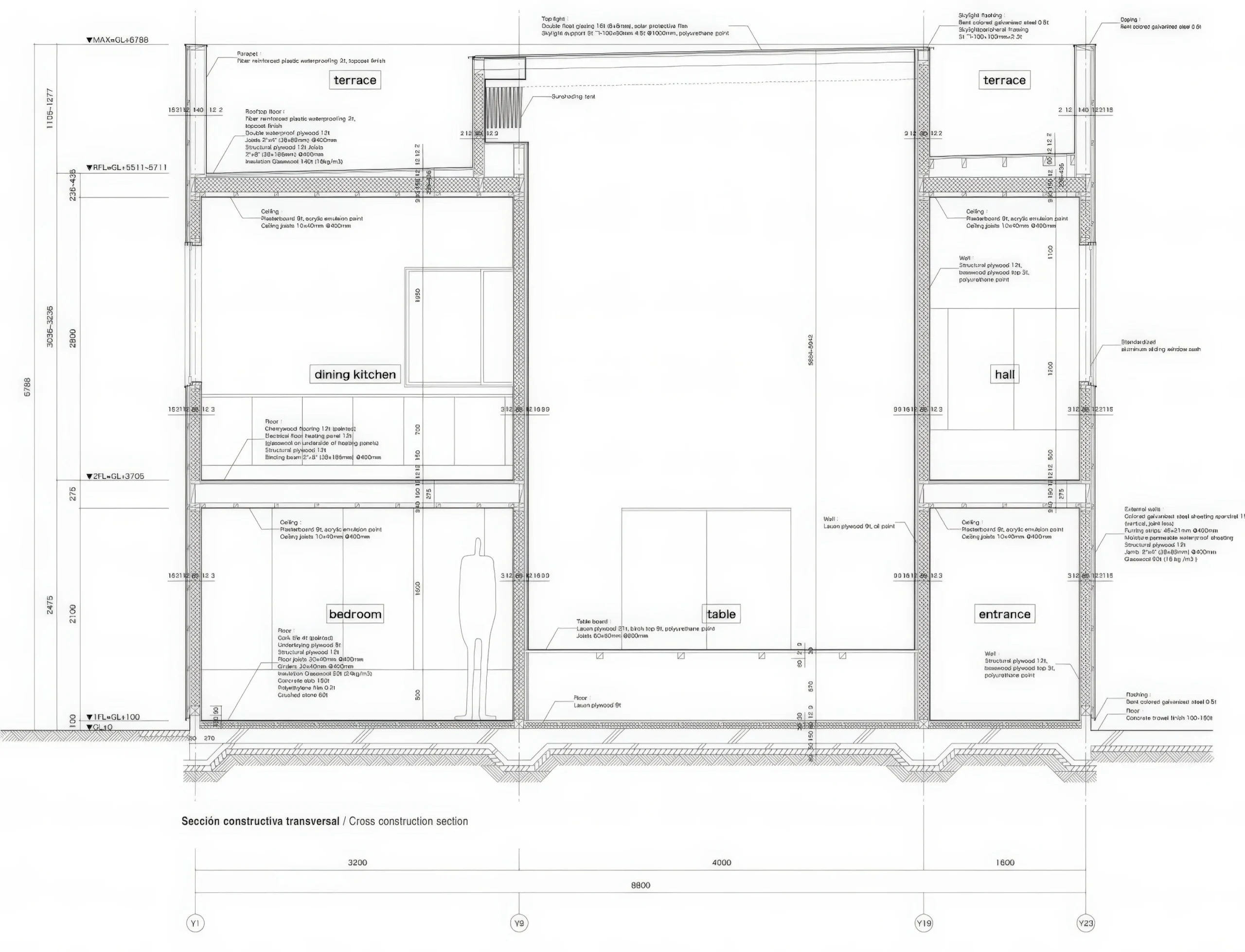
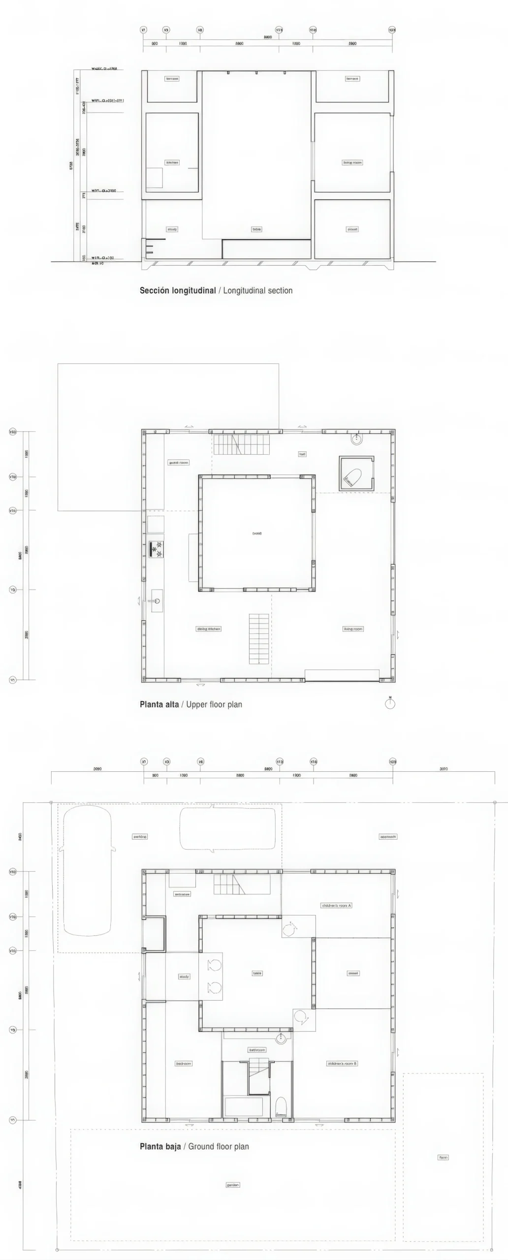
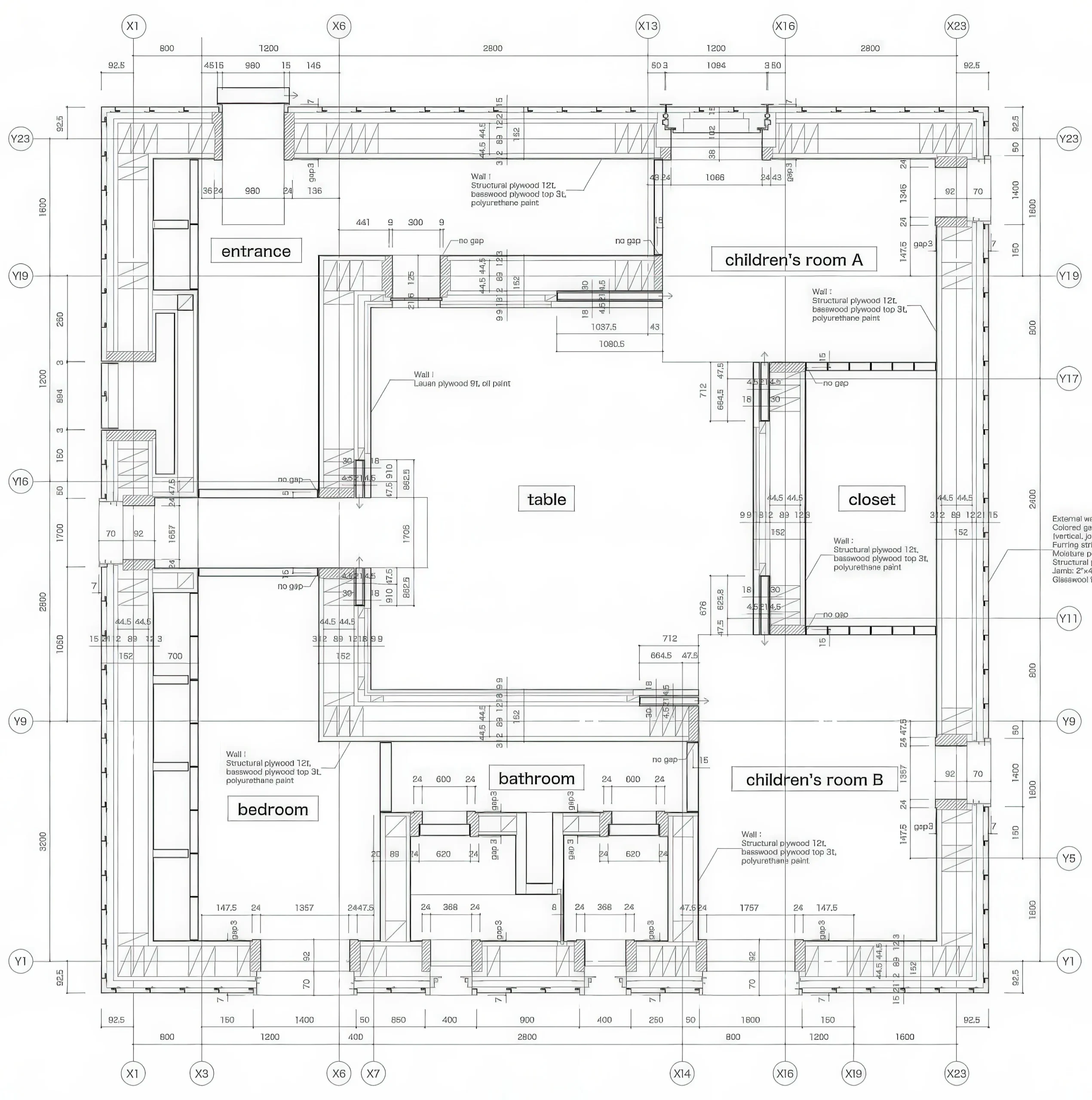
Sakuradai House / House in Sakuradai | 长谷川豪建筑事务所|Go Hasegawa 长谷川豪建筑事务所|Go Hasegawa • 2025-11-22 上午8:50 • 公共建筑设计, 建筑师, 建筑设计, 文化建筑设计 Sakuradai House 由长谷川豪建筑事务所设计,位于宁静住宅区,为小学教师夫妇及其两个孩子打造。建筑采用方形两层布局,中央设置带天窗的中庭与大型餐桌空间,创造模糊室内外界限的家庭生活体验,实现私密与公共空间的巧妙连接。 设计: 长谷川豪建筑事务所|Go Hasegawa 类型: 文化建筑设计 功能: 独立住宅 风格: 现代主义 材料: 混凝土 木材 玻璃 尺度: 小型建筑 地点:日本 时间: 2012年 项目概述 Sakuradai House 是长谷川豪建筑事务所设计的独立住宅项目,位于日本某住宅区。这座两层方形建筑占地约中心位置,周围环绕花园,包含卧室、浴室、起居区、餐厅和厨房等功能空间,通过中央中庭设计实现独特的空间体验。 设计理念 长谷川豪建筑事务所针对教师家庭需求,提出”模糊感知”的设计概念。通过中央天窗中庭与大型餐桌的置入,让居住者在准备教学材料时能随时感知家庭成员的活动,创造既私密又开放的家庭生活场景,回应现代家庭对连接与独立并存的空间需求。 空间与功能 建筑采用明确的功能分层:地面层布置卧室和浴室等私密空间,上层为起居、餐饮等公共区域。中央中庭成为空间核心,大型餐桌占据整个区域,既作为第二客厅使用,又通过视觉与流线连接各个房间。独特的角落座位设计让人同时体验私密小空间与开阔大尺度的双重感受。 材料与技术 长谷川豪建筑事务所选用简洁的材料语言,以混凝土、木材和玻璃为主要建材。天窗采光系统确保中庭充足的自然光照,结构设计强调空间的纯净性与流动性。材料搭配注重质感对比,营造温暖而现代的家庭氛围。 项目特色与启发 Sakuradai House 展现了长谷川豪建筑事务所在住宅设计中的创新思维,通过中央餐桌空间重新定义家庭互动模式。该项目为小型住宅设计提供了新范式,展示如何在不大的用地内创造丰富的空间体验,对当代住宅设计具有重要参考价值。 设计团队 长谷川豪建筑事务所由建筑师长谷川豪创立,以细腻的空间处理和创新的居住概念著称。事务所在住宅、文化建筑等领域有着丰富经验,擅长通过简洁的建筑语言创造深刻的空间体验,Sakuradai House 充分体现了其设计理念与实践能力。 项目概述 Sakuradai House 是长谷川豪建筑事务所设计的独立住宅项目,位于日本某住宅区。这座两层方形建筑占地约中心位置,周围环绕花园,包含卧室、浴室、起居区、餐厅和厨房等功能空间,通过中央中庭设计实现独特的空间体验。 设计理念 长谷川豪建筑事务所针对教师家庭需求,提出”模糊感知”的设计概念。通过中央天窗中庭与大型餐桌的置入,让居住者在准备教学材料时能随时感知家庭成员的活动,创造既私密又开放的家庭生活场景,回应现代家庭对连接与独立并存的空间需求。 空间与功能 建筑采用明确的功能分层:地面层布置卧室和浴室等私密空间,上层为起居、餐饮等公共区域。中央中庭成为空间核心,大型餐桌占据整个区域,既作为第二客厅使用,又通过视觉与流线连接各个房间。独特的角落座位设计让人同时体验私密小空间与开阔大尺度的双重感受。 材料与技术 长谷川豪建筑事务所选用简洁的材料语言,以混凝土、木材和玻璃为主要建材。天窗采光系统确保中庭充足的自然光照,结构设计强调空间的纯净性与流动性。材料搭配注重质感对比,营造温暖而现代的家庭氛围。 项目特色与启发 Sakuradai House 展现了长谷川豪建筑事务所在住宅设计中的创新思维,通过中央餐桌空间重新定义家庭互动模式。该项目为小型住宅设计提供了新范式,展示如何在不大的用地内创造丰富的空间体验,对当代住宅设计具有重要参考价值。 设计团队 长谷川豪建筑事务所由建筑师长谷川豪创立,以细腻的空间处理和创新的居住概念著称。事务所在住宅、文化建筑等领域有着丰富经验,擅长通过简洁的建筑语言创造深刻的空间体验,Sakuradai House 充分体现了其设计理念与实践能力。 本文来自 © 长谷川豪建筑事务所|Go Hasegawa, 发布于 © 建筑学院官方网站。 未经授权,禁止转载或摘编。 编辑版本版权归 © 建筑学院官方网站 所有, 设计、图纸及照片版权归设计方 © 长谷川豪建筑事务所|Go Hasegawa ↗ 所有。 查看作者在建筑学院发布的更多作品: 长谷川豪建筑事务所|Go Hasegawa @ 建筑学院官方网站 sakuradai house日本住宅独立住宅设计长谷川豪 长谷川豪建筑事务所|Go Hasegawa事务所 & 设计师 下载原图 收藏 0 关于作者 长谷川豪建筑事务所|Go Hasegawa事务所 & 设计师 关注私信 16 文章 0 评论 0 粉丝 长谷川豪建筑事务所(Go Hasegawa)由日本建筑师长谷川豪于2005年创立,以其对空间尺度的独特探索和建筑与自然、城市环境的巧妙融合而闻名。其代表作"樱台之家"以一张巨大桌子重新定义住宅核心,"林中飞屋"则通过架空结构实现与树冠平齐的居住体验。事务所作品强调打破建筑内外界限,营造既亲密又开放的动态空间。 法国图尔国家舞蹈编导中心 National Choreographic Centre of Tours | 布鲁瑟建筑事务所|Bruther 上一篇 2025-11-20 下午10:00 巴塞尔大学生物医学系 Department of Biomedicine, University of Basel | 卡鲁索·圣约翰建筑事务所|Caruso St John 下一篇 2025-11-22 下午12:50 猜你喜欢 异域宅院 / Alien House | 阿尔弗雷多·帕亚|Alfredo Payá 2025-12-02 公共建筑设计 两座房子 / House+House | Estúdio Gustavo Utrabo 2026-03-30 住宅建筑设计 圣楚尔瓦住宅 House in Stürcherwald | 贝尔纳多·巴德尔|Bernardo Bader 2025-10-30 公共建筑设计 马略阿的房子 / House in Maia | 阿尔瓦罗·西扎 & 安东尼奥·马杜雷拉 2026-01-12 住宅建筑设计 梅诺卡的Son Parc住宅 / Son Parc House in Menorca | RCR 建筑事务所|RCR Arquitectes 2025-11-19 公共建筑设计 森林里的房子 / House in a Forest | 长谷川豪建筑事务所 2025-11-03 公共建筑设计 发表回复 请登录后评论...登录后才能评论 提交