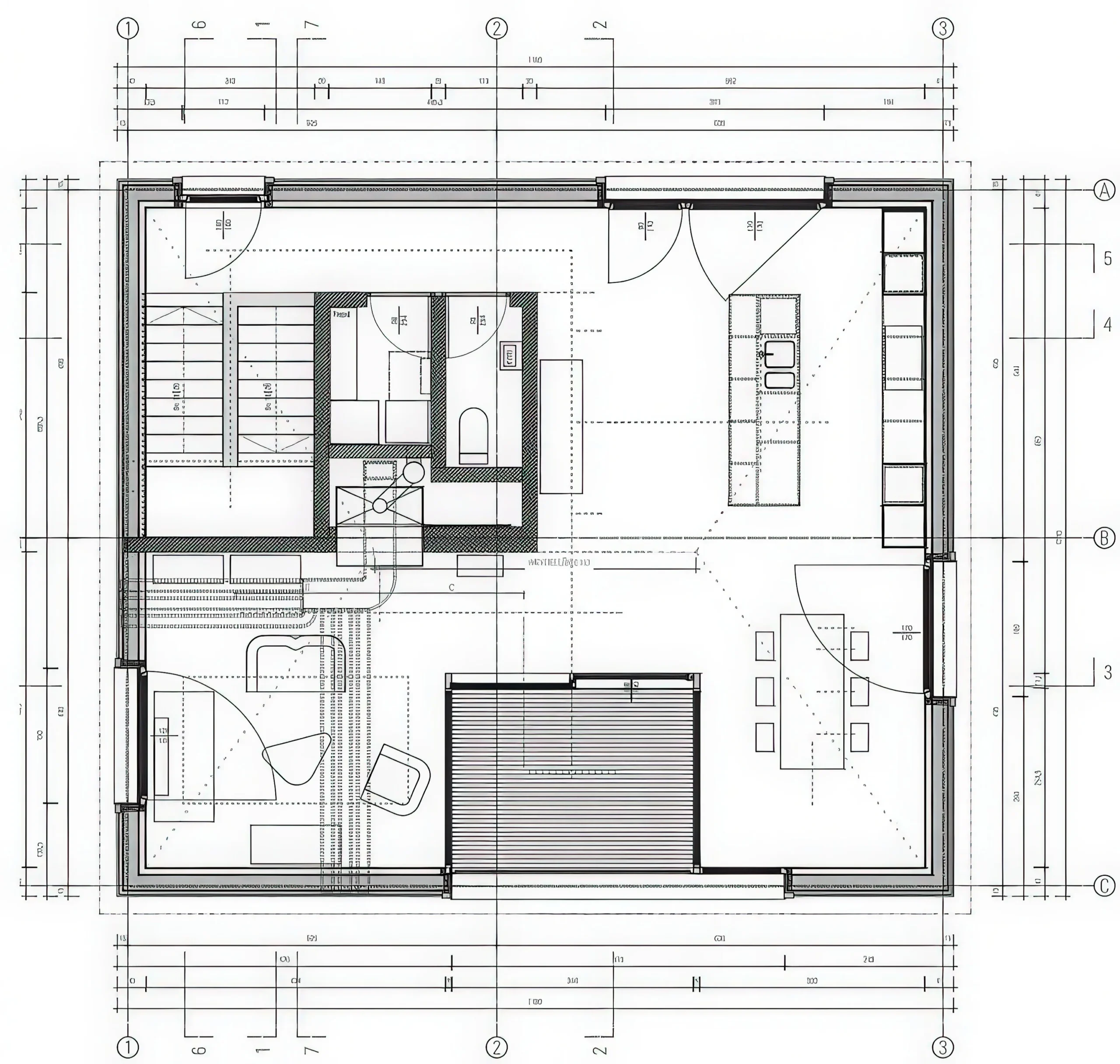
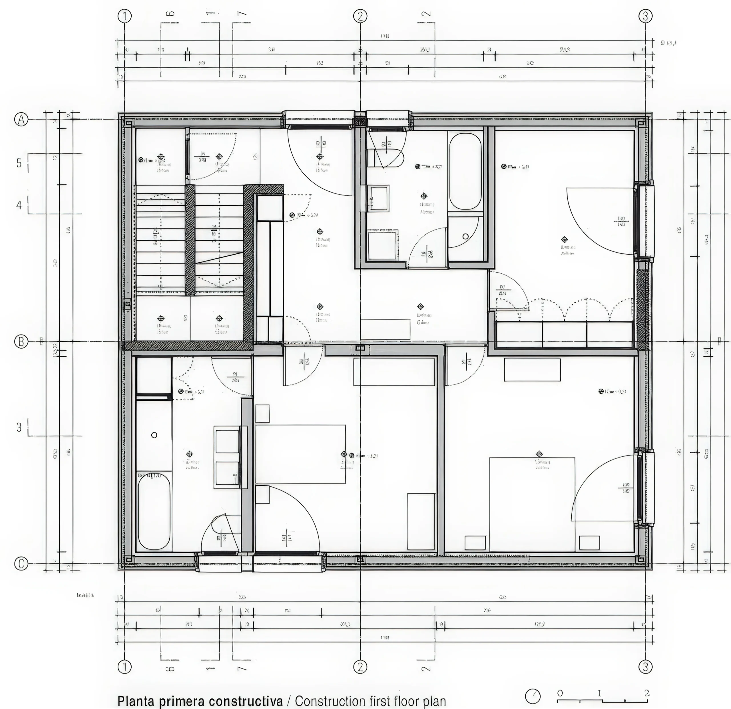
施韦克弗尔根之家 / House on Schopfacker | 贝尔纳多·巴德尔|Bernardo Bader 贝尔纳多·巴德尔|Bernardo Bader • 2025-11-19 下午12:50 • 公共建筑设计, 建筑师, 建筑设计, 文化建筑设计 施韦克弗尔根之家位于瑞士阿彭策尔地区特罗根,由贝尔纳多·巴德尔设计,是一座两户住宅建筑。项目以传统历史秩序为灵感,采用坚固木结构建造,在保留地域建筑特征的同时满足现代生活需求,成为村庄东部边缘的标志性建筑。 设计: 贝尔纳多·巴德尔|Bernardo Bader 类型: 文化建筑设计 功能: 独立住宅 风格: 当代建筑 材料: 混凝土 木材 尺度: 微型建筑与装置 地点:特罗根 时间: 2016年 项目概述 施韦克弗尔根之家位于瑞士阿彭策尔地区特罗根,是一座两户住宅建筑。项目建于2012年至2016年间,取代了原先被烧毁的农舍,位于国家重要的城镇景观保护区内。建筑采用独立式布局,底层设有老人公寓,整体比例与周围环境相协调。 设计理念 施韦克弗尔根之家的设计灵感来源于阿彭策尔地区传统的历史秩序和资产阶级住宅特征。贝尔纳多·巴德尔的设计团队旨在延续当地宫殿建筑的传统,同时满足现代生活需求。建筑以”基石”的概念定位在村庄东部边缘,既尊重历史文脉又展现当代自信。 空间与功能 建筑内部空间组织巧妙融合传统与现代元素。底层老人公寓提供独立生活空间,上层为两户家庭住宅。顶层既是舒适的木质客厅又是光线充足的起居空间,开放式布局与混凝土核心筒满足当代生活标准。起居室可俯瞰村庄景观,厨房全景窗框构图朝向康斯坦茨湖的河谷景色。 材料与技术 施韦克弗尔根之家采用坚固的木结构建造,外墙使用落叶松木板覆层,内部采用银杉木板装饰。建筑融合木材与混凝土材料,屋顶采用纤维木隔热板,墙体设置通风空腔和防潮层,确保建筑性能与耐久性。木墙板装饰让人联想到传统客厅,同时满足现代隔热标准。 项目特色与启发 施韦克弗尔根之家展示了如何在历史保护区域内进行当代建筑设计。贝尔纳多·巴德尔通过批判性审视历史范例,创造出既与邻居对话又自信独立的建筑作品。该项目为历史环境中的现代住宅设计提供了重要参考,展现了传统与现代的和谐共存。 设计团队 贝尔纳多·巴德尔是一位专注于地域建筑与现代性融合的建筑师,其作品以对材料、工艺和环境的敏感处理著称。设计团队擅长在历史文脉中创造当代建筑语言,通过精细的材料选择和空间组织,实现传统与现代的有机对话。 项目概述 施韦克弗尔根之家位于瑞士阿彭策尔地区特罗根,是一座两户住宅建筑。项目建于2012年至2016年间,取代了原先被烧毁的农舍,位于国家重要的城镇景观保护区内。建筑采用独立式布局,底层设有老人公寓,整体比例与周围环境相协调。 设计理念 施韦克弗尔根之家的设计灵感来源于阿彭策尔地区传统的历史秩序和资产阶级住宅特征。贝尔纳多·巴德尔的设计团队旨在延续当地宫殿建筑的传统,同时满足现代生活需求。建筑以”基石”的概念定位在村庄东部边缘,既尊重历史文脉又展现当代自信。 空间与功能 建筑内部空间组织巧妙融合传统与现代元素。底层老人公寓提供独立生活空间,上层为两户家庭住宅。顶层既是舒适的木质客厅又是光线充足的起居空间,开放式布局与混凝土核心筒满足当代生活标准。起居室可俯瞰村庄景观,厨房全景窗框构图朝向康斯坦茨湖的河谷景色。 材料与技术 施韦克弗尔根之家采用坚固的木结构建造,外墙使用落叶松木板覆层,内部采用银杉木板装饰。建筑融合木材与混凝土材料,屋顶采用纤维木隔热板,墙体设置通风空腔和防潮层,确保建筑性能与耐久性。木墙板装饰让人联想到传统客厅,同时满足现代隔热标准。 项目特色与启发 施韦克弗尔根之家展示了如何在历史保护区域内进行当代建筑设计。贝尔纳多·巴德尔通过批判性审视历史范例,创造出既与邻居对话又自信独立的建筑作品。该项目为历史环境中的现代住宅设计提供了重要参考,展现了传统与现代的和谐共存。 设计团队 贝尔纳多·巴德尔是一位专注于地域建筑与现代性融合的建筑师,其作品以对材料、工艺和环境的敏感处理著称。设计团队擅长在历史文脉中创造当代建筑语言,通过精细的材料选择和空间组织,实现传统与现代的有机对话。 本文来自 © 贝尔纳多·巴德尔|Bernardo Bader, 发布于 © 建筑学院官方网站。 未经授权,禁止转载或摘编。 编辑版本版权归 © 建筑学院官方网站 所有, 设计、图纸及照片版权归设计方 © 贝尔纳多·巴德尔|Bernardo Bader ↗ 所有。 查看作者在建筑学院发布的更多作品: 贝尔纳多·巴德尔|Bernardo Bader @ 建筑学院官方网站 House on Schopfacker住宅建筑设计特罗根住宅贝尔纳多·巴德尔 贝尔纳多·巴德尔|Bernardo Bader事务所 & 设计师 下载原图 收藏 0 关于作者 贝尔纳多·巴德尔|Bernardo Bader事务所 & 设计师 关注私信 21 文章 0 评论 0 粉丝 贝尔纳多·巴德尔(Bernardo Bader)是一位出生于布雷根策瓦尔的奥地利建筑师-2。他于2003年创立自己的事务所,其作品深深植根于地域性,以精巧的细节和对自然与文化关系的独特诠释而闻名。巴德尔曾多次获奖,包括2007年青年建筑Weissenhof奖、2012年及2017年的Piranesi奖,并在2013年荣获著名的阿卡汗建筑奖。 Reichshof Stadium 舒特纳奥克 / Reichshof Stadium, Lustenau | 贝尔纳多·巴德尔 Bernardo Bader 上一篇 2025-11-19 下午12:50 Gemini 住宅 / Gemini Residences | MVRDV 建筑事务所 下一篇 2025-11-19 下午12:50 猜你喜欢 希伯伦清真寺及文化中心 / Mosque and Cultural Centre, Heilbronn | 贝尔纳多·巴德尔|Bernardo Bader 2025-11-17 公共建筑设计 香枫公寓 / Cham Apartments | Karamuk Kuo 建筑事务所 2025-11-04 公共建筑设计 阿尔卑斯体育中心,施鲁斯 Alpine Sports Centre, Schruns | 贝尔纳多·巴德尔|Bernardo Bader 2025-10-27 公共建筑设计 安东尼奥·麦卡伊公寓楼 8 / ANTONIO MACEO APARTMENT BUILDING 8 | Taller Héctor Barroso 2026-02-18 住宅建筑设计 马尔哈洛登住房楼 / Mälarhöjden Housing Block | Arrhov Frick 2026-01-22 住宅建筑设计 圣卢西亚路公寓 / Apartments on Rua da Senhora da Luz | 德·莫拉建筑事务所 2026-03-20 住宅建筑设计 发表回复 请登录后评论...登录后才能评论 提交