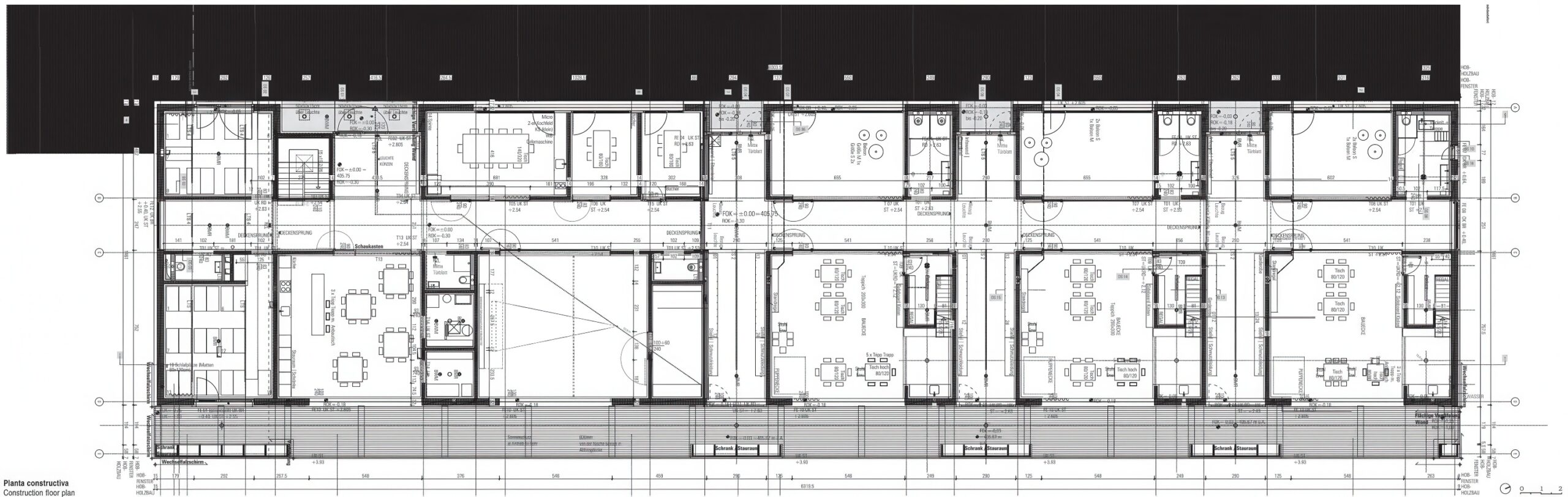
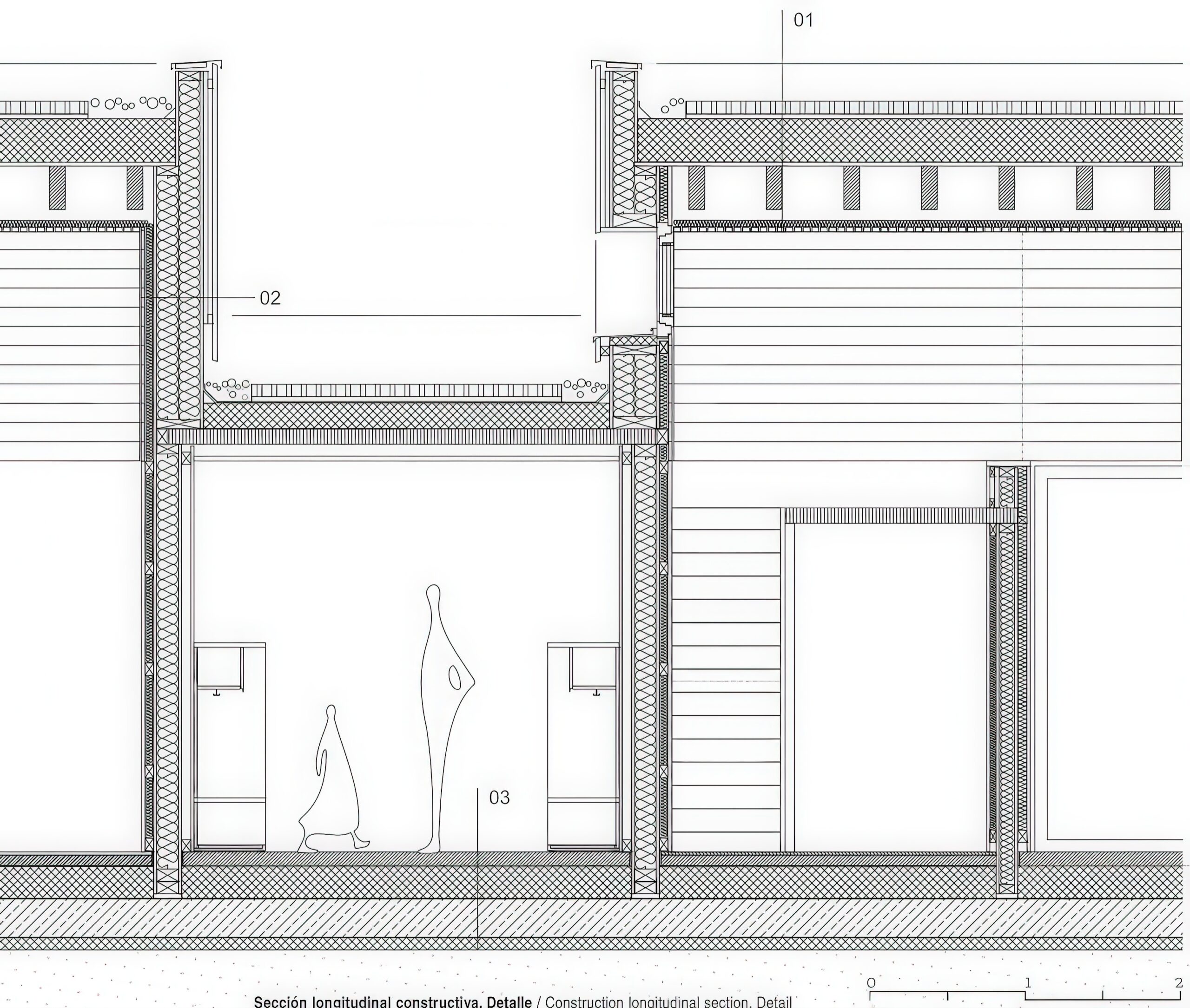
儿童之家 / Children’s House | 贝尔纳多·巴德尔|Bernardo Bader 贝尔纳多·巴德尔|Bernardo Bader • 2026-01-17 下午7:57 • 公共建筑设计, 公共空间设计, 教育建筑设计, 教育空间, 文化建筑 儿童之家由贝尔纳多·巴德尔建筑师设计,位于奥地利福拉尔贝格州劳特拉赫镇,是一座以木结构为主的幼儿园建筑。项目通过65米长的木构翼楼扩展原有园区,以彩色入口、通透玻璃隔断与自然采光营造开放、明亮的儿童成长环境,满足当代幼儿教育需求。 设计: 贝尔纳多·巴德尔|Bernardo Bader 类型: 文化建筑 功能: 独立住宅 风格: 现代主义 材料: 混凝土 木材 玻璃 尺度: 小型建筑 地点:劳特拉赫 时间: 2017年 项目概述 儿童之家位于奥地利福拉尔贝格州劳特拉赫镇,是一座幼儿园建筑,总长约65米、宽20米,采用木结构体系,设计于2015年,建成于2017年。 设计理念 设计延续原有建筑肌理,以独立翼楼形式扩展园区,确保不干扰自然保护区未来发展。建筑概念强调开放性与灵活性,通过低矮门廊划分四个功能区,营造如工作室般的非正式学习氛围。 空间与功能 建筑分为四个区块,最大区域面向旧楼,设有食堂、图书馆与多功能厅;其余三区各容纳一个班级。西侧入口以粉、蓝、黄三色标识不同班级,避免混淆。中央走廊作为活动主轴,短横向通道连接各功能区,玻璃隔断在保证声学分离的同时维持视觉通透。 材料与技术 主体采用木材建造,包括交叉层压木结构与木质饰面。东侧设置廊道与滑动玻璃门,提供遮风避雨的半室外空间。地面选用水磨石,墙体结合玻璃与松木材料,增强自然采光与空间质感。屋顶采用植被覆盖与EPS保温层,提升建筑可持续性能。 项目特色与启发 儿童之家以清晰的体块组织、色彩引导与通透界面重新定义幼儿园空间体验,其木结构技术与灵活布局为教育建筑提供了兼顾生态、功能与儿童心理的设计范本。 设计团队 贝尔纳多·巴德尔建筑师事务所专注于地域性现代建筑,擅长运用本土材料与可持续建造技术,其作品以简洁的形态、精准的细部与对自然环境的敏感回应著称。 项目概述 儿童之家位于奥地利福拉尔贝格州劳特拉赫镇,是一座幼儿园建筑,总长约65米、宽20米,采用木结构体系,设计于2015年,建成于2017年。 设计理念 设计延续原有建筑肌理,以独立翼楼形式扩展园区,确保不干扰自然保护区未来发展。建筑概念强调开放性与灵活性,通过低矮门廊划分四个功能区,营造如工作室般的非正式学习氛围。 空间与功能 建筑分为四个区块,最大区域面向旧楼,设有食堂、图书馆与多功能厅;其余三区各容纳一个班级。西侧入口以粉、蓝、黄三色标识不同班级,避免混淆。中央走廊作为活动主轴,短横向通道连接各功能区,玻璃隔断在保证声学分离的同时维持视觉通透。 材料与技术 主体采用木材建造,包括交叉层压木结构与木质饰面。东侧设置廊道与滑动玻璃门,提供遮风避雨的半室外空间。地面选用水磨石,墙体结合玻璃与松木材料,增强自然采光与空间质感。屋顶采用植被覆盖与EPS保温层,提升建筑可持续性能。 项目特色与启发 儿童之家以清晰的体块组织、色彩引导与通透界面重新定义幼儿园空间体验,其木结构技术与灵活布局为教育建筑提供了兼顾生态、功能与儿童心理的设计范本。 设计团队 贝尔纳多·巴德尔建筑师事务所专注于地域性现代建筑,擅长运用本土材料与可持续建造技术,其作品以简洁的形态、精准的细部与对自然环境的敏感回应著称。 本文来自 © 贝尔纳多·巴德尔|Bernardo Bader, 发布于 © 建筑学院官方网站。 未经授权,禁止转载或摘编。 编辑版本版权归 © 建筑学院官方网站 所有, 设计、图纸及照片版权归设计方 © 贝尔纳多·巴德尔|Bernardo Bader ↗ 所有。 查看作者在建筑学院发布的更多作品: 贝尔纳多·巴德尔|Bernardo Bader @ 建筑学院官方网站 Children’s House劳特拉赫教育建筑幼儿园设计现代木结构贝尔纳多·巴德尔 贝尔纳多·巴德尔|Bernardo Bader事务所 & 设计师 下载原图 收藏 0 关于作者 贝尔纳多·巴德尔|Bernardo Bader事务所 & 设计师 关注私信 21 文章 0 评论 0 粉丝 贝尔纳多·巴德尔(Bernardo Bader)是一位出生于布雷根策瓦尔的奥地利建筑师-2。他于2003年创立自己的事务所,其作品深深植根于地域性,以精巧的细节和对自然与文化关系的独特诠释而闻名。巴德尔曾多次获奖,包括2007年青年建筑Weissenhof奖、2012年及2017年的Piranesi奖,并在2013年荣获著名的阿卡汗建筑奖。 Onomichi Yamashiroya Community Centre | 孟买工作室(Studio Mumbai)|Studio Mumbai 上一篇 2026-01-15 下午12:09 UAB ICPRC研究中心 / ICP Research Centre. UAB | HArquitectes 下一篇 2026-02-01 下午5:13 猜你喜欢 希伯伦清真寺及文化中心 / Mosque and Cultural Centre, Heilbronn | 贝尔纳多·巴德尔|Bernardo Bader 2025-11-17 公共建筑设计 Reichshof Stadium 舒特纳奥克 / Reichshof Stadium, Lustenau | 贝尔纳多·巴德尔 Bernardo Bader 2025-11-19 公共建筑设计 伊斯兰陵墓 / Islamic Cemetery Altach | 贝尔纳多·巴德尔建筑事务所 2025-11-17 公共建筑设计 阿尔卑斯体育中心,施鲁斯 Alpine Sports Centre, Schruns | 贝尔纳多·巴德尔|Bernardo Bader 2025-10-27 公共建筑设计 House at the Bäumle / Vertical Living | 贝尔纳多·巴德尔|Bernardo Bader 2026-01-18 住宅建筑设计 圣楚尔瓦住宅 House in Stürcherwald | 贝尔纳多·巴德尔|Bernardo Bader 2025-10-30 公共建筑设计 发表回复 请登录后评论...登录后才能评论 提交