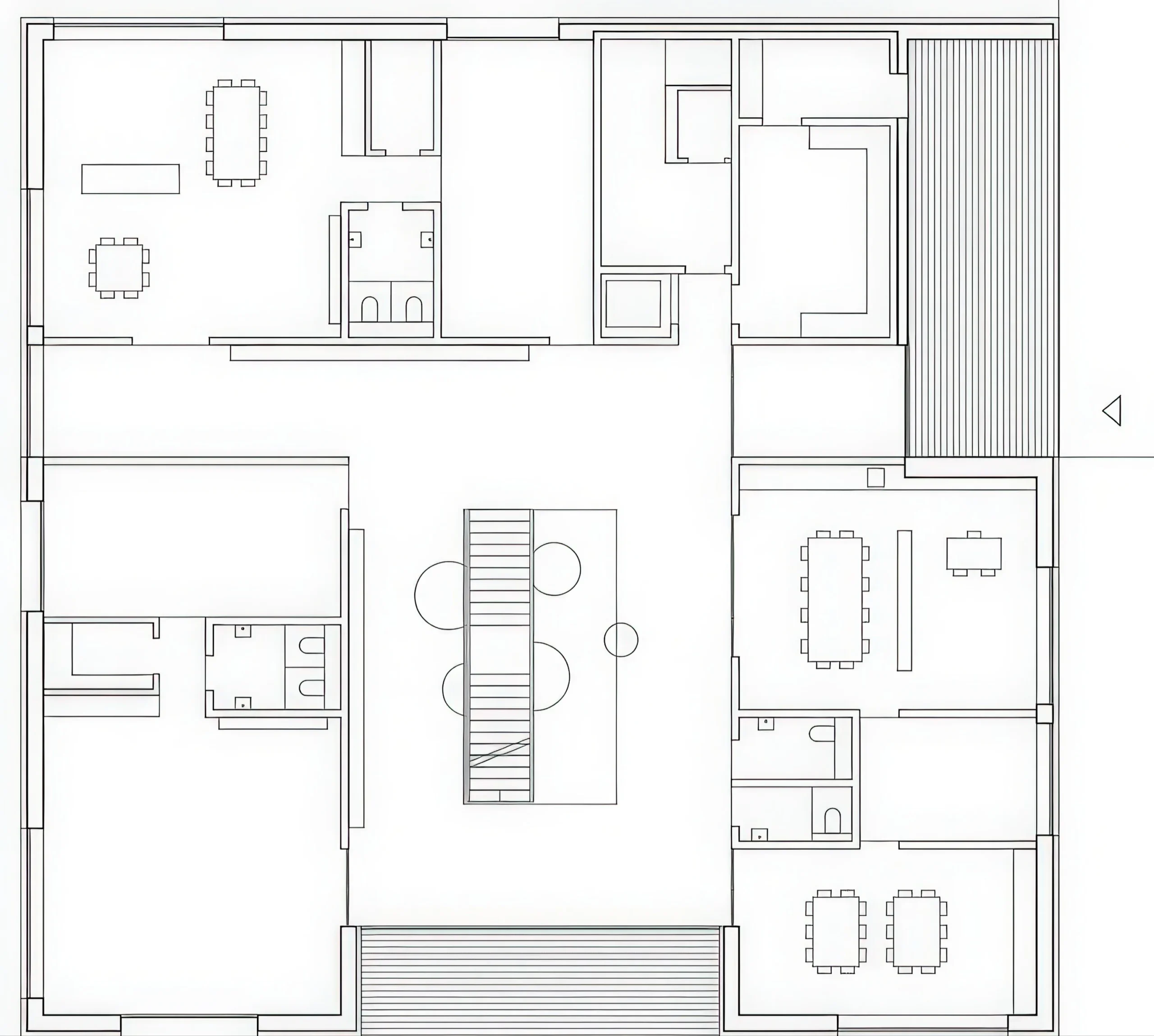
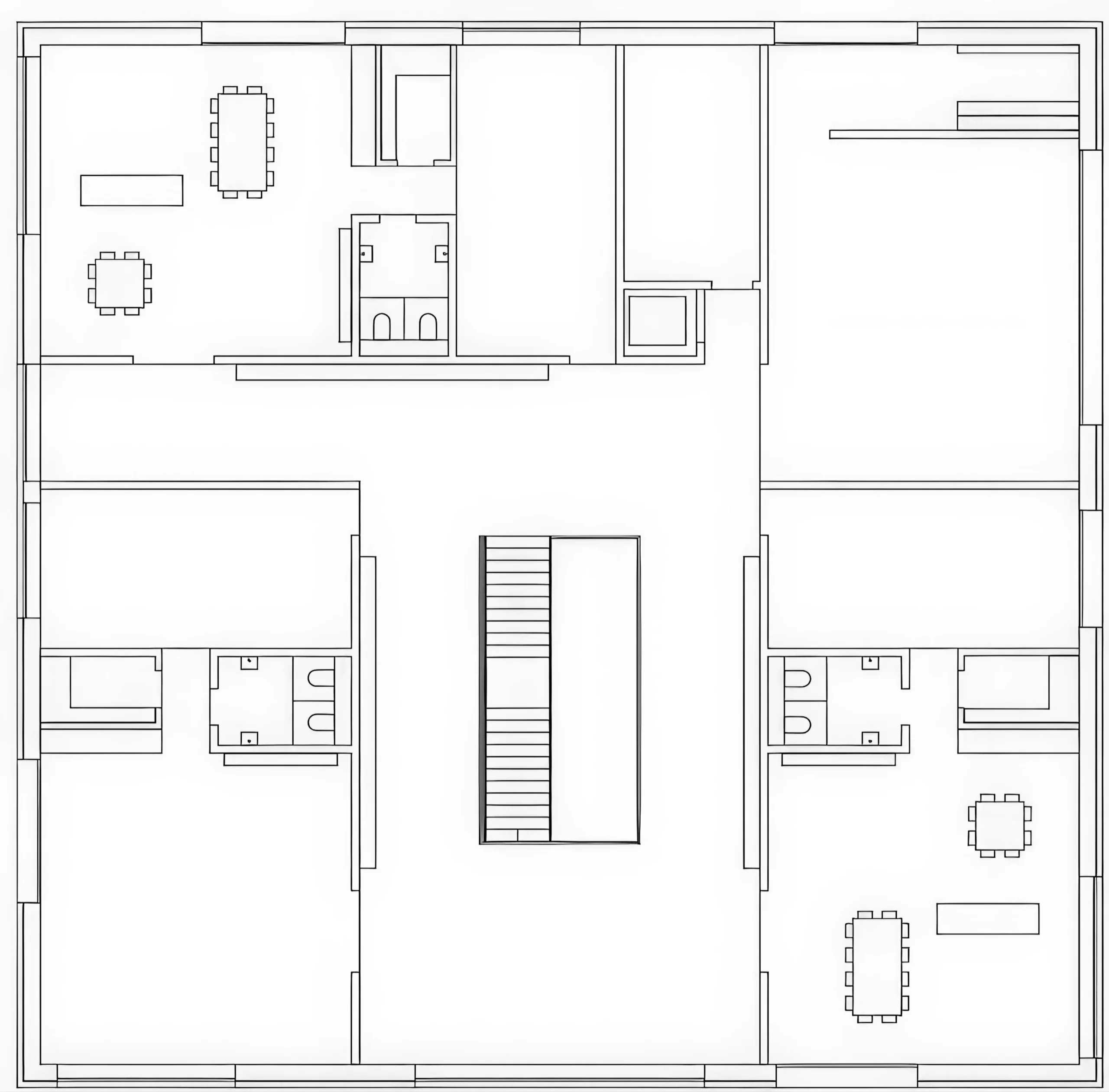
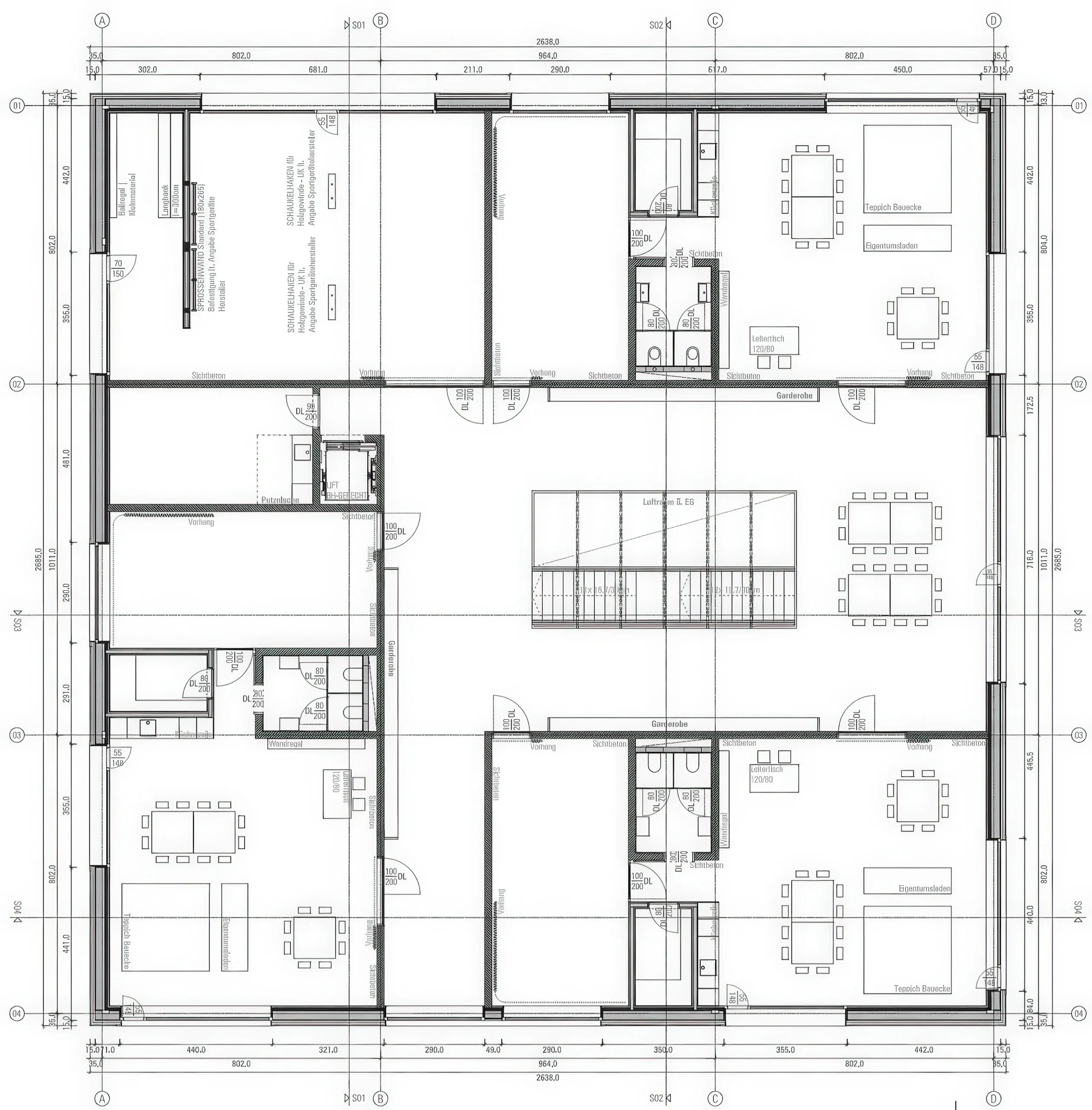
苏西韦格尔幼儿园 / Susi Weigel Kindergarten | 贝尔纳多·巴德尔建筑事务所 贝尔纳多·巴德尔|Bernardo Bader • 2025-11-19 上午8:50 • 公共建筑设计, 建筑师, 建筑设计, 文化建筑设计 苏西韦格尔幼儿园位于奥地利布卢登茨,由贝尔纳多·巴德尔建筑事务所设计。这座两层方形建筑巧妙融入城市肌理,通过木材与混凝土的精心组合,创造出充满童趣与自然光线的教育空间,体现了当代幼儿园设计的创新理念。 设计: 贝尔纳多·巴德尔|Bernardo Bader 类型: 文化建筑设计 功能: 学校 风格: 当代建筑 材料: 混凝土 木材 玻璃 尺度: 微型建筑与装置 地点:布卢登茨 时间: 2018年 项目概述 苏西韦格尔幼儿园位于奥地利布卢登茨市东南边缘,是一座两层方形建筑。项目占地适中,设计巧妙地将建筑与周边环境融合,保留场地原有树木,为儿童创造亲近自然的成长环境。 设计理念 设计灵感源自同名插画家苏西·韦格尔的儿童绘本作品,特别是《小我》的创作理念。贝尔纳多·巴德尔建筑事务所以”线的网络”为概念线索贯穿整个建筑,通过色彩与材质的精心搭配,营造出温馨、活泼的儿童教育空间。 空间与功能 苏西韦格尔幼儿园采用双层布局,教室分布在两个楼层,自然分隔不同年龄段儿童的活动区域。内部空间组织如画廊般流畅,设有大面积开窗连接室外游戏区。中央双层通高大厅配以线性雕塑楼梯,顶部采光与走廊小窗共同营造明亮通透的空间体验。 材料与技术 建筑主要采用当地木材与混凝土结构,外墙使用松木,室内选用云杉。可持续设计策略包括绿色屋顶、高效保温系统和自然通风。结构细节处理精致,如衣帽间形成的过渡空间、变化的窗台设计和贯穿建筑的节点处理,为厚重结构注入轻盈感。 项目特色与启发 苏西韦格尔幼儿园成功将艺术元素融入建筑设计中,展现了教育建筑如何通过材质、色彩和空间组织激发儿童想象力。项目为当代幼儿园设计提供了创新范例,特别是在地域材料运用与儿童心理需求回应方面的实践值得借鉴。 设计团队 贝尔纳多·巴德尔建筑事务所是奥地利知名设计团队,专注于地域建筑与现代设计的融合。事务所在教育建筑领域具有丰富经验,擅长运用当地材料创造具有文化认同感的建筑作品,苏西韦格尔幼儿园充分体现了其设计理念与实践能力。 项目概述 苏西韦格尔幼儿园位于奥地利布卢登茨市东南边缘,是一座两层方形建筑。项目占地适中,设计巧妙地将建筑与周边环境融合,保留场地原有树木,为儿童创造亲近自然的成长环境。 设计理念 设计灵感源自同名插画家苏西·韦格尔的儿童绘本作品,特别是《小我》的创作理念。贝尔纳多·巴德尔建筑事务所以”线的网络”为概念线索贯穿整个建筑,通过色彩与材质的精心搭配,营造出温馨、活泼的儿童教育空间。 空间与功能 苏西韦格尔幼儿园采用双层布局,教室分布在两个楼层,自然分隔不同年龄段儿童的活动区域。内部空间组织如画廊般流畅,设有大面积开窗连接室外游戏区。中央双层通高大厅配以线性雕塑楼梯,顶部采光与走廊小窗共同营造明亮通透的空间体验。 材料与技术 建筑主要采用当地木材与混凝土结构,外墙使用松木,室内选用云杉。可持续设计策略包括绿色屋顶、高效保温系统和自然通风。结构细节处理精致,如衣帽间形成的过渡空间、变化的窗台设计和贯穿建筑的节点处理,为厚重结构注入轻盈感。 项目特色与启发 苏西韦格尔幼儿园成功将艺术元素融入建筑设计中,展现了教育建筑如何通过材质、色彩和空间组织激发儿童想象力。项目为当代幼儿园设计提供了创新范例,特别是在地域材料运用与儿童心理需求回应方面的实践值得借鉴。 设计团队 贝尔纳多·巴德尔建筑事务所是奥地利知名设计团队,专注于地域建筑与现代设计的融合。事务所在教育建筑领域具有丰富经验,擅长运用当地材料创造具有文化认同感的建筑作品,苏西韦格尔幼儿园充分体现了其设计理念与实践能力。 本文来自 © 贝尔纳多·巴德尔|Bernardo Bader, 发布于 © 建筑学院官方网站。 未经授权,禁止转载或摘编。 编辑版本版权归 © 建筑学院官方网站 所有, 设计、图纸及照片版权归设计方 © 贝尔纳多·巴德尔|Bernardo Bader ↗ 所有。 查看作者在建筑学院发布的更多作品: 贝尔纳多·巴德尔|Bernardo Bader @ 建筑学院官方网站 Susi Weigel Kindergarten奥地利教育建筑幼儿园建筑设计贝尔纳多·巴德尔 贝尔纳多·巴德尔|Bernardo Bader事务所 & 设计师 下载原图 收藏 0 关于作者 贝尔纳多·巴德尔|Bernardo Bader事务所 & 设计师 关注私信 21 文章 0 评论 0 粉丝 贝尔纳多·巴德尔(Bernardo Bader)是一位出生于布雷根策瓦尔的奥地利建筑师-2。他于2003年创立自己的事务所,其作品深深植根于地域性,以精巧的细节和对自然与文化关系的独特诠释而闻名。巴德尔曾多次获奖,包括2007年青年建筑Weissenhof奖、2012年及2017年的Piranesi奖,并在2013年荣获著名的阿卡汗建筑奖。 梅诺卡的Son Parc住宅 / Son Parc House in Menorca | RCR 建筑事务所|RCR Arquitectes 上一篇 2025-11-19 上午8:50 ChungHa Building 商业中心 / ChungHa Building Commercial Center | MVRDV 建筑事务所 下一篇 2025-11-19 上午8:50 猜你喜欢 Klostergasse Studio / Klostergasse Studio | 贝尔纳多·巴德尔|Bernardo Bader 2025-11-20 公共建筑设计 圣楚尔瓦住宅 House in Stürcherwald | 贝尔纳多·巴德尔|Bernardo Bader 2025-10-30 公共建筑设计 希伯伦清真寺及文化中心 / Mosque and Cultural Centre, Heilbronn | 贝尔纳多·巴德尔|Bernardo Bader 2026-01-18 文化建筑设计 House at the Bäumle / Vertical Living | 贝尔纳多·巴德尔|Bernardo Bader 2025-11-19 公共建筑设计 伊斯兰陵墓 / Islamic Cemetery Altach | 贝尔纳多·巴德尔建筑事务所 2025-11-17 公共建筑设计 希伯伦清真寺及文化中心 / Mosque and Cultural Centre, Heilbronn | 贝尔纳多·巴德尔|Bernardo Bader 2025-11-17 公共建筑设计 发表回复 请登录后评论...登录后才能评论 提交