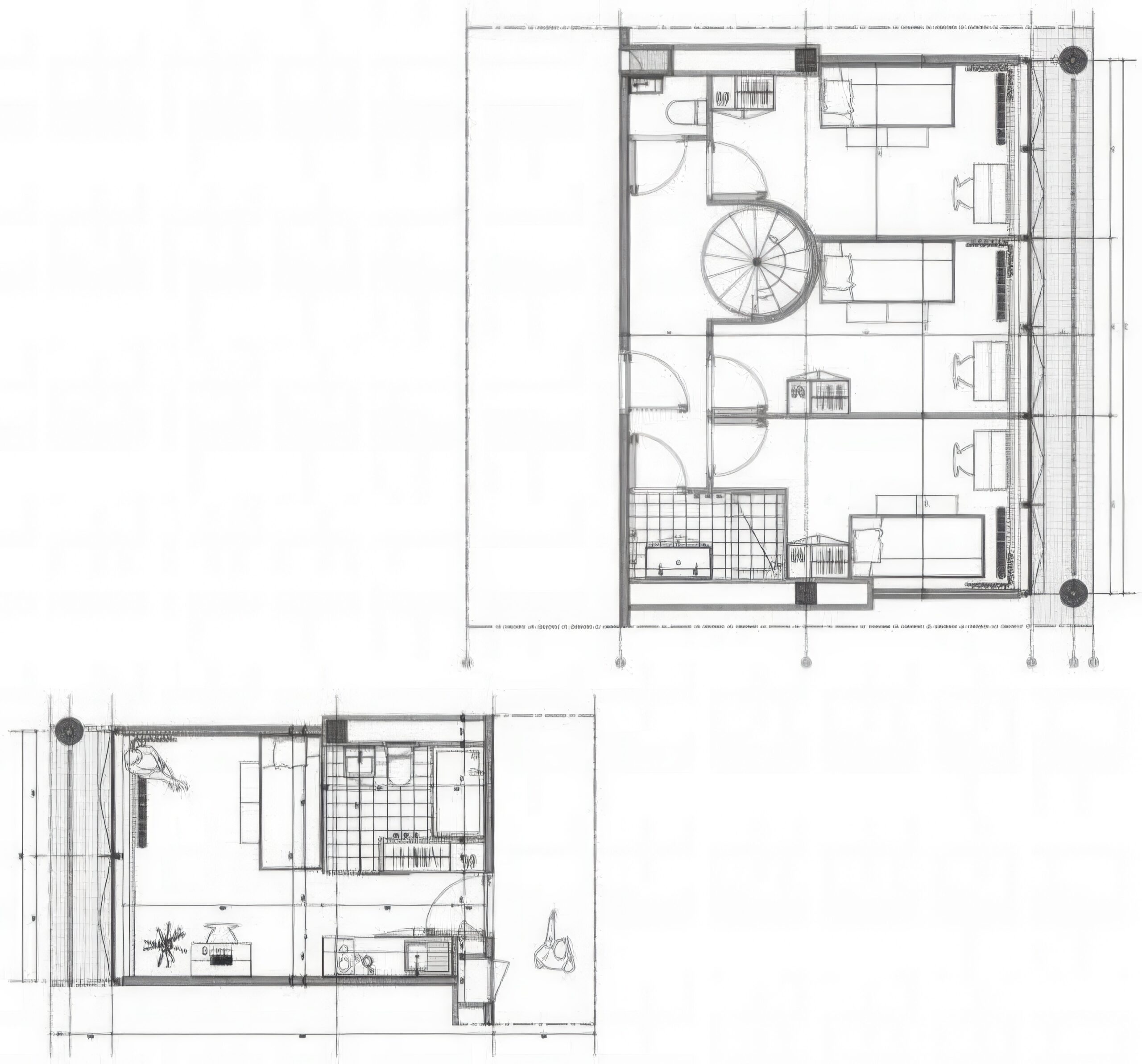
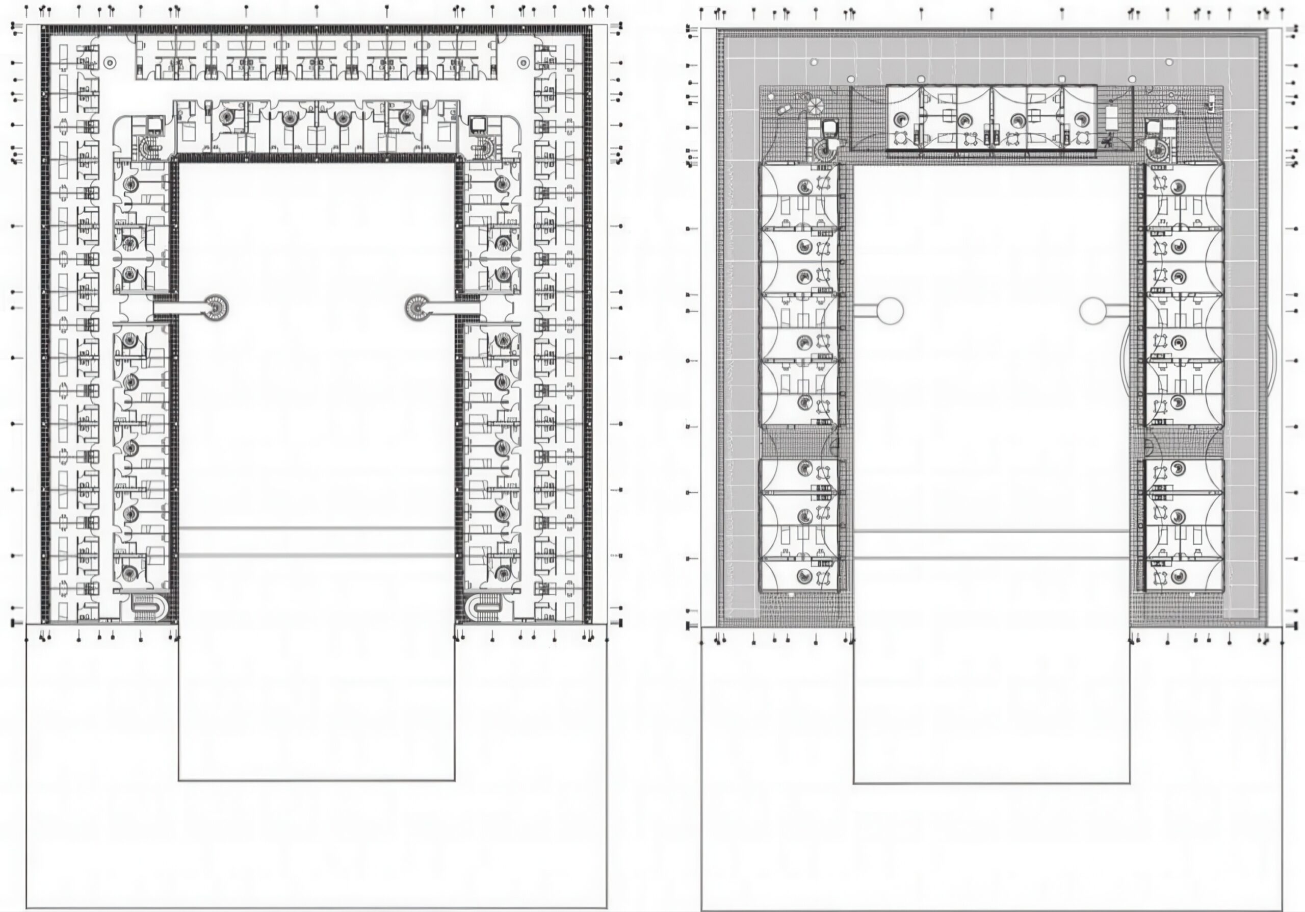
学生宿舍和可逆式停车场,帕拉西斯 Student Residence and Reversible Car Park, Palaiseau | 布鲁瑟建筑事务所|Bruther 布鲁瑟建筑事务所|Bruther • 2025-11-20 下午10:00 • 公共建筑设计, 建筑师, 建筑设计, 文化建筑设计 布鲁瑟建筑事务所设计的帕拉西斯学生宿舍和可逆式停车场位于法国巴黎-萨克雷地区,是一座集学生公寓、公共停车场和商业空间于一体的多功能建筑。项目采用紧凑的U型布局,围绕中央花园庭院组织空间,展现了模块化设计和材料真实性的建筑特色。 设计: 布鲁瑟建筑事务所|Bruther 类型: 文化建筑设计 功能: 公寓住宅 风格: 粗野主义 材料: 混凝土 钢材 玻璃 尺度: 大型建筑 地点:法国 时间: 2016年 项目简介 帕拉西斯学生宿舍和可逆式停车场位于法国巴黎-萨克雷地区,是一座集学生住宅、公共停车场和商业空间于一体的多功能建筑。项目建筑面积约15,000平方米,设计于2016年,荣获竞赛一等奖。 设计理念 设计团队以”经济装备结构”为核心理念,在校园规划理性基础上,采用紧凑的U型布局围合中央花园。建筑强调功能叠加与材料真实性,在严格的功能需求中寻求建筑表达的纯粹性。 空间与功能 建筑采用垂直叠加的空间组织:双层高的底层设置商铺和学生公共空间;二至三层为公共停车场;三至五层为学生公寓单元;顶层为复式住宅。中央花园作为项目的”绿肺”,为所有居住单元提供优质景观。 材料与技术 项目采用混凝土主体结构与可拆卸玻璃面板系统,体现了粗野主义的材料真实性。建筑通过严格的模数化设计和功能分区,实现了复杂程序的高效整合,展现了构造逻辑与建筑表达的完美统一。 项目简介 帕拉西斯学生宿舍和可逆式停车场位于法国巴黎-萨克雷地区,是一座集学生住宅、公共停车场和商业空间于一体的多功能建筑。项目建筑面积约15,000平方米,设计于2016年,荣获竞赛一等奖。 设计理念 设计团队以”经济装备结构”为核心理念,在校园规划理性基础上,采用紧凑的U型布局围合中央花园。建筑强调功能叠加与材料真实性,在严格的功能需求中寻求建筑表达的纯粹性。 空间与功能 建筑采用垂直叠加的空间组织:双层高的底层设置商铺和学生公共空间;二至三层为公共停车场;三至五层为学生公寓单元;顶层为复式住宅。中央花园作为项目的”绿肺”,为所有居住单元提供优质景观。 材料与技术 项目采用混凝土主体结构与可拆卸玻璃面板系统,体现了粗野主义的材料真实性。建筑通过严格的模数化设计和功能分区,实现了复杂程序的高效整合,展现了构造逻辑与建筑表达的完美统一。 本文来自 © 布鲁瑟建筑事务所|Bruther, 发布于 © 建筑学院官方网站。 未经授权,禁止转载或摘编。 编辑版本版权归 © 建筑学院官方网站 所有, 设计、图纸及照片版权归设计方 © 布鲁瑟建筑事务所|Bruther ↗ 所有。 查看作者在建筑学院发布的更多作品: 布鲁瑟建筑事务所|Bruther @ 建筑学院官方网站 可逆式停车场学生宿舍布鲁瑟建筑事务所帕拉西斯混凝土结构 布鲁瑟建筑事务所|Bruther事务所 & 设计师 下载原图 收藏 0 关于作者 布鲁瑟建筑事务所|Bruther事务所 & 设计师 关注私信 20 文章 0 评论 1 粉丝 布鲁瑟建筑事务所(Bruther)由亚历克西斯·博德与斯蒂芬妮·布鲁诺创立于巴黎,是当代极具前瞻性的先锋建筑团队。他们以“动态功能”与“空间灵活性”为核心,作品横跨文化、教育及研究建筑领域,以前瞻性思维与技术精确性,创造出开放、适应性强且充满张力的建筑,持续拓展建筑实践的边界,重新定义当代建筑语言。 安格莱特工程学校伊斯兰建筑大楼 Isalab Building,Engineering School in Anglet | 布鲁瑟建筑事务所 上一篇 2025-11-20 上午7:10 Sakuradai House / House in Sakuradai | 长谷川豪建筑事务所|Go Hasegawa 下一篇 2025-11-22 上午8:50 猜你喜欢 OpenAsia 集团总部,两个核心筒吊起的桥梁办公楼 / G8A Architecture & UrbanPlanning 2019-08-09 办公建筑设计 安格莱特工程学校伊斯兰建筑大楼 Isalab Building,Engineering School in Anglet | 布鲁瑟建筑事务所 2025-11-20 公共建筑设计 赫尔辛基中央图书馆 Central Library, Helsinki | 布鲁瑟建筑事务所|Bruther 2025-11-10 公共建筑设计 Blaise Blaise | 布鲁瑟建筑事务所|Bruther 2025-11-20 公共建筑设计 国家塑料艺术与移动家具中心存储设施 National Centre for the Plastic Arts and Mobilier National Storage Facility | 布鲁瑟建筑事务所|Bruther 2025-11-06 公共建筑设计 白井屋酒店 / 藤本壮介建筑事务所 2020-11-13 建筑设计 发表回复 请登录后评论...登录后才能评论 提交