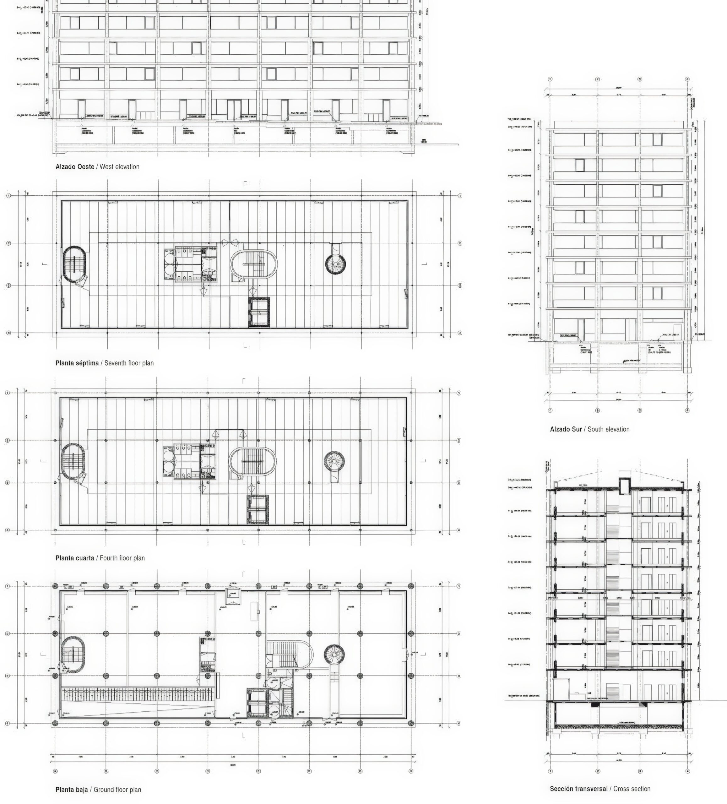
Lyon Confluence 办公楼 Office Building,Lyon Confluence | 克里斯蒂安·凯雷兹|Christian Kerez 克里斯蒂安·凯雷兹|Christian Kerez • 2025-12-04 上午8:50 • 公共建筑设计, 建筑师, 建筑设计, 文化建筑设计 Lyon Confluence 办公楼位于法国里昂城市更新核心区,由克里斯蒂安·凯雷兹设计。该项目基于赫尔佐格与德梅隆的总体规划,采用独特的柱网结构外露设计,通过三种不同混凝土工艺实现建筑立面的韵律变化,展现了结构美学与建造工艺的完美结合。 设计: 克里斯蒂安·凯雷兹|Christian Kerez 类型: 文化建筑设计 功能: 办公楼 风格: 当代建筑 材料: 混凝土 钢材 玻璃 尺度: 中型建筑 地点:法国 时间: 2012年 项目简介 Lyon Confluence 办公楼位于法国里昂城市更新核心区,是一座现代化办公建筑。项目基于赫尔佐格与德梅隆的总体规划,由克里斯蒂安·凯雷兹设计,展现了当代建筑的结构美学。 设计理念 设计将建筑内部柱网结构外露作为主要立面元素,通过三种不同混凝土生产工艺实现建筑体量的韵律变化,重新诠释了古典建筑三段式构图,体现了结构即美学的设计理念。 空间与功能 建筑采用规整柱网布局,提供最大空间灵活性。核心筒和竖井作为独立元素与柱网分离,确保功能分区清晰。标准办公楼层满足多样化办公需求,与周边历史建筑形成对话。 材料与技术 采用三种混凝土生产工艺:底部三层为冲压混凝土,中间两层为振捣混凝土,顶部三层为离心混凝土。不同工艺赋予材料不同稳定性和尺寸,形成独特的立面肌理变化。 设计团队 克里斯蒂安·凯雷兹是瑞士著名建筑师,以其结构创新和材料实验著称。他的作品注重建筑与结构的统一性,在当代建筑领域具有重要影响力。 项目简介 Lyon Confluence 办公楼位于法国里昂城市更新核心区,是一座现代化办公建筑。项目基于赫尔佐格与德梅隆的总体规划,由克里斯蒂安·凯雷兹设计,展现了当代建筑的结构美学。 设计理念 设计将建筑内部柱网结构外露作为主要立面元素,通过三种不同混凝土生产工艺实现建筑体量的韵律变化,重新诠释了古典建筑三段式构图,体现了结构即美学的设计理念。 空间与功能 建筑采用规整柱网布局,提供最大空间灵活性。核心筒和竖井作为独立元素与柱网分离,确保功能分区清晰。标准办公楼层满足多样化办公需求,与周边历史建筑形成对话。 材料与技术 采用三种混凝土生产工艺:底部三层为冲压混凝土,中间两层为振捣混凝土,顶部三层为离心混凝土。不同工艺赋予材料不同稳定性和尺寸,形成独特的立面肌理变化。 设计团队 克里斯蒂安·凯雷兹是瑞士著名建筑师,以其结构创新和材料实验著称。他的作品注重建筑与结构的统一性,在当代建筑领域具有重要影响力。 本文来自 © 克里斯蒂安·凯雷兹|Christian Kerez, 发布于 © 建筑学院官方网站。 未经授权,禁止转载或摘编。 编辑版本版权归 © 建筑学院官方网站 所有, 设计、图纸及照片版权归设计方 © 克里斯蒂安·凯雷兹|Christian Kerez ↗ 所有。 查看作者在建筑学院发布的更多作品: 克里斯蒂安·凯雷兹|Christian Kerez @ 建筑学院官方网站 Lyon Confluence办公楼克里斯蒂安·凯雷兹办公建筑设计混凝土结构里昂建筑 克里斯蒂安·凯雷兹|Christian Kerez事务所 & 设计师 下载原图 收藏 0 关于作者 克里斯蒂安·凯雷兹|Christian Kerez事务所 & 设计师 关注私信 10 文章 0 评论 0 粉丝 克里斯蒂安·克雷兹(Christian Kerez)是瑞士极具影响力的建筑师和苏黎世联邦理工学院(ETH)教授。他以其突破性的设计理念和实验性的建筑实践著称,作品以鲜明的结构创新、复杂的空间叙事和前瞻性的材料运用为标志,在严谨的工程逻辑与自由的建筑表达之间建立对话。其代表作包括洛伊申巴赫学校、一墙之宅及威尼斯建筑双年展“偶然空间”等,在中国也参与了郑州超高层、北京CBD文化中心等项目。 KAIT工作坊 Kait Workshops (Kait Workshops) KAIT Workshop | 石上纯也建筑事务所|Junya Ishigami 上一篇 2025-12-03 上午8:50 伊维萨与福门特拉音乐舞蹈学院 / Music and Dance Conservatory of Ibiza and Formentera | 阿尔弗雷多·帕亚|Alfredo Payá 下一篇 2025-12-04 上午9:50 猜你喜欢 Moganshan Road 办公楼 Office Building Moganshan Road | 大卫·奇珀菲尔德建筑事务所|David Chipperfield 2025-11-27 公共建筑设计 郑州的高层建筑 Highrise in Zhengzhou 2 | 克里斯蒂安·凯雷兹|Christian Kerez 2025-12-03 公共建筑设计 国际体育科学研究所 International Sports Sciences Institute | Karamuk Kuo 建筑事务所|Karamuk Kuo 2025-10-26 公共建筑设计 卡特雷利亚住宅楼 Residential Building in Cantareira | 德莫拉建筑事务所|De Mora 2025-12-01 公共建筑设计 白井屋酒店 / 藤本壮介建筑事务所 2020-11-13 建筑设计 博卡苏尔公民区 Boca Sur Civic District | 斯米里扬·拉迪奇|Smiljan Radić 2025-11-29 公共建筑设计 发表回复 请登录后评论...登录后才能评论 提交