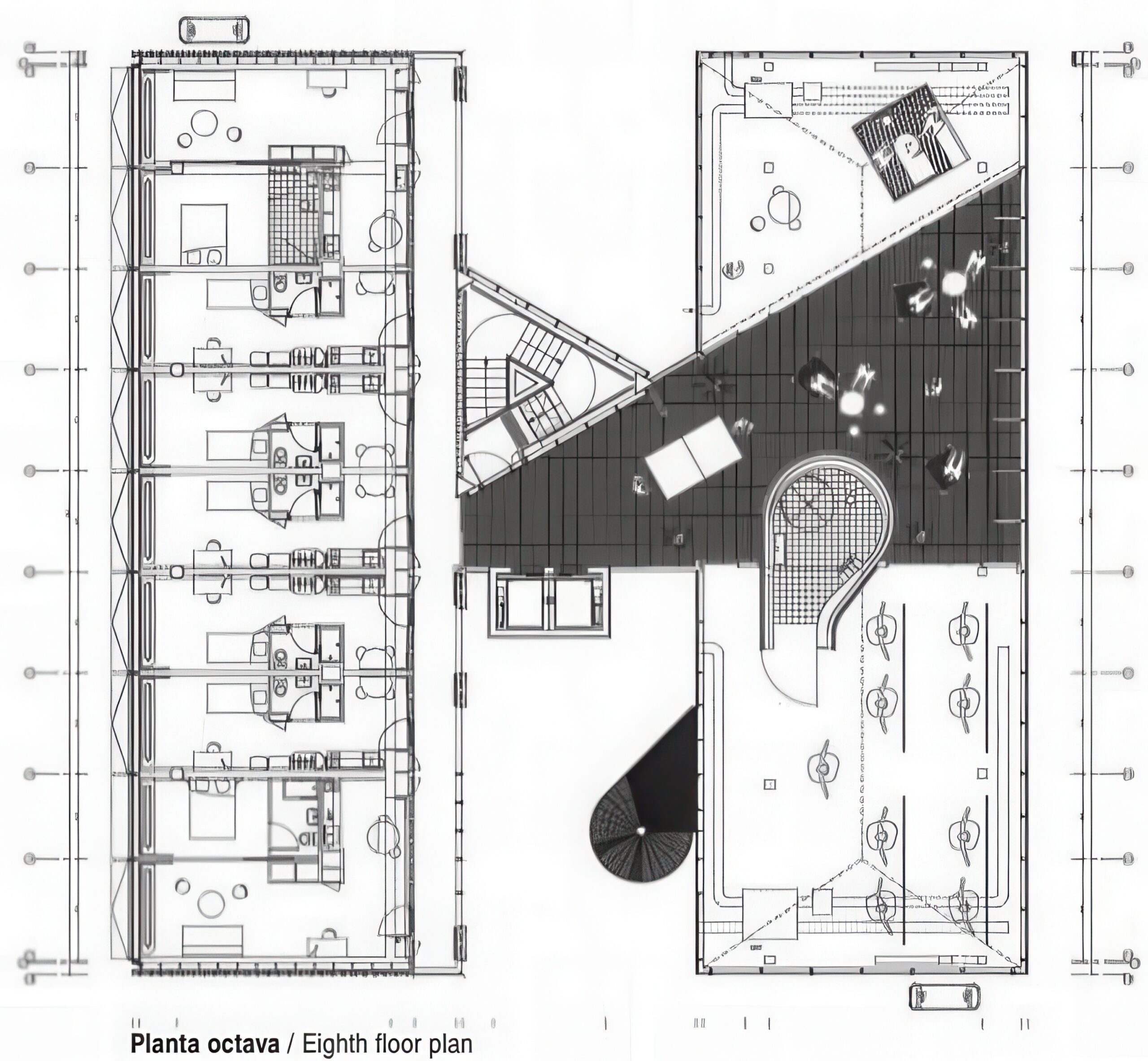
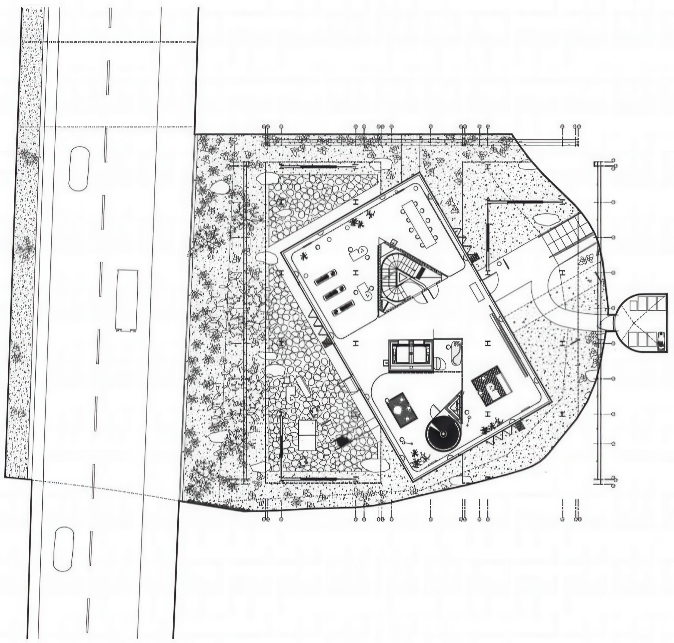
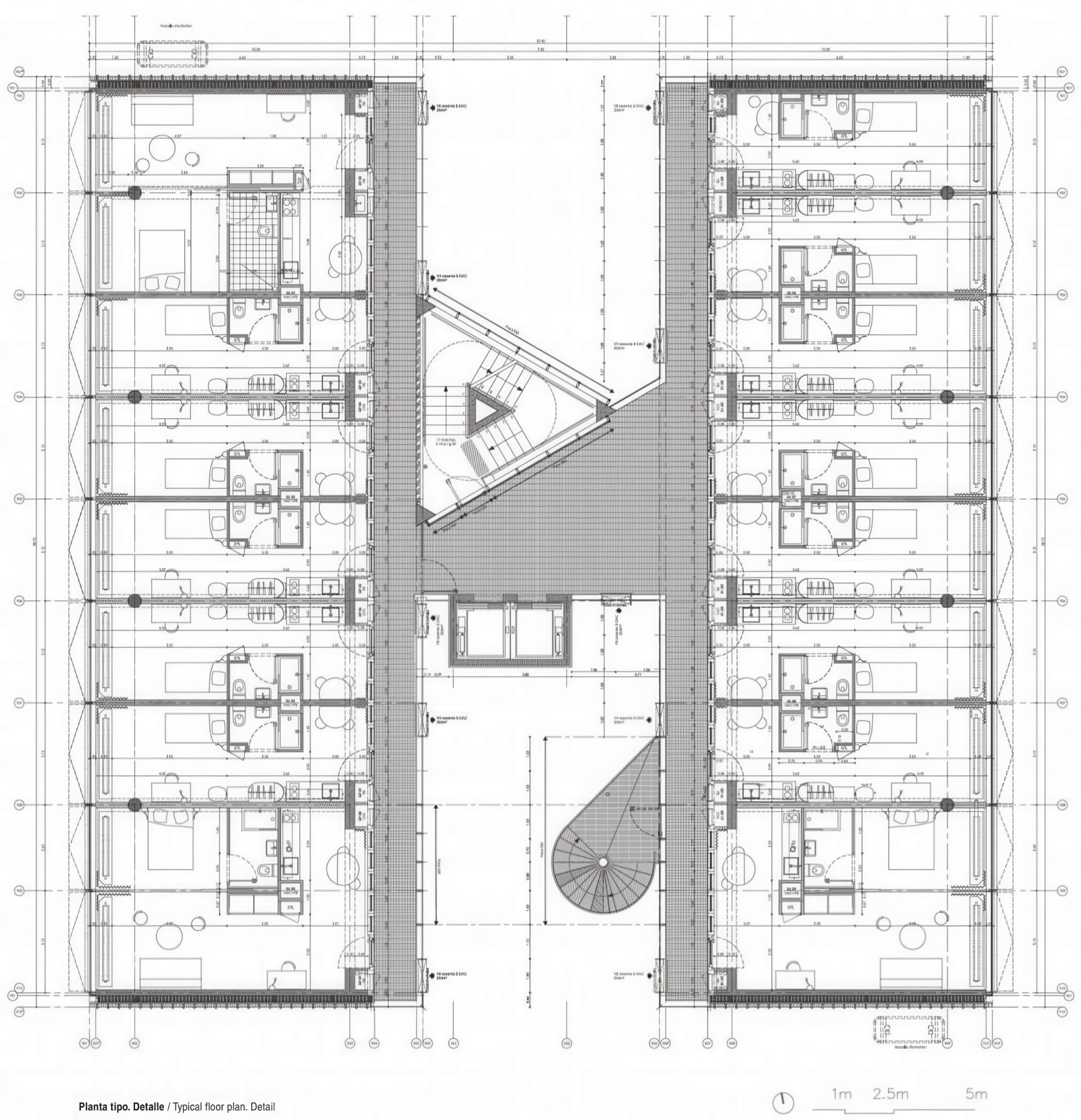
维克多·达比伊研究员住宅 Victoire Daubié Residence for Researchers | 布鲁瑟建筑事务所|Bruther 布鲁瑟建筑事务所|Bruther • 2025-11-24 上午8:50 • 公共建筑设计, 建筑师, 建筑设计, 文化建筑设计 维克多·达比伊研究员住宅位于巴黎大学城公园南缘,由布鲁瑟建筑事务所设计。这座青年研究员公寓以独特的立方体形态悬浮于半地下花园之上,采用紧凑的体量策略应对狭小场地。建筑通过高性能隔音幕墙、分层空间组织和通透的玻璃立面,在环城公路旁创造出开放明亮的居住环境,成为巴黎现代建筑收藏中的新地标。 设计: 布鲁瑟建筑事务所|Bruther 类型: 文化建筑设计 功能: 公寓住宅 风格: 当代建筑 材料: 混凝土 钢材 玻璃 金属板 尺度: 中型建筑 地点:巴黎 时间: 2017年 项目简介 维克多·达比伊研究员住宅位于法国巴黎大学城公园南缘,是一座青年研究员公寓。建筑面积1629平方米,包含106套公寓单元,建筑高度24.95米,于近年建成。 设计理念 布鲁瑟建筑事务所采用”分裂悬浮立方体”概念,通过紧凑的体量策略应对1000平方米的狭小场地。设计巧妙处理环城公路的噪音干扰,创造出既保护隐私又向城市开放的建筑形象,重新诠释了现代主义馆式建筑的当代意义。 空间与功能 建筑平面采用三条平行带状布局:两侧为居住单元,中间为交通核心。七层空间容纳106套一至四室公寓,底层设置半地下接待区和花园。顶层设有集体露台和健身房,强调建筑的集体维度。滑动隔墙设计使公寓可转变为开放式大空间。 材料与技术 建筑采用高性能隔音幕墙系统,立面由玻璃和金属构成。结构采用6.30×6.65米的紧凑网格,使用带肋纹的精致混凝土板。全高彩色窗帘在玻璃幕墙后形成独特的视觉效果,白天展现庄严气质,夜晚则如灯笼般明亮。 设计团队 布鲁瑟建筑事务所是法国知名建筑设计团队,以创新的建筑语言和对城市环境的敏锐回应著称。事务所关注建筑与城市的互动关系,在住宅、文化设施等领域有着丰富的设计经验,作品强调结构逻辑与空间体验的完美结合。 项目简介 维克多·达比伊研究员住宅位于法国巴黎大学城公园南缘,是一座青年研究员公寓。建筑面积1629平方米,包含106套公寓单元,建筑高度24.95米,于近年建成。 设计理念 布鲁瑟建筑事务所采用”分裂悬浮立方体”概念,通过紧凑的体量策略应对1000平方米的狭小场地。设计巧妙处理环城公路的噪音干扰,创造出既保护隐私又向城市开放的建筑形象,重新诠释了现代主义馆式建筑的当代意义。 空间与功能 建筑平面采用三条平行带状布局:两侧为居住单元,中间为交通核心。七层空间容纳106套一至四室公寓,底层设置半地下接待区和花园。顶层设有集体露台和健身房,强调建筑的集体维度。滑动隔墙设计使公寓可转变为开放式大空间。 材料与技术 建筑采用高性能隔音幕墙系统,立面由玻璃和金属构成。结构采用6.30×6.65米的紧凑网格,使用带肋纹的精致混凝土板。全高彩色窗帘在玻璃幕墙后形成独特的视觉效果,白天展现庄严气质,夜晚则如灯笼般明亮。 设计团队 布鲁瑟建筑事务所是法国知名建筑设计团队,以创新的建筑语言和对城市环境的敏锐回应著称。事务所关注建筑与城市的互动关系,在住宅、文化设施等领域有着丰富的设计经验,作品强调结构逻辑与空间体验的完美结合。 本文来自 © 布鲁瑟建筑事务所|Bruther, 发布于 © 建筑学院官方网站。 未经授权,禁止转载或摘编。 编辑版本版权归 © 建筑学院官方网站 所有, 设计、图纸及照片版权归设计方 © 布鲁瑟建筑事务所|Bruther ↗ 所有。 查看作者在建筑学院发布的更多作品: 布鲁瑟建筑事务所|Bruther @ 建筑学院官方网站 布鲁瑟建筑事务所|Bruther事务所 & 设计师 下载原图 收藏 0 关于作者 布鲁瑟建筑事务所|Bruther事务所 & 设计师 关注私信 20 文章 0 评论 0 粉丝 布鲁瑟建筑事务所(Bruther)由亚历克西斯·博德与斯蒂芬妮·布鲁诺创立于巴黎,是当代极具前瞻性的先锋建筑团队。他们以“动态功能”与“空间灵活性”为核心,作品横跨文化、教育及研究建筑领域,以前瞻性思维与技术精确性,创造出开放、适应性强且充满张力的建筑,持续拓展建筑实践的边界,重新定义当代建筑语言。 卢米埃大学Lyon 2大学校园学习中心 Learning Centre in Lumière Lyon 2 University campus | 布鲁瑟建筑事务所|Bruther 上一篇 2025-11-23 上午10:50 勒哈弗多功能社会文化体育设施 Multifunction Sociocultural and Sports Facility, Le Havre | 布鲁瑟建筑事务所|Bruther 下一篇 2025-11-24 下午12:50 猜你喜欢 可以作为出版社,也适合独居老人阳台养花 — 韩国“KL”出版社办公楼 2018-07-06 住宅室内设计 由BIG打造的“扭体博物馆”在挪威 kistefos 雕塑公园落成开放 2019-09-20 建筑设计 10级地震模拟,故宫模型岿然不倒!外国工匠连赞天才! 2017-07-28 建筑设计 冥想小教堂 / Lee Eunseok + ATELIER KOMA 2023-12-07 建筑设计 巨构与小人儿,筑紫森林幼儿园 / UID Architects 2021-10-14 建筑设计 “折叠”出的山地退台公寓—“托莱多城堡” 2018-10-11 住宅建筑设计 发表回复 请登录后评论...登录后才能评论 提交