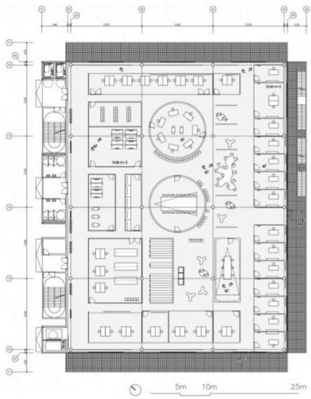
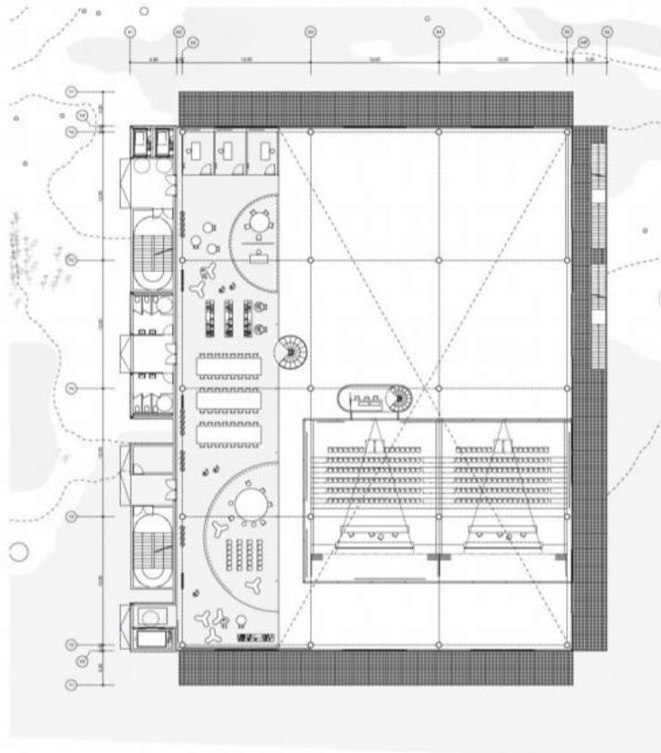
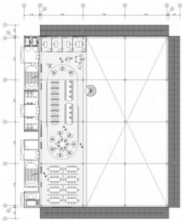
卢米埃大学Lyon 2大学校园学习中心 Learning Centre in Lumière Lyon 2 University campus | 布鲁瑟建筑事务所|Bruther 布鲁瑟建筑事务所|Bruther • 2025-11-23 上午10:50 • 公共建筑设计, 建筑师, 建筑设计, 文化建筑设计 卢米埃大学Lyon 2大学校园学习中心位于法国里昂大学校园核心区,由布鲁瑟建筑事务所设计。该项目采用简洁的平行六面体造型,通过透明玻璃幕墙展现内部活动活力。建筑巧妙利用地形高差,设置三层复式空间与夹层,提供灵活的学习与交流环境,成为连接校园与城市的重要枢纽。 设计: 布鲁瑟建筑事务所|Bruther 类型: 文化建筑设计 功能: 学校 风格: 当代建筑 材料: 混凝土 钢材 玻璃 金属板 尺度: 中型建筑 地点:法国 时间: 2018年 项目简介 卢米埃大学Lyon 2大学校园学习中心位于法国里昂大学校园核心区,是一座教育建筑,建筑面积未公开,设计于2018年竞赛中获胜。 设计理念 设计团队以简洁几何体量回应校园历史文脉,通过透明立面强化建筑与环境的对话。建筑顺应地形高差,创造多层次公共空间,促进学术交流与城市连接。 空间与功能 建筑包含三层复式空间与夹层,设有图书馆、协作学习区、实验教学空间、行政办公、咖啡厅及两个报告厅。空间组织灵活,动线清晰连接校园与城市入口。 材料与技术 采用混凝土框架结构(12×12米网格)、全玻璃幕墙、金属板覆面及聚碳酸酯面板。技术设备集中布置于西北侧,优化运营效率。 设计团队 布鲁瑟建筑事务所(Bruther)是法国知名建筑事务所,以简洁理性的设计语言、对公共建筑功能与形式的深入研究著称,作品注重空间灵活性与结构表达。 项目简介 卢米埃大学Lyon 2大学校园学习中心位于法国里昂大学校园核心区,是一座教育建筑,建筑面积未公开,设计于2018年竞赛中获胜。 设计理念 设计团队以简洁几何体量回应校园历史文脉,通过透明立面强化建筑与环境的对话。建筑顺应地形高差,创造多层次公共空间,促进学术交流与城市连接。 空间与功能 建筑包含三层复式空间与夹层,设有图书馆、协作学习区、实验教学空间、行政办公、咖啡厅及两个报告厅。空间组织灵活,动线清晰连接校园与城市入口。 材料与技术 采用混凝土框架结构(12×12米网格)、全玻璃幕墙、金属板覆面及聚碳酸酯面板。技术设备集中布置于西北侧,优化运营效率。 设计团队 布鲁瑟建筑事务所(Bruther)是法国知名建筑事务所,以简洁理性的设计语言、对公共建筑功能与形式的深入研究著称,作品注重空间灵活性与结构表达。 本文来自 © 布鲁瑟建筑事务所|Bruther, 发布于 © 建筑学院官方网站。 未经授权,禁止转载或摘编。 编辑版本版权归 © 建筑学院官方网站 所有, 设计、图纸及照片版权归设计方 © 布鲁瑟建筑事务所|Bruther ↗ 所有。 查看作者在建筑学院发布的更多作品: 布鲁瑟建筑事务所|Bruther @ 建筑学院官方网站 卢米埃大学学习中心布鲁瑟建筑事务所教育建筑混凝土结构里昂 布鲁瑟建筑事务所|Bruther事务所 & 设计师 下载原图 收藏 0 关于作者 布鲁瑟建筑事务所|Bruther事务所 & 设计师 关注私信 20 文章 0 评论 0 粉丝 布鲁瑟建筑事务所(Bruther)由亚历克西斯·博德与斯蒂芬妮·布鲁诺创立于巴黎,是当代极具前瞻性的先锋建筑团队。他们以“动态功能”与“空间灵活性”为核心,作品横跨文化、教育及研究建筑领域,以前瞻性思维与技术精确性,创造出开放、适应性强且充满张力的建筑,持续拓展建筑实践的边界,重新定义当代建筑语言。 100 11th Avenue Apartments in Chelsea | 让·努维尔建筑事务所|Jean Nouvel 上一篇 2025-11-23 上午10:50 60个社会住宅,梅里纳克 60 Social Dwellings, Merignac | 布鲁瑟建筑事务所|Bruther 下一篇 2025-11-24 上午8:50 猜你喜欢 卡特雷利亚住宅楼 Residential Building in Cantareira | 德莫拉建筑事务所|De Mora 2025-12-01 公共建筑设计 蓬皮奥购物中心修复项目 Renovation of Galeries Lafayette, Pau | 布鲁瑟建筑事务所|Bruther 2025-11-10 公共建筑设计 OpenAsia 集团总部,两个核心筒吊起的桥梁办公楼 / G8A Architecture & UrbanPlanning 2019-08-09 办公建筑设计 巴黎瑞吉大厦 Rise Building, Paris | 布鲁瑟建筑事务所|Bruther 2025-11-09 公共建筑设计 伯吉岛游泳池楼 Burgh Island Pool House | 卡莫迪·格罗克建筑事务所|Carmody Groarke 2025-11-27 公共建筑设计 成都文化艺术中心 Chengdu Centre for the Arts | MVRDV 建筑事务所 2025-10-28 公共建筑设计 发表回复 请登录后评论...登录后才能评论 提交