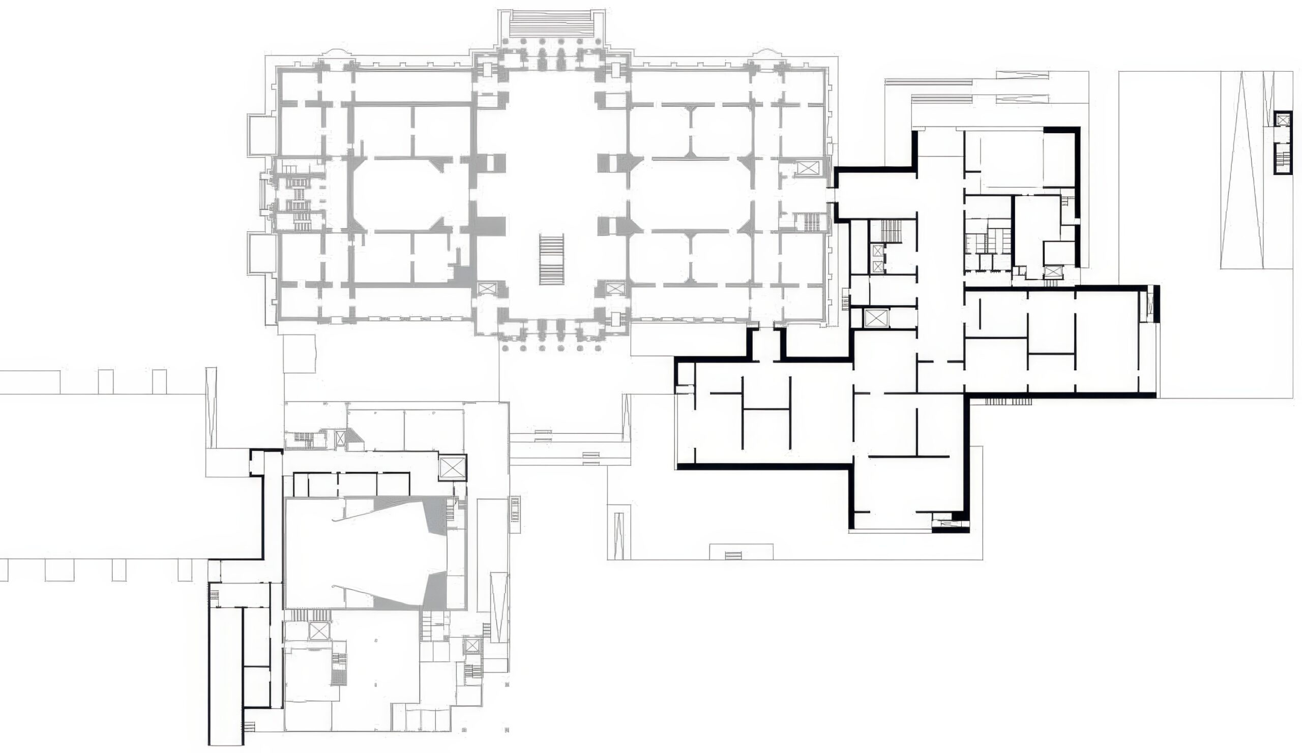
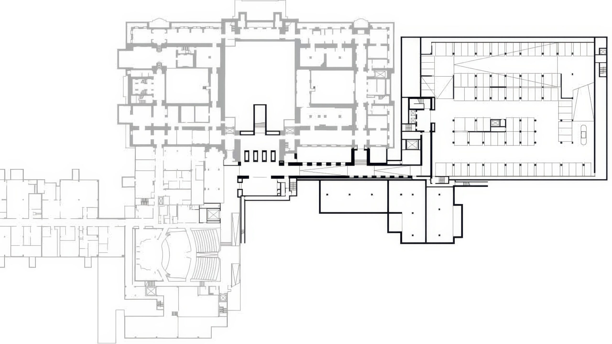
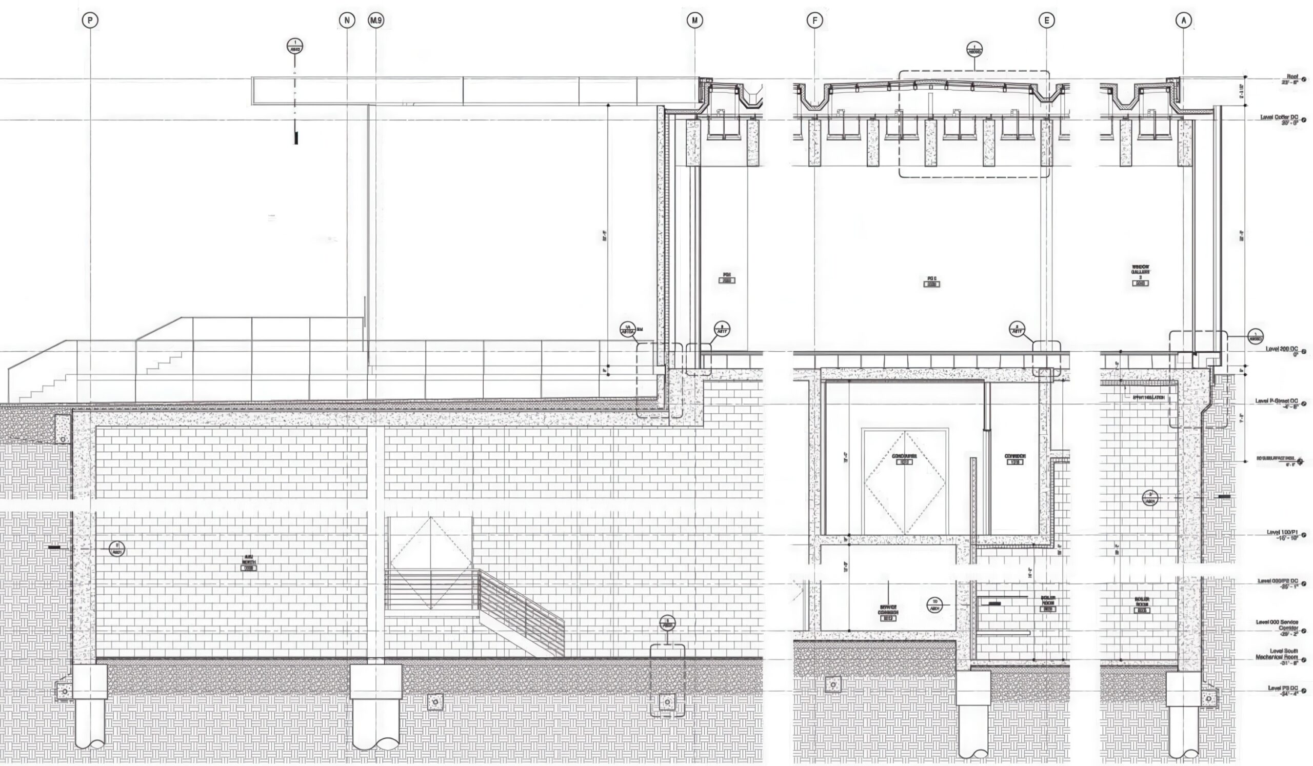
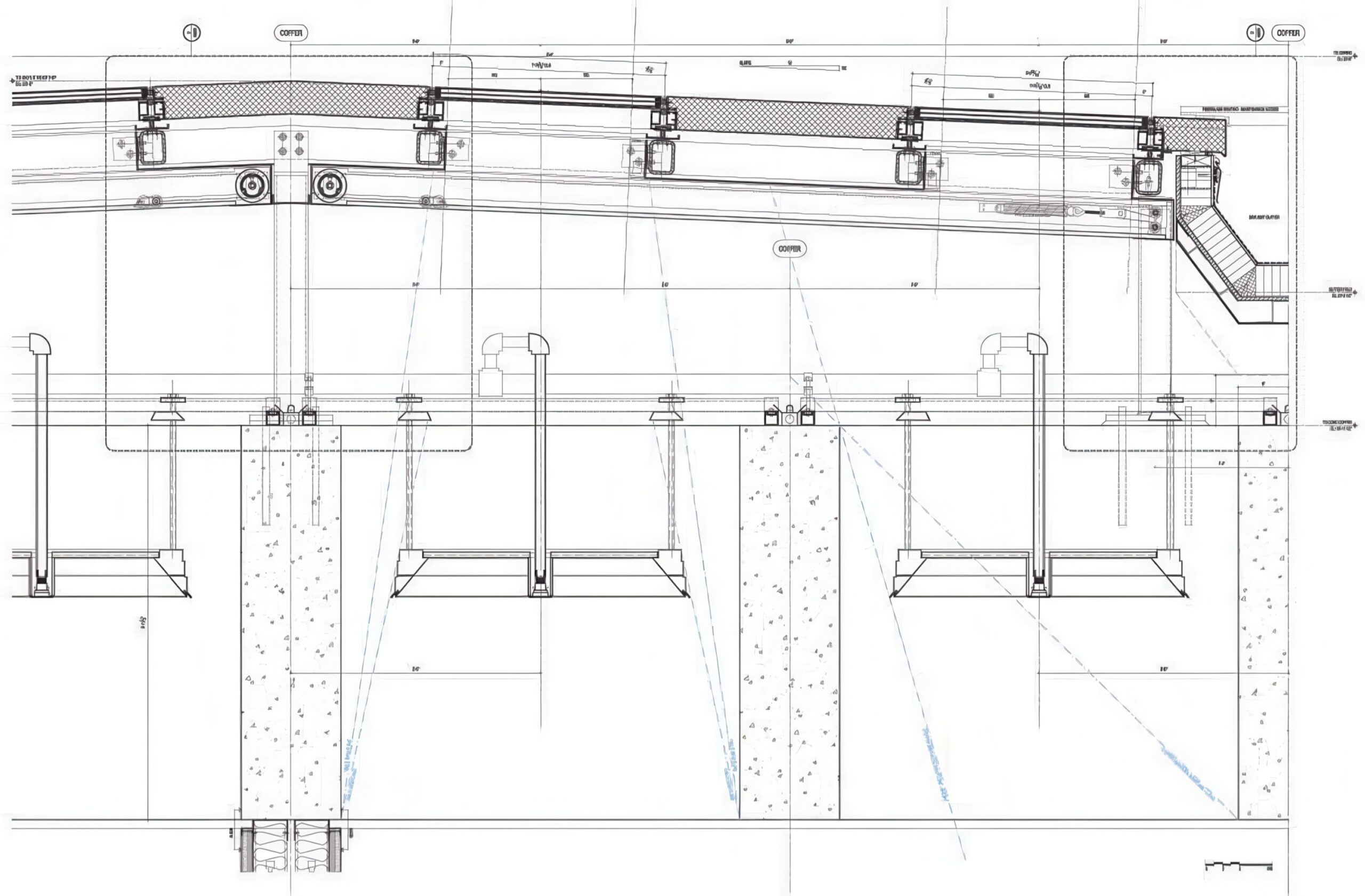
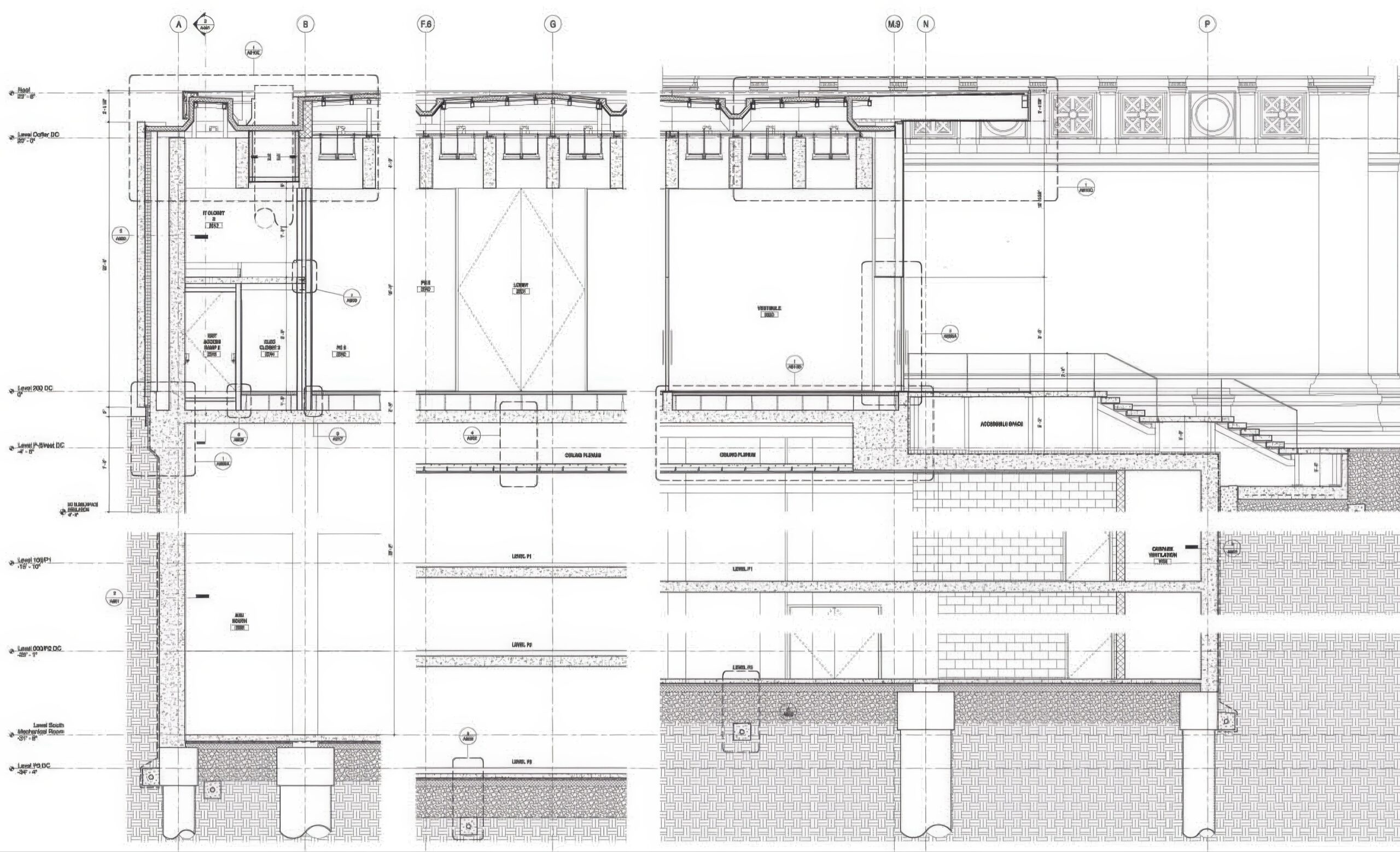
圣路易斯艺术博物馆,东楼 Saint Louis Art Museum,East Building | 大卫·奇珀菲尔德建筑事务所|David 大卫·奇珀菲尔德建筑事务所|David Chipperfield • 2025-11-25 上午8:50 • 公共建筑设计, 建筑师, 建筑设计, 文化建筑设计 圣路易斯艺术博物馆东楼位于美国密苏里州圣路易斯市森林公园内,是大卫·奇珀菲尔德建筑事务所设计的文化建筑扩建项目。这座单层展馆容纳现代与当代艺术收藏,采用深色混凝土外墙和网格混凝土天花系统,通过四个方向的退台设计最小化对公园环境的影响,实现新旧建筑的和谐过渡。 设计: 大卫·奇珀菲尔德建筑事务所|David Chipperfield 类型: 文化建筑设计 功能: 文化中心 风格: 当代建筑 材料: 混凝土 玻璃 尺度: 中型建筑 地点:美国 时间: 2010年 项目简介 圣路易斯艺术博物馆东楼位于美国密苏里州圣路易斯市森林公园,是博物馆的重要扩建项目。建筑为单层展馆形式,建筑面积未公开,设计于2010年代,2013年建成开放。 设计理念 设计尊重卡斯·吉尔伯特设计的原馆作为公园焦点的地位,采用单层展馆形式,通过四个方向从中心点进退的平面布局,将对周围环境的视觉影响降至最低。低矮基座协调公园地形,同时与吉尔伯特建筑主层对齐,实现新旧建筑的无缝过渡。 空间与功能 东楼容纳博物馆的现代与当代艺术收藏,设有临时展览空间、新博物馆商店和重要餐饮空间。四个大型落地窗提供朝向大水池、公园和新景观花园的视野。网格混凝土天花系统允许内部隔墙根据网格模块重新布置,为画廊布局提供灵活性。 材料与技术 外墙采用含有当地骨料的深色混凝土板,现场浇筑和抛光,赋予展馆在树林中的坚实存在感。屋顶为现浇混凝土网格梁系统,无中间支柱,既作为结构网格,又调节和过滤进入空间的日光。系统通过网格深度、颜色和中间材料的分层工作。 设计团队 大卫·奇珀菲尔德建筑事务所是国际知名建筑事务所,以文化建筑和城市更新项目著称,擅长通过严谨的材料运用和空间组织创造与环境和历史对话的当代建筑。 项目简介 圣路易斯艺术博物馆东楼位于美国密苏里州圣路易斯市森林公园,是博物馆的重要扩建项目。建筑为单层展馆形式,建筑面积未公开,设计于2010年代,2013年建成开放。 设计理念 设计尊重卡斯·吉尔伯特设计的原馆作为公园焦点的地位,采用单层展馆形式,通过四个方向从中心点进退的平面布局,将对周围环境的视觉影响降至最低。低矮基座协调公园地形,同时与吉尔伯特建筑主层对齐,实现新旧建筑的无缝过渡。 空间与功能 东楼容纳博物馆的现代与当代艺术收藏,设有临时展览空间、新博物馆商店和重要餐饮空间。四个大型落地窗提供朝向大水池、公园和新景观花园的视野。网格混凝土天花系统允许内部隔墙根据网格模块重新布置,为画廊布局提供灵活性。 材料与技术 外墙采用含有当地骨料的深色混凝土板,现场浇筑和抛光,赋予展馆在树林中的坚实存在感。屋顶为现浇混凝土网格梁系统,无中间支柱,既作为结构网格,又调节和过滤进入空间的日光。系统通过网格深度、颜色和中间材料的分层工作。 设计团队 大卫·奇珀菲尔德建筑事务所是国际知名建筑事务所,以文化建筑和城市更新项目著称,擅长通过严谨的材料运用和空间组织创造与环境和历史对话的当代建筑。 本文来自 © 大卫·奇珀菲尔德建筑事务所|David Chipperfield, 发布于 © 建筑学院官方网站。 未经授权,禁止转载或摘编。 编辑版本版权归 © 建筑学院官方网站 所有, 设计、图纸及照片版权归设计方 © 大卫·奇珀菲尔德建筑事务所|David Chipperfield ↗ 所有。 查看作者在建筑学院发布的更多作品: 大卫·奇珀菲尔德建筑事务所|David Chipperfield @ 建筑学院官方网站 东楼圣路易斯圣路易斯艺术博物馆大卫·奇珀菲尔德文化建筑 大卫·奇珀菲尔德建筑事务所|David Chipperfield事务所 & 设计师 下载原图 收藏 0 关于作者 大卫·奇珀菲尔德建筑事务所|David Chipperfield事务所 & 设计师 关注私信 22 文章 0 评论 1 粉丝 大卫·奇珀菲尔德建筑事务所由2023年普利兹克奖得主大卫·奇珀菲尔德爵士于1985年创立,在伦敦、柏林、米兰、上海等地设有办公室。事务所以优雅克制、注重永恒感的设计风格闻名,尤其擅长文化建筑与历史建筑改造,代表作包括柏林新博物馆重建、上海西岸美术馆和洛克外滩源项目。 克利斯堡住宅楼 Killesberg Residential Building | 大卫·奇珀菲尔德建筑事务所|David Chipperfield 上一篇 2025-11-25 上午8:50 彼得罗尔大屠杀纪念碑 Peterloo Massacre Memorial | 卡鲁索·圣约翰建筑事务所|Caruso St John 下一篇 2025-11-25 上午8:50 猜你喜欢 南伦敦美术馆 South London Gallery | 6a 建筑事务所|6a architects 2025-10-28 公共建筑设计 Turner Contemporary | 大卫·奇珀菲尔德建筑事务所|David Chipperfield 2025-11-27 公共建筑设计 成都阶梯美术馆/岩川建筑 2021-05-21 公共建筑设计 与椰风海韵共从容:中国(海南)南海博物馆 / 华南理工大学建筑设计研究院 2019-11-12 建筑设计 森林公墓中的“木瓦”礼拜堂 2018-10-19 建筑设计 嘉庚艺术中心 / 同济大学建筑设计研究院 2020-02-28 建筑设计 发表回复 请登录后评论...登录后才能评论 提交