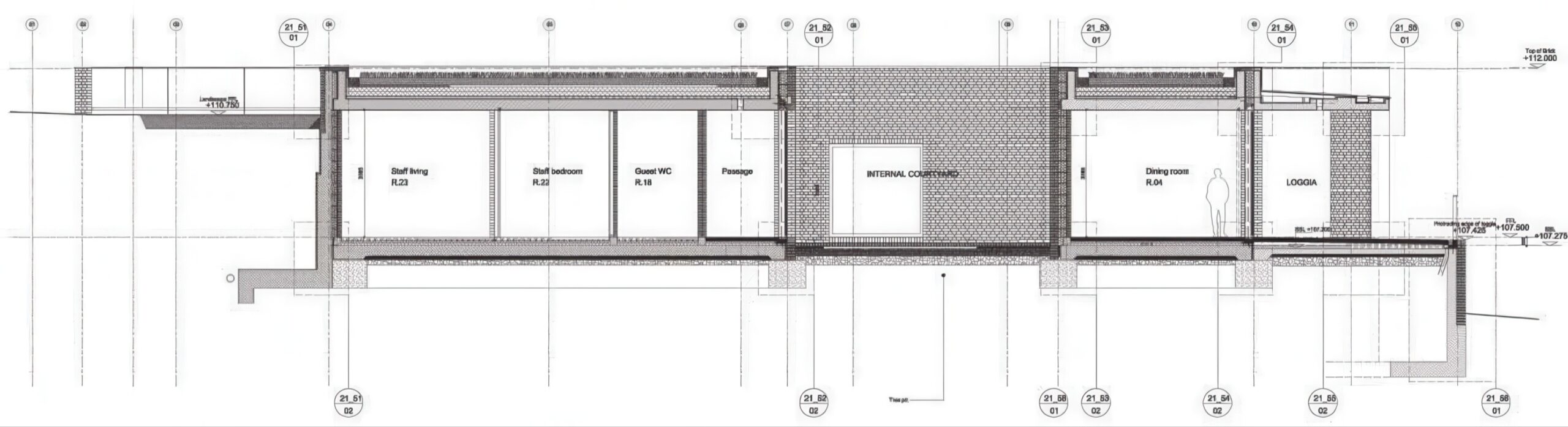
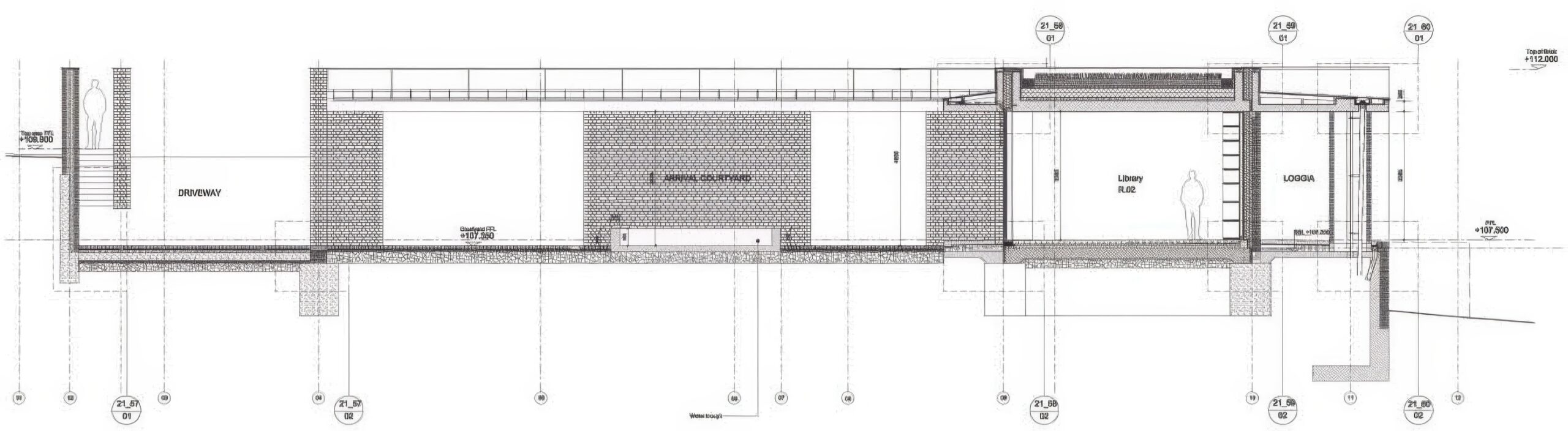
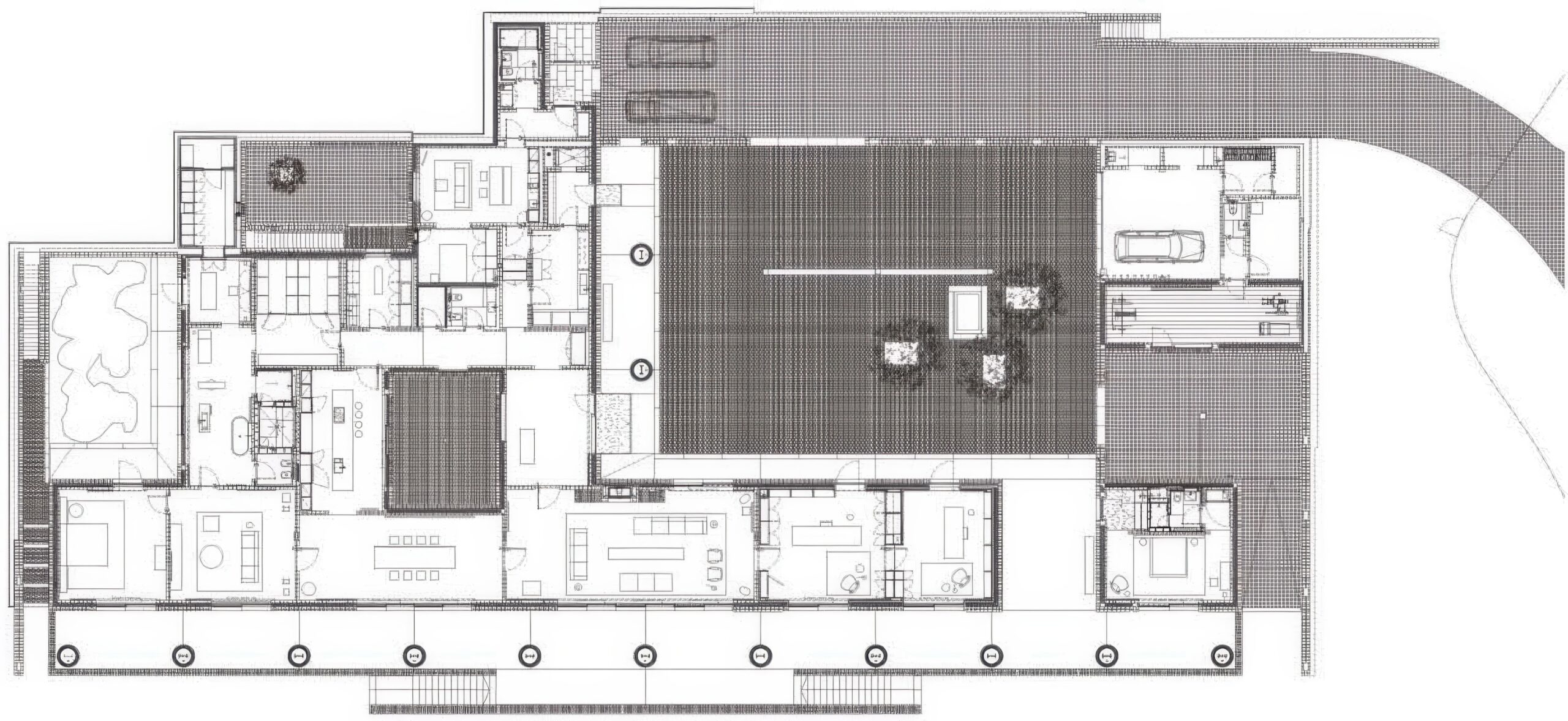
Casa Fayland | 大卫·奇珀菲尔德建筑事务所|David Chipperfield 大卫·奇珀菲尔德建筑事务所|David Chipperfield • 2025-11-25 上午8:50 • 公共建筑设计, 建筑师, 建筑设计, 文化建筑设计 Casa Fayland是由大卫·奇珀菲尔德建筑事务所设计的独立住宅,位于英国白金汉郡奇尔特恩山丘。这座单层住宅嵌入山坡,面向山谷,采用土方工程策略与景观融合。设计通过宽敞的柱廊连接室内外空间,使用白色砖材和石灰砂浆呼应当地石灰岩地质,创造自然与人工的平衡对话。 设计: 大卫·奇珀菲尔德建筑事务所|David Chipperfield 类型: 文化建筑设计 功能: 独立住宅 风格: 当代建筑 材料: 混凝土 砖材 尺度: 小型建筑 地点:英国 时间: 2019年 项目简介 Casa Fayland位于英国白金汉郡奇尔特恩山丘,是一座独立住宅项目。建筑面积未公开,设计于2009年,建成于2013年。项目坐落于杰出自然美景区,通过精心设计融入周边景观。 设计理念 设计团队以景观修复为核心策略,移除原有杂乱的建筑群,恢复传统乡村景观。建筑呈现为大型土方工程,如同山坡上的堤坝,既作为自然地形延伸,又通过砖柱表达人工构造。白色砖材呼应基地下的白垩地质,实现建筑与环境的和谐对话。 空间与功能 住宅采用单层布局,主要生活空间面向西南山谷,通过全宽柱廊连接室内外。辅助房间朝向内部庭院,提供与自然的亲密接触。四个下沉庭院各具特色,最大的作为工作区,入口庭院连接各个功能区,同时将客房与主体分离。建筑通过东北侧的坡道进入,本质上嵌入景观之中。 材料与技术 项目采用混凝土屋顶覆盖现场表土并种植本地草种,内外墙均使用白色砖材裸露呈现,石灰砂浆砌筑。这种材料选择既呼应白垩地质,又通过坚固的砖柱表达建筑的人工特质。可持续策略包括恢复原生树篱、实施林地管理系统,重建小型田野马赛克景观。 设计团队 大卫·奇珀菲尔德建筑事务所是国际知名建筑事务所,以精致简约的设计语言和对材料、环境的敏感处理著称。事务所在文化建筑、住宅设计和城市更新领域具有丰富经验,强调建筑与场所的深层对话。 项目简介 Casa Fayland位于英国白金汉郡奇尔特恩山丘,是一座独立住宅项目。建筑面积未公开,设计于2009年,建成于2013年。项目坐落于杰出自然美景区,通过精心设计融入周边景观。 设计理念 设计团队以景观修复为核心策略,移除原有杂乱的建筑群,恢复传统乡村景观。建筑呈现为大型土方工程,如同山坡上的堤坝,既作为自然地形延伸,又通过砖柱表达人工构造。白色砖材呼应基地下的白垩地质,实现建筑与环境的和谐对话。 空间与功能 住宅采用单层布局,主要生活空间面向西南山谷,通过全宽柱廊连接室内外。辅助房间朝向内部庭院,提供与自然的亲密接触。四个下沉庭院各具特色,最大的作为工作区,入口庭院连接各个功能区,同时将客房与主体分离。建筑通过东北侧的坡道进入,本质上嵌入景观之中。 材料与技术 项目采用混凝土屋顶覆盖现场表土并种植本地草种,内外墙均使用白色砖材裸露呈现,石灰砂浆砌筑。这种材料选择既呼应白垩地质,又通过坚固的砖柱表达建筑的人工特质。可持续策略包括恢复原生树篱、实施林地管理系统,重建小型田野马赛克景观。 设计团队 大卫·奇珀菲尔德建筑事务所是国际知名建筑事务所,以精致简约的设计语言和对材料、环境的敏感处理著称。事务所在文化建筑、住宅设计和城市更新领域具有丰富经验,强调建筑与场所的深层对话。 本文来自 © 大卫·奇珀菲尔德建筑事务所|David Chipperfield, 发布于 © 建筑学院官方网站。 未经授权,禁止转载或摘编。 编辑版本版权归 © 建筑学院官方网站 所有, 设计、图纸及照片版权归设计方 © 大卫·奇珀菲尔德建筑事务所|David Chipperfield ↗ 所有。 查看作者在建筑学院发布的更多作品: 大卫·奇珀菲尔德建筑事务所|David Chipperfield @ 建筑学院官方网站 Casa Fayland大卫·奇珀菲尔德独立住宅白金汉郡砖材 大卫·奇珀菲尔德建筑事务所|David Chipperfield事务所 & 设计师 下载原图 收藏 0 关于作者 大卫·奇珀菲尔德建筑事务所|David Chipperfield事务所 & 设计师 关注私信 22 文章 0 评论 1 粉丝 大卫·奇珀菲尔德建筑事务所由2023年普利兹克奖得主大卫·奇珀菲尔德爵士于1985年创立,在伦敦、柏林、米兰、上海等地设有办公室。事务所以优雅克制、注重永恒感的设计风格闻名,尤其擅长文化建筑与历史建筑改造,代表作包括柏林新博物馆重建、上海西岸美术馆和洛克外滩源项目。 Bötzow啤酒厂的改造 Conversion of Bötzow Brewery | 大卫·奇珀菲尔德建筑事务所|David Chipperfield 上一篇 2025-11-25 上午12:50 圣路易斯艺术博物馆,东楼 Saint Louis Art Museum,East Building | 大卫·奇珀菲尔德建筑事务所|David 下一篇 2025-11-25 上午8:50 猜你喜欢 折叠立面,这座住宅未来感十足 2017-08-05 独立住宅设计 遗落于荒原上的一顶草帽:绿色线条小屋 / Mobius Architects 2019-09-29 建筑设计 巴西 MS 住宅 / Jacobsen Arquitetura 2021-01-06 建筑设计 BF之家 / Paz Arquitectura 2020-02-24 建筑设计 555号私家公馆,印度 2020-08-05 建筑设计 markdown 帕内拉山谷住宅 House in Valle La Peña | 曼努埃尔·塞万提斯|Manuel Cervantes 2026-01-04 住宅建筑设计 发表回复 请登录后评论...登录后才能评论 提交