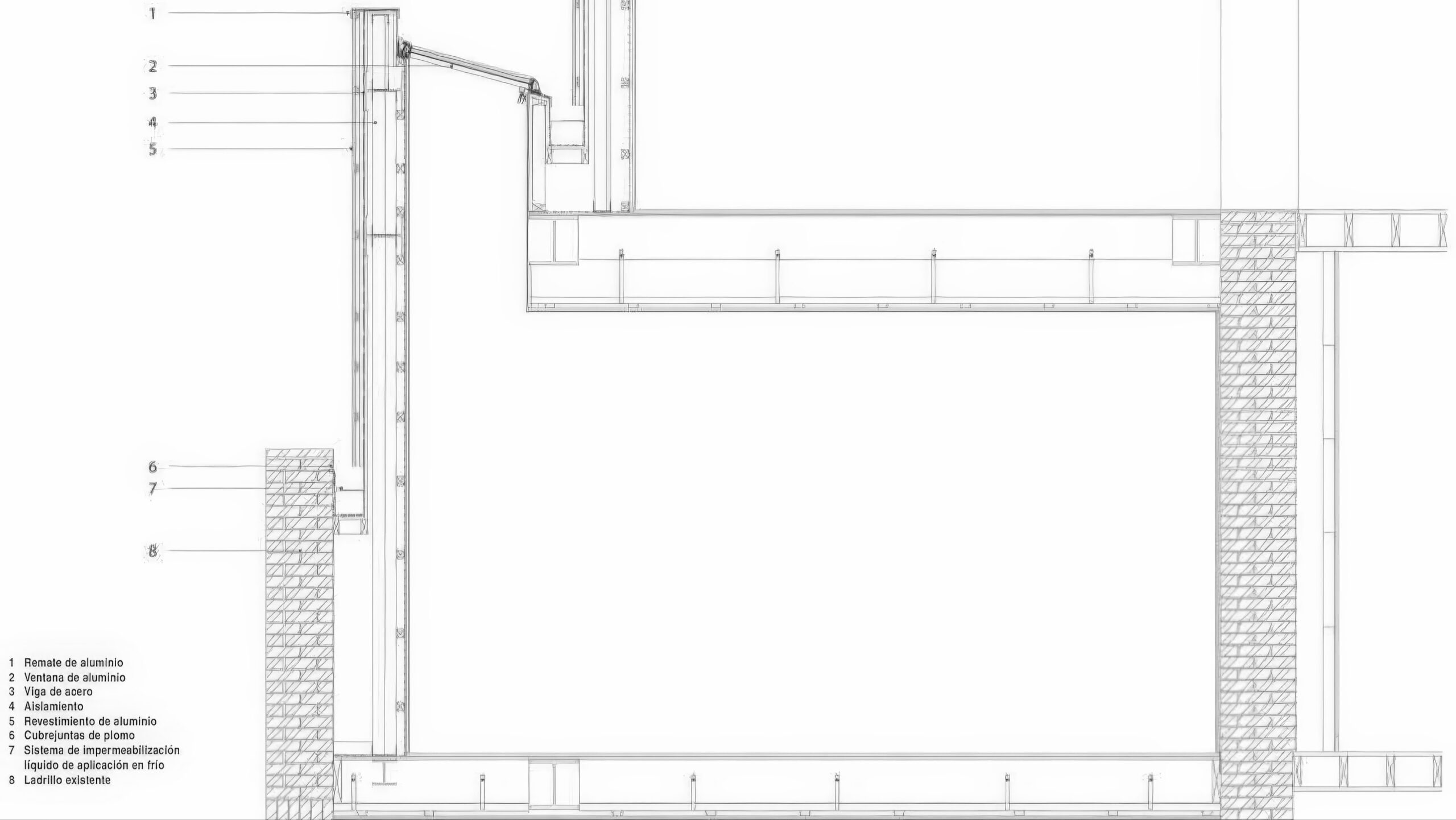
艺术家工作室,霍克斯顿 Artist Studio, Hoxton | 卡莫迪·格罗克建筑事务所|Carmody Groarke 卡莫迪·格罗克建筑事务所|Carmody Groarke • 2025-11-27 下午12:50 • 公共建筑设计, 建筑师, 建筑设计, 文化建筑设计 卡莫迪·格罗克建筑事务所为国际知名艺术家朱利安·奥佩设计的霍克斯顿艺术家工作室,位于伦敦东区工业区。项目对19世纪原有仓库进行改造扩建,新增铝板包裹的阶梯式体量,提供高挑空、顶部采光的工作空间,满足绘画、雕塑与摄影创作需求,同时确保与相邻酒店开发的隐私隔离。 设计: 卡莫迪·格罗克建筑事务所|Carmody Groarke 类型: 文化建筑设计 功能: 文化中心 风格: 当代建筑 材料: 钢材 玻璃 砖材 金属板 尺度: 小型建筑 地点:英国 时间: 2015年 项目简介 霍克斯顿艺术家工作室位于英国伦敦东区工业区,是对19世纪家具制造仓库的改造与扩建项目。建筑面积未公开,设计团队卡莫迪·格罗克建筑事务所于近年完成改造。 设计理念 设计保留原有工业建筑特征,通过新增铝板包裹的阶梯式体量形成新旧对比。核心策略是维持”发现空间”的朴素特质,同时满足艺术家对自然光照、隐私与功能扩展的需求,创造适宜创意工作的环境。 空间与功能 项目包含前部改造的原有工作室与后部新增工作区。空间组织强调流畅性,高挑空与开放式布局提供灵活创作场地。功能分区涵盖绘画、雕塑与摄影等艺术创作,顶部采光设计为雕塑展示提供特殊自然光照条件。 材料与技术 材料选择体现工业遗产特征,保留原有承重砖结构,新增铝板包覆的阶梯体量形成轻质对比。施工工艺注重原有建筑保护,改进交通流线、照明与供暖系统,同时维持建筑原有特征。 设计团队 卡莫迪·格罗克建筑事务所是英国知名建筑设计事务所,专注于文化、艺术与住宅项目,以对场地文脉的敏感回应和材料创新运用著称,作品强调建筑与环境的有机关联。 项目简介 霍克斯顿艺术家工作室位于英国伦敦东区工业区,是对19世纪家具制造仓库的改造与扩建项目。建筑面积未公开,设计团队卡莫迪·格罗克建筑事务所于近年完成改造。 设计理念 设计保留原有工业建筑特征,通过新增铝板包裹的阶梯式体量形成新旧对比。核心策略是维持”发现空间”的朴素特质,同时满足艺术家对自然光照、隐私与功能扩展的需求,创造适宜创意工作的环境。 空间与功能 项目包含前部改造的原有工作室与后部新增工作区。空间组织强调流畅性,高挑空与开放式布局提供灵活创作场地。功能分区涵盖绘画、雕塑与摄影等艺术创作,顶部采光设计为雕塑展示提供特殊自然光照条件。 材料与技术 材料选择体现工业遗产特征,保留原有承重砖结构,新增铝板包覆的阶梯体量形成轻质对比。施工工艺注重原有建筑保护,改进交通流线、照明与供暖系统,同时维持建筑原有特征。 设计团队 卡莫迪·格罗克建筑事务所是英国知名建筑设计事务所,专注于文化、艺术与住宅项目,以对场地文脉的敏感回应和材料创新运用著称,作品强调建筑与环境的有机关联。 本文来自 © 卡莫迪·格罗克建筑事务所|Carmody Groarke, 发布于 © 建筑学院官方网站。 未经授权,禁止转载或摘编。 编辑版本版权归 © 建筑学院官方网站 所有, 设计、图纸及照片版权归设计方 © 卡莫迪·格罗克建筑事务所|Carmody Groarke ↗ 所有。 查看作者在建筑学院发布的更多作品: 卡莫迪·格罗克建筑事务所|Carmody Groarke @ 建筑学院官方网站 卡莫迪·格罗克建筑事务所|Carmody Groarke事务所 & 设计师 下载原图 收藏 0 关于作者 卡莫迪·格罗克建筑事务所|Carmody Groarke事务所 & 设计师 关注私信 15 文章 0 评论 0 粉丝 卡莫迪·格罗克(Carmody Groarke)是一家位于伦敦的建筑事务所,由凯文·卡莫迪(Kevin Carmody)和安迪·格罗克(Andy Groarke)于2006年共同创立。该事务所以其在国际范围内开展的一系列艺术、文化和遗产项目而闻名。他们善于通过精巧的建筑介入,对特定的场地文脉与历史做出深刻而细腻的当代回应,其作品范围涵盖大型公共装置、美术馆、酒店以及私人住宅等多个领域,形成了独特的设计语言。 和平之家 House of Peace | 石上纯也建筑事务所|Junya Ishigami 上一篇 2025-11-27 下午12:50 临时马蒂斯博物馆 马蒂斯博物馆 Temporary Museum for Charles Rennie Mackintosh’s Hill House | 卡莫迪·格罗克建筑事务所|Carmody Groarke 下一篇 2025-11-27 下午12:50 猜你喜欢 陶土展馆 / Clay Pavilion in Oaxaca | 阿尔瓦罗·西扎|Álvaro Siza 2026-03-05 公共建筑设计 Ferrum 1 办公大楼 / Tchoban Voss Architekten 2021-08-30 办公建筑设计 只有建筑师们才能理解的生活日常,你经历过吗? 2019-05-28 建筑设计 墨西哥设计周混凝土拼图打造的鼓泡展馆 / Gerardo Broissin 2019-11-07 公共建筑设计 以月圆月缺为灵感而设计的SALA查汶海滩度假村 2018-06-26 酒店建筑设计 《大师100例》- 乡土建筑 2021-08-13 建筑设计 发表回复 请登录后评论...登录后才能评论 提交