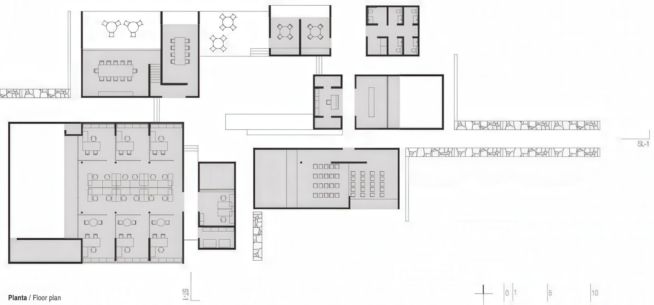
Next Hydroponic Plant Next Hydroponic Plant | 曼努埃尔·塞万提斯|Manuel Cervantes 曼努埃尔·塞万提斯|Manuel Cervantes • 2025-12-04 上午8:50 • 公共建筑设计, 建筑师, 建筑设计, 文化建筑设计 Next Hydroponic Plant Next Hydroponic Plant 是由曼努埃尔·塞万提斯设计的办公建筑项目,位于墨西哥农业区。该项目巧妙地将办公空间置于两个绿叶蔬菜生产车间之间,通过分散式体量布局和连接性顶板设计,创造了人性化的工作环境,同时实现了生产与行政区域之间的视觉联系。 设计: 曼努埃尔·塞万提斯|Manuel Cervantes 类型: 文化建筑设计 功能: 办公楼 风格: 当代建筑 材料: 混凝土 钢材 玻璃 石材 尺度: 小型建筑 地点:墨西哥 时间: 2020年 项目简介 Next Hydroponic Plant Next Hydroponic Plant 位于墨西哥农业区,是一座办公建筑,建筑面积约800平方米,设计于2020年,2022年建成。 设计理念 设计团队以创造亲切的工作氛围为核心目标,摆脱传统企业办公模式,强调各部门间的互动交流。项目充分利用农业景观环境,通过分散体量布局和连接性顶板设计,实现建筑与自然的和谐共生。 空间与功能 项目将办公功能分解为多个独立体量,间距数米,形成绿色庭院和花园空间。主要功能包括行政办公区、休息区、会议室和户外休息空间,通过庭院和连廊实现空间连接,促进员工交流互动。 材料与技术 建筑采用钢筋混凝土结构,使用Santo Tomás大理石地面、金属支柱和石膏板吊顶。设计注重自然通风和采光,通过顶板开口引入天光,同时提供遮阳保护,实现可持续的环境控制。 设计团队 曼努埃尔·塞万提斯|Manuel Cervantes 是墨西哥知名建筑事务所,专注于住宅、商业和文化建筑项目,以对场地环境的敏感回应和材料运用的精确性著称。 项目简介 Next Hydroponic Plant Next Hydroponic Plant 位于墨西哥农业区,是一座办公建筑,建筑面积约800平方米,设计于2020年,2022年建成。 设计理念 设计团队以创造亲切的工作氛围为核心目标,摆脱传统企业办公模式,强调各部门间的互动交流。项目充分利用农业景观环境,通过分散体量布局和连接性顶板设计,实现建筑与自然的和谐共生。 空间与功能 项目将办公功能分解为多个独立体量,间距数米,形成绿色庭院和花园空间。主要功能包括行政办公区、休息区、会议室和户外休息空间,通过庭院和连廊实现空间连接,促进员工交流互动。 材料与技术 建筑采用钢筋混凝土结构,使用Santo Tomás大理石地面、金属支柱和石膏板吊顶。设计注重自然通风和采光,通过顶板开口引入天光,同时提供遮阳保护,实现可持续的环境控制。 设计团队 曼努埃尔·塞万提斯|Manuel Cervantes 是墨西哥知名建筑事务所,专注于住宅、商业和文化建筑项目,以对场地环境的敏感回应和材料运用的精确性著称。 本文来自 © 曼努埃尔·塞万提斯|Manuel Cervantes, 发布于 © 建筑学院官方网站。 未经授权,禁止转载或摘编。 编辑版本版权归 © 建筑学院官方网站 所有, 设计、图纸及照片版权归设计方 © 曼努埃尔·塞万提斯|Manuel Cervantes ↗ 所有。 查看作者在建筑学院发布的更多作品: 曼努埃尔·塞万提斯|Manuel Cervantes @ 建筑学院官方网站 Next Hydroponic Plant办公建筑墨西哥曼努埃尔·塞万提斯混凝土 曼努埃尔·塞万提斯|Manuel Cervantes事务所 & 设计师 下载原图 收藏 0 关于作者 曼努埃尔·塞万提斯|Manuel Cervantes事务所 & 设计师 关注私信 19 文章 0 评论 0 粉丝 曼努埃尔·塞万提斯是墨西哥极具影响力的新生代建筑师。他的事务所以对材料、光线与构造的深刻理解和娴熟运用而闻名,尤其擅长运用夯土、木材和混凝土等本土材料,创造出与场地和环境紧密相连的现代建筑。其作品涵盖住宅、文化及商业项目,展现了简洁、宁静而富有 tactile 质感的设计美学。 郑州的高层建筑 Highrise in Zhengzhou 2 | 克里斯蒂安·凯雷兹|Christian Kerez 上一篇 2025-12-03 上午8:50 伊维萨与福门特拉音乐舞蹈学院 / Music and Dance Conservatory of Ibiza and Formentera | 阿尔弗雷多·帕亚|Alfredo Payá 下一篇 2025-12-04 上午9:50 猜你喜欢 灵活游走于松林之间的石头小屋 2018-09-22 住宅建筑设计 模块舱体,医护人员临时空间 / Revolution 2021-08-23 建筑设计 Equestrian Puebla,马术综合体,普埃布拉,曼努埃尔·塞万提斯,大理石,分层布局 2025-12-09 公共建筑设计 ‘迷雾’建筑,树在建筑中?还是建筑在树中? 2018-02-28 住宅建筑设计 诺曼底办公室大楼 Office Building, Nantes | 拉卡东与瓦萨尔建筑师事务所|Lacaton & Vassal 2025-11-10 公共建筑设计 通透的卡萨·塞基斯小屋——混凝土,钢和玻璃的协奏曲 2018-01-31 独立住宅设计 发表回复 请登录后评论...登录后才能评论 提交