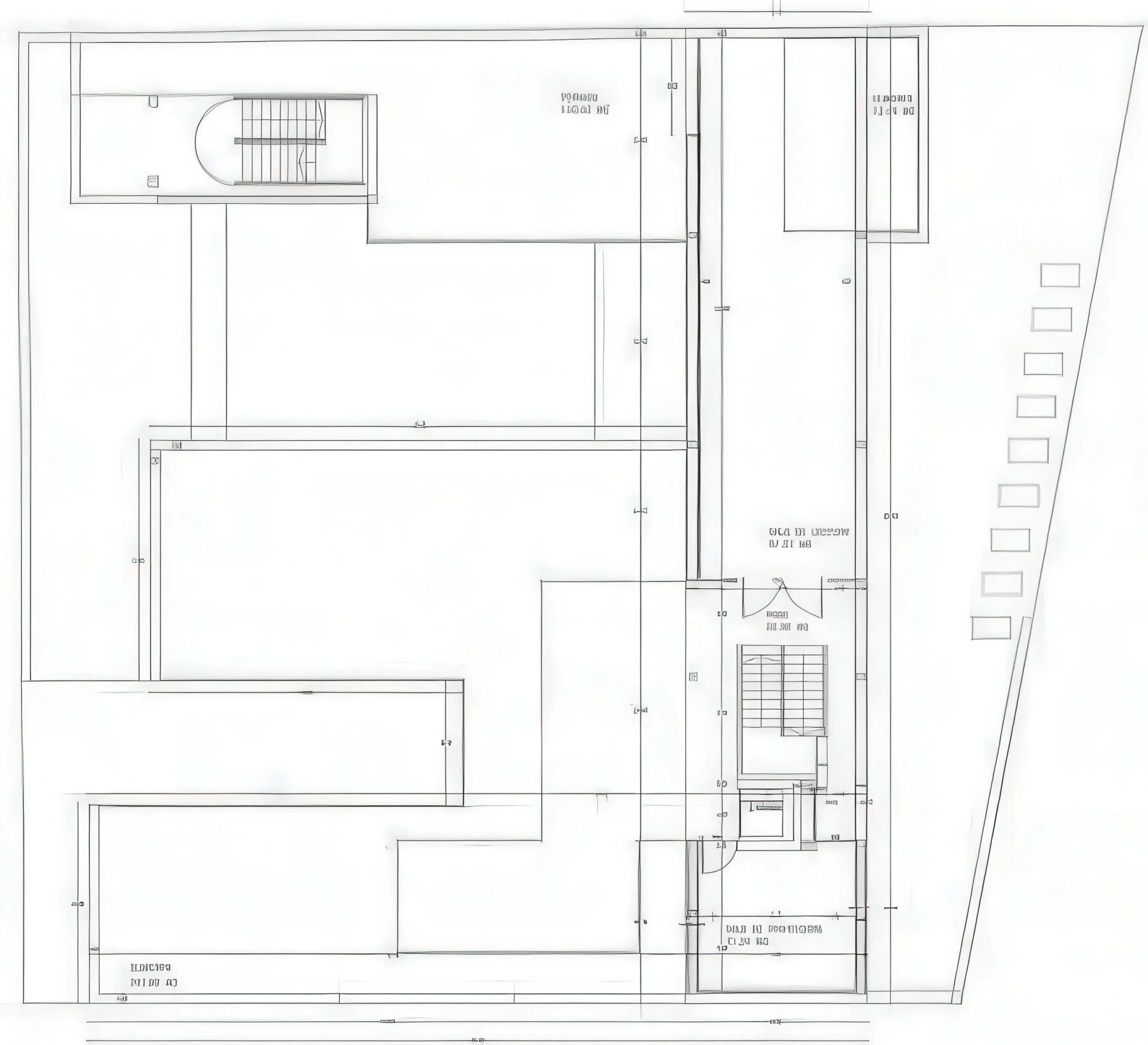
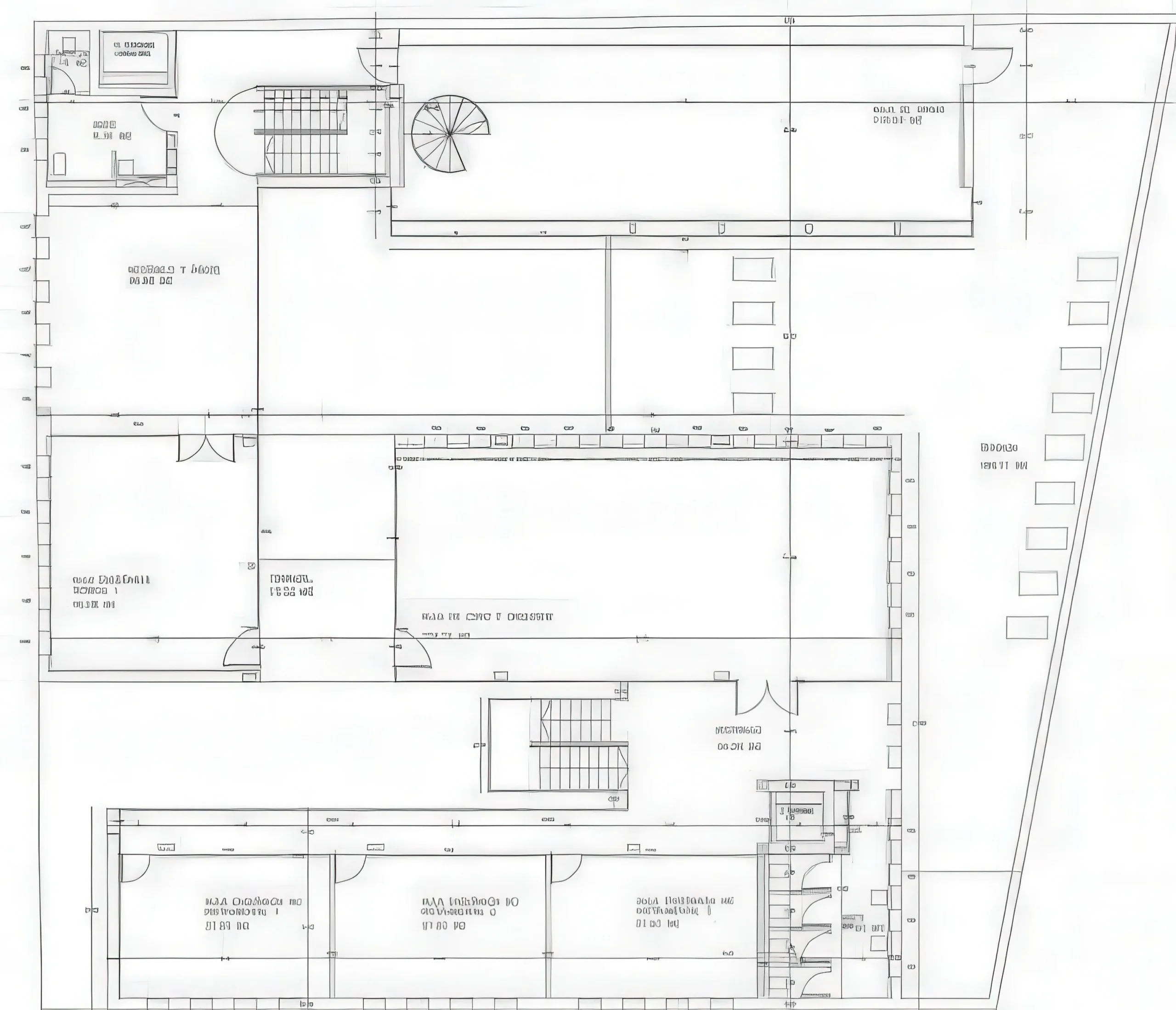
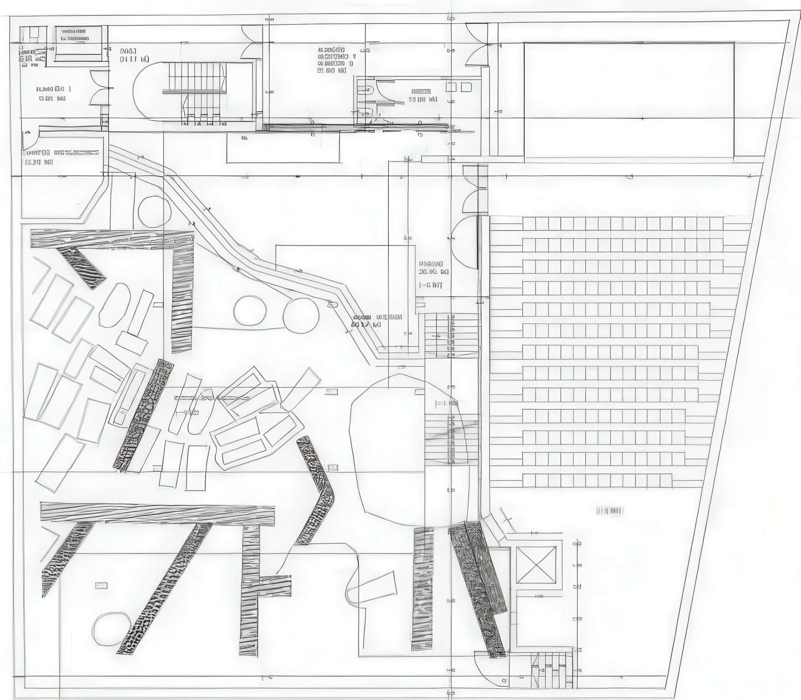
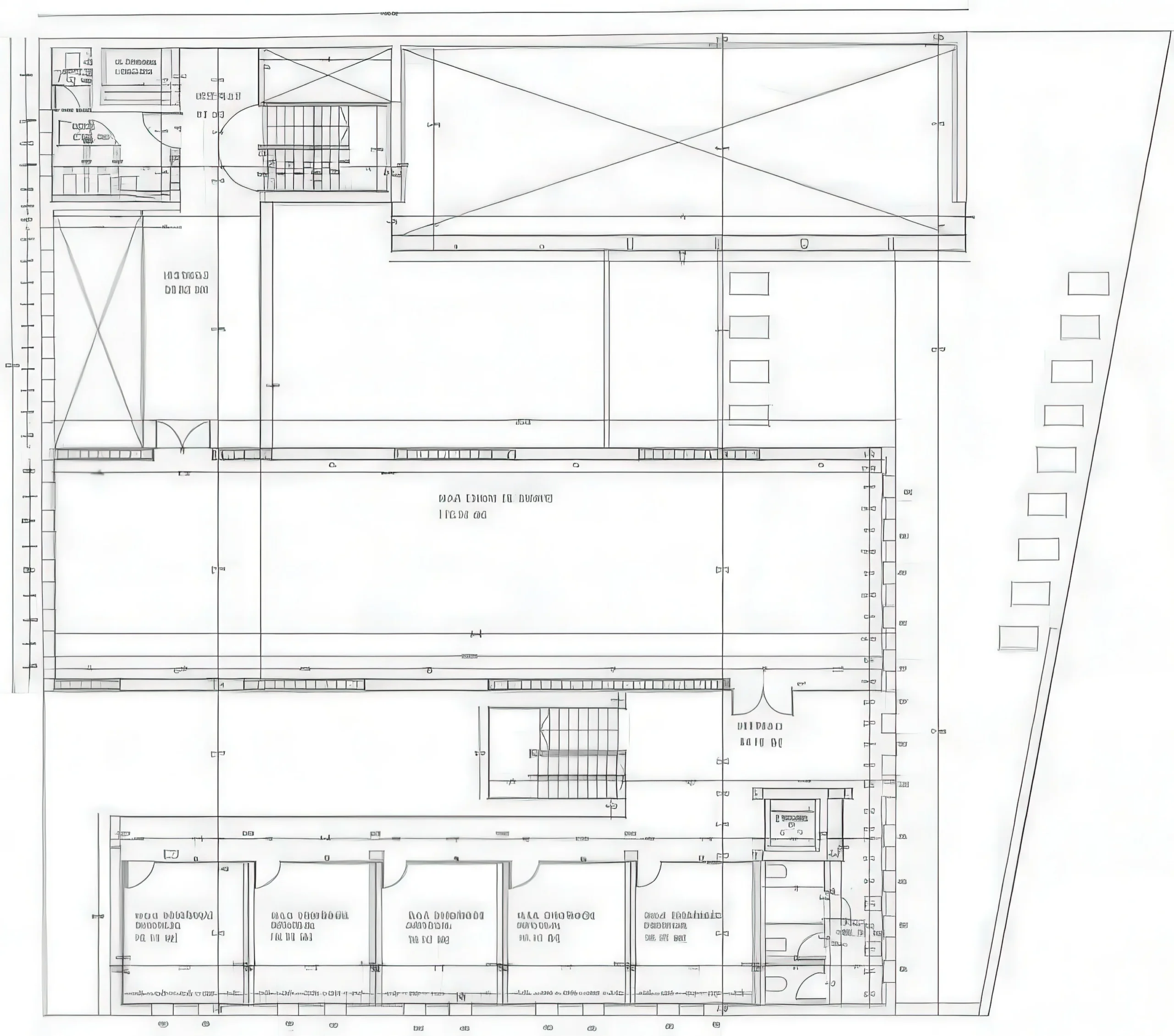
伊维萨与福门特拉音乐舞蹈学院 / Music and Dance Conservatory of Ibiza and Formentera | 阿尔弗雷多·帕亚|Alfredo Payá 阿尔弗雷多·帕亚|Alfredo Payá • 51分钟前 • 公共建筑设计, 建筑师, 建筑设计, 文化建筑设计 伊维萨与福门特拉音乐舞蹈学院由阿尔弗雷多·帕亚设计,位于西班牙伊维萨岛,是一座集音乐与舞蹈教育功能于一体的文化建筑。项目通过三个独立体块的巧妙组合,创造出一个充满地中海风情的公共空间与教育场所,将城市、花园与建筑融为一体。 设计: 阿尔弗雷多·帕亚|Alfredo Payá 类型: 文化建筑设计 功能: 学校 风格: 当代建筑 材料: 混凝土 钢材 玻璃 金属板 尺度: 中型建筑 地点:伊维萨 时间: 2014年 项目概述 伊维萨与福门特拉音乐舞蹈学院位于西班牙伊维萨岛,是一座集音乐与舞蹈教育功能的文化建筑。项目由阿尔弗雷多·帕亚设计,通过三个独立体块的组合,创造出丰富的空间体验与公共活动场所。 设计理念 设计团队以“相遇之地”为核心理念,创造了一个介于城市与建筑、音乐与舞蹈、花园与室内之间的公共空间。项目通过两个独立体块的对话与连接,形成了一种动态的空间关系,回应了地中海地区的气候特征与文化语境。 空间与功能 伊维萨与福门特拉音乐舞蹈学院由三个主要部分组成:音乐学校、舞蹈学校以及包含图书馆、多功能厅和礼堂的公共空间。流通空间被设计为可供学生练习与表演的动态区域,这些空间与花园相连,创造出类似在田野漫步、海滩聚会或公园休憩的体验。 材料与技术 建筑外部采用带有穿孔的混凝土墙体,适应模板尺寸并展现强烈的城市特征;内部则使用玻璃立面建立多重视觉关系。桥梁结构采用穿孔金属板包裹的大型梁,其余部分包括清水混凝土板、铝制地板和窗框以及轻质隔墙。水平面设计为屋顶花园,种植仙人掌、龙舌兰、棕榈树等地中海植物。 项目特色与启发 伊维萨与福门特拉音乐舞蹈学院的独特之处在于其将教育功能与公共空间完美融合,创造出一种“非建筑”的空间体验。项目对建筑师在文化建筑设计中如何平衡功能需求、气候响应与空间品质提供了重要参考。 设计团队 阿尔弗雷多·帕亚是一位专注于建筑与城市设计的建筑师,其作品强调空间品质与环境的和谐关系。在本项目中,团队通过精心的空间组织与材料选择,成功创造了一个既满足教育功能又富有公共性的建筑作品。 项目概述 伊维萨与福门特拉音乐舞蹈学院位于西班牙伊维萨岛,是一座集音乐与舞蹈教育功能的文化建筑。项目由阿尔弗雷多·帕亚设计,通过三个独立体块的组合,创造出丰富的空间体验与公共活动场所。 设计理念 设计团队以“相遇之地”为核心理念,创造了一个介于城市与建筑、音乐与舞蹈、花园与室内之间的公共空间。项目通过两个独立体块的对话与连接,形成了一种动态的空间关系,回应了地中海地区的气候特征与文化语境。 空间与功能 伊维萨与福门特拉音乐舞蹈学院由三个主要部分组成:音乐学校、舞蹈学校以及包含图书馆、多功能厅和礼堂的公共空间。流通空间被设计为可供学生练习与表演的动态区域,这些空间与花园相连,创造出类似在田野漫步、海滩聚会或公园休憩的体验。 材料与技术 建筑外部采用带有穿孔的混凝土墙体,适应模板尺寸并展现强烈的城市特征;内部则使用玻璃立面建立多重视觉关系。桥梁结构采用穿孔金属板包裹的大型梁,其余部分包括清水混凝土板、铝制地板和窗框以及轻质隔墙。水平面设计为屋顶花园,种植仙人掌、龙舌兰、棕榈树等地中海植物。 项目特色与启发 伊维萨与福门特拉音乐舞蹈学院的独特之处在于其将教育功能与公共空间完美融合,创造出一种“非建筑”的空间体验。项目对建筑师在文化建筑设计中如何平衡功能需求、气候响应与空间品质提供了重要参考。 设计团队 阿尔弗雷多·帕亚是一位专注于建筑与城市设计的建筑师,其作品强调空间品质与环境的和谐关系。在本项目中,团队通过精心的空间组织与材料选择,成功创造了一个既满足教育功能又富有公共性的建筑作品。 本文来自 © 阿尔弗雷多·帕亚|Alfredo Payá, 发布于 © 建筑学院官方网站。 未经授权,禁止转载或摘编。 编辑版本版权归 © 建筑学院官方网站 所有, 设计、图纸及照片版权归设计方 © 阿尔弗雷多·帕亚|Alfredo Payá ↗ 所有。 查看作者在建筑学院发布的更多作品: 阿尔弗雷多·帕亚|Alfredo Payá @ 建筑学院官方网站 阿尔弗雷多·帕亚|Alfredo Payá事务所 & 设计师 下载原图 收藏 0 关于作者 阿尔弗雷多·帕亚|Alfredo Payá事务所 & 设计师 关注私信 8 文章 0 评论 0 粉丝 阿尔弗雷多·帕亚(Alfredo Payá)是西班牙知名建筑师,1988年在阿利坎特成立工作室,后于2005年创立noame 29事务所。其作品深植于地中海地域文脉,强调消除公共与私有、室内与室外之间的界限。帕亚秉持“设计建筑使它像一座山”而非“设计一座像山的建筑”的深层概念性理念,避免表面隐喻。他注重建筑的物质一致性而非具体材料选择,代表作包括迈格莫山住宅、阿里坎特大学博物馆及32间公共住宅等,融合环境、气候与功能,展现其将建筑延伸至周边环境的独特哲学。 Next Hydroponic Plant Next Hydroponic Plant | 曼努埃尔·塞万提斯|Manuel Cervantes 上一篇 1小时前 捷克彩虹教堂“Beatified Restituta” / Atelier Stepan 下一篇 2020-10-10 上午8:30 猜你喜欢 Studio Gang“纽约第十大道 40 号塔楼”已竣工 2019-08-19 办公建筑设计 藤爿山居,乡村建筑的现代性建构 / MV建筑工作室 2019-06-05 住宅建筑设计 坦普尔大学查尔斯图书馆 / Snøhetta 2019-09-23 建筑设计 利默里克大学医学院和宿舍楼 / Grafton Architects 2020-03-09 医疗建筑 华东师范大学附属双语幼儿园 / 山水秀建筑事务所 2017-04-12 教育建筑设计 上海嘉杰国际广场改造 / AIM 2021-09-07 城市综合体 发表回复 请登录后评论...登录后才能评论 提交