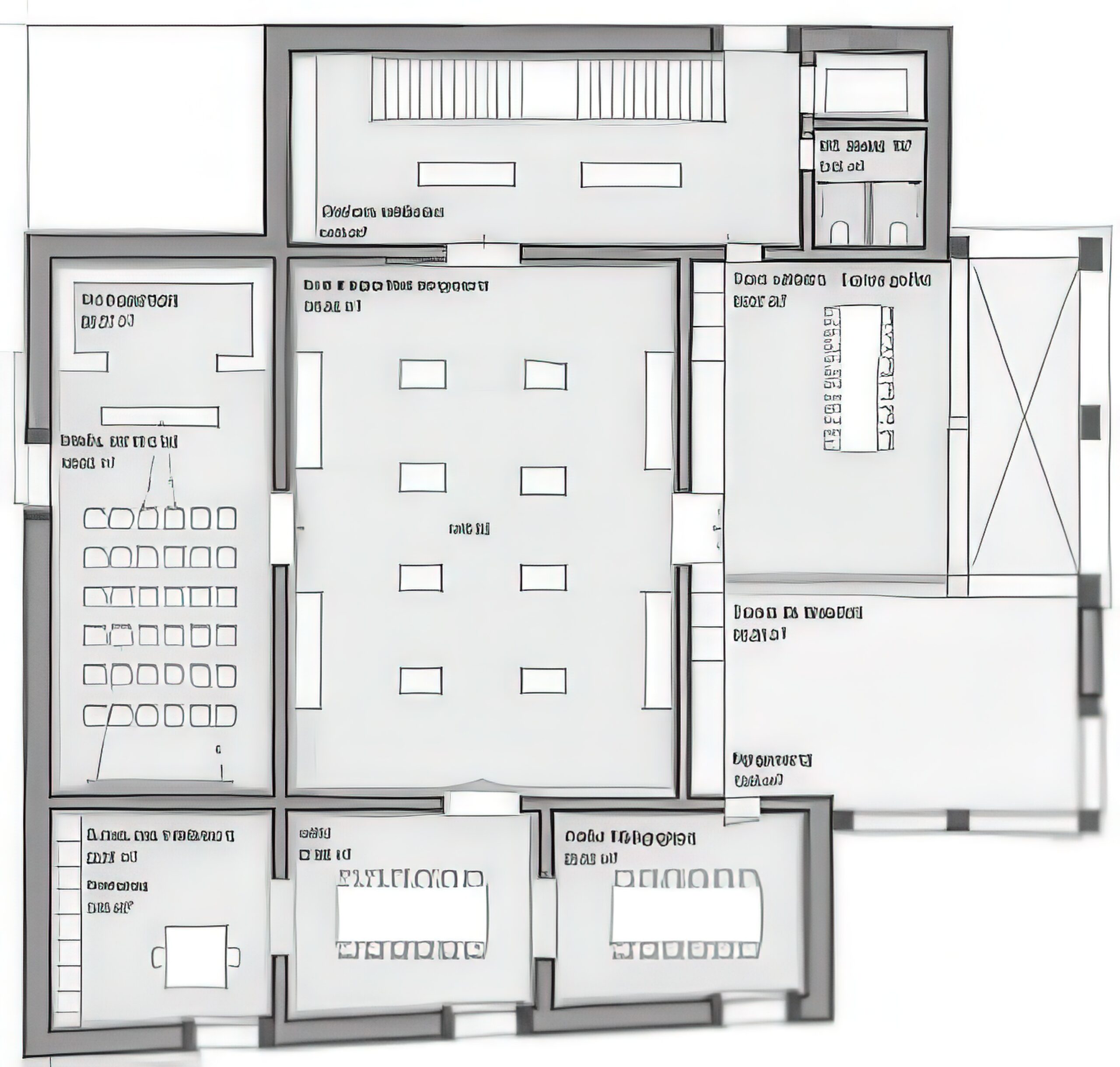
罗马别墅博物馆 Museum for a Roman Villa | 卡鲁索·圣约翰建筑事务所|Caruso St John 卡鲁索·圣约翰建筑事务所|Caruso St John • 2025-12-04 上午8:50 • 公共建筑设计, 建筑师, 建筑设计, 文化建筑设计 罗马别墅博物馆是位于瑞士普利的一座文化建筑,由卡鲁索·圣约翰建筑事务所设计。该项目在2017年竞赛中获得第三名,通过立方体体量与优雅的罗马别墅比例相呼应,创造性地连接市政厅与新建罗马花园,形成城市中心公共空间。 设计: 卡鲁索·圣约翰建筑事务所|Caruso St John 类型: 文化建筑设计 功能: 博物馆 风格: 当代建筑 材料: 混凝土 玻璃 石材 尺度: 中型建筑 地点:瑞士 时间: 2017年 项目简介 罗马别墅博物馆位于瑞士普利,是一座文化建筑,建筑面积约1500平方米。该项目为2017年竞赛第三名方案,旨在通过现代设计语言重新诠释古罗马别墅的空间特质。 设计理念 设计团队以古罗马别墅的优雅比例为灵感,采用立方体体量创造与市政厅建筑的积极对话。建筑西向布局形成中央广场,巧妙连接现有葡萄园与新建罗马花园,重塑城市中心空间格局。 空间与功能 博物馆组织为三层结构,每层高5米。访客从中层入口进入10米高空间,俯瞰下层考古遗址。上层设封闭式临时展厅,周边布置教育设施、咖啡馆和观景廊,新建罗马花园作为博物馆的自然延伸。 材料与技术 建筑采用混凝土框架结构,外立面呼应罗马别墅的几何比例。设计注重室内外空间联系,通过大面积开窗建立与景观的视觉对话,延续古罗马凉廊与环境的传统关系。 设计团队 卡鲁索·圣约翰建筑事务所是英国知名建筑事务所,以文化建筑和城市更新项目著称,擅长通过现代手法重新诠释历史文脉,创造富有深度的空间体验。 项目简介 罗马别墅博物馆位于瑞士普利,是一座文化建筑,建筑面积约1500平方米。该项目为2017年竞赛第三名方案,旨在通过现代设计语言重新诠释古罗马别墅的空间特质。 设计理念 设计团队以古罗马别墅的优雅比例为灵感,采用立方体体量创造与市政厅建筑的积极对话。建筑西向布局形成中央广场,巧妙连接现有葡萄园与新建罗马花园,重塑城市中心空间格局。 空间与功能 博物馆组织为三层结构,每层高5米。访客从中层入口进入10米高空间,俯瞰下层考古遗址。上层设封闭式临时展厅,周边布置教育设施、咖啡馆和观景廊,新建罗马花园作为博物馆的自然延伸。 材料与技术 建筑采用混凝土框架结构,外立面呼应罗马别墅的几何比例。设计注重室内外空间联系,通过大面积开窗建立与景观的视觉对话,延续古罗马凉廊与环境的传统关系。 设计团队 卡鲁索·圣约翰建筑事务所是英国知名建筑事务所,以文化建筑和城市更新项目著称,擅长通过现代手法重新诠释历史文脉,创造富有深度的空间体验。 本文来自 © 卡鲁索·圣约翰建筑事务所|Caruso St John, 发布于 © 建筑学院官方网站。 未经授权,禁止转载或摘编。 编辑版本版权归 © 建筑学院官方网站 所有, 设计、图纸及照片版权归设计方 © 卡鲁索·圣约翰建筑事务所|Caruso St John ↗ 所有。 查看作者在建筑学院发布的更多作品: 卡鲁索·圣约翰建筑事务所|Caruso St John @ 建筑学院官方网站 卡鲁索·圣约翰文化建筑普利混凝土罗马别墅博物馆 卡鲁索·圣约翰建筑事务所|Caruso St John事务所 & 设计师 下载原图 收藏 0 关于作者 卡鲁索·圣约翰建筑事务所|Caruso St John事务所 & 设计师 关注私信 20 文章 0 评论 0 粉丝 卡鲁索·圣约翰建筑事务所(Caruso St John)是成立于1990年的英国知名建筑事务所,由亚当·卡鲁索(Adam Caruso)和彼得·圣约翰(Peter St John)合伙创立。该事务所以其深刻的概念思考、对历史文脉的尊重及精湛的材料运用而闻名于世,致力于创造“可随岁月流转缓慢感知的、拥有情感内容的建筑”。其代表作——伦敦纽波特街美术馆(Newport Street Gallery)曾荣获2016年英国斯特林建筑奖,砖屋(Brick House)和沃尔索尔新艺术画廊等项目也曾入围该奖项。 RBC设计中心,蒙彼利埃 RBC Design Centre, Montpellier | 让·努维尔建筑事务所|Jean Nouvel 上一篇 2025-12-03 上午8:50 伊维萨与福门特拉音乐舞蹈学院 / Music and Dance Conservatory of Ibiza and Formentera | 阿尔弗雷多·帕亚|Alfredo Payá 下一篇 2025-12-04 上午9:50 猜你喜欢 罗马窑炉发现空间 / Roman Kiln Discovery Space in Vilassar de Dalt | 托尼·希罗内斯|Toni Gironès 2025-11-12 公共建筑设计 克罗洛克图书馆 / De Krook Library | RCR 建筑事务所|RCR Arquitectes 2025-11-15 公共建筑设计 瑞士生命竞技场 Swiss Life Arena | 卡鲁索·圣约翰建筑事务所|Caruso St John 2025-11-05 公共建筑设计 威尼斯国际建筑双年展,英国馆,2018年,威尼斯 Island, British Pavilion,Biennale Architettura 2018, Venice | 卡鲁索·圣约翰建筑事务所|Caruso St John 2025-12-11 公共建筑设计 诺贝尔中心 Nobel Center | 大卫·奇珀菲尔德建筑事务所|David Chipperfield 2025-11-13 公共建筑设计 斯克茨恩歌剧院 / Philharmonic Hall In Szczecin | 巴罗齐与维加建筑事务所 2025-11-13 公共建筑设计 发表回复 请登录后评论...登录后才能评论 提交