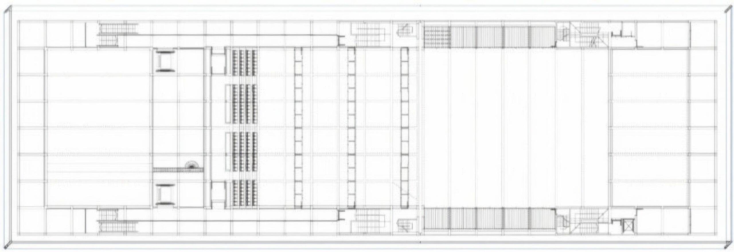
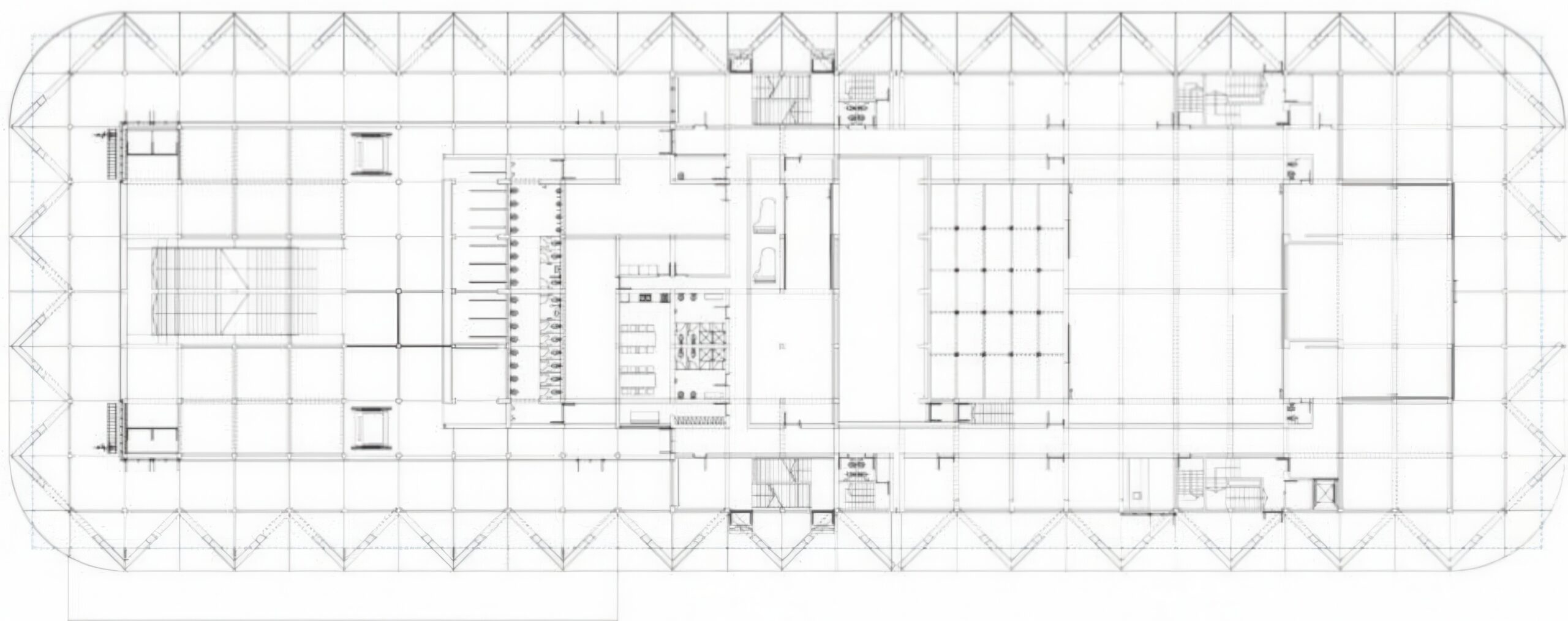
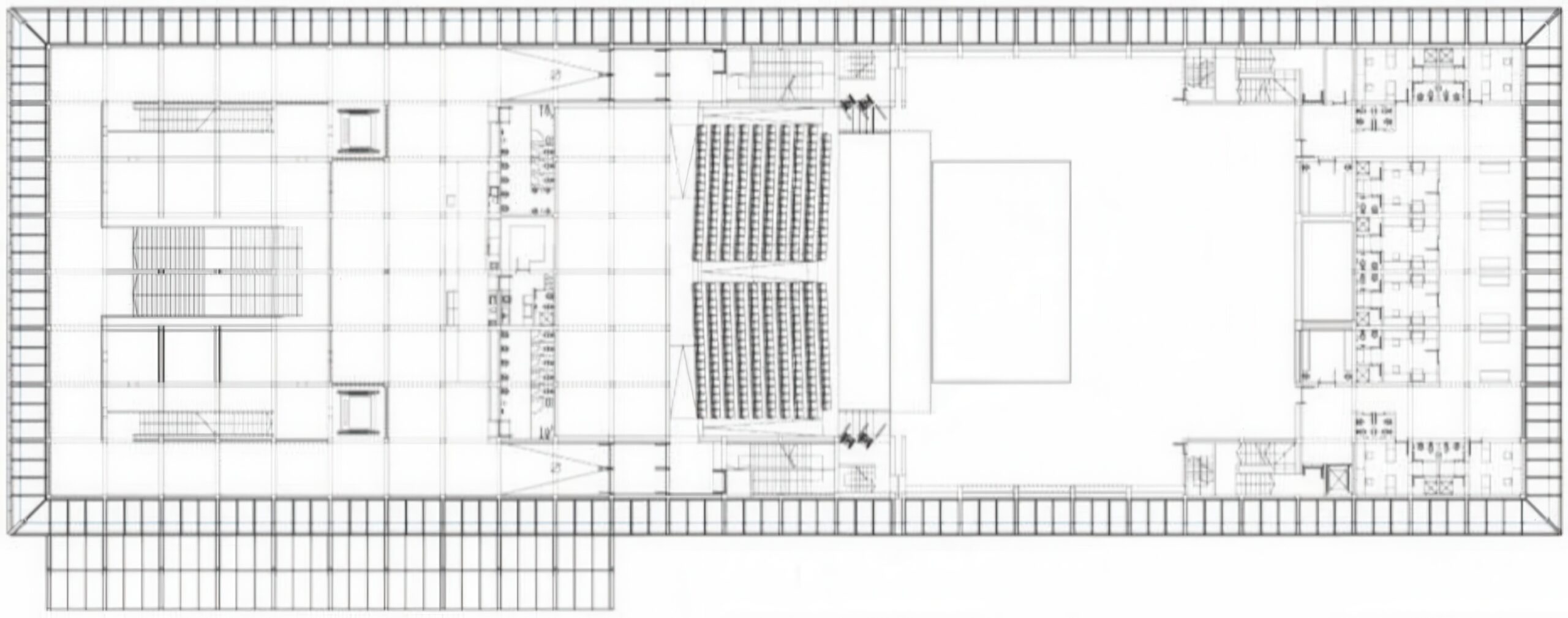
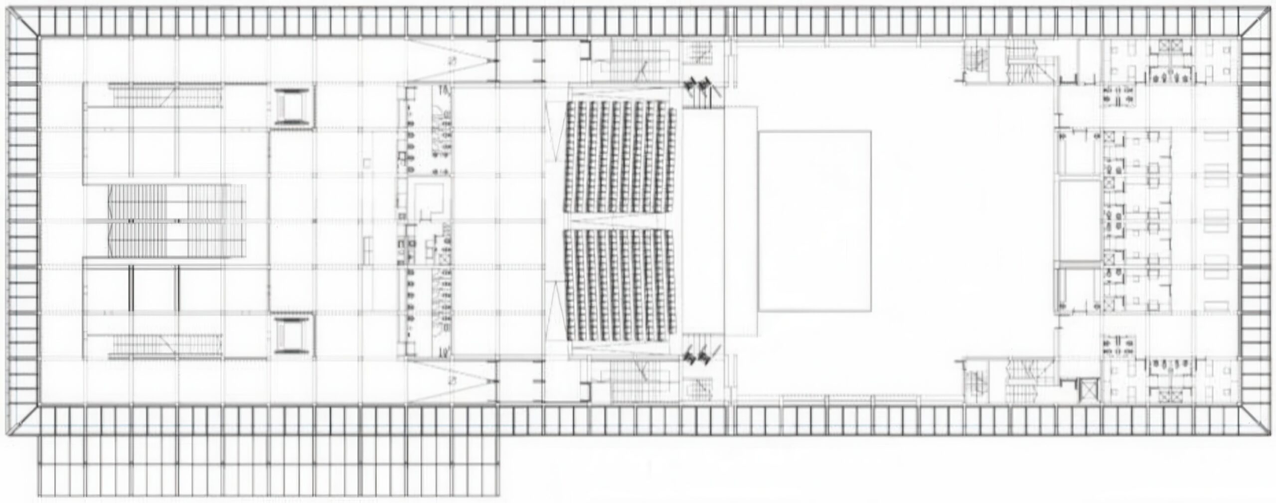
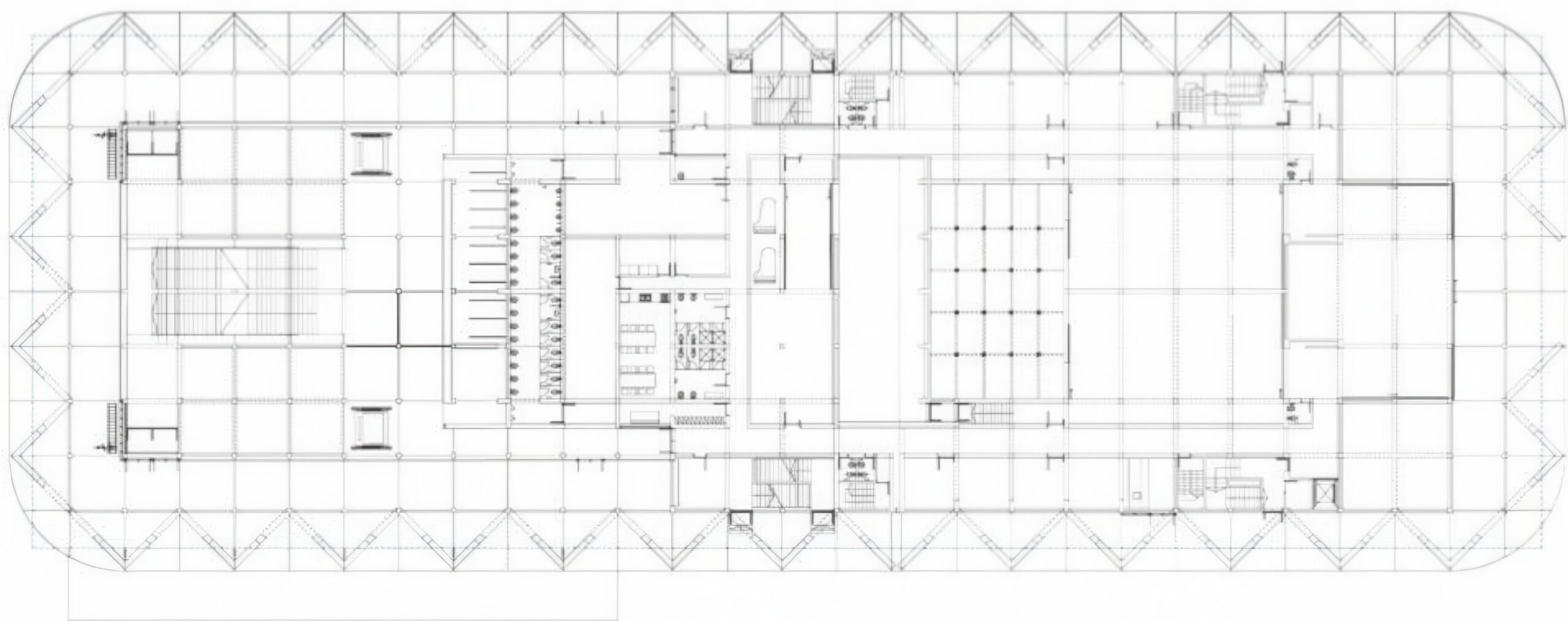
生物区域剧院 Bío Regional Theatre | 斯米里扬·拉迪奇|Smiljan Radić 斯米里扬·拉迪奇|Smiljan Radić • 2025-12-10 上午8:50 • 公共建筑设计, 建筑师, 建筑设计, 文化建筑设计 生物区域剧院位于智利康塞普西翁,由斯米里扬·拉迪奇设计,是一座文化建筑。项目采用创新的抗震结构,整座建筑置于压实沙基上,形成刚性表面隔膜。半透明PTFE膜材包裹的建筑体量创造出轻盈的帐篷般质感,内部空间以3.90米网格组织,为表演艺术提供灵活多变的使用体验。 设计: 斯米里扬·拉迪奇|Smiljan Radić 类型: 文化建筑设计 功能: 文化中心 风格: 当代建筑 材料: 混凝土 钢材 玻璃 织物 尺度: 中型建筑 地点:智利 时间: 2010年 项目简介 生物区域剧院位于智利康塞普西翁,是一座文化建筑,建筑面积约8000平方米,设计于2010年后,建成于2017年。 设计理念 设计灵感来源于包裹与隐藏的概念,建筑如同被半透明织物覆盖的骨架,创造出神秘而轻盈的视觉体验。结构设计特别考虑了地震带的抗震需求。 空间与功能 内部空间以3.90米网格系统组织,包含主剧场、小剧场、门厅等功能区域。网格在表演空间处变得稀疏,为演出创造适宜的黑暗环境与灵活空气。 材料与技术 采用PTFE膜材外立面、混凝土楼板与钢结构。创新的浅基础系统使用30厘米厚混凝土板与50厘米厚周边加固梁,形成刚性表面隔膜抗震。 设计团队 斯米里扬·拉迪奇是智利知名建筑师,以其对材料、结构与非传统形式的探索而闻名,作品常融合艺术与建筑的边界。 项目简介 生物区域剧院位于智利康塞普西翁,是一座文化建筑,建筑面积约8000平方米,设计于2010年后,建成于2017年。 设计理念 设计灵感来源于包裹与隐藏的概念,建筑如同被半透明织物覆盖的骨架,创造出神秘而轻盈的视觉体验。结构设计特别考虑了地震带的抗震需求。 空间与功能 内部空间以3.90米网格系统组织,包含主剧场、小剧场、门厅等功能区域。网格在表演空间处变得稀疏,为演出创造适宜的黑暗环境与灵活空气。 材料与技术 采用PTFE膜材外立面、混凝土楼板与钢结构。创新的浅基础系统使用30厘米厚混凝土板与50厘米厚周边加固梁,形成刚性表面隔膜抗震。 设计团队 斯米里扬·拉迪奇是智利知名建筑师,以其对材料、结构与非传统形式的探索而闻名,作品常融合艺术与建筑的边界。 本文来自 © 斯米里扬·拉迪奇|Smiljan Radić, 发布于 © 建筑学院官方网站。 未经授权,禁止转载或摘编。 编辑版本版权归 © 建筑学院官方网站 所有, 设计、图纸及照片版权归设计方 © 斯米里扬·拉迪奇|Smiljan Radić ↗ 所有。 查看作者在建筑学院发布的更多作品: 斯米里扬·拉迪奇|Smiljan Radić @ 建筑学院官方网站 PTFE膜材康塞普西翁文化建筑斯米里扬·拉迪奇生物区域剧院 斯米里扬·拉迪奇|Smiljan Radić事务所 & 设计师 下载原图 收藏 0 关于作者 斯米里扬·拉迪奇|Smiljan Radić事务所 & 设计师 关注私信 19 文章 0 评论 0 粉丝 斯米里扬·拉迪奇(Smiljan Radić)是智利最具代表性的当代建筑师之一,以其独特的形式探索、材料创新及与自然环境的深刻对话而闻名。他1965年生于圣地亚哥,毕业于智利天主教大学,1995年创立个人事务所。拉迪克的作品多聚焦于中小型建筑,擅长通过手工生产与非工业材料展现建筑的"脆弱性"与临时感。其最广为人知的作品是2014年为伦敦蛇形画廊设计的展馆,被形容为"栖息于新石器时代遗址的外星太空舱"。其他重要项目包括Mestizo餐厅、VIK酒庄及铜屋二号等,其设计常融入巨石、粗糙混凝土等元素,在景观中创造既原始又诗意的空间体验。 英国纳粹大屠杀纪念馆 United Kingdom Holocaust Memorial | 卡鲁索·圣约翰建筑事务所|Caruso St John 上一篇 2025-12-09 上午8:50 小小动物园 Knie’s Kinderzoo | 卡鲁索·圣约翰建筑事务所|Caruso St John 下一篇 2025-12-11 上午8:50 猜你喜欢 维克葡萄酒窖 Vik Wine Cellar | 斯米里扬·拉迪奇|Smiljan Radić 2025-12-08 公共建筑设计 斯克茨恩歌剧院 / Philharmonic Hall In Szczecin | 巴罗齐与维加建筑事务所 2026-04-15 公共建筑设计 奥斯特鲁姆的套房和别墅 / Suites and Villas, Estremoz | 阿尔瓦罗·西扎|Álvaro Siza 2025-12-20 公共建筑设计 多元剧场大南部,里尔 Polyvalent Theater ‘Le Grand Sud’, Lille | 拉卡东与瓦萨尔建筑师事务所|Lacaton & Vassal 2025-11-12 公共建筑设计 曼彻斯特科学与工业博物馆特别展览馆 Special Exhibition Gallery,Museum of Science and Industry, Manchester | 卡莫迪·格罗克建筑事务所|Carmody Groarke 2025-11-27 公共建筑设计 窑塔,砖工博物馆所在地 / Kiln Tower for the Brickworks Museum, Cham | Roger Boltshauser 2026-02-06 公共建筑设计 发表回复 请登录后评论...登录后才能评论 提交