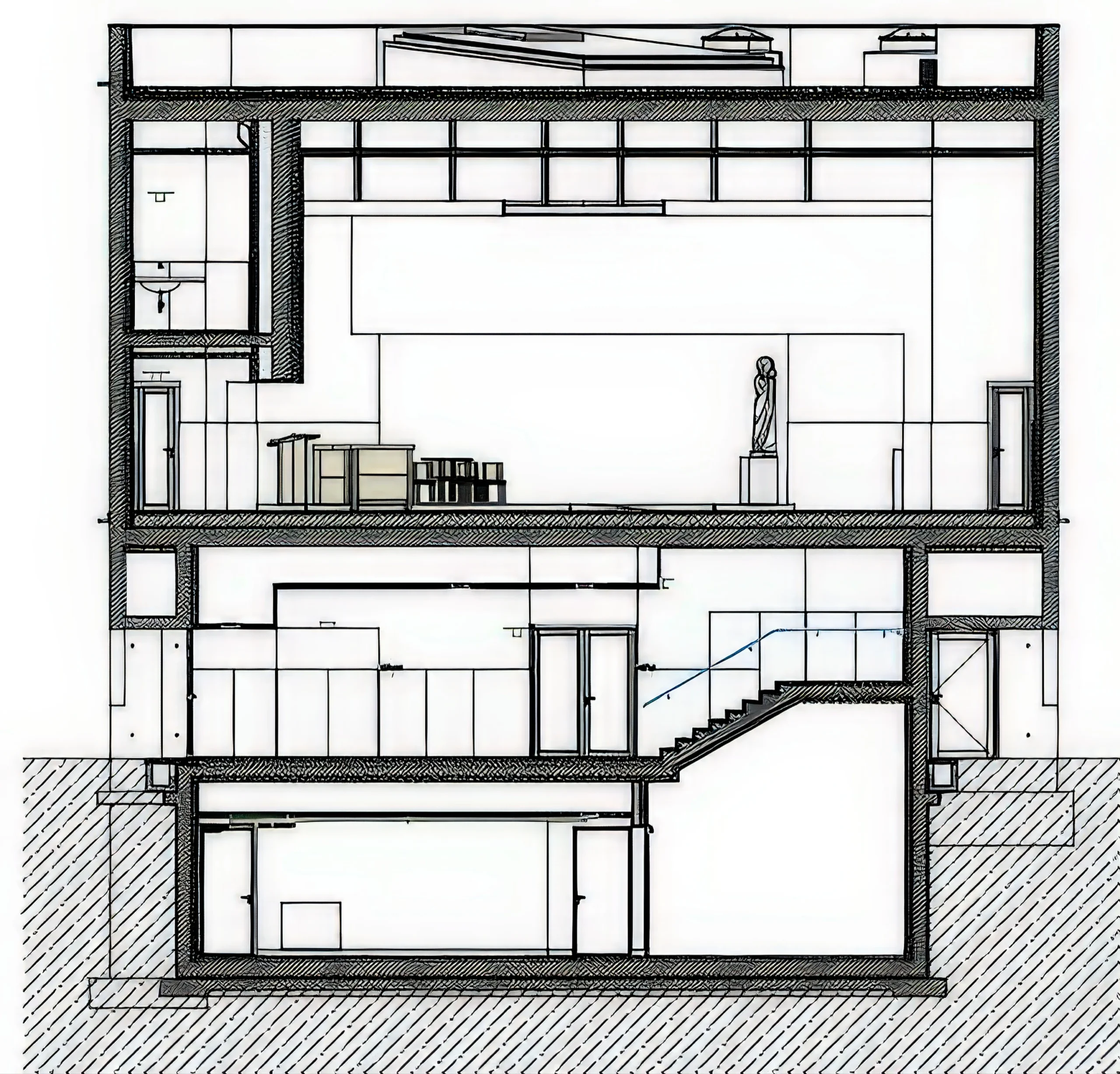
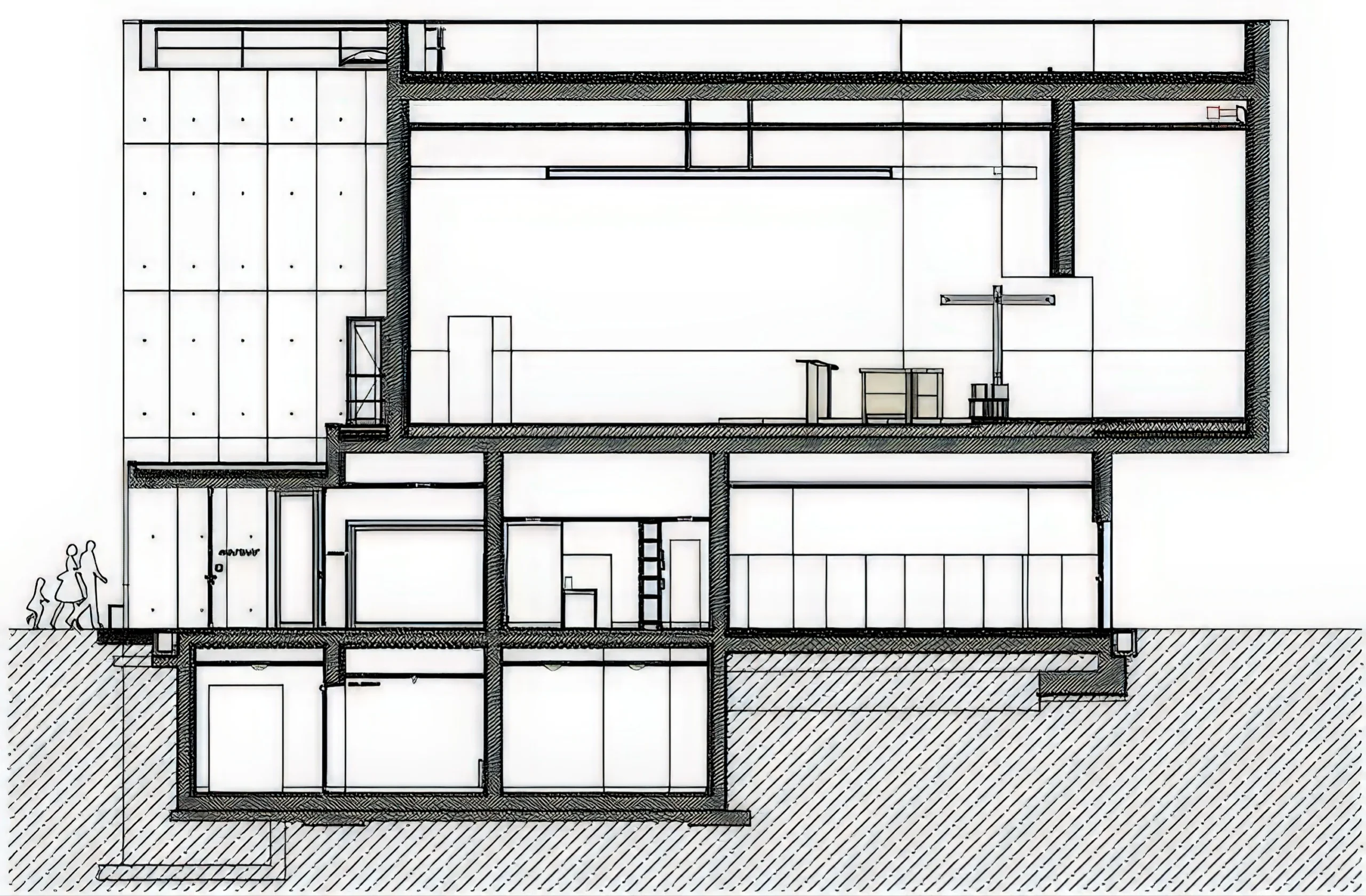
德勒兰·雅克·德勒兰教堂 / de-la-Lande Jacques-de-la-Lande Church | 阿尔瓦罗·西扎|Álvaro Siza 建筑学院 • 2025-12-10 上午8:50 • 公共建筑设计, 建筑师, 建筑设计, 文化建筑设计 德勒兰·雅克·德勒兰教堂由葡萄牙建筑师阿尔瓦罗·西扎设计,是一座位于法国德勒兰的宗教建筑。这座教堂建筑采用独特的几何体量组合,将教区中心与教堂功能垂直分层布置,展现了西扎标志性的现代主义建筑语言与空间处理手法。 设计: 类型: 文化建筑设计 功能: 文化中心 风格: 现代主义 材料: 混凝土 木材 玻璃 尺度: 小型建筑 地点:德勒兰 时间: 2018年 项目概述 德勒兰·雅克·德勒兰教堂项目位于法国德勒兰,是一座集教区中心与教堂功能于一体的宗教建筑。建筑总高12米,包含地上两层及一个97.20平方米的地下室,设计采用圆柱体与立方体的几何叠加,展现了阿尔瓦罗·西扎独特的建筑构思。 设计理念 阿尔瓦罗·西扎将德勒兰·雅克·德勒兰教堂设计为一个独立的体量,与周边建筑尺度相协调。设计通过圆柱与方形的几何叠加,创造出富有张力的空间关系,体现了现代主义建筑对形式与功能的精妙平衡。 空间与功能 德勒兰·雅克·德勒兰教堂的空间组织清晰明确:教区中心位于首层,教堂位于二层,可容纳126名信徒。两个矩形体量围合出入口庭院,侧礼拜堂与半圆形后殿形成完整的宗教空间序列,流线设计通过楼梯与电梯连接各层。 材料与技术 建筑采用白色清水混凝土建造,地面使用大理石铺装并延伸至墙面形成1.10米高的踢脚线。木制门窗搭配铝板保护,照明系统通过顶部天窗实现间接采光,展现了材料质感与光影效果的精心设计。 项目特色与启发 德勒兰·雅克·德勒兰教堂展现了阿尔瓦罗·西扎对几何形体与空间体验的精准把控,为当代宗教建筑设计提供了重要参考。该项目体现了现代建筑如何通过简洁的形式语言创造丰富的空间体验。 设计团队 阿尔瓦罗·西扎是葡萄牙著名建筑师,普利兹克奖得主,以其现代主义建筑作品闻名于世。他的设计注重场地文脉、几何纯净与材料真实表达,在德勒兰·雅克·德勒兰教堂项目中充分体现了其独特的设计哲学。 项目概述 德勒兰·雅克·德勒兰教堂项目位于法国德勒兰,是一座集教区中心与教堂功能于一体的宗教建筑。建筑总高12米,包含地上两层及一个97.20平方米的地下室,设计采用圆柱体与立方体的几何叠加,展现了阿尔瓦罗·西扎独特的建筑构思。 设计理念 阿尔瓦罗·西扎将德勒兰·雅克·德勒兰教堂设计为一个独立的体量,与周边建筑尺度相协调。设计通过圆柱与方形的几何叠加,创造出富有张力的空间关系,体现了现代主义建筑对形式与功能的精妙平衡。 空间与功能 德勒兰·雅克·德勒兰教堂的空间组织清晰明确:教区中心位于首层,教堂位于二层,可容纳126名信徒。两个矩形体量围合出入口庭院,侧礼拜堂与半圆形后殿形成完整的宗教空间序列,流线设计通过楼梯与电梯连接各层。 材料与技术 建筑采用白色清水混凝土建造,地面使用大理石铺装并延伸至墙面形成1.10米高的踢脚线。木制门窗搭配铝板保护,照明系统通过顶部天窗实现间接采光,展现了材料质感与光影效果的精心设计。 项目特色与启发 德勒兰·雅克·德勒兰教堂展现了阿尔瓦罗·西扎对几何形体与空间体验的精准把控,为当代宗教建筑设计提供了重要参考。该项目体现了现代建筑如何通过简洁的形式语言创造丰富的空间体验。 设计团队 阿尔瓦罗·西扎是葡萄牙著名建筑师,普利兹克奖得主,以其现代主义建筑作品闻名于世。他的设计注重场地文脉、几何纯净与材料真实表达,在德勒兰·雅克·德勒兰教堂项目中充分体现了其独特的设计哲学。 本文来自 © 建筑学院, 发布于 © 建筑学院官方网站。 未经授权,禁止转载或摘编。 编辑版本版权归 © 建筑学院官方网站 所有, 设计、图纸及照片版权归设计方 © 建筑学院 ↗ 所有。 查看作者在建筑学院发布的更多作品: 建筑学院 @ 建筑学院官方网站 de-la-Lande Jacques-de-la-Lande Church宗教建筑设计德勒兰建筑 建筑学院编辑 下载原图 收藏 0 关于作者 建筑学院编辑 关注私信 9.0K 文章 202 评论 13 粉丝 建筑学院(ArchCollege)是中国领先的建筑师移动垂直社区,成立于2012年,超过 70% 的年轻建筑师正在使用我们的产品。我们致力于通过建筑设计新媒体与在线教育平台,连接教育、行业与科技,为建筑师提供灵感与成长支持,陪伴并见证每一位青年建筑师的专业进阶与时代探索。 Cuatro Caminos Transport Interchange | 曼努埃尔·塞万提斯|Manuel Cervantes 上一篇 2025-12-09 上午8:50 威尼斯国际建筑双年展,英国馆,2018年,威尼斯 Island, British Pavilion,Biennale Architettura 2018, Venice | 卡鲁索·圣约翰建筑事务所|Caruso St John 下一篇 2025-12-11 上午8:50 猜你喜欢 米尔吉纳教堂 / Chapel in Miljana | 阿尔瓦罗·西扎|Álvaro Siza 2026-01-01 公共建筑设计 德勒兰·雅克·德勒兰教堂 / de-la-Lande Jacques-de-la-Lande Church | 阿尔瓦罗·西扎|Álvaro Siza 2026-03-02 公共建筑设计 伊斯兰陵墓 / Islamic Cemetery Altach | 贝尔纳多·巴德尔建筑事务所 2025-11-17 公共建筑设计 梵蒂冈小教堂 / Vatican Chapel for the Venice Biennale | 德·莫拉建筑事务所 2026-03-14 公共建筑设计 Salgenreute 教堂 / Salgenreute Chapel | 贝尔纳多·巴德尔|Bernardo Bader 2025-11-19 公共建筑设计 伊斯兰陵墓 / Islamic Cemetery Altach | 贝尔纳多·巴德尔建筑事务所 2026-01-19 公共建筑 发表回复 请登录后评论...登录后才能评论 提交