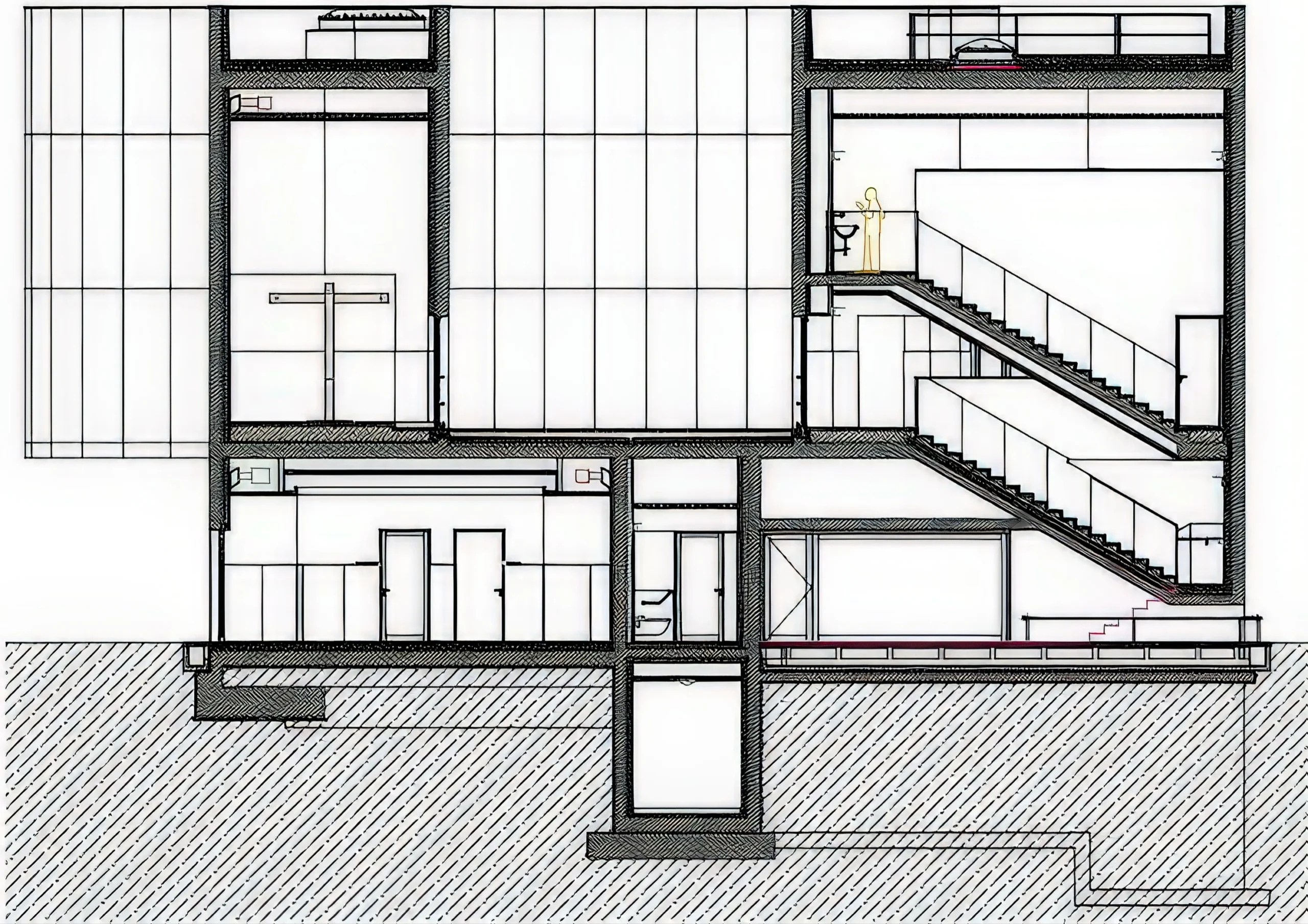
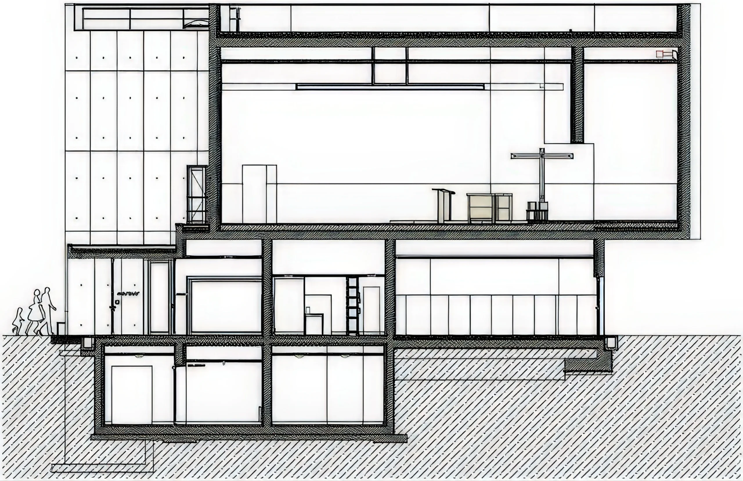
德勒兰·雅克·德勒兰教堂 / de-la-Lande Jacques-de-la-Lande Church | 阿尔瓦罗·西扎|Álvaro Siza 阿尔瓦罗·西扎|Alvaro Siza • 2026-03-02 下午12:16 • 公共建筑设计, 建筑设计, 文化建筑设计 德勒兰·雅克·德勒兰教堂由葡萄牙建筑师阿尔瓦罗·西扎设计,是一座位于法国德勒兰的宗教建筑。这座教堂建筑采用独特的几何体量组合,将教区中心与教堂功能垂直分层布置,展现了西扎标志性的现代主义建筑语言与空间处理手法。 设计: 阿尔瓦罗·西扎|Alvaro Siza 类型: 文化建筑设计 功能: 宗教建筑 风格: 现代主义 材料: 混凝土 木材 玻璃 石材 尺度: 小型建筑 地点:德勒兰 时间: 2020年 项目概述 德勒兰·雅克·德勒兰教堂项目位于法国德勒兰,是一座集教区中心与教堂功能于一体的宗教建筑。建筑总高12米,包含地上两层及一个97.20平方米的地下室,设计采用圆柱体与立方体的几何叠加,展现了阿尔瓦罗·西扎独特的建筑构思。 设计理念 阿尔瓦罗·西扎将德勒兰·雅克·德勒兰教堂设计为一个独立的体量,与周边建筑尺度相协调。设计通过圆柱与方形的几何叠加,创造出富有张力的空间关系,体现了现代主义建筑对形式与功能的精妙平衡。 空间与功能 德勒兰·雅克·德勒兰教堂的空间组织清晰明确:教区中心位于首层,教堂位于二层,可容纳126名信徒。两个矩形体量围合出入口庭院,侧礼拜堂与半圆形后殿形成完整的宗教空间序列,流线设计通过楼梯与电梯连接各层。 材料与技术 建筑采用白色清水混凝土建造,地面使用大理石铺装并延伸至墙面形成1.10米高的踢脚线。木制门窗搭配铝板保护,照明系统通过顶部天窗实现间接采光,展现了材料质感与光影效果的精心设计。 项目特色与启发 德勒兰·雅克·德勒兰教堂展现了阿尔瓦罗·西扎对几何形体与空间体验的精准把控,为当代宗教建筑设计提供了重要参考。该项目体现了现代建筑如何通过简洁的形式语言创造丰富的空间体验。 设计团队 阿尔瓦罗·西扎是葡萄牙著名建筑师,普利兹克奖得主,以其现代主义建筑作品闻名于世。他的设计注重场地文脉、几何纯净与材料真实表达,在德勒兰·雅克·德勒兰教堂项目中充分体现了其独特的设计哲学。 项目概述 德勒兰·雅克·德勒兰教堂项目位于法国德勒兰,是一座集教区中心与教堂功能于一体的宗教建筑。建筑总高12米,包含地上两层及一个97.20平方米的地下室,设计采用圆柱体与立方体的几何叠加,展现了阿尔瓦罗·西扎独特的建筑构思。 设计理念 阿尔瓦罗·西扎将德勒兰·雅克·德勒兰教堂设计为一个独立的体量,与周边建筑尺度相协调。设计通过圆柱与方形的几何叠加,创造出富有张力的空间关系,体现了现代主义建筑对形式与功能的精妙平衡。 空间与功能 德勒兰·雅克·德勒兰教堂的空间组织清晰明确:教区中心位于首层,教堂位于二层,可容纳126名信徒。两个矩形体量围合出入口庭院,侧礼拜堂与半圆形后殿形成完整的宗教空间序列,流线设计通过楼梯与电梯连接各层。 材料与技术 建筑采用白色清水混凝土建造,地面使用大理石铺装并延伸至墙面形成1.10米高的踢脚线。木制门窗搭配铝板保护,照明系统通过顶部天窗实现间接采光,展现了材料质感与光影效果的精心设计。 项目特色与启发 德勒兰·雅克·德勒兰教堂展现了阿尔瓦罗·西扎对几何形体与空间体验的精准把控,为当代宗教建筑设计提供了重要参考。该项目体现了现代建筑如何通过简洁的形式语言创造丰富的空间体验。 设计团队 阿尔瓦罗·西扎是葡萄牙著名建筑师,普利兹克奖得主,以其现代主义建筑作品闻名于世。他的设计注重场地文脉、几何纯净与材料真实表达,在德勒兰·雅克·德勒兰教堂项目中充分体现了其独特的设计哲学。 本文来自 © 阿尔瓦罗·西扎|Alvaro Siza, 发布于 © 建筑学院官方网站。 未经授权,禁止转载或摘编。 编辑版本版权归 © 建筑学院官方网站 所有, 设计、图纸及照片版权归设计方 © 阿尔瓦罗·西扎|Alvaro Siza ↗ 所有。 查看作者在建筑学院发布的更多作品: 阿尔瓦罗·西扎|Alvaro Siza @ 建筑学院官方网站 de-la-Lande Jacques-de-la-Lande Church宗教建筑设计德勒兰建筑阿尔瓦罗·西扎作品 阿尔瓦罗·西扎|Alvaro Siza事务所 & 设计师 下载原图 收藏 0 关于作者 阿尔瓦罗·西扎|Alvaro Siza事务所 & 设计师 关注私信 36 文章 0 评论 1 粉丝 阿尔瓦罗·西扎(Álvaro Siza)是葡萄牙著名建筑师,1992年普利兹克奖得主。他以融合葡萄牙建筑传统与国际现代主义的“诗意现代主义”风格闻名,代表作包括勒萨德帕梅拉游泳池等。 大剧院 Auditorium / Teatro-Auditorio | 阿尔瓦罗·西扎|Álvaro Siza 上一篇 2026-03-02 上午11:56 Gramaxo基金会总部 / Gramaxo Foundation Headquarters | 阿尔瓦罗·西扎|Álvaro Siza 下一篇 2026-03-02 下午12:24 猜你喜欢 米尔吉纳教堂 / Chapel in Miljana | 阿尔瓦罗·西扎|Álvaro Siza 2026-03-05 公共建筑设计 德勒兰·雅克·德勒兰教堂 / de-la-Lande Jacques-de-la-Lande Church | 阿尔瓦罗·西扎|Álvaro Siza 2025-12-10 公共建筑设计 米尔吉纳教堂 / Chapel in Miljana | 阿尔瓦罗·西扎|Álvaro Siza 2026-01-04 公共建筑设计 伊斯兰陵墓 / Islamic Cemetery Altach | 贝尔纳多·巴德尔建筑事务所 2025-11-17 公共建筑设计 Salgenreute 教堂 / Salgenreute Chapel | 贝尔纳多·巴德尔|Bernardo Bader 2026-01-14 公共建筑设计 阿兹赫诺瓦尔别墅,辛特拉 / Vila Adeuzinho House, Sintra | 阿尔瓦罗·西扎|Álvaro Siza 2025-12-16 住宅建筑设计 发表回复 请登录后评论...登录后才能评论 提交