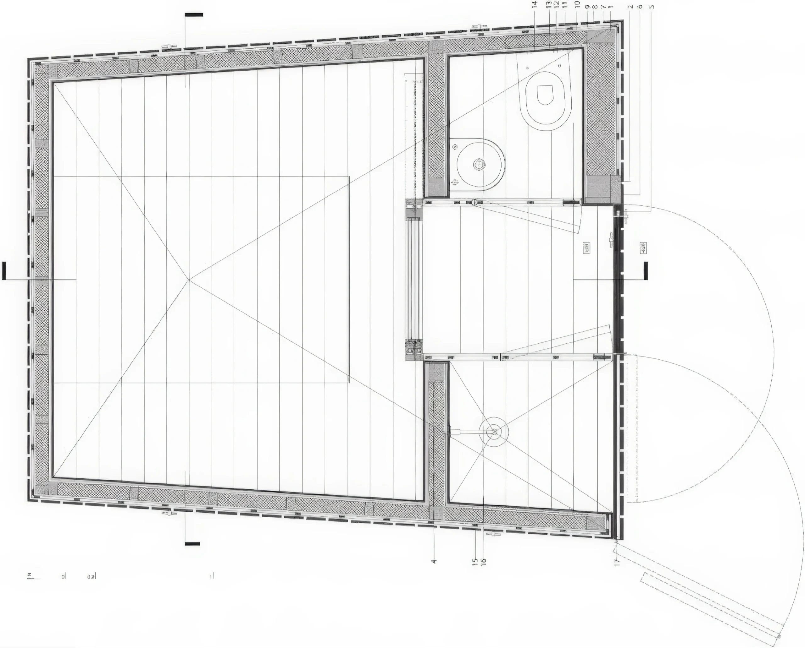
河边小屋 Huts on the River | 艾雷斯·马特乌斯建筑事务所|Aires Mateus 艾雷斯·马特乌斯建筑事务所|Aires Mateus • 2025-12-13 下午8:51 • 住宅建筑设计, 建筑师, 建筑设计, 独立住宅, 独立住宅设计 河边小屋是艾雷斯·马特乌斯建筑事务所在葡萄牙格兰多拉孔波尔塔设计的独立住宅项目。该项目建于2013年,通过对中世纪木制码头的改造更新,保留了历史价值的同时创造了两个功能空间:起居厨房区和卧室卫浴区。建筑完全采用回收木材建造,原型化的形式和变化的屋顶坡度与功能需求相呼应。 设计: 艾雷斯·马特乌斯建筑事务所|Aires Mateus 类型: 独立住宅设计 功能: 独立住宅 风格: 极简主义 材料: 木材 再生材料 尺度: 小型建筑 地点:葡萄牙 时间: 2013年 设计理念 设计团队以”历史价值的延续与更新”为核心理念,在保留原有码头历史特征的基础上,通过原型化的建筑形式和变化的屋顶坡度,创造出与功能需求紧密对应的空间张力。 空间与功能 项目包含两个主要功能空间:一个是集成了厨房的起居空间,另一个是带有小型卫浴设施的卧室空间。两个空间通过不同的屋顶坡度进行区分,形成了明确的功能分区和空间体验。 材料与技术 建筑完全采用回收木材建造,包括松木实木板材和结构构件。施工工艺注重木材的自然老化过程,允许材料随时间继续转化。采用了OSB板、黑色软木隔热层和防水膜等技术措施。 设计团队 艾雷斯·马特乌斯建筑事务所由曼努埃尔和弗朗西斯科·艾雷斯·马特乌斯兄弟创立,以极简主义建筑语言和对空间本质的探索著称,在住宅和文化建筑领域具有重要影响力。 设计理念 设计团队以”历史价值的延续与更新”为核心理念,在保留原有码头历史特征的基础上,通过原型化的建筑形式和变化的屋顶坡度,创造出与功能需求紧密对应的空间张力。 空间与功能 项目包含两个主要功能空间:一个是集成了厨房的起居空间,另一个是带有小型卫浴设施的卧室空间。两个空间通过不同的屋顶坡度进行区分,形成了明确的功能分区和空间体验。 材料与技术 建筑完全采用回收木材建造,包括松木实木板材和结构构件。施工工艺注重木材的自然老化过程,允许材料随时间继续转化。采用了OSB板、黑色软木隔热层和防水膜等技术措施。 设计团队 艾雷斯·马特乌斯建筑事务所由曼努埃尔和弗朗西斯科·艾雷斯·马特乌斯兄弟创立,以极简主义建筑语言和对空间本质的探索著称,在住宅和文化建筑领域具有重要影响力。 本文来自 © 艾雷斯·马特乌斯建筑事务所|Aires Mateus, 发布于 © 建筑学院官方网站。 未经授权,禁止转载或摘编。 编辑版本版权归 © 建筑学院官方网站 所有, 设计、图纸及照片版权归设计方 © 艾雷斯·马特乌斯建筑事务所|Aires Mateus ↗ 所有。 查看作者在建筑学院发布的更多作品: 艾雷斯·马特乌斯建筑事务所|Aires Mateus @ 建筑学院官方网站 回收木材独立住宅艾雷斯·马特乌斯葡萄牙格兰多拉 艾雷斯·马特乌斯建筑事务所|Aires Mateus事务所 & 设计师 下载原图 收藏 0 关于作者 艾雷斯·马特乌斯建筑事务所|Aires Mateus事务所 & 设计师 关注私信 14 文章 0 评论 0 粉丝 艾雷斯·马特乌斯建筑事务所(Aires Mateus)由葡萄牙建筑师Manuel Aires Mateus和Francisco Aires Mateus兄弟于1988年在里斯本创立。该事务所以极简主义风格著称,强调建筑的精神表达和永恒品质,作品关注物质与文化世界的关系,追求抽象形式和空间平衡。其项目涵盖住宅、度假屋等,在全球获奖无数,并在哈佛大学等多所高校任教,塑造了葡萄牙当代建筑的深刻影响力。 阿布达佩德皮多拉斯市政博物馆 / Abade Pedrosa Municipal Museum [MMAP] | 德·莫拉建筑事务所 上一篇 2025-12-12 上午8:50 中国设计博物馆贝乌斯收藏 / China Design Museum. Bauhaus Collection | 阿尔瓦罗·西扎|Álvaro Siza 下一篇 2025-12-14 下午7:51 猜你喜欢 方格之间,移动带来自由 / 古森弘一建筑设计事务所 2019-07-19 建筑设计 嵌入场地,干脆利落的现代居所:美国熊跑小屋 / David Coleman 2020-03-16 建筑设计 漂浮住宅 / Sanuki Daisuke architects 2023-04-17 建筑设计 如一位牧羊老者,聆听群山包围下的宁静:马德里家庭工作室 2020-01-05 建筑设计 保证私密性的前提下,白得纯粹而优雅 2017-07-07 独立住宅设计 巴西粗野主义建筑改造 / Arquitécnika 2020-06-27 建筑设计 发表回复 请登录后评论...登录后才能评论 提交