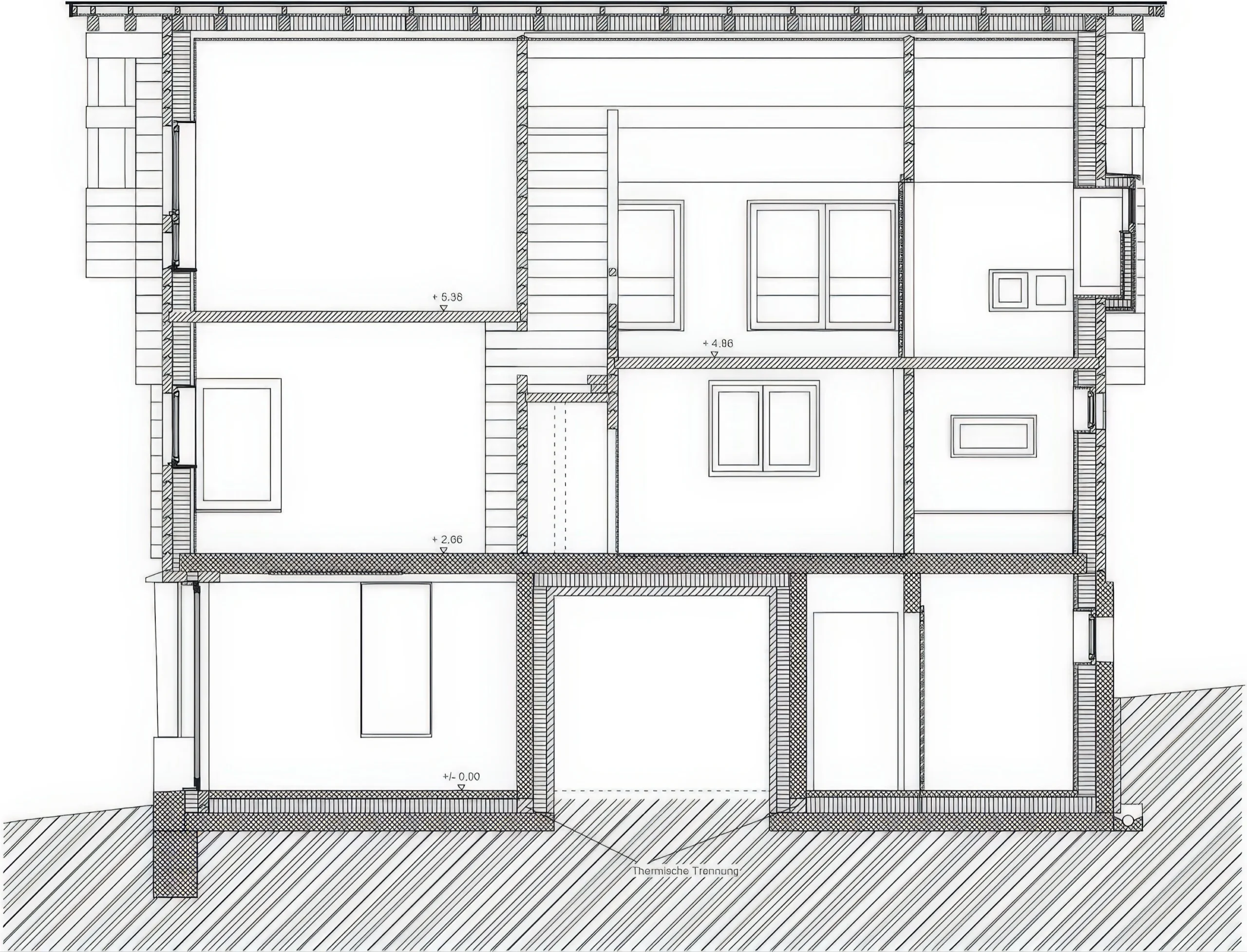
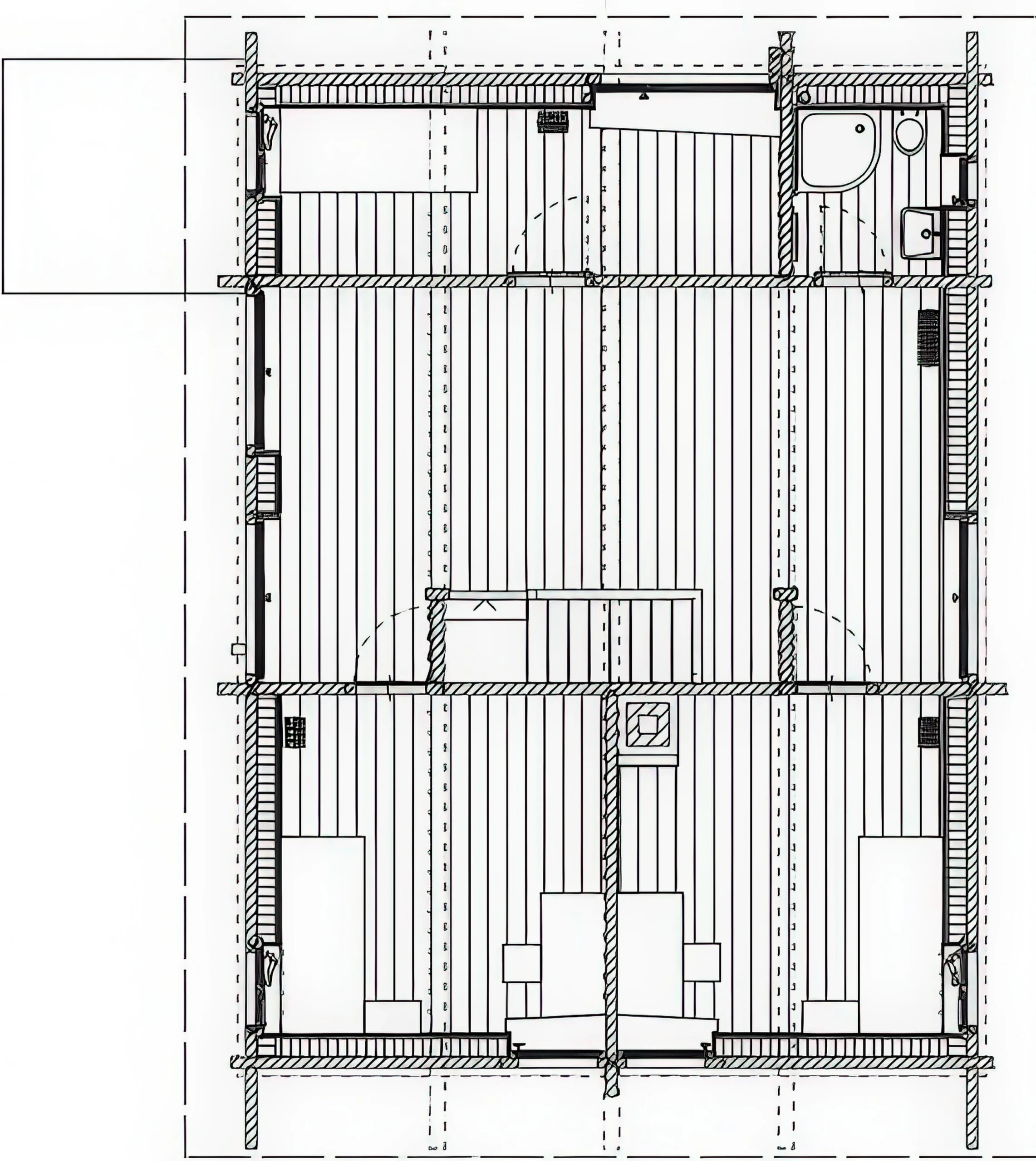
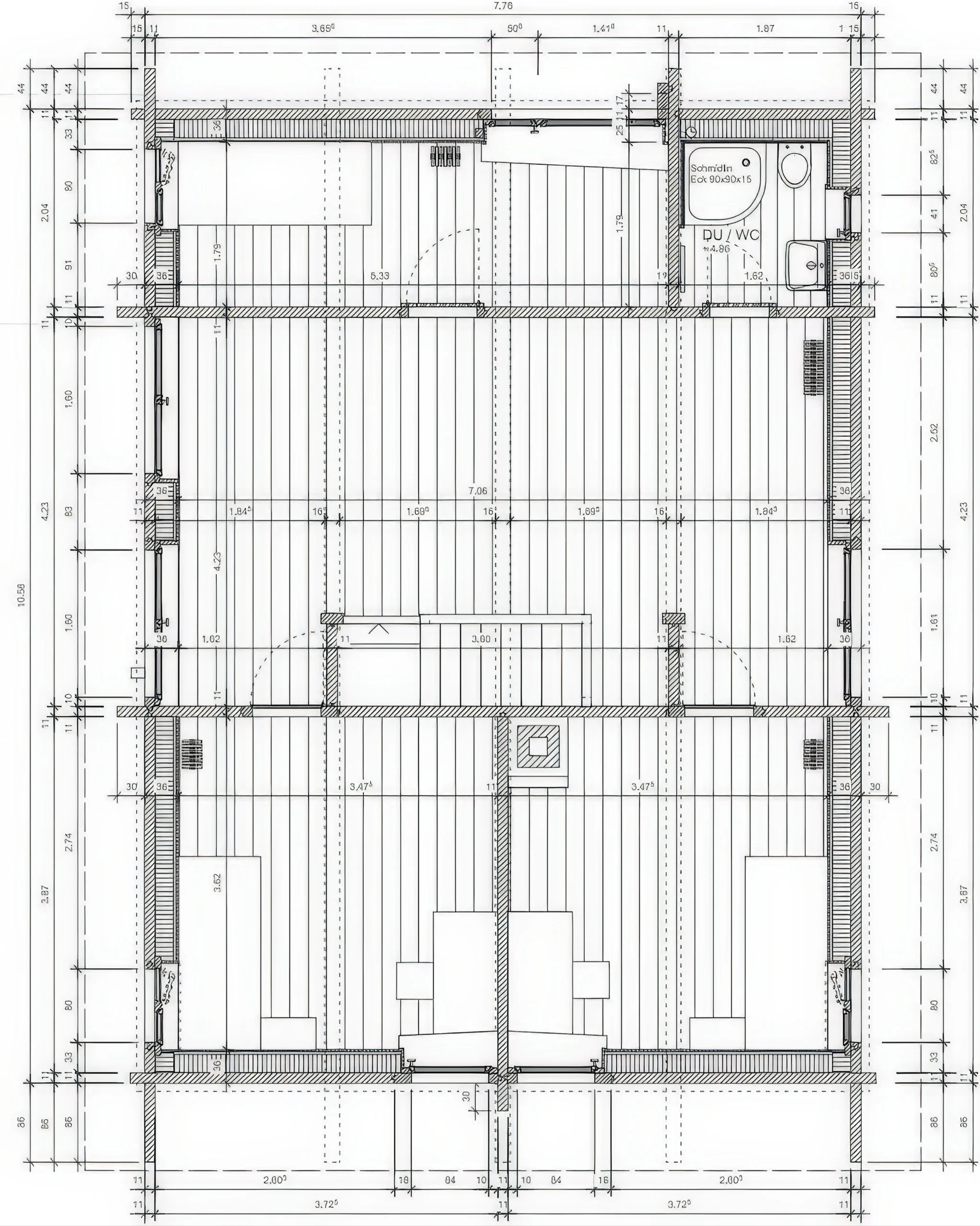
哥特式建筑 Geschinen / Girsberger House | 吉翁·A·卡米纳达|Gion A. Caminada 吉翁·A·卡米纳达|Gion A Caminada • 2025-12-22 下午8:38 • 住宅建筑设计, 公寓住宅设计, 建筑设计, 独立住宅, 独立住宅设计 哥特式建筑 Geschinen 由吉翁·A·卡米纳达设计,位于瑞士瓦莱州明斯特-格希嫩村,是一座独立住宅。设计采用雕塑手法处理木材,保留传统石砌地窖,通过空间层次与材料表达展现当地建筑文化的现代诠释。 设计: 吉翁·A·卡米纳达|Gion A Caminada 类型: 独立住宅设计 功能: 独立住宅 风格: 地域主义 材料: 木材 石材 尺度: 小型建筑 地点:明斯特-格希嫩 时间: 2009年 项目概述 哥特式建筑 Geschinen(Girsberger House)位于瑞士瓦莱州明斯特-格希嫩村,是一座独立住宅。项目由吉翁·A·卡米纳达设计,设计年份为2007年,建成年份为2009年,建筑面积约200平方米。 设计理念 吉翁·A·卡米纳达的设计理念源自当地传统建筑与雕塑手法,通过雕刻木材、逐步掏空体量的方式塑造动态形态。设计回应了村庄密集布局与阳光照射形成的深色建筑表皮特征,延续了当地谷仓抬离地面的建筑语言。 空间与功能 哥特式建筑 Geschinen 的空间组织围绕石砌地窖展开,形成空间核心。首层设置厨房与楼梯,一层为客厅、主卧及浴室,顶层为开放式起居区与三间卧室。流线设计通过环绕石盒与楼梯连接各层,营造渐进抵达的空间体验。 材料与技术 项目主要采用当地落叶松木与石材,延续传统建造工艺。木结构墙体与石砌地窖形成材料对比,结构体系体现当地木材建筑的雕塑潜力。细部处理注重木材与石材的交接,展现精湛工艺。 项目特色与启发 哥特式建筑 Geschinen 通过现代手法重新诠释传统建筑元素,为当代住宅设计提供地域性表达的参考。项目展示了如何将当地材料、工艺与空间体验结合,对建筑师在文化语境下的创新实践具有启发意义。 设计团队 吉翁·A·卡米纳达是瑞士知名建筑师,专注于地域性建筑与现代传统的融合。其作品常以木材为主要材料,探索当地建造文化的当代价值,在住宅与文化建筑领域具有重要影响。 项目概述 哥特式建筑 Geschinen(Girsberger House)位于瑞士瓦莱州明斯特-格希嫩村,是一座独立住宅。项目由吉翁·A·卡米纳达设计,设计年份为2007年,建成年份为2009年,建筑面积约200平方米。 设计理念 吉翁·A·卡米纳达的设计理念源自当地传统建筑与雕塑手法,通过雕刻木材、逐步掏空体量的方式塑造动态形态。设计回应了村庄密集布局与阳光照射形成的深色建筑表皮特征,延续了当地谷仓抬离地面的建筑语言。 空间与功能 哥特式建筑 Geschinen 的空间组织围绕石砌地窖展开,形成空间核心。首层设置厨房与楼梯,一层为客厅、主卧及浴室,顶层为开放式起居区与三间卧室。流线设计通过环绕石盒与楼梯连接各层,营造渐进抵达的空间体验。 材料与技术 项目主要采用当地落叶松木与石材,延续传统建造工艺。木结构墙体与石砌地窖形成材料对比,结构体系体现当地木材建筑的雕塑潜力。细部处理注重木材与石材的交接,展现精湛工艺。 项目特色与启发 哥特式建筑 Geschinen 通过现代手法重新诠释传统建筑元素,为当代住宅设计提供地域性表达的参考。项目展示了如何将当地材料、工艺与空间体验结合,对建筑师在文化语境下的创新实践具有启发意义。 设计团队 吉翁·A·卡米纳达是瑞士知名建筑师,专注于地域性建筑与现代传统的融合。其作品常以木材为主要材料,探索当地建造文化的当代价值,在住宅与文化建筑领域具有重要影响。 本文来自 © 吉翁·A·卡米纳达|Gion A Caminada, 发布于 © 建筑学院官方网站。 未经授权,禁止转载或摘编。 编辑版本版权归 © 建筑学院官方网站 所有, 设计、图纸及照片版权归设计方 © 吉翁·A·卡米纳达|Gion A Caminada ↗ 所有。 查看作者在建筑学院发布的更多作品: 吉翁·A·卡米纳达|Gion A Caminada @ 建筑学院官方网站 Girsberger House吉翁·A·卡米纳达独立住宅设计瑞士住宅 吉翁·A·卡米纳达|Gion A Caminada事务所 & 设计师 下载原图 收藏 0 关于作者 吉翁·A·卡米纳达|Gion A Caminada事务所 & 设计师 关注私信 22 文章 0 评论 0 粉丝 瑞士建筑师吉翁·A·卡米纳达(Gion A. Caminada)以其对传统木结构的现代诠释与乡村建筑复兴而闻名。他的官方网站 theaficionados.com 系统展示其代表作、设计哲学及对乡土文化的深刻思考。访问该站可深入了解其如何将地方传统转化为当代可持续的建筑语言。 假日别墅,阿维什瓦拉 / Holiday Bungalow in Avissawella | 帕琳达·坎南加拉|Palinda Kannangara 上一篇 2025-12-22 下午8:27 工厂建筑工厂大厦 / Factory Building Fabriken | Arrhov Frick 下一篇 2025-12-23 下午12:29 猜你喜欢 弗斯特纳布尔克的库伯尔之家 / Kübler House in Fürstenaubruck | 吉翁·A·卡米纳达|Gion A. Caminada 2026-03-25 住宅建筑设计 线性房屋 / Linear House | 帕琳达·坎南加拉|Palinda Kannangara 2026-04-08 住宅建筑设计 土胚房 / Hut House | MARKLEE 建筑事务所 2025-11-15 公共建筑设计 坡上的房子 House on a Slope | Karamuk Kuo 建筑事务所|Karamuk Kuo 2025-10-26 公共建筑设计 双座屋及工作室,阿玛特帕克 Two Houses and Studio, Amatepec | 曼努埃尔·塞万提斯|Manuel Cervantes 2025-12-08 住宅室内设计 Bredören 住宅 / House in Bredören | Arrhov Frick 建筑事务所 2026-01-20 住宅建筑设计 发表回复 请登录后评论...登录后才能评论 提交