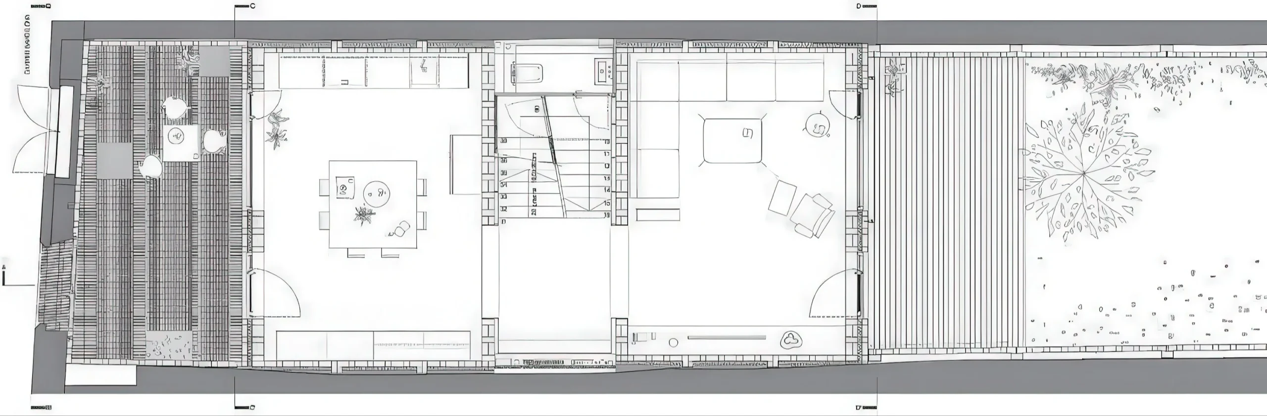
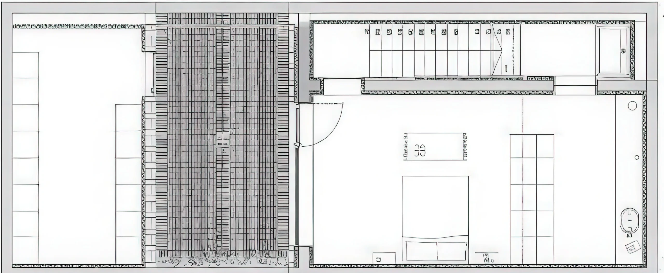
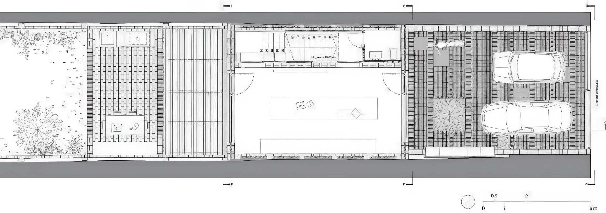
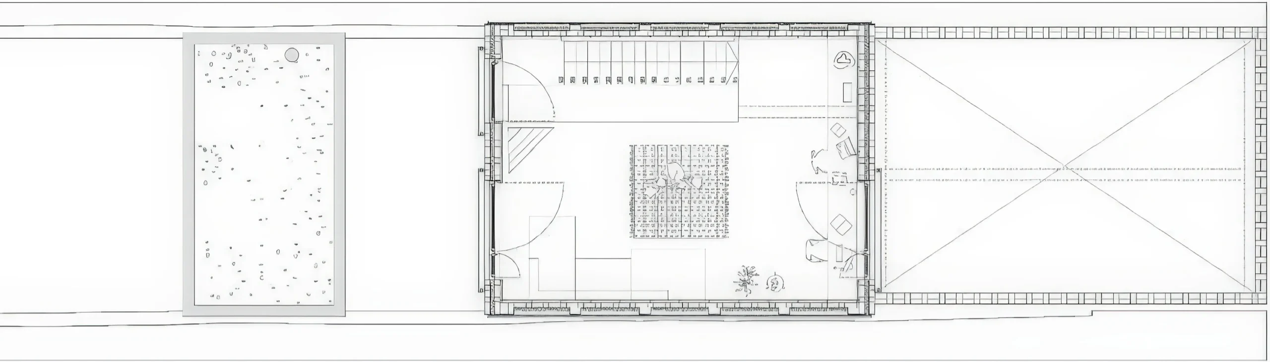
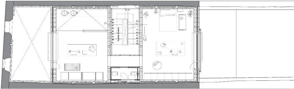
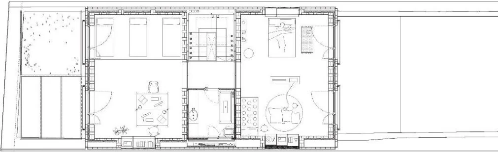
1014号房屋 / House 1014 | Harquitectes 建筑师事务所 Harquitectes 建筑师事务所|Harquitectes • 2026-04-18 下午9:37 • 住宅建筑设计, 建筑设计, 独立住宅设计 1014号房屋位于西班牙巴塞罗那格兰多尔斯历史中心,由 Harquitectes 建筑师事务所设计。这座独立住宅在狭窄地块上巧妙组织空间序列,通过生物气候庭院与承重砖墙系统,创造内外交融的居住体验,展现当代住宅设计的空间创新与可持续策略。 设计: ARQUITECTES 类型: 独立住宅设计 功能: 独立住宅 风格: 当代建筑 材料: 木材 玻璃 砖材 金属板 尺度: 微型建筑与装置 地点:格兰多尔斯 时间: 1970年 项目概述 1014号房屋(House 1014)位于西班牙巴塞罗那格兰多尔斯历史中心,是一座独立住宅项目。建筑占地宽度仅6.5米,总长度达53米,地面层面积345平方米,设计于2010年,2014年建成。 设计理念 Harquitectes 建筑师事务所以回应狭窄地块与历史城区文脉为核心设计理念,通过创造生物气候庭院与空间序列,解决采光、隐私与热舒适性挑战。设计巧妙利用东西向狭长地块,将建筑从街道线后退,形成过渡空间,模糊室内外界限。 空间与功能 1014号房屋的地面层作为主要生活区域,组织为连续的空间序列,从一条街道延伸至另一条街道。空间包含室内低矮与高挑房间、半室外覆盖区域、生物气候调节空间及露天庭院,形成多样化的居住体验。楼梯连接至上层私密卧室与地下室服务空间,实现功能清晰分区。 材料与技术 建筑采用承重砖墙系统,结构即空间,限定开口尺度与比例。外墙为双层陶瓷构造,填充10厘米木纤维保温层,结合地热辐射系统与金属复合楼板,实现高效热惰性与低能耗运行。可伸缩屋顶与悬挂式遮阳构件增强气候适应性。 项目特色与启发 1014号房屋展示了在极端场地条件下如何通过被动式设计策略与材料创新,创造高品质居住环境。Harquitectes 的设计为高密度历史城区住宅更新提供了空间组织、结构整合与可持续技术协同的典范参考。 设计团队 Harquitectes 建筑师事务所是西班牙知名设计团队,专注于建筑可持续性与地域文脉回应。其作品以材料实验、空间序列与气候适应性著称,1014号房屋体现了其在住宅设计领域的创新探索与实践成果。 项目概述 1014号房屋(House 1014)位于西班牙巴塞罗那格兰多尔斯历史中心,是一座独立住宅项目。建筑占地宽度仅6.5米,总长度达53米,地面层面积345平方米,设计于2010年,2014年建成。 设计理念 Harquitectes 建筑师事务所以回应狭窄地块与历史城区文脉为核心设计理念,通过创造生物气候庭院与空间序列,解决采光、隐私与热舒适性挑战。设计巧妙利用东西向狭长地块,将建筑从街道线后退,形成过渡空间,模糊室内外界限。 空间与功能 1014号房屋的地面层作为主要生活区域,组织为连续的空间序列,从一条街道延伸至另一条街道。空间包含室内低矮与高挑房间、半室外覆盖区域、生物气候调节空间及露天庭院,形成多样化的居住体验。楼梯连接至上层私密卧室与地下室服务空间,实现功能清晰分区。 材料与技术 建筑采用承重砖墙系统,结构即空间,限定开口尺度与比例。外墙为双层陶瓷构造,填充10厘米木纤维保温层,结合地热辐射系统与金属复合楼板,实现高效热惰性与低能耗运行。可伸缩屋顶与悬挂式遮阳构件增强气候适应性。 项目特色与启发 1014号房屋展示了在极端场地条件下如何通过被动式设计策略与材料创新,创造高品质居住环境。Harquitectes 的设计为高密度历史城区住宅更新提供了空间组织、结构整合与可持续技术协同的典范参考。 设计团队 Harquitectes 建筑师事务所是西班牙知名设计团队,专注于建筑可持续性与地域文脉回应。其作品以材料实验、空间序列与气候适应性著称,1014号房屋体现了其在住宅设计领域的创新探索与实践成果。 本文来自 © Harquitectes 建筑师事务所|Harquitectes, 发布于 © 建筑学院官方网站。 未经授权,禁止转载或摘编。 编辑版本版权归 © 建筑学院官方网站 所有, 设计、图纸及照片版权归设计方 © Harquitectes 建筑师事务所|Harquitectes ↗ 所有。 查看作者在建筑学院发布的更多作品: Harquitectes 建筑师事务所|Harquitectes @ 建筑学院官方网站 HarquitectesHouse 1014可持续住宅格兰多尔斯住宅独立住宅设计 Harquitectes 建筑师事务所|Harquitectes事务所 & 设计师 下载原图 收藏 0 关于作者 Harquitectes 建筑师事务所|Harquitectes事务所 & 设计师 关注私信 24 文章 0 评论 0 粉丝 Harquitectes是西班牙备受赞誉的建筑师事务所,以其对环境、材料和建造逻辑的深刻洞察而闻名。其官网harquitectes.com展示了众多获奖作品,涵盖学校、住宅及公共建筑。他们擅长运用本土、可持续的策略,创造舒适、高效且充满诗意的空间。 57学生公寓,ETSAV校园 57 Student Dwellings,ETSAV Campus | Harquitectes 建筑师事务所|Harquitectes 上一篇 2026-04-17 下午8:19 ICTA-ICP研究中心 / Research Centre ICTA-ICP | +Harquitectes 建筑师事务所 下一篇 2026-04-18 下午9:53 猜你喜欢 Oyagi 住宅 / Oyagi House | SANAA 2026-02-08 住宅建筑设计 萨尔曼松街住宅改造 / Home Renovation on Salmerón Street | HArquitectes 2026-01-03 住宅建筑设计 Gotanda的房子 / House in Gotanda | 长谷川豪建筑事务所 2025-11-25 公共建筑设计 格兰罗拉住宅 / House in Granollers | HArquitectes 2026-04-07 住宅建筑设计 6 VPP Ses Veles / 6 Social Housing Units. Ses Veles | FORTUNY + ALVENTOSA MORELL ARQUITECTES 2026-03-30 住宅建筑设计 House at the Bäumle / Vertical Living | 贝尔纳多·巴德尔|Bernardo Bader 2025-11-19 公共建筑设计 发表回复 请登录后评论...登录后才能评论 提交