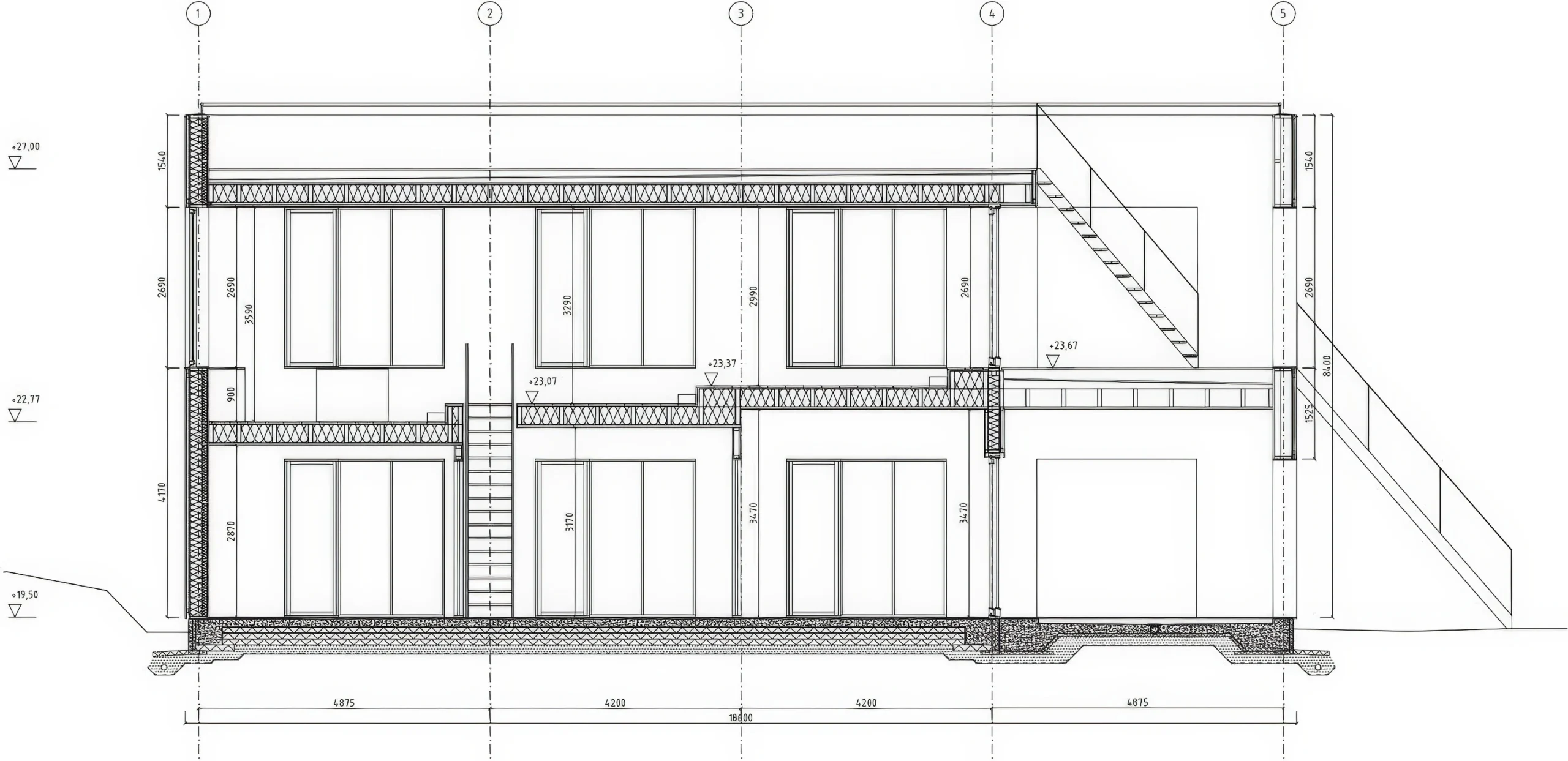
别墅托维诺森 / Villa Toivonen | Arrhov Frick Arrhov Frick • 2026-01-05 下午9:18 • 住宅建筑设计, 建筑师, 建筑设计, 独立住宅, 独立住宅设计 别墅托维诺森由Arrhov Frick建筑事务所设计,位于芬兰奥兰群岛的松林环境中。这座独立住宅以简洁的矩形木结构体量回应场地特征,通过多层次内部空间与3×3米规则开窗,创造从地面到天空的漫步体验,巧妙连接森林景观与远处海景。 设计: Arrhov Frick 类型: 独立住宅设计 功能: 独立住宅 风格: 现代主义 材料: 木材 玻璃 尺度: 小型建筑 地点:奥兰群岛 时间: 2020年 项目概述 别墅托维诺森是Arrhov Frick建筑事务所在芬兰奥兰群岛设计的独立住宅项目。建筑采用矩形木结构体量,通过多层次内部空间组织,创造独特的垂直漫步体验,连接森林地面与天空视野。 设计理念 设计团队以”向天空漫步”为核心理念,回应场地虽能听见海浪却看不见海景的特殊条件。建筑外部严谨的几何形态与内部复杂的空间层次形成鲜明对比,体现现代主义建筑对场地文脉的深度思考。 空间与功能 别墅托维诺森的空间组织独具特色:首层布置私密卧室与卫生间,上层为开放式生活空间,通过阶梯式地面划分厨房、餐厅和起居区。流线设计引导使用者从森林穿过建筑,最终抵达俯瞰树冠的屋顶露台,享受奥兰海全景。 材料与技术 建筑主要采用木材外包,结构简洁而精确。规则的3×3米开窗为每个房间提供均匀采光,同时保持外部立面的统一性。可持续设计体现在对现有松林的最小干预和自然通风采光策略。 项目特色与启发 别墅托维诺森展示了如何通过垂直空间序列化解场地限制,为住宅设计提供了新的思考维度。Arrhov Frick的设计证明了即使在视觉受限的场地,建筑仍能创造与自然环境的深层对话。 设计团队 Arrhov Frick是瑞典知名建筑事务所,以精致的住宅设计和敏锐的空间感知著称。他们在别墅托维诺森项目中再次展现了将简单形式转化为丰富空间体验的设计能力。 项目概述 别墅托维诺森是Arrhov Frick建筑事务所在芬兰奥兰群岛设计的独立住宅项目。建筑采用矩形木结构体量,通过多层次内部空间组织,创造独特的垂直漫步体验,连接森林地面与天空视野。 设计理念 设计团队以”向天空漫步”为核心理念,回应场地虽能听见海浪却看不见海景的特殊条件。建筑外部严谨的几何形态与内部复杂的空间层次形成鲜明对比,体现现代主义建筑对场地文脉的深度思考。 空间与功能 别墅托维诺森的空间组织独具特色:首层布置私密卧室与卫生间,上层为开放式生活空间,通过阶梯式地面划分厨房、餐厅和起居区。流线设计引导使用者从森林穿过建筑,最终抵达俯瞰树冠的屋顶露台,享受奥兰海全景。 材料与技术 建筑主要采用木材外包,结构简洁而精确。规则的3×3米开窗为每个房间提供均匀采光,同时保持外部立面的统一性。可持续设计体现在对现有松林的最小干预和自然通风采光策略。 项目特色与启发 别墅托维诺森展示了如何通过垂直空间序列化解场地限制,为住宅设计提供了新的思考维度。Arrhov Frick的设计证明了即使在视觉受限的场地,建筑仍能创造与自然环境的深层对话。 设计团队 Arrhov Frick是瑞典知名建筑事务所,以精致的住宅设计和敏锐的空间感知著称。他们在别墅托维诺森项目中再次展现了将简单形式转化为丰富空间体验的设计能力。 本文来自 © Arrhov Frick, 发布于 © 建筑学院官方网站。 未经授权,禁止转载或摘编。 编辑版本版权归 © 建筑学院官方网站 所有, 设计、图纸及照片版权归设计方 © Arrhov Frick ↗ 所有。 查看作者在建筑学院发布的更多作品: Arrhov Frick @ 建筑学院官方网站 Arrhov FrickVilla Toivonen奥兰群岛建筑独立住宅设计 Arrhov Frick事务所 & 设计师 下载原图 收藏 0 关于作者 Arrhov Frick事务所 & 设计师 关注私信 16 文章 0 评论 1 粉丝 Arrhov Frick 是由 Johan Arrhov 和 Henrik Frick 于2010年在斯德哥尔摩创立的建筑事务所。他们以清晰的建造逻辑、实用的空间规划和极简的美学著称,设计涵盖私人住宅、集合住宅及文化建筑。其官网 arrhovfrick.se 完整展示了他们的作品与实践理念。 Taifong Golf Club 接待馆群 / Taifong Golf Club Reception Pavilions | 阿尔瓦罗·西扎|Álvaro Siza 上一篇 2026-01-05 下午9:05 伦敦寄宿屋原型 / Prototype for Boarding Houses in London | Dogma 下一篇 2026-01-06 下午9:40 猜你喜欢 梅诺卡的Son Parc住宅 / Son Parc House in Menorca | RCR 建筑事务所|RCR Arquitectes 2025-11-19 公共建筑设计 加那达之家 / Cañada House | Taller Héctor Barroso 2026-02-17 住宅建筑设计 汉马尔比乌花园住宅区 / Hammarby Gård Housing Block | Arrhov Frick 2026-01-22 住宅建筑设计 克拉多伊村屋 House in Campolide | 艾雷斯·马特乌斯建筑事务所|Aires Mateus 2025-10-30 公共建筑设计 梅尔迪斯的房子 II / House in Melides II | 艾雷斯·马特乌斯建筑事务所 2025-11-11 公共建筑设计 沃尔彭之家 / Walpen House | 吉翁·A·卡米纳达|Gion A. Caminada 2025-12-20 住宅建筑设计 发表回复 请登录后评论...登录后才能评论 提交