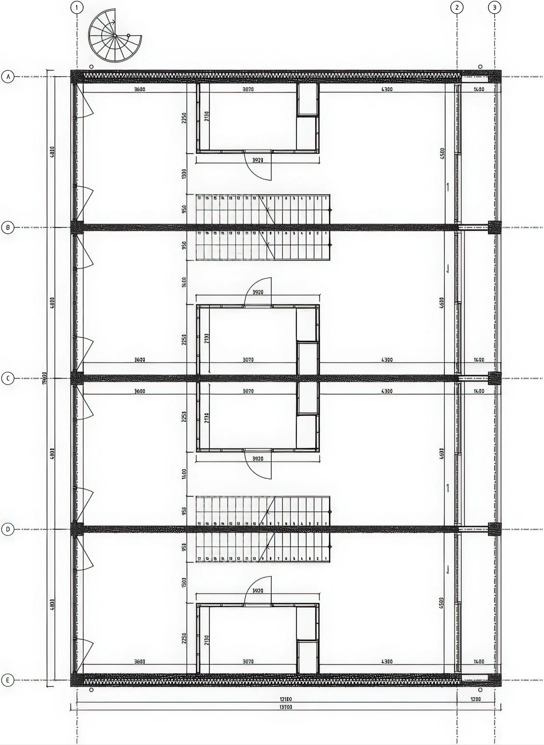
单元式住宅小区 / Unité Housing Blocks | Arrhov Frick Arrhov Frick • 2026-01-24 上午9:56 • 住宅建筑设计, 公寓住宅设计, 建筑设计 单元式住宅小区由Arrhov Frick建筑事务所设计,位于瑞典斯德哥尔摩Norra Djurgårdsstaden区,通过灵活的结构体系与空间布局,实现了从工业区到现代居住区的转型,展现了当代集合住宅的适应性与可持续性。 设计: Arrhov Frick 类型: 建筑设计 功能: 公寓住宅 风格: 当代建筑 材料: 混凝土 木材 玻璃 尺度: 中型建筑 地点:斯德哥尔摩 时间: 2021年 项目概述 单元式住宅小区位于瑞典斯德哥尔摩Norra Djurgårdsstaden区,原为工业用地转型为城市居住扩展区。项目包含三栋住宅建筑,设计始于2013年,最终于2021年建成,经历了多次功能调整与结构优化,体现了现代集合住宅的灵活性与适应性。 设计理念 Arrhov Frick建筑事务所以“九命猫”为隐喻,强调建筑在多次挑战中的韧性与重生能力。设计将原计划的两栋建筑分解为三栋,确保每户公寓多向采光与视野,回应高密度城市环境中的居住品质需求。 空间与功能 项目通过灵活的平面布局,实现了从36户到68户再到最终46户的单元调整。所有公寓均设计为多朝向,引入充足自然光线,并优化室内外视觉连接。屋顶作为社区花园,增强了居民互动与空间活力。 材料与技术 建筑最初采用木结构柱梁体系,后改为预制混凝土结构,提升了耐火性与施工效率。混凝土框架在2019年火灾中表现优异,证明了其结构安全性与耐久性。外墙与内部隔墙采用轻质材料,支持后期空间重组。 项目特色与启发 单元式住宅小区展示了集合住宅在应对经济波动、功能变更与突发事件时的结构弹性与空间适应性,为高密度城市住宅设计提供了可借鉴的灵活策略与可持续实践案例。 设计团队 Arrhov Frick是瑞典知名建筑事务所,专注于住宅与公共建筑项目,以简洁的现代语言、材料创新与可持续设计著称。在本项目中,团队主导了从概念到建成的全过程,确保了设计理念的连贯实现。 项目概述 单元式住宅小区位于瑞典斯德哥尔摩Norra Djurgårdsstaden区,原为工业用地转型为城市居住扩展区。项目包含三栋住宅建筑,设计始于2013年,最终于2021年建成,经历了多次功能调整与结构优化,体现了现代集合住宅的灵活性与适应性。 设计理念 Arrhov Frick建筑事务所以“九命猫”为隐喻,强调建筑在多次挑战中的韧性与重生能力。设计将原计划的两栋建筑分解为三栋,确保每户公寓多向采光与视野,回应高密度城市环境中的居住品质需求。 空间与功能 项目通过灵活的平面布局,实现了从36户到68户再到最终46户的单元调整。所有公寓均设计为多朝向,引入充足自然光线,并优化室内外视觉连接。屋顶作为社区花园,增强了居民互动与空间活力。 材料与技术 建筑最初采用木结构柱梁体系,后改为预制混凝土结构,提升了耐火性与施工效率。混凝土框架在2019年火灾中表现优异,证明了其结构安全性与耐久性。外墙与内部隔墙采用轻质材料,支持后期空间重组。 项目特色与启发 单元式住宅小区展示了集合住宅在应对经济波动、功能变更与突发事件时的结构弹性与空间适应性,为高密度城市住宅设计提供了可借鉴的灵活策略与可持续实践案例。 设计团队 Arrhov Frick是瑞典知名建筑事务所,专注于住宅与公共建筑项目,以简洁的现代语言、材料创新与可持续设计著称。在本项目中,团队主导了从概念到建成的全过程,确保了设计理念的连贯实现。 本文来自 © Arrhov Frick, 发布于 © 建筑学院官方网站。 未经授权,禁止转载或摘编。 编辑版本版权归 © 建筑学院官方网站 所有, 设计、图纸及照片版权归设计方 © Arrhov Frick ↗ 所有。 查看作者在建筑学院发布的更多作品: Arrhov Frick @ 建筑学院官方网站 Arrhov FrickUnité Housing Blocks可持续住宅斯德哥尔摩住宅集合住宅设计 Arrhov Frick事务所 & 设计师 下载原图 收藏 0 关于作者 Arrhov Frick事务所 & 设计师 关注私信 16 文章 0 评论 1 粉丝 Arrhov Frick 是由 Johan Arrhov 和 Henrik Frick 于2010年在斯德哥尔摩创立的建筑事务所。他们以清晰的建造逻辑、实用的空间规划和极简的美学著称,设计涵盖私人住宅、集合住宅及文化建筑。其官网 arrhovfrick.se 完整展示了他们的作品与实践理念。 别墅托维诺森 / Villa Toivonen | Arrhov Frick 上一篇 2026-01-24 上午9:55 44套社会住房单位 / Proposal for 44 Social Housing Units | Dogma 下一篇 2026-01-25 上午10:24 猜你喜欢 汉马尔比乌花园住宅区 / Hammarby Gård Housing Block | Arrhov Frick 2026-01-22 住宅建筑设计 工厂建筑工厂大厦 / Factory Building Fabriken | Arrhov Frick 2025-12-23 工业建筑 马尔哈洛登住房楼 / Mälarhöjden Housing Block | Arrhov Frick 2026-01-22 住宅建筑设计 安纳阿戈拉斯公寓楼 / ANAXÁGORAS APARTMENT BUILDING | Taller Héctor Barroso 2026-02-17 住宅建筑设计 别墅托维诺森 / Villa Toivonen | Arrhov Frick 2026-01-05 住宅建筑设计 巴利阿里群岛6 VPP Ses Veles / 6 Social Housing Units. Ses Veles | FORTUNY + ALVENTOSA MORELL ARQUITECTES巴利阿里群岛 2026-01-19 公寓住宅设计 发表回复 请登录后评论...登录后才能评论 提交