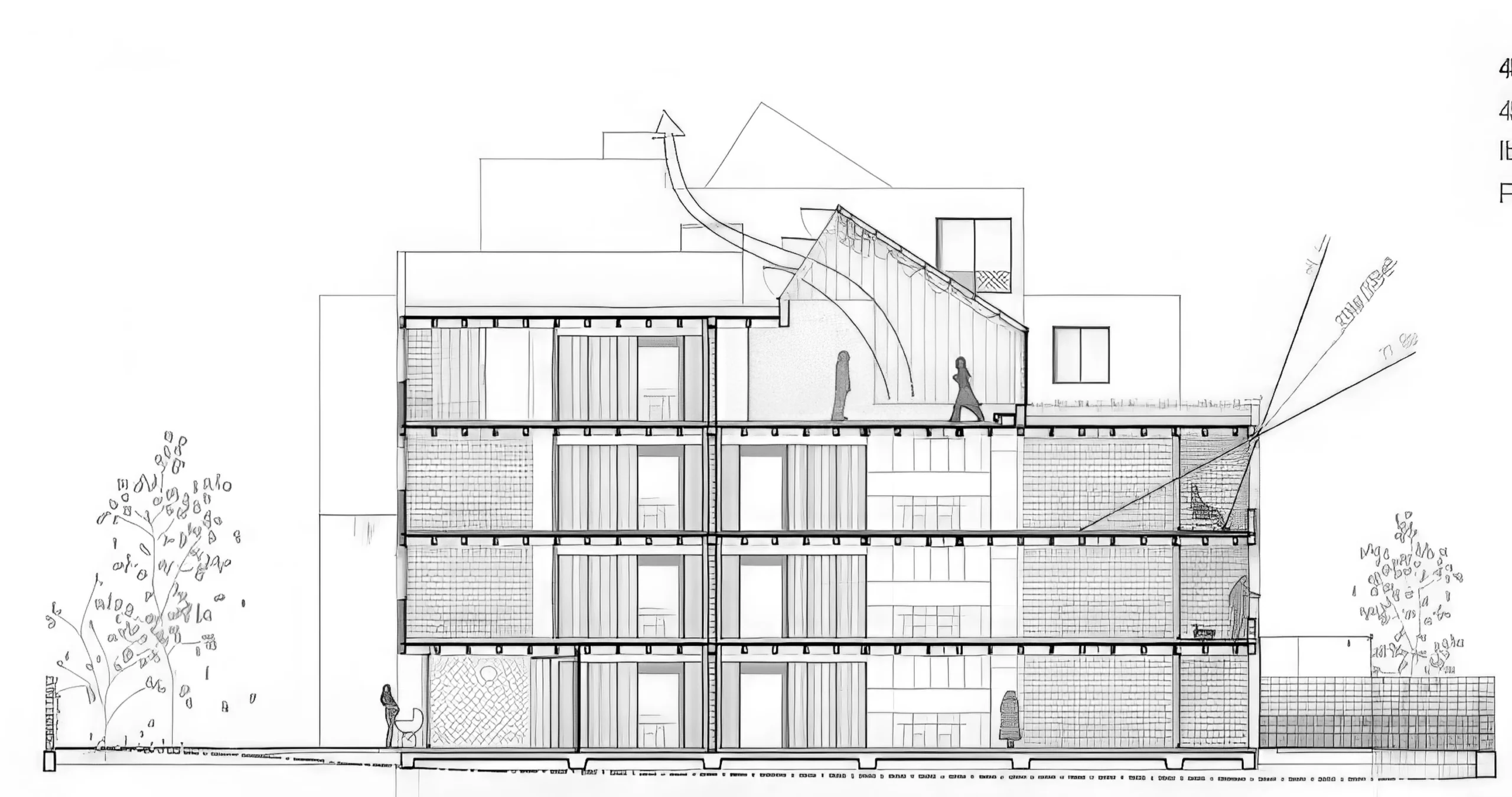
一个必要的经历 / Una Experiencia Necesaria | ALBERT CUCHÍ ALBERT CUCHI • 2026-01-19 上午11:22 • 文化建筑设计, 文化综合体, 概念建筑 “一个必要的经历”是ALBERT CUCHÍ教授关于巴利阿里住房研究所(IBAVI)生态建筑实践的研究论文,探讨了在应对气候危机背景下,如何通过本土材料、生物气候策略和传统建造技艺重构可持续人居环境。 设计: ALBERT CUCHI 类型: 概念建筑 功能: 文化中心 风格: 当代建筑 材料: 木材 石材 夯土 再生材料 尺度: 小型建筑 地点:巴利阿里群岛 时间: 2018年 项目概述 《一个必要的经历》是ALBERT CUCHÍ教授对巴利阿里住房研究所(IBAVI)可持续建筑实践的深度研究,聚焦于西班牙巴利阿里群岛地区社会住宅项目。该研究系统分析了IBAVI在应对气候危机、推动建筑行业脱碳方面的创新探索。 设计理念 研究核心围绕建筑行业的生态转型需求,强调必须从根本上改变当前人居环境的生产方式。ALBERT CUCHÍ提出,真正的可持续建筑应回归本土材料、传统技艺和生物气候设计,而非依赖高能耗的工业化解决方案。 空间与功能 研究详细记录了IBAVI多个社会住宅项目的空间组织策略,包括利用承重墙体系、优化开窗布局、设置门廊和庭院等过渡空间。这些设计不仅回应了当地气候条件,也创造了适应多样化家庭需求的居住类型。 材料与技术 ALBERT CUCHÍ重点分析了IBAVI对本土低碳材料的应用,包括马雷斯石、波西多尼亚海草、木材和天然石灰等。这些材料具有极低的隐含碳排放,其使用需要重新建立基于传统知识和工艺的质量控制体系。 项目特色与启发 该研究为建筑行业的生态转型提供了重要参考框架,展示了如何在实践中平衡传统智慧与现代需求。ALBERT CUCHÍ的工作证明,基于地域资源的生产模式是实现建筑真正可持续性的关键路径。 设计团队 ALBERT CUCHÍ是加泰罗尼亚理工大学建筑技术教授,长期致力于可持续建筑研究。作为SB14可持续建筑世界会议主席,他在建筑环境可持续性领域具有深厚学术积累,其研究为IBAVI的实践提供了重要理论支撑。 项目概述 《一个必要的经历》是ALBERT CUCHÍ教授对巴利阿里住房研究所(IBAVI)可持续建筑实践的深度研究,聚焦于西班牙巴利阿里群岛地区社会住宅项目。该研究系统分析了IBAVI在应对气候危机、推动建筑行业脱碳方面的创新探索。 设计理念 研究核心围绕建筑行业的生态转型需求,强调必须从根本上改变当前人居环境的生产方式。ALBERT CUCHÍ提出,真正的可持续建筑应回归本土材料、传统技艺和生物气候设计,而非依赖高能耗的工业化解决方案。 空间与功能 研究详细记录了IBAVI多个社会住宅项目的空间组织策略,包括利用承重墙体系、优化开窗布局、设置门廊和庭院等过渡空间。这些设计不仅回应了当地气候条件,也创造了适应多样化家庭需求的居住类型。 材料与技术 ALBERT CUCHÍ重点分析了IBAVI对本土低碳材料的应用,包括马雷斯石、波西多尼亚海草、木材和天然石灰等。这些材料具有极低的隐含碳排放,其使用需要重新建立基于传统知识和工艺的质量控制体系。 项目特色与启发 该研究为建筑行业的生态转型提供了重要参考框架,展示了如何在实践中平衡传统智慧与现代需求。ALBERT CUCHÍ的工作证明,基于地域资源的生产模式是实现建筑真正可持续性的关键路径。 设计团队 ALBERT CUCHÍ是加泰罗尼亚理工大学建筑技术教授,长期致力于可持续建筑研究。作为SB14可持续建筑世界会议主席,他在建筑环境可持续性领域具有深厚学术积累,其研究为IBAVI的实践提供了重要理论支撑。 本文来自 © ALBERT CUCHI, 发布于 © 建筑学院官方网站。 未经授权,禁止转载或摘编。 编辑版本版权归 © 建筑学院官方网站 所有, 设计、图纸及照片版权归设计方 © ALBERT CUCHI ↗ 所有。 查看作者在建筑学院发布的更多作品: ALBERT CUCHI @ 建筑学院官方网站 ALBERT CUCHÍuna-experiencia-necesaria可持续建筑设计建筑研究论文生态建筑研究 ALBERT CUCHI事务所 & 设计师 下载原图 收藏 0 关于作者 ALBERT CUCHI事务所 & 设计师 关注私信 3 文章 0 评论 0 粉丝 加泰罗尼亚建筑师阿尔伯特·库奇(Albert Cucchi)专注于可持续建筑与能源效率设计,是该领域重要的研究者与教育者。他的学术主页位于 Academia.edu,该平台汇集了他的研究论文、学术著作及教学成果,是深入了解其关于生态建筑、环境设计及低能耗建造技术前沿思想的权威资源库。 希伯伦清真寺及文化中心 / Mosque and Cultural Centre, Heilbronn | 贝尔纳多·巴德尔|Bernardo Bader 上一篇 2026-01-18 上午8:38 大学校园系统理论模型 / Theoretical Model for a System of University Campuses | Dogma 下一篇 2026-01-25 上午10:23 猜你喜欢 一个必要的经历 / Una Experiencia Necesaria | ALBERT CUCHÍ 2025-12-19 住宅建筑设计 一个必要的经历 / Una Experiencia Necesaria | ALBERT CUCHÍ 2026-03-30 概念方案 发表回复 请登录后评论...登录后才能评论 提交