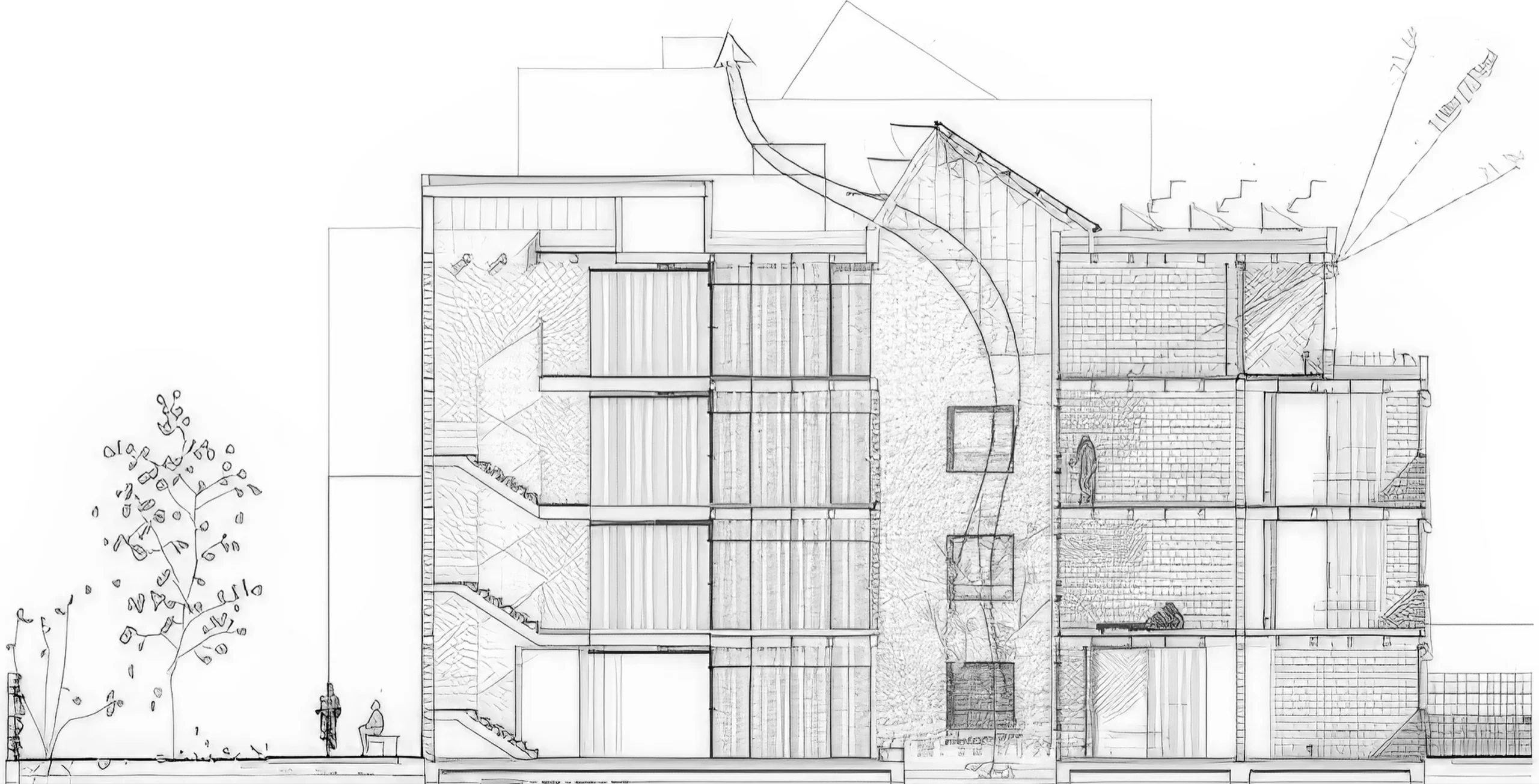
43 VPP MARIA TERESA LEON 8-14 / 43 Social Housing Units Maria Teresa Leon 8-14 | PERIS TORAL ARQUITECTES ARQUITECTES • 2026-01-21 下午1:32 • 住宅建筑设计, 公寓住宅设计 43 VPP MARIA TERESA LEON 8-14 社会住宅项目由 PERIS TORAL ARQUITECTES 设计,位于西班牙伊维萨岛。该项目采用被动式设计策略,通过压缩土块墙体系统、交叉通风和生物气候庭院,实现无需主动供暖制冷系统的可持续住宅设计。 设计: ARQUITECTES 类型: 公寓住宅设计 功能: 公寓住宅 风格: 可持续建筑 材料: 混凝土 木材 玻璃 夯土 尺度: 中型建筑 地点:伊维萨岛 时间: 2022年 项目概述 43 VPP MARIA TERESA LEON 8-14 是位于西班牙伊维萨岛的社会住宅项目,由 PERIS TORAL ARQUITECTES 设计。项目包含43个社会住宅单元,涵盖一室、两室和三室户型,设计于2018年,建成于2022年。该项目以高密度建筑形式回应城市环境,同时保持与周边建筑的尺度协调。 设计理念 PERIS TORAL ARQUITECTES 的设计理念源于创造无需主动供暖制冷系统的住宅愿景。设计团队通过建筑朝向、构造系统和空间组织来回应伊维萨岛的气候特征,优先考虑日照和海风利用,寻求白天 Embat 风和夜间 Terral 风的主导风向,实现全年的热舒适性。 空间与功能 项目采用三个聚合单元组织,每个楼层最多四个住宅围绕庭院布置,确保所有户型都具备交叉通风。空间系统基于4×3米的模块化房间单元,每个模块面积12平方米,通过大型滑动门实现视觉空间的扩展。厨房-餐厅位于住宅中心作为分配模块,消除走廊并优化平面效率。 材料与技术 建筑采用20厘米厚压缩土块承重墙系统,密度约2000kg/m³,提供高热惯性、良好隔声性能和低碳足迹。楼板采用单向混凝土肋形结构,增加散热表面积并减少材料用量。外部采用软木ETICS保温系统,内部隔墙和门窗使用落叶松木,与土坯的原始质感形成对比。 项目特色与启发 43 VPP MARIA TERESA LEON 8-14 项目展示了如何在密集城市环境中实现被动式住宅设计。PERIS TORAL ARQUITECTES 通过创新的构造系统、模块化空间组织和生物气候策略,为社会住宅提供了可持续设计的典范,对热带和亚热带地区的社会住宅设计具有重要参考价值。 设计团队 PERIS TORAL ARQUITECTES 是西班牙知名建筑事务所,专注于可持续建筑和社会住宅设计。团队以环境敏感性和社会责任感为核心设计理念,在材料创新、能源效率和空间质量方面具有丰富经验,致力于创造与环境和谐共生的建筑作品。 项目概述 43 VPP MARIA TERESA LEON 8-14 是位于西班牙伊维萨岛的社会住宅项目,由 PERIS TORAL ARQUITECTES 设计。项目包含43个社会住宅单元,涵盖一室、两室和三室户型,设计于2018年,建成于2022年。该项目以高密度建筑形式回应城市环境,同时保持与周边建筑的尺度协调。 设计理念 PERIS TORAL ARQUITECTES 的设计理念源于创造无需主动供暖制冷系统的住宅愿景。设计团队通过建筑朝向、构造系统和空间组织来回应伊维萨岛的气候特征,优先考虑日照和海风利用,寻求白天 Embat 风和夜间 Terral 风的主导风向,实现全年的热舒适性。 空间与功能 项目采用三个聚合单元组织,每个楼层最多四个住宅围绕庭院布置,确保所有户型都具备交叉通风。空间系统基于4×3米的模块化房间单元,每个模块面积12平方米,通过大型滑动门实现视觉空间的扩展。厨房-餐厅位于住宅中心作为分配模块,消除走廊并优化平面效率。 材料与技术 建筑采用20厘米厚压缩土块承重墙系统,密度约2000kg/m³,提供高热惯性、良好隔声性能和低碳足迹。楼板采用单向混凝土肋形结构,增加散热表面积并减少材料用量。外部采用软木ETICS保温系统,内部隔墙和门窗使用落叶松木,与土坯的原始质感形成对比。 项目特色与启发 43 VPP MARIA TERESA LEON 8-14 项目展示了如何在密集城市环境中实现被动式住宅设计。PERIS TORAL ARQUITECTES 通过创新的构造系统、模块化空间组织和生物气候策略,为社会住宅提供了可持续设计的典范,对热带和亚热带地区的社会住宅设计具有重要参考价值。 设计团队 PERIS TORAL ARQUITECTES 是西班牙知名建筑事务所,专注于可持续建筑和社会住宅设计。团队以环境敏感性和社会责任感为核心设计理念,在材料创新、能源效率和空间质量方面具有丰富经验,致力于创造与环境和谐共生的建筑作品。 本文来自 © ARQUITECTES, 发布于 © 建筑学院官方网站。 未经授权,禁止转载或摘编。 编辑版本版权归 © 建筑学院官方网站 所有, 设计、图纸及照片版权归设计方 © ARQUITECTES ↗ 所有。 查看作者在建筑学院发布的更多作品: ARQUITECTES @ 建筑学院官方网站 compressed-earth-blockpassive-designPERIS-TORAL-ARQUITECTESsocial-housing-ibizasustainable-architecture ARQUITECTES事务所 & 设计师 下载原图 收藏 0 关于作者 ARQUITECTES事务所 & 设计师 关注私信 6 文章 0 评论 0 粉丝 ARQUITECTES 是来自西班牙巴塞罗那的建筑事务所,以其严谨的可持续设计哲学闻名。他们擅长城市采矿策略,改造既有建筑,创造出充满自然光与通风的诗意空间。其官网 harquitectes.com 展示了曾获密斯奖提名的众多作品,是研究当代欧洲生态建筑的重要案例库。 53号建筑 / 42 VPP Cós 49-53 | PERIS TORAL ARQUITECTES 上一篇 2026-01-21 下午1:32 马尔哈洛登住房楼 / Mälarhöjden Housing Block | Arrhov Frick 下一篇 2026-01-22 上午9:35 发表回复 请登录后评论...登录后才能评论 提交