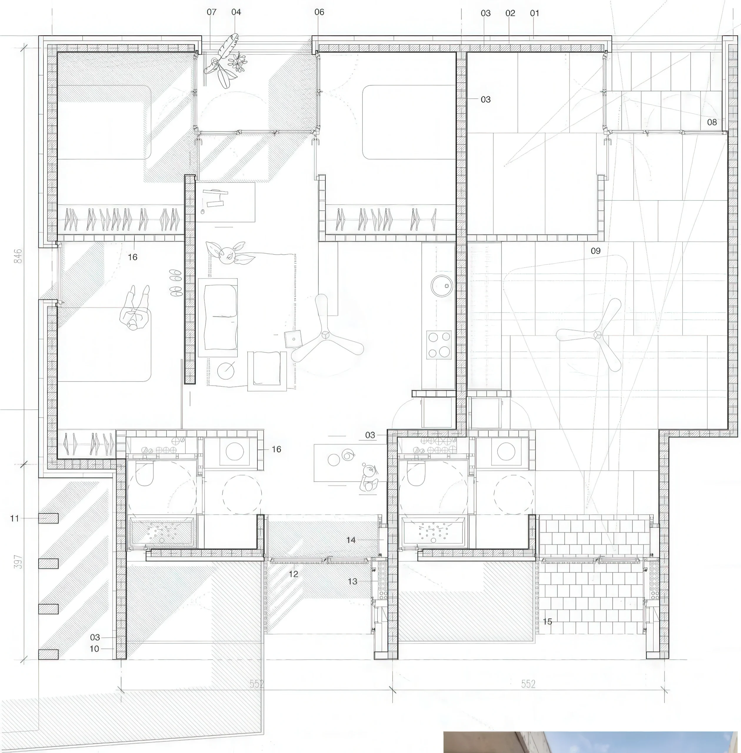
53号建筑 / 42 VPP Cós 49-53 | PERIS TORAL ARQUITECTES ARQUITECTES • 2026-01-21 下午1:32 • 住宅建筑设计, 公寓住宅设计, 建筑设计 53号建筑位于马略卡岛松塞韦拉,由PERIS TORAL ARQUITECTES设计,包含42套社会住宅单元。项目通过双体量布局与对角庭院设计,巧妙回应历史城区边缘环境,采用当地石材与陶瓷材料实现建筑与环境的有机融合。 设计: ARQUITECTES 类型: 建筑设计 功能: 公寓住宅 风格: 地域主义 材料: 混凝土 木材 石材 陶瓷 尺度: 中型建筑 地点:松塞韦拉 时间: 2020年 项目概述 53号建筑位于西班牙马略卡岛松塞韦拉,是由PERIS TORAL ARQUITECTES设计的42套社会住宅项目。建筑采用双体量布局,顺应场地坡度错落布置,设计于2020年完成,巧妙平衡了历史城区保护与现代居住需求。 设计理念 设计灵感源自场地特有的砂岩围墙与花园氛围,通过双尺度策略回应城镇边缘与历史中心的关系。建筑体量沿周边街道对齐,减少对老城区的视觉冲击,同时在对角位置设置两个庭院作为过渡空间,实现与环境的有机融合。 空间与功能 每层设置6-8套住宅单元,围绕中央走廊组织。小型庭院序列为两侧住宅提供采光与交叉通风,其余住宅采用通透布局实现双朝向。空间组织打破传统昼夜分区,卧室位于平面两端,通过客厅连接两个立面,形成对角视觉通廊。 材料与技术 采用当地砂岩、生物质烧制陶瓷砌块等本土材料。结构体系采用承重墙交错布置,形成对角线平面逻辑。白色混凝土楼板减轻自重,斜屋顶采用阿拉伯瓦片,外墙使用10-40cm厚砂岩,热工性能通过软木保温系统与石灰抹灰提升。 项目特色与启发 53号建筑展示了如何在历史敏感地段进行社会住宅设计的创新思路,通过材料选择、空间组织与被动式设计策略,为当代城市更新项目提供了重要参考价值。 设计团队 PERIS TORAL ARQUITECTES是西班牙知名建筑事务所,专注于住宅与公共建筑设计,擅长运用本土材料与可持续建造技术,在53号建筑中展现了其对地域文脉与居住品质的深度思考。 项目概述 53号建筑位于西班牙马略卡岛松塞韦拉,是由PERIS TORAL ARQUITECTES设计的42套社会住宅项目。建筑采用双体量布局,顺应场地坡度错落布置,设计于2020年完成,巧妙平衡了历史城区保护与现代居住需求。 设计理念 设计灵感源自场地特有的砂岩围墙与花园氛围,通过双尺度策略回应城镇边缘与历史中心的关系。建筑体量沿周边街道对齐,减少对老城区的视觉冲击,同时在对角位置设置两个庭院作为过渡空间,实现与环境的有机融合。 空间与功能 每层设置6-8套住宅单元,围绕中央走廊组织。小型庭院序列为两侧住宅提供采光与交叉通风,其余住宅采用通透布局实现双朝向。空间组织打破传统昼夜分区,卧室位于平面两端,通过客厅连接两个立面,形成对角视觉通廊。 材料与技术 采用当地砂岩、生物质烧制陶瓷砌块等本土材料。结构体系采用承重墙交错布置,形成对角线平面逻辑。白色混凝土楼板减轻自重,斜屋顶采用阿拉伯瓦片,外墙使用10-40cm厚砂岩,热工性能通过软木保温系统与石灰抹灰提升。 项目特色与启发 53号建筑展示了如何在历史敏感地段进行社会住宅设计的创新思路,通过材料选择、空间组织与被动式设计策略,为当代城市更新项目提供了重要参考价值。 设计团队 PERIS TORAL ARQUITECTES是西班牙知名建筑事务所,专注于住宅与公共建筑设计,擅长运用本土材料与可持续建造技术,在53号建筑中展现了其对地域文脉与居住品质的深度思考。 本文来自 © ARQUITECTES, 发布于 © 建筑学院官方网站。 未经授权,禁止转载或摘编。 编辑版本版权归 © 建筑学院官方网站 所有, 设计、图纸及照片版权归设计方 © ARQUITECTES ↗ 所有。 查看作者在建筑学院发布的更多作品: ARQUITECTES @ 建筑学院官方网站 42 VPP Cós 49-53PERIS TORAL ARQUITECTES地域主义松塞韦拉建筑社会住宅设计 ARQUITECTES事务所 & 设计师 下载原图 收藏 0 关于作者 ARQUITECTES事务所 & 设计师 关注私信 6 文章 0 评论 0 粉丝 ARQUITECTES 是来自西班牙巴塞罗那的建筑事务所,以其严谨的可持续设计哲学闻名。他们擅长城市采矿策略,改造既有建筑,创造出充满自然光与通风的诗意空间。其官网 harquitectes.com 展示了曾获密斯奖提名的众多作品,是研究当代欧洲生态建筑的重要案例库。 Lapidus工作室 / Atelier Lapidus | Arrhov Frick 上一篇 2026-01-21 下午1:31 43 VPP MARIA TERESA LEON 8-14 / 43 Social Housing Units Maria Teresa Leon 8-14 | PERIS TORAL ARQUITECTES 下一篇 2026-01-21 下午1:32 猜你喜欢 32社交住宅于圣维泽德拉斯帕利戈 / 32 Social Dwellings in San Vicente del Raspeig | 阿尔弗雷多·帕亚|Alfredo Payá 2025-11-13 公共建筑设计 加瓦市社会住房项目 / Social Housing in Gavá | HArquitectes 2026-01-05 住宅建筑设计 32社交住宅于圣维泽德拉斯帕利戈 / 32 Social Dwellings in San Vicente del Raspeig | 阿尔弗雷多·帕亚|Alfredo Payá 2026-04-13 住宅建筑设计 6 VPP Ses Veles / 6 Social Housing Units. Ses Veles | FORTUNY + ALVENTOSA MORELL ARQUITECTES 2025-12-19 住宅建筑设计 23套住宅,特龙卡 23 Housing Units, Trignac | 拉卡东与瓦萨尔建筑师事务所|Lacaton & Vassal 2025-11-12 公共建筑设计 巴利阿里群岛6 VPP Ses Veles / 6 Social Housing Units. Ses Veles | FORTUNY + ALVENTOSA MORELL ARQUITECTES巴利阿里群岛 2026-01-19 公寓住宅设计 发表回复 请登录后评论...登录后才能评论 提交