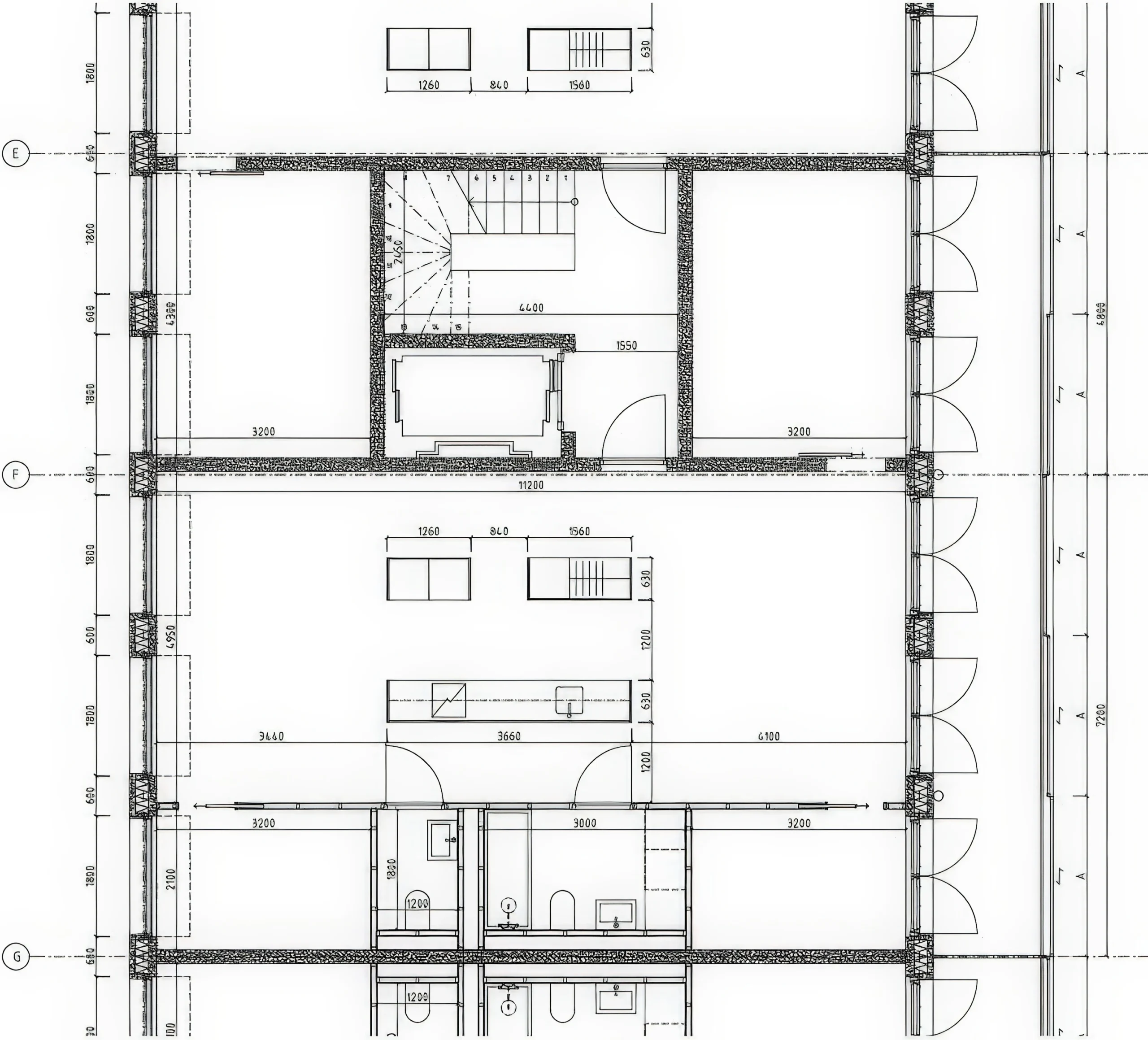
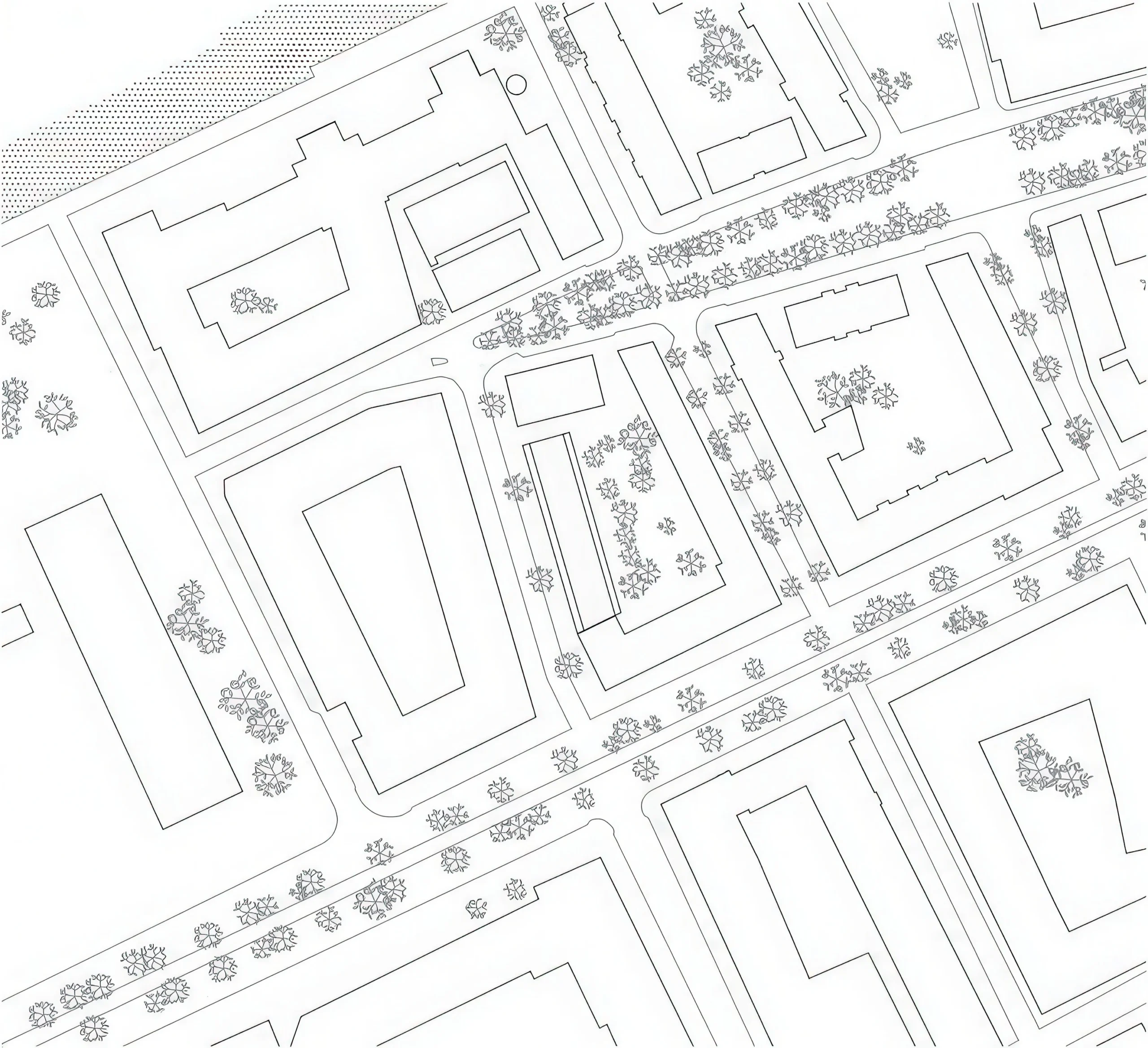
汉马尔比乌花园住宅区 / Hammarby Gård Housing Block | Arrhov Frick Arrhov Frick • 2026-01-22 上午9:36 • 住宅建筑设计, 公寓住宅设计, 建筑设计 汉马尔比乌花园住宅区由 Arrhov Frick 建筑事务所设计,位于瑞典斯德哥尔摩南部的索德尔马尔姆岛,是一座由工业港口区改造而成的住宅建筑。该项目通过预制混凝土结构和双面采光设计,优化居民生活质量,展现了年轻建筑事务所在大型住宅项目中的创新实践。 设计: Arrhov Frick 类型: 建筑设计 功能: 公寓住宅 风格: 当代建筑 材料: 混凝土 玻璃 尺度: 中型建筑 地点:斯德哥尔摩 时间: 2015年 项目概述 汉马尔比乌花园住宅区位于瑞典斯德哥尔摩南部索德尔马尔姆岛,原为工业港口区改造为住宅区。该项目为中型住宅建筑,建筑面积未明确,设计于2012年,建成于2015年,由 Arrhov Frick 建筑事务所负责设计。 设计理念 Arrhov Frick 建筑事务所以提升居民生活质量为核心设计理念,通过严格的体量控制和双面采光策略,最大化利用自然光线,创造舒适宜居的居住环境。设计团队在预算和施工限制下,探索预制化建造系统,实现高效组装与成本控制。 空间与功能 汉马尔比乌花园住宅区采用双面公寓布局,确保从早到晚均有阳光照射。面向街道设置水平开启窗,形成法式阳台;面向庭院则采用连续玻璃阳台,延伸客厅空间,增强室内外连接。空间组织注重采光与视野,提升居住体验。 材料与技术 项目采用预制混凝土骨架结构,简化现场组装流程,降低施工复杂度。接缝设计预留余量,构件表面在工厂完成处理,提高施工效率与质量。该技术策略为后续项目积累了预制化建造经验。 项目特色与启发 汉马尔比乌花园住宅区展示了年轻建筑事务所在大型住宅项目中的实践能力,通过预制化与系统化设计,平衡预算、施工与居住品质。该项目为类似城市更新项目提供了可借鉴的住宅设计策略与施工管理经验。 设计团队 Arrhov Frick 是一家瑞典年轻建筑事务所,专注于住宅与城市更新项目。事务所以创新构造与实用设计著称,致力于通过系统化方法应对建筑复杂性,在汉马尔比乌花园住宅区中展现了其在预制化住宅设计方面的专业能力。 项目概述 汉马尔比乌花园住宅区位于瑞典斯德哥尔摩南部索德尔马尔姆岛,原为工业港口区改造为住宅区。该项目为中型住宅建筑,建筑面积未明确,设计于2012年,建成于2015年,由 Arrhov Frick 建筑事务所负责设计。 设计理念 Arrhov Frick 建筑事务所以提升居民生活质量为核心设计理念,通过严格的体量控制和双面采光策略,最大化利用自然光线,创造舒适宜居的居住环境。设计团队在预算和施工限制下,探索预制化建造系统,实现高效组装与成本控制。 空间与功能 汉马尔比乌花园住宅区采用双面公寓布局,确保从早到晚均有阳光照射。面向街道设置水平开启窗,形成法式阳台;面向庭院则采用连续玻璃阳台,延伸客厅空间,增强室内外连接。空间组织注重采光与视野,提升居住体验。 材料与技术 项目采用预制混凝土骨架结构,简化现场组装流程,降低施工复杂度。接缝设计预留余量,构件表面在工厂完成处理,提高施工效率与质量。该技术策略为后续项目积累了预制化建造经验。 项目特色与启发 汉马尔比乌花园住宅区展示了年轻建筑事务所在大型住宅项目中的实践能力,通过预制化与系统化设计,平衡预算、施工与居住品质。该项目为类似城市更新项目提供了可借鉴的住宅设计策略与施工管理经验。 设计团队 Arrhov Frick 是一家瑞典年轻建筑事务所,专注于住宅与城市更新项目。事务所以创新构造与实用设计著称,致力于通过系统化方法应对建筑复杂性,在汉马尔比乌花园住宅区中展现了其在预制化住宅设计方面的专业能力。 本文来自 © Arrhov Frick, 发布于 © 建筑学院官方网站。 未经授权,禁止转载或摘编。 编辑版本版权归 © 建筑学院官方网站 所有, 设计、图纸及照片版权归设计方 © Arrhov Frick ↗ 所有。 查看作者在建筑学院发布的更多作品: Arrhov Frick @ 建筑学院官方网站 Arrhov FrickHammarby Gård住宅建筑斯德哥尔摩住宅预制化住宅 Arrhov Frick事务所 & 设计师 下载原图 收藏 0 关于作者 Arrhov Frick事务所 & 设计师 关注私信 16 文章 0 评论 1 粉丝 Arrhov Frick 是由 Johan Arrhov 和 Henrik Frick 于2010年在斯德哥尔摩创立的建筑事务所。他们以清晰的建造逻辑、实用的空间规划和极简的美学著称,设计涵盖私人住宅、集合住宅及文化建筑。其官网 arrhovfrick.se 完整展示了他们的作品与实践理念。 克劳斯住房区块 / Kraus Housing Blocks | Arrhov Frick 建筑事务所 上一篇 2026-01-22 上午9:36 Velamsund 住宅 / House in Velamsund | Arrhov Frick 下一篇 2026-01-23 上午9:16 猜你喜欢 马尔哈洛登住房楼 / Mälarhöjden Housing Block | Arrhov Frick 2026-01-22 住宅建筑设计 卡特雷利亚住宅楼 Residential Building in Cantareira | 德莫拉建筑事务所|De Mora 2025-12-01 公共建筑设计 工厂建筑工厂大厦 / Factory Building Fabriken | Arrhov Frick 2025-12-23 工业建筑 动感科幻,被几何解构而成的集合公寓 / METAFORM建筑师事务所 2019-01-22 住宅建筑设计 固若堡垒而又玲珑静雅的Once住宅 2018-03-13 住宅建筑设计 Bredören 住宅 / House in Bredören | Arrhov Frick 建筑事务所 2026-01-02 住宅建筑设计 发表回复 请登录后评论...登录后才能评论 提交