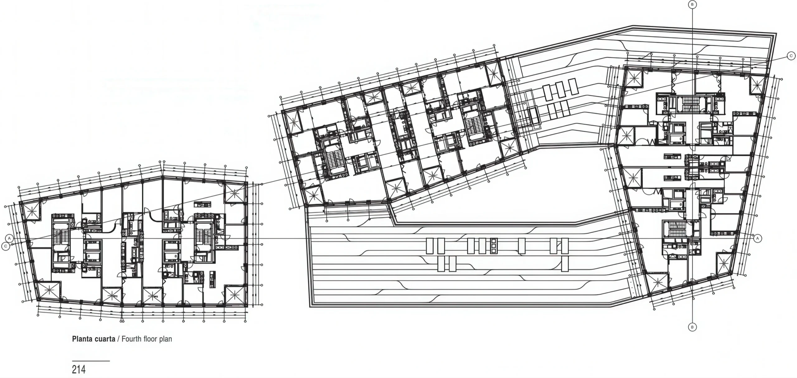
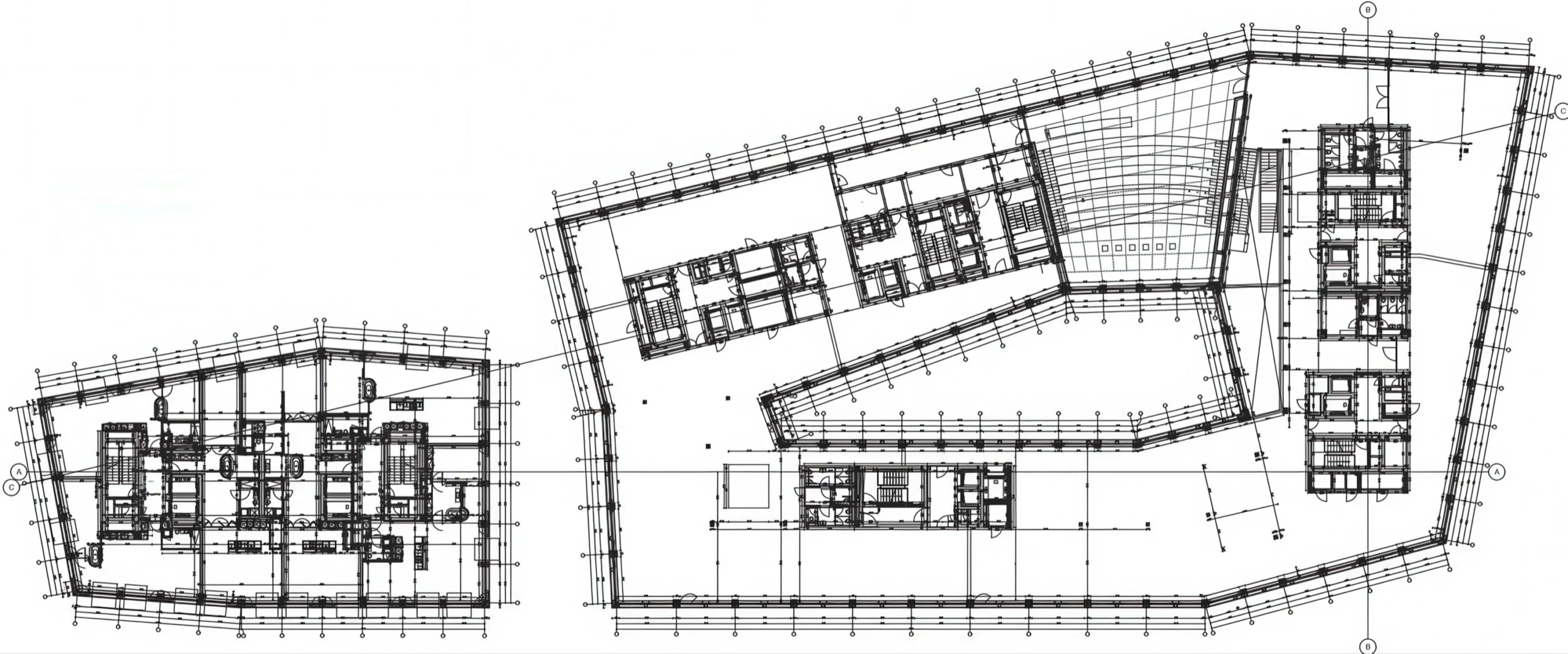
鲍夫德尔欧洲大道 Baufeld F Europaallee / Baufeld F Europaallee | Roger Boltshauser Roger Boltshauser • 2026-03-22 下午8:03 • 住宅建筑设计, 公寓住宅设计, 建筑设计 鲍夫德尔欧洲大道 Baufeld F Europaallee 项目位于瑞士苏黎世市中心火车站区域,由 Roger Boltshauser 设计,是高密度城市更新区的重要组成部分。该项目包含三座建筑体量,采用创新的立面设计和可持续材料策略,获得了DGNB/SGNI铂金级认证,展现了当代城市住宅建筑的卓越品质。 设计: Roger Boltshauser 类型: 建筑设计 功能: 公寓住宅 风格: 当代建筑 材料: 混凝土 玻璃 石材 金属板 再生材料 尺度: 中型建筑 地点:苏黎世 时间: 1970年 项目概述 鲍夫德尔欧洲大道 Baufeld F Europaallee 项目位于瑞士苏黎世市中心火车站区域,是Europaallee城市更新区的重要组成部分。该项目包含三座建筑体量,总建筑面积未公开,设计于2011年,建成于2019年,属于高密度城市住宅与商业混合开发项目。 设计理念 Roger Boltshauser 的设计理念强调建筑与城市环境的对话,通过锥形体量呼应周边建筑,立面浮雕根据朝向和功能进行差异化处理。设计团队巧妙地在铁路轨道与建成环境之间建立视觉联系,采用材料组合实现建筑与城市肌理的和谐过渡。 空间与功能 项目采用垂直功能分区,底层设置餐厅、酒吧和商业空间等公共功能,上部为租赁公寓。所有公寓单元均享有至少两个朝向,提供俯瞰铁路轨道和苏黎世市中心的壮观视野。空间布局注重采光与通风,提升居住舒适度。 材料与技术 建筑采用天然石材、玻璃砖和金属框架的组合立面系统,实现精确的预制装配施工。室内延续外墙材料语言,使用玻璃砖、金属元素和天然石材铺地。结构采用再生混凝土骨架体系,配合黏土和石灰抹灰改善室内气候。 项目特色与启发 鲍夫德尔欧洲大道 Baufeld F Europaallee 项目展示了高密度城市开发中材料创新与可持续设计的完美结合。其获得的DGNB/SGNI铂金级认证证明了项目在直接荷载传递、高紧凑性、可再生能源利用和天然材料应用方面的卓越表现,为当代城市更新项目提供了重要参考。 设计团队 Roger Boltshauser 是瑞士知名建筑事务所,以其在材料创新和可持续设计方面的专业能力著称。事务所在城市更新和住宅设计领域拥有丰富经验,致力于通过建筑语言回应城市文脉与环境需求,在鲍夫德尔欧洲大道项目中展现了卓越的设计执行力。 项目概述 鲍夫德尔欧洲大道 Baufeld F Europaallee 项目位于瑞士苏黎世市中心火车站区域,是Europaallee城市更新区的重要组成部分。该项目包含三座建筑体量,总建筑面积未公开,设计于2011年,建成于2019年,属于高密度城市住宅与商业混合开发项目。 设计理念 Roger Boltshauser 的设计理念强调建筑与城市环境的对话,通过锥形体量呼应周边建筑,立面浮雕根据朝向和功能进行差异化处理。设计团队巧妙地在铁路轨道与建成环境之间建立视觉联系,采用材料组合实现建筑与城市肌理的和谐过渡。 空间与功能 项目采用垂直功能分区,底层设置餐厅、酒吧和商业空间等公共功能,上部为租赁公寓。所有公寓单元均享有至少两个朝向,提供俯瞰铁路轨道和苏黎世市中心的壮观视野。空间布局注重采光与通风,提升居住舒适度。 材料与技术 建筑采用天然石材、玻璃砖和金属框架的组合立面系统,实现精确的预制装配施工。室内延续外墙材料语言,使用玻璃砖、金属元素和天然石材铺地。结构采用再生混凝土骨架体系,配合黏土和石灰抹灰改善室内气候。 项目特色与启发 鲍夫德尔欧洲大道 Baufeld F Europaallee 项目展示了高密度城市开发中材料创新与可持续设计的完美结合。其获得的DGNB/SGNI铂金级认证证明了项目在直接荷载传递、高紧凑性、可再生能源利用和天然材料应用方面的卓越表现,为当代城市更新项目提供了重要参考。 设计团队 Roger Boltshauser 是瑞士知名建筑事务所,以其在材料创新和可持续设计方面的专业能力著称。事务所在城市更新和住宅设计领域拥有丰富经验,致力于通过建筑语言回应城市文脉与环境需求,在鲍夫德尔欧洲大道项目中展现了卓越的设计执行力。 本文来自 © Roger Boltshauser, 发布于 © 建筑学院官方网站。 未经授权,禁止转载或摘编。 编辑版本版权归 © 建筑学院官方网站 所有, 设计、图纸及照片版权归设计方 © Roger Boltshauser ↗ 所有。 查看作者在建筑学院发布的更多作品: Roger Boltshauser @ 建筑学院官方网站 Baufeld F EuropaalleeRoger Boltshauser可持续建筑城市住宅设计苏黎世建筑 Roger Boltshauser事务所 & 设计师 下载原图 收藏 0 关于作者 Roger Boltshauser事务所 & 设计师 关注私信 13 文章 0 评论 0 粉丝 Roger Boltshauser是瑞士著名建筑师,以其对可持续建筑的深刻实践和对传统材料(尤其是夯土技术)的现代创新而闻名。他的作品融合了精准的构造逻辑与独特的材料质感,在住宅与文化建筑领域成就卓著,是当代探索建筑生态性与地域性的重要代表。访问官网boltshauser.ch,探索其深邃的建筑理念与作品全貌。 希尔根巴赫瑞斯建筑 / Rise Buildings in Hirzenbach | Roger Boltshauser 上一篇 2026-03-22 下午8:03 Vrin社区悼念场所 / Vrin Community Mourning Place | 吉翁·A·卡米纳达|Gion A. Caminada 下一篇 2026-03-23 上午11:01 猜你喜欢 小小动物园 Knie’s Kinderzoo | 卡鲁索·圣约翰建筑事务所|Caruso St John 2025-12-11 公共建筑设计 湖景住宅 House with a Lake View | 克里斯蒂安·凯雷兹|Christian Kerez 2025-11-06 公共建筑设计 住宅开发阿尔特维森 / Residential Development Altwiesen | Roger Boltshauser 2026-02-06 住宅建筑设计 克拉默阿克尔小学 / Krämeracker Primary School | Roger Boltshauser 2026-03-22 公共建筑设计 鲍夫德尔欧洲大道 Baufeld F Europaallee / Baufeld F Europaallee | Roger Boltshauser 2026-01-09 商业与综合建筑 XSING原生公园遮阳棚 / Canopies for Xingu Indigenous Park | Estúdio Gustúdio Gustavo Utrabo 2026-03-31 公共空间设计 发表回复 请登录后评论...登录后才能评论 提交