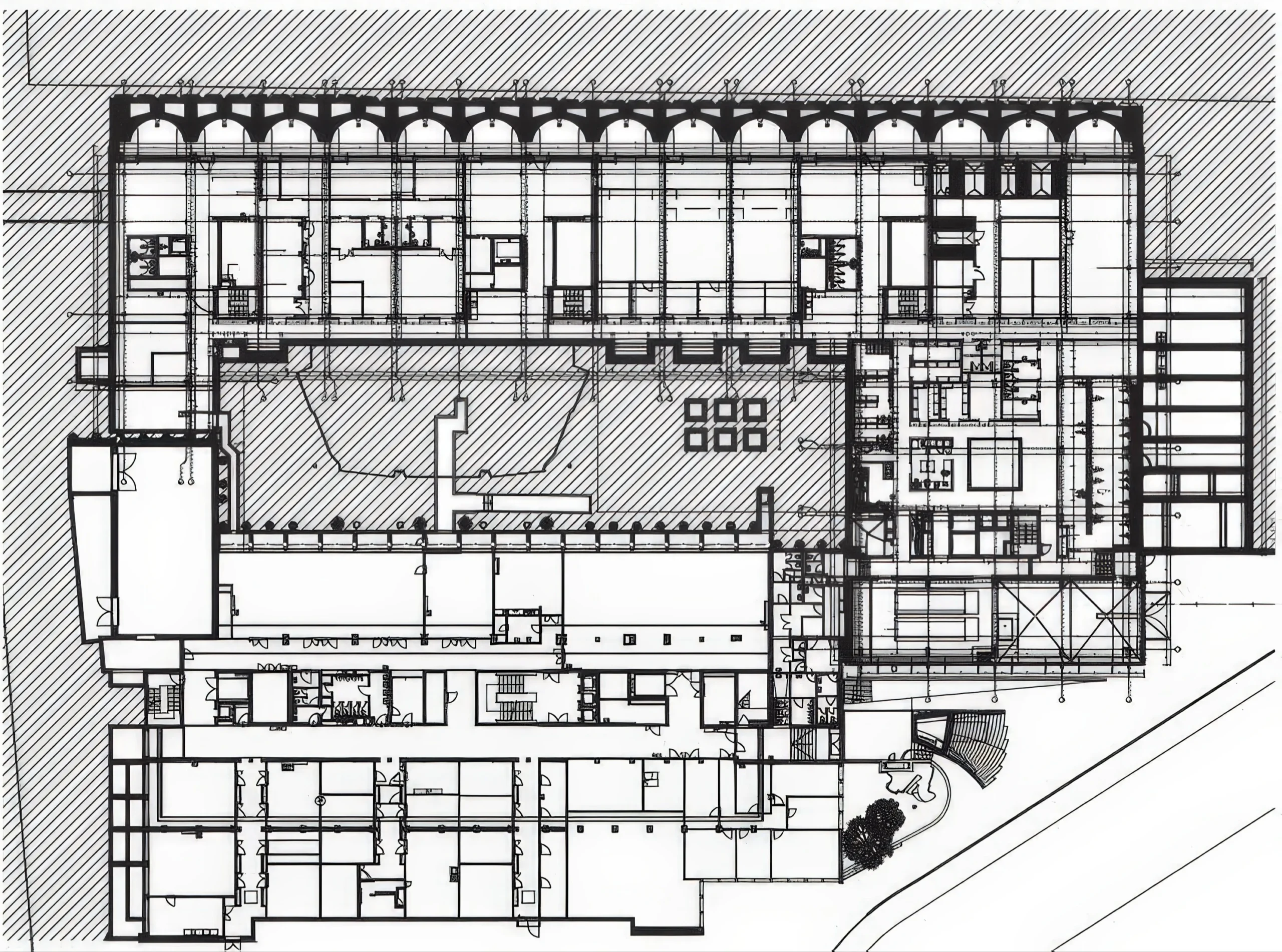
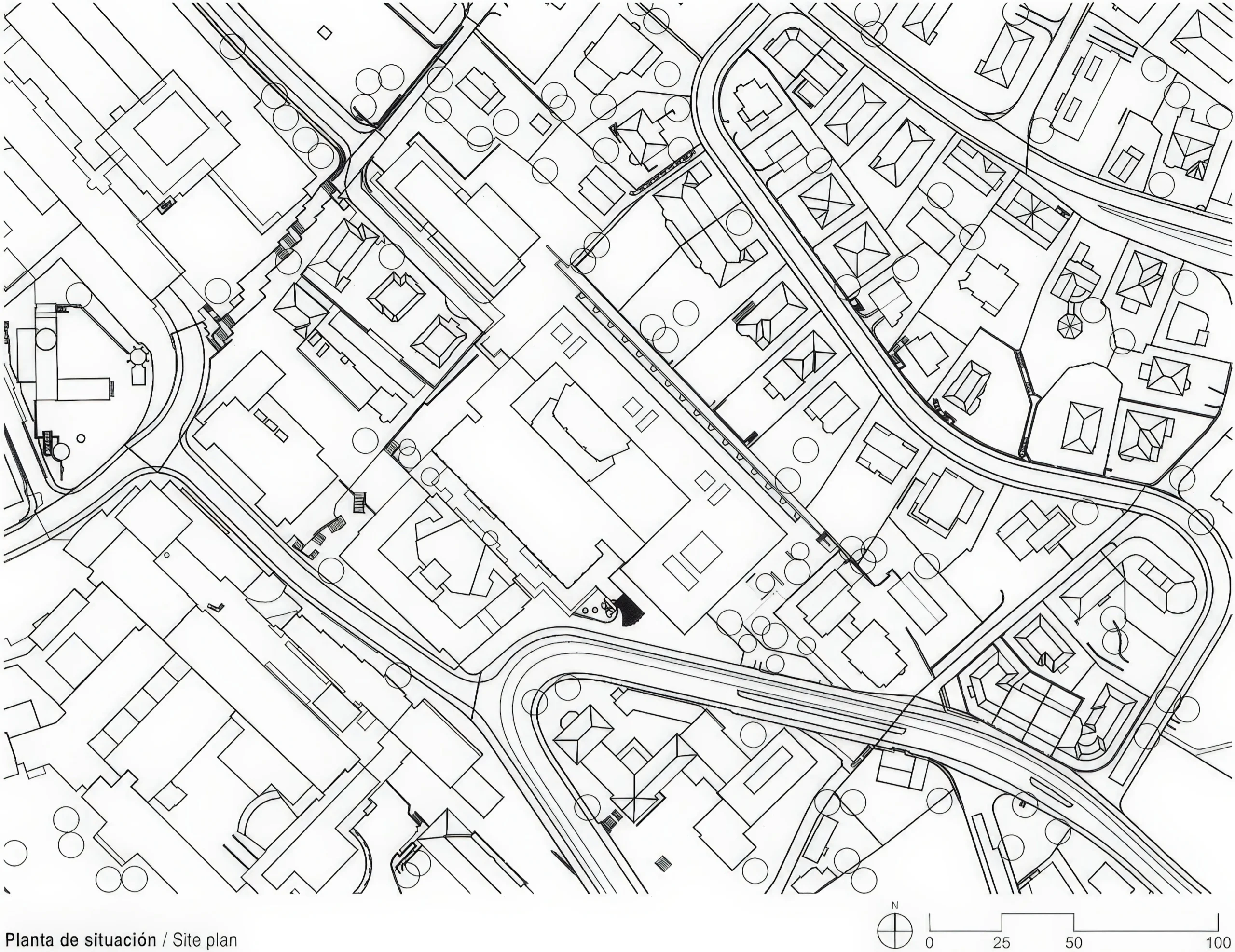
ETH研究楼,GLC / GLC Research Building, ETH | Roger Boltshauser Roger Boltshauser • 2026-02-04 上午9:11 • 公共建筑设计, 建筑设计, 教育建筑设计 ETH研究楼GLC由Roger Boltshauser设计,位于苏黎世大学区,是一座现代化研究建筑。该项目通过创新的双层玻璃幕墙系统和节能技术,实现了实验室空间的灵活布局与可持续性能,完美融入校园建筑肌理。 设计: Roger Boltshauser 类型: 教育建筑设计 功能: 大学 风格: 当代建筑 材料: 混凝土 钢材 玻璃 尺度: 中型建筑 地点:苏黎世 时间: 2021年 项目概述 ETH研究楼GLC位于瑞士苏黎世大学区,是一座现代化研究建筑,总长度约110米。该项目于2010年设计竞赛中获一等奖,2021年建成,与现有ETH建筑围合形成庭院空间,延续了大学区的建筑类型特征。 设计理念 Roger Boltshauser的设计理念强调建筑与环境的和谐共生,通过双层玻璃幕墙系统创造三维立面效果,同时响应场地地形特征。设计遵循2005年和2014年区域总体规划,将新建建筑有机融入现有校园肌理。 空间与功能 ETH研究楼GLC的空间组织清晰明确:教授办公室位于Gloriastrasse沿街立面,宽敞的实验室区域布置在斜坡一侧,可实现灵活分隔。地下室空间因与挡土墙分离而获得自然采光,环形流线中的休息区域为空间增添了节奏感。 材料与技术 建筑采用钢和玻璃构成的幕墙系统,延续了现代主义工业与大学建筑中玻璃砖立面的传统。双层表皮构造采用玻璃砖元素组成的藻井形式,水平玻璃砖栏杆与带状窗户形成横向结构,与后退窗扇的垂直秩序叠加。创新的气候控制双层表皮在夏季通风、冬季蓄热,显著提升能源效率。 项目特色与启发 ETH研究楼GLC项目展示了当代研究建筑的可持续发展路径,其创新的双层幕墙系统和地形适应性设计为类似项目提供了重要参考。该项目符合DGNB/SGNI金级、Minergie-ECO和良好室内气候建筑标准,体现了高性能建筑设计的实践价值。 设计团队 Roger Boltshauser是一位注重材料创新与环境回应的瑞士建筑师,其作品以精致的构造细节和可持续设计策略著称。在该项目中,团队成功将复杂的技术要求与优雅的建筑表达相结合,创造了既功能高效又具有空间品质的研究环境。 项目概述 ETH研究楼GLC位于瑞士苏黎世大学区,是一座现代化研究建筑,总长度约110米。该项目于2010年设计竞赛中获一等奖,2021年建成,与现有ETH建筑围合形成庭院空间,延续了大学区的建筑类型特征。 设计理念 Roger Boltshauser的设计理念强调建筑与环境的和谐共生,通过双层玻璃幕墙系统创造三维立面效果,同时响应场地地形特征。设计遵循2005年和2014年区域总体规划,将新建建筑有机融入现有校园肌理。 空间与功能 ETH研究楼GLC的空间组织清晰明确:教授办公室位于Gloriastrasse沿街立面,宽敞的实验室区域布置在斜坡一侧,可实现灵活分隔。地下室空间因与挡土墙分离而获得自然采光,环形流线中的休息区域为空间增添了节奏感。 材料与技术 建筑采用钢和玻璃构成的幕墙系统,延续了现代主义工业与大学建筑中玻璃砖立面的传统。双层表皮构造采用玻璃砖元素组成的藻井形式,水平玻璃砖栏杆与带状窗户形成横向结构,与后退窗扇的垂直秩序叠加。创新的气候控制双层表皮在夏季通风、冬季蓄热,显著提升能源效率。 项目特色与启发 ETH研究楼GLC项目展示了当代研究建筑的可持续发展路径,其创新的双层幕墙系统和地形适应性设计为类似项目提供了重要参考。该项目符合DGNB/SGNI金级、Minergie-ECO和良好室内气候建筑标准,体现了高性能建筑设计的实践价值。 设计团队 Roger Boltshauser是一位注重材料创新与环境回应的瑞士建筑师,其作品以精致的构造细节和可持续设计策略著称。在该项目中,团队成功将复杂的技术要求与优雅的建筑表达相结合,创造了既功能高效又具有空间品质的研究环境。 本文来自 © Roger Boltshauser, 发布于 © 建筑学院官方网站。 未经授权,禁止转载或摘编。 编辑版本版权归 © 建筑学院官方网站 所有, 设计、图纸及照片版权归设计方 © Roger Boltshauser ↗ 所有。 查看作者在建筑学院发布的更多作品: Roger Boltshauser @ 建筑学院官方网站 GLC Research Building ETHRoger Boltshauser可持续建筑研究建筑设计苏黎世大学建筑 Roger Boltshauser事务所 & 设计师 下载原图 收藏 0 关于作者 Roger Boltshauser事务所 & 设计师 关注私信 13 文章 0 评论 0 粉丝 Roger Boltshauser是瑞士著名建筑师,以其对可持续建筑的深刻实践和对传统材料(尤其是夯土技术)的现代创新而闻名。他的作品融合了精准的构造逻辑与独特的材料质感,在住宅与文化建筑领域成就卓著,是当代探索建筑生态性与地域性的重要代表。访问官网boltshauser.ch,探索其深邃的建筑理念与作品全貌。 Rise Areal 高层住宅 / Rise Areal High-Rise | Roger Boltshauser 上一篇 2026-02-04 上午9:10 郑智屋 / House in Chonchi | Pezo Von Ellrichshausen 下一篇 2026-02-04 上午9:12 猜你喜欢 健康疗养在哈巴纳 / Wellness Retreat in Habarana | 帕琳达·坎南加拉|Palinda Kannangara 2026-04-12 商业与综合建筑 Tulum的六座房屋 / Six Houses in Tulum | Taller Héctor Barroso 2026-02-20 住宅建筑设计 窑塔,砖工博物馆所在地 / Kiln Tower for the Brickworks Museum, Cham | Roger Boltshauser 2026-02-06 公共建筑设计 Tegia da Vaut – Domat的森林小屋 / Tegia da Vaut – Forest Hut in Domat | 吉翁·A·卡米纳达|Gion A. Caminada 2026-03-20 住宅建筑设计 健康疗养在哈巴纳 / Wellness Retreat in Habarana | 帕琳达·坎南加拉|Palinda Kannangara 2026-04-09 商业与综合建筑 希尔根巴赫瑞斯建筑 / Rise Buildings in Hirzenbach | Roger Boltshauser 2026-03-22 商业与综合建筑 发表回复 请登录后评论...登录后才能评论 提交