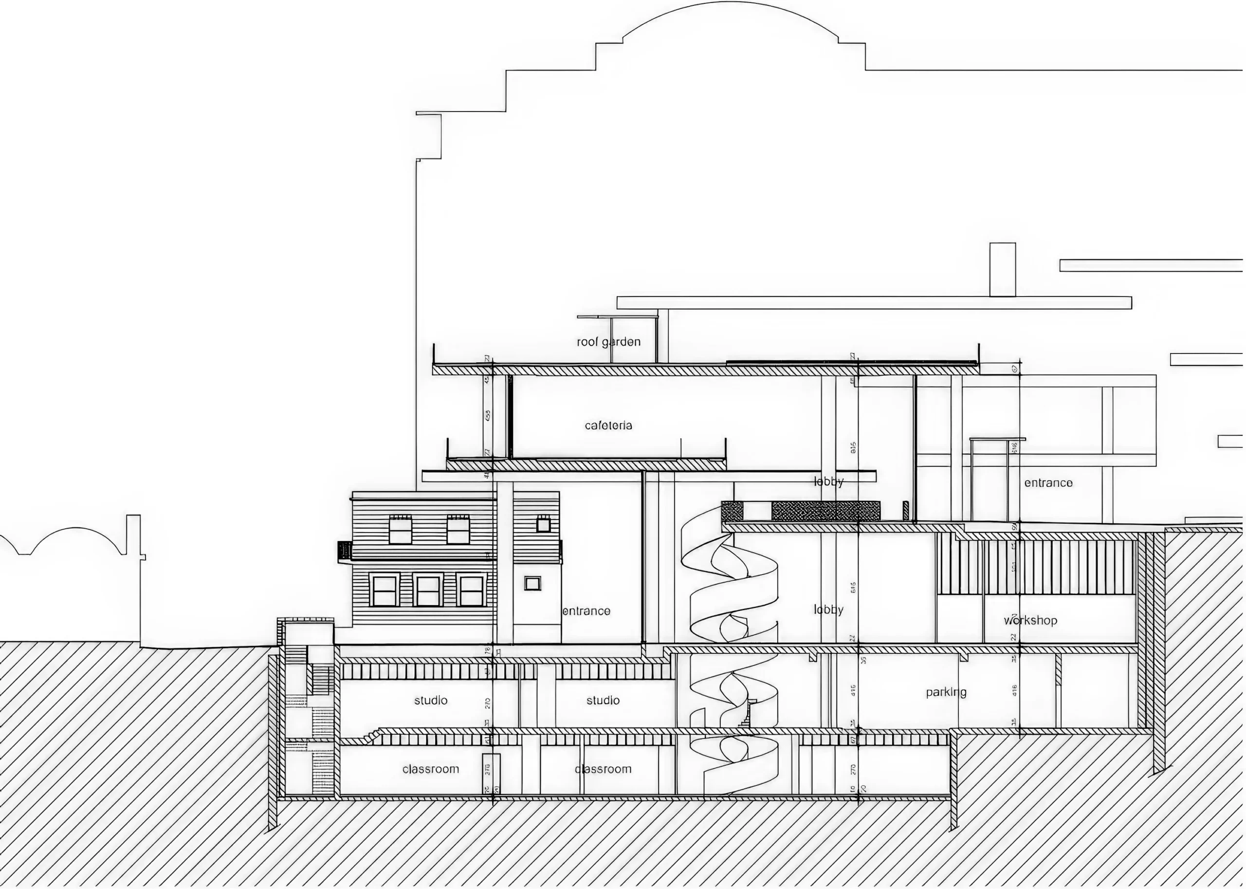
贝扎勒艺术与设计学院 / Bezalel Academy of Arts and Design | SANAA SANAA • 2026-03-06 上午9:21 • 公共建筑设计, 建筑设计, 教育建筑设计 贝扎勒艺术与设计学院由SANAA建筑事务所设计,位于耶路撒冷山丘顶部的俄罗斯大院旁,是一座集艺术教育、展览与公共空间于一体的文化教育建筑。项目通过错层平台设计促进跨学科交流,创造与城市互动的教育景观。 设计: SANAA 类型: 教育建筑设计 功能: 学校 风格: 当代建筑 材料: 混凝土 钢材 玻璃 尺度: 大型建筑 地点:耶路撒冷 时间: 2023年 项目概述 贝扎勒艺术与设计学院新校区位于耶路撒冷山丘顶部,毗邻俄罗斯大院,俯瞰耶路撒冷老城。该项目由SANAA建筑事务所设计,包含九个艺术设计系部、行政办公、画廊、商店和咖啡厅等公共设施,设计于2013年竞赛获奖,预计2023年建成。 设计理念 SANAA的设计理念强调建筑与城市的融合,通过错层平台布局创造开放的教育环境。设计回应了场地周边的公共建筑群特征,将校园打造为连接城市与教育的平台,促进艺术创作与城市生活的互动。 空间与功能 建筑采用错层平台组织九个系部的教学空间,每个楼层都能看到其他系部的活动,鼓励跨学科合作。宽敞的公共空间允许自然光线深入建筑内部,同时为年度学生作品展提供展示场所,形成灵活多变的使用体验。 材料与技术 建筑采用简洁的现代建筑语言,通过大面积玻璃幕墙和开放平台实现自然采光与通风。结构设计注重空间流动性,绿色屋顶和露台景观增强了建筑的可持续性能,创造宜人的室内外环境。 项目特色与启发 贝扎勒艺术与设计学院项目展示了SANAA在文化教育建筑领域的创新探索,其开放的平台式设计为艺术院校提供了新的空间模式,对当代教育建筑设计具有重要参考价值。 设计团队 SANAA是由妹岛和世与西泽立卫创立的日本建筑事务所,以极简主义建筑语言和透明空间设计闻名。事务所在文化建筑领域有着丰富经验,其作品强调建筑与环境的和谐共生。 项目概述 贝扎勒艺术与设计学院新校区位于耶路撒冷山丘顶部,毗邻俄罗斯大院,俯瞰耶路撒冷老城。该项目由SANAA建筑事务所设计,包含九个艺术设计系部、行政办公、画廊、商店和咖啡厅等公共设施,设计于2013年竞赛获奖,预计2023年建成。 设计理念 SANAA的设计理念强调建筑与城市的融合,通过错层平台布局创造开放的教育环境。设计回应了场地周边的公共建筑群特征,将校园打造为连接城市与教育的平台,促进艺术创作与城市生活的互动。 空间与功能 建筑采用错层平台组织九个系部的教学空间,每个楼层都能看到其他系部的活动,鼓励跨学科合作。宽敞的公共空间允许自然光线深入建筑内部,同时为年度学生作品展提供展示场所,形成灵活多变的使用体验。 材料与技术 建筑采用简洁的现代建筑语言,通过大面积玻璃幕墙和开放平台实现自然采光与通风。结构设计注重空间流动性,绿色屋顶和露台景观增强了建筑的可持续性能,创造宜人的室内外环境。 项目特色与启发 贝扎勒艺术与设计学院项目展示了SANAA在文化教育建筑领域的创新探索,其开放的平台式设计为艺术院校提供了新的空间模式,对当代教育建筑设计具有重要参考价值。 设计团队 SANAA是由妹岛和世与西泽立卫创立的日本建筑事务所,以极简主义建筑语言和透明空间设计闻名。事务所在文化建筑领域有着丰富经验,其作品强调建筑与环境的和谐共生。 本文来自 © SANAA, 发布于 © 建筑学院官方网站。 未经授权,禁止转载或摘编。 编辑版本版权归 © 建筑学院官方网站 所有, 设计、图纸及照片版权归设计方 © SANAA ↗ 所有。 查看作者在建筑学院发布的更多作品: SANAA @ 建筑学院官方网站 Bezalel Academy of Arts and DesignSANAA建筑设计文化教育建筑耶路撒冷教育建筑艺术院校设计 SANAA事务所 & 设计师 下载原图 收藏 0 关于作者 SANAA事务所 & 设计师 关注私信 52 文章 0 评论 0 粉丝 日本女子大学学生食堂 / Student Cafeteria Japan Women’s University | SANAA 上一篇 2026-03-06 上午9:19 Misima办公大楼 / Mishima Office Building | SANAA 下一篇 2026-03-06 上午9:21 发表回复 请登录后评论...登录后才能评论 提交