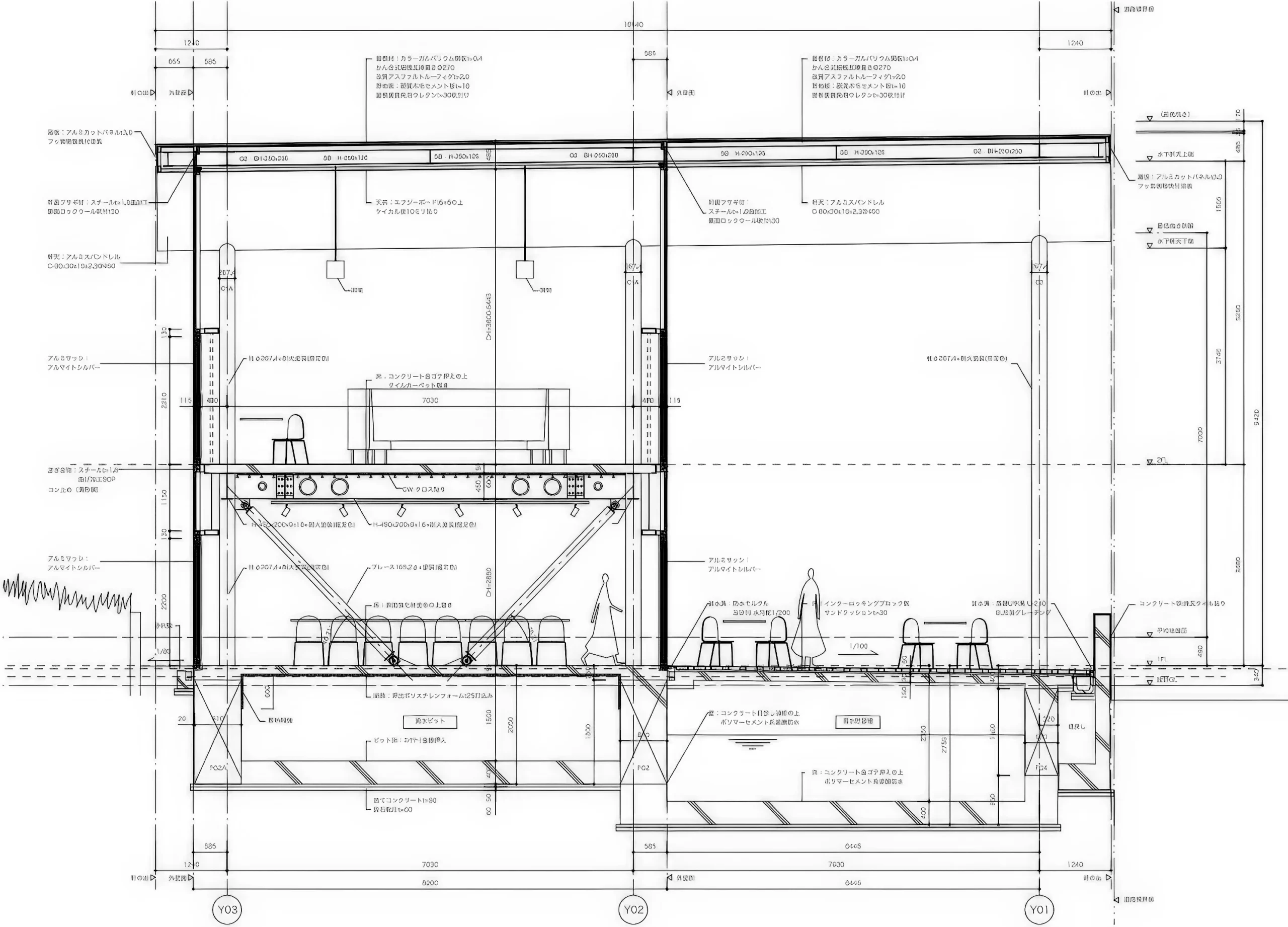
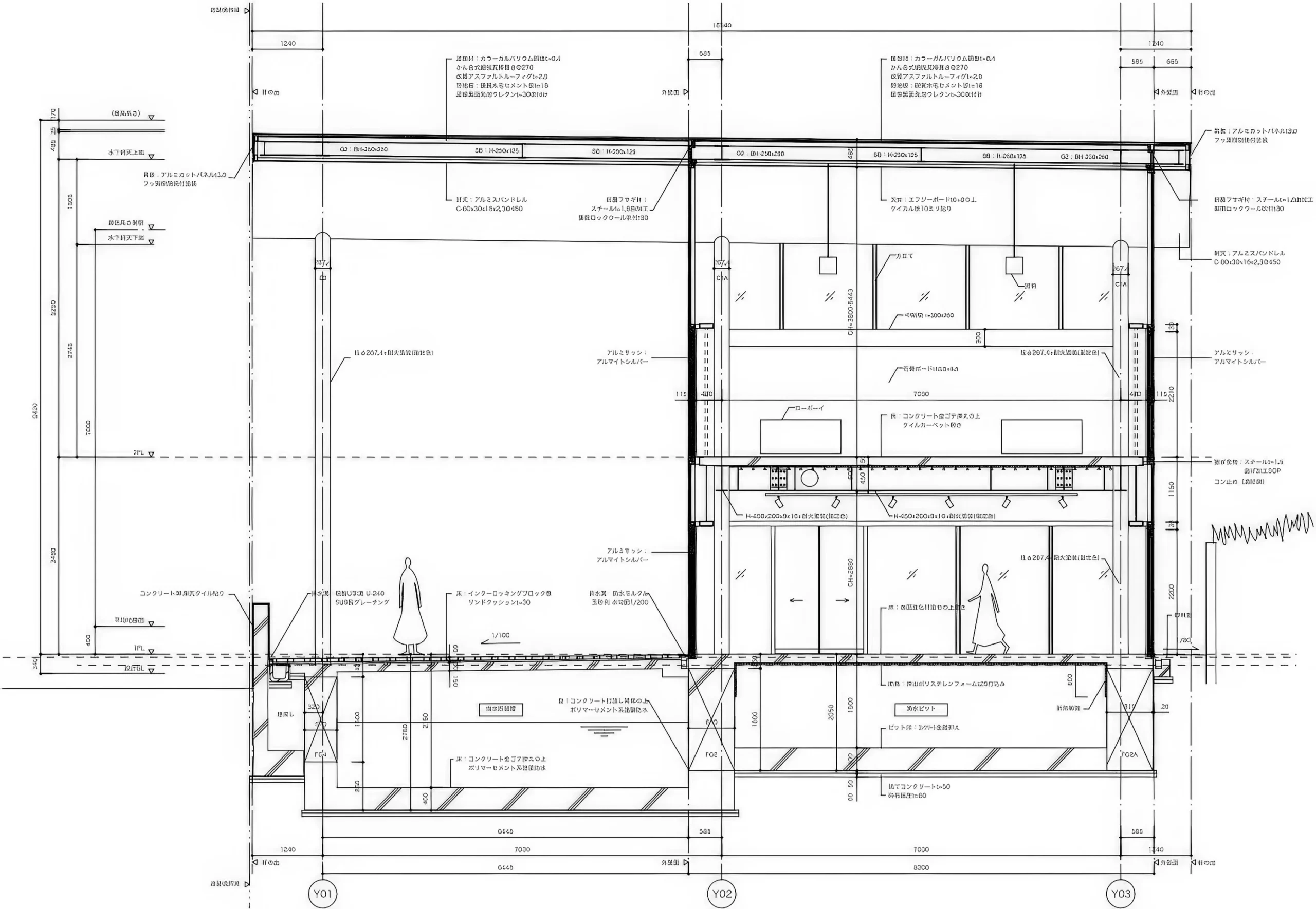
日本女子大学学生食堂 / Student Cafeteria Japan Women’s University | SANAA SANAA • 2026-03-06 上午9:19 • 公共建筑设计, 建筑设计, 教育建筑设计 日本女子大学学生食堂由SANAA建筑事务所设计,位于东京目白校区入口处,通过拱形屋顶和双入口设计巧妙应对场地高差,创造连接校园与社区的开放空间。 设计: SANAA 类型: 教育建筑设计 功能: 学校 风格: 当代建筑 材料: 混凝土 钢材 玻璃 尺度: 中型建筑 地点:东京 时间: 2021年 项目概述 日本女子大学学生食堂项目位于东京目白校区入口处,由SANAA建筑事务所设计,2018年设计,2021年建成。这座教育建筑通过创新的空间组织,为学生提供餐饮、学习和活动等多功能使用空间。 设计理念 SANAA的设计理念源于对场地条件的精准回应。项目面临街道与校园间2米高差的挑战,设计团队通过双入口设置和拱形屋顶,既解决了可达性问题,又创造了连接大学与周边社区的微妙关系。 空间与功能 日本女子大学学生食堂采用灵活的空间布局,地面层和上层分别设置入口,适应不同来向的学生流线。内部空间可灵活转换为大型讲座和活动场所,拱形屋顶下的覆盖露台提供了多样化的使用可能。 材料与技术 建筑采用简洁的材料语言,拱形屋顶结构不仅满足总体规划的高度要求,更成为校园的新标志。结构设计体现了SANAA对轻透建筑语言的持续探索,通过精确的构造细节实现空间品质。 项目特色与启发 日本女子大学学生食堂项目展示了SANAA在应对复杂场地条件时的设计智慧,其双入口策略和拱形屋顶设计为类似高差场地提供了参考,体现了当代教育建筑对社区连接的重视。 设计团队 SANAA是由妹岛和世与西泽立卫创立的国际知名建筑事务所,以轻盈透明的建筑语言著称,其作品强调空间流动性与环境融合,在日本女子大学学生食堂项目中延续了这一设计哲学。 项目概述 日本女子大学学生食堂项目位于东京目白校区入口处,由SANAA建筑事务所设计,2018年设计,2021年建成。这座教育建筑通过创新的空间组织,为学生提供餐饮、学习和活动等多功能使用空间。 设计理念 SANAA的设计理念源于对场地条件的精准回应。项目面临街道与校园间2米高差的挑战,设计团队通过双入口设置和拱形屋顶,既解决了可达性问题,又创造了连接大学与周边社区的微妙关系。 空间与功能 日本女子大学学生食堂采用灵活的空间布局,地面层和上层分别设置入口,适应不同来向的学生流线。内部空间可灵活转换为大型讲座和活动场所,拱形屋顶下的覆盖露台提供了多样化的使用可能。 材料与技术 建筑采用简洁的材料语言,拱形屋顶结构不仅满足总体规划的高度要求,更成为校园的新标志。结构设计体现了SANAA对轻透建筑语言的持续探索,通过精确的构造细节实现空间品质。 项目特色与启发 日本女子大学学生食堂项目展示了SANAA在应对复杂场地条件时的设计智慧,其双入口策略和拱形屋顶设计为类似高差场地提供了参考,体现了当代教育建筑对社区连接的重视。 设计团队 SANAA是由妹岛和世与西泽立卫创立的国际知名建筑事务所,以轻盈透明的建筑语言著称,其作品强调空间流动性与环境融合,在日本女子大学学生食堂项目中延续了这一设计哲学。 本文来自 © SANAA, 发布于 © 建筑学院官方网站。 未经授权,禁止转载或摘编。 编辑版本版权归 © 建筑学院官方网站 所有, 设计、图纸及照片版权归设计方 © SANAA ↗ 所有。 查看作者在建筑学院发布的更多作品: SANAA @ 建筑学院官方网站 SANAAStudent Cafeteria Japan Women's University东京教育建筑学生食堂设计当代建筑 SANAA事务所 & 设计师 下载原图 收藏 0 关于作者 SANAA事务所 & 设计师 关注私信 52 文章 0 评论 0 粉丝 陶土展馆 / Clay Pavilion in Oaxaca | 阿尔瓦罗·西扎|Álvaro Siza 上一篇 2026-03-05 上午10:34 贝扎勒艺术与设计学院 / Bezalel Academy of Arts and Design | SANAA 下一篇 2026-03-06 上午9:21 猜你喜欢 新高速列车 Laview / New Express Train Laview | SANAA 2026-02-22 交通建筑设计 卢森堡大学云计算礼堂 / The Cloud Auditorium for Luxembourg University | SANAA 2026-03-03 公共建筑设计 科克兰创新中心 / Innovation Centre in Concepción | Pezo Von Ellrichshausen 2026-02-02 公共建筑设计 安特卫普省府大楼 / Province Headquarters, Antwerp | Xaveer de Geyter 2026-02-25 公共建筑设计 安法文化中心 / Cultural Centre in Anafi | Pezo Von Ellrichshausen 2026-04-02 公共建筑设计 墨田北斋博物馆 / Sumida Hokusai Museum | SANAA 2026-03-15 公共建筑设计 发表回复 请登录后评论...登录后才能评论 提交