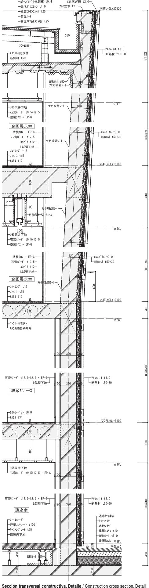
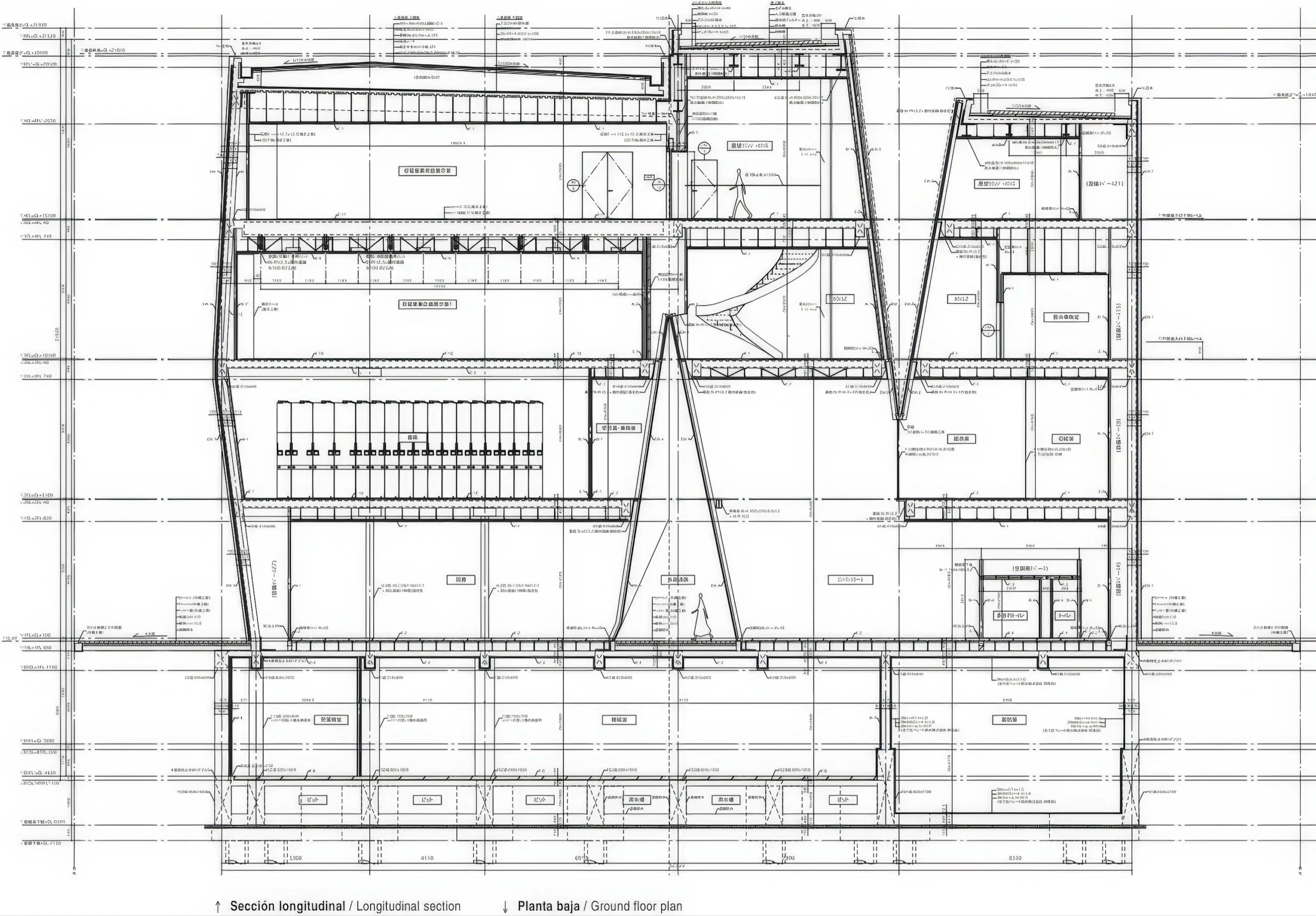
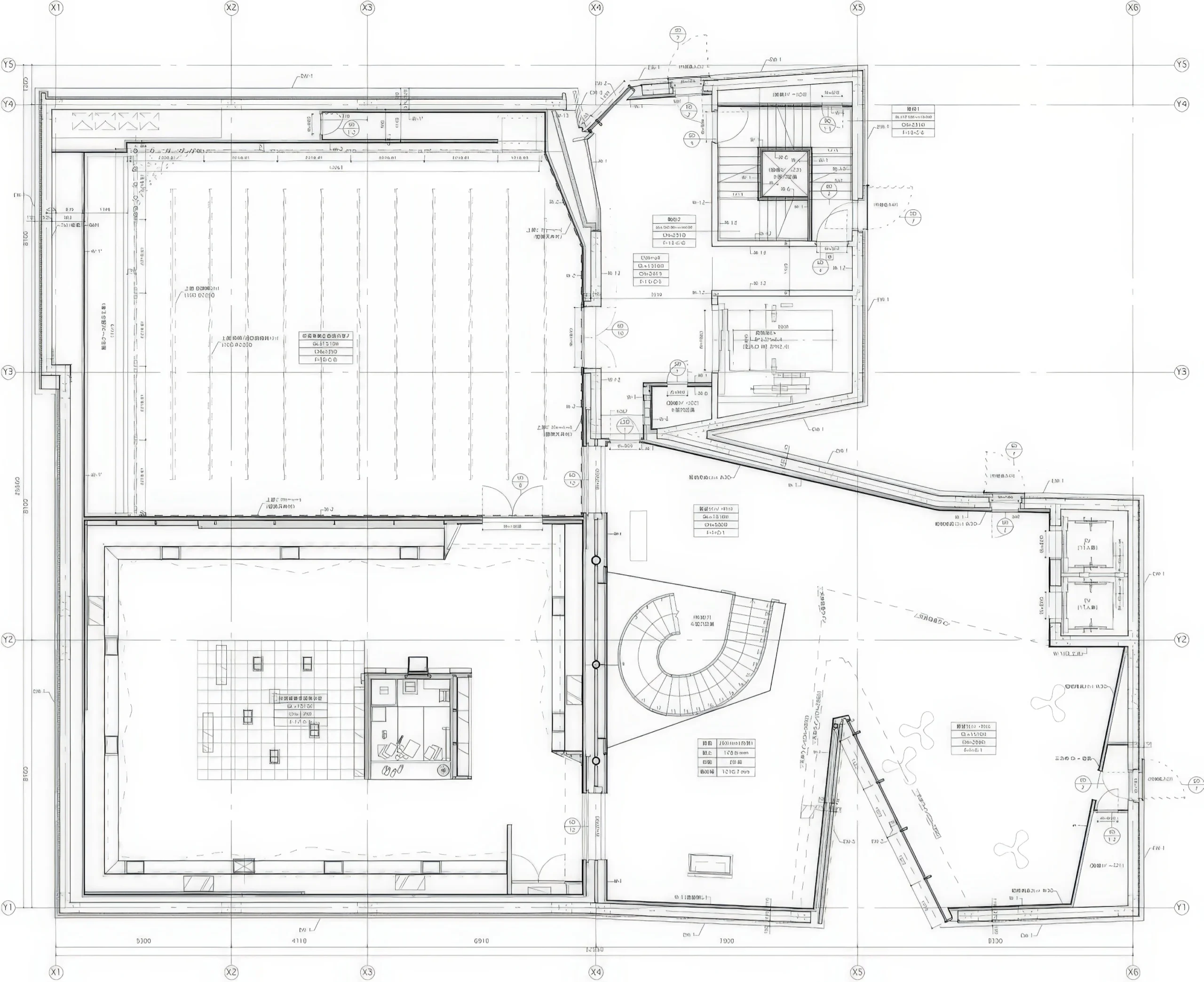
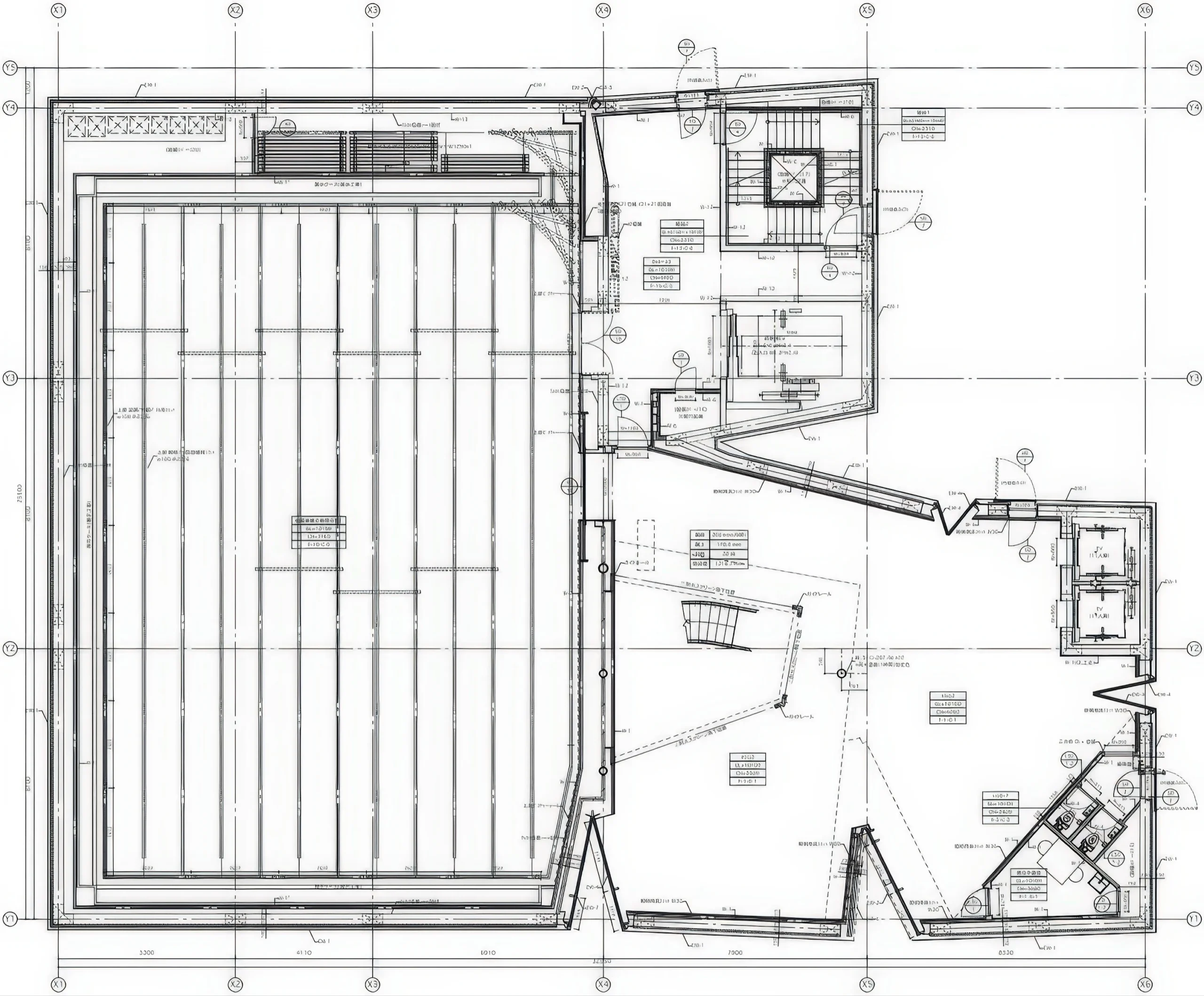
墨田北斋博物馆 / Sumida Hokusai Museum | SANAA SANAA • 2026-03-15 下午9:32 • 公共建筑设计, 建筑设计, 文化建筑设计 墨田北斋博物馆由SANAA建筑事务所设计,位于日本东京墨田区,是一座专门展示江户时代浮世绘大师葛饰北斋作品的城市文化建筑。建筑通过多个体量组合呼应周边城市尺度,采用抛光阳极氧化铝板外墙反射环境,创造与城市景观的视觉对话。 设计: SANAA 类型: 文化建筑设计 功能: 博物馆 风格: 当代建筑 材料: 玻璃 金属板 尺度: 中型建筑 地点:东京 时间: 1970年 项目概述 墨田北斋博物馆位于日本东京墨田区两国地区,是一座专门收藏和展示江户时代浮世绘大师葛饰北斋作品的城市文化建筑。项目占地一个完整城市街区,设计于2009年,2016年建成开放,建筑面积约3,300平方米。 设计理念 SANAA建筑事务所以尊重周边城市尺度为核心设计理念,将建筑分解为多个体量组合而非单一大型体块。设计灵感来源于葛饰北斋绘画中多重视角并置的艺术手法,通过建筑体量间的缝隙创造与城市的视觉联系,使博物馆成为城市景观的有机组成部分。 空间与功能 建筑采用分层功能布局:地面层设置入口大厅、图书馆和讲座室等公共空间,作为城市空间的自然延伸;二层和三层为常设展厅和特别展厅;一层设置办公区和艺术品储藏空间;地下层为设备辅助空间。各层通过倾斜外墙连接不同大小的平面,形成丰富的空间体验。 材料与技术 建筑外墙采用抛光阳极氧化铝板,能够反射周围环境和天空,随着光线和视角变化呈现不同的视觉效果。墙体主要为不透明设计以保护艺术品免受自然光损害,体量间的缝隙既作为入口通道,又在高层提供城市视野,建立博物馆内外活动的视觉联系。 项目特色与启发 墨田北斋博物馆展示了SANAA建筑事务所在城市文化建筑设计中平衡功能需求与城市文脉的独特手法。项目通过体量化整为零、材料反射特性以及对艺术家创作理念的建筑转译,为当代文化建筑设计提供了如何在密集城市环境中建立建筑与场所对话的参考范例。 设计团队 SANAA是由妹岛和世与西泽立卫共同创立的日本建筑事务所,以极简主义建筑语言和透明轻盈的设计风格闻名。事务所在文化建筑、教育建筑等领域有着丰富经验,代表作品包括金泽21世纪美术馆、劳力士学习中心等,曾获普利兹克建筑奖等国际殊荣。 项目概述 墨田北斋博物馆位于日本东京墨田区两国地区,是一座专门收藏和展示江户时代浮世绘大师葛饰北斋作品的城市文化建筑。项目占地一个完整城市街区,设计于2009年,2016年建成开放,建筑面积约3,300平方米。 设计理念 SANAA建筑事务所以尊重周边城市尺度为核心设计理念,将建筑分解为多个体量组合而非单一大型体块。设计灵感来源于葛饰北斋绘画中多重视角并置的艺术手法,通过建筑体量间的缝隙创造与城市的视觉联系,使博物馆成为城市景观的有机组成部分。 空间与功能 建筑采用分层功能布局:地面层设置入口大厅、图书馆和讲座室等公共空间,作为城市空间的自然延伸;二层和三层为常设展厅和特别展厅;一层设置办公区和艺术品储藏空间;地下层为设备辅助空间。各层通过倾斜外墙连接不同大小的平面,形成丰富的空间体验。 材料与技术 建筑外墙采用抛光阳极氧化铝板,能够反射周围环境和天空,随着光线和视角变化呈现不同的视觉效果。墙体主要为不透明设计以保护艺术品免受自然光损害,体量间的缝隙既作为入口通道,又在高层提供城市视野,建立博物馆内外活动的视觉联系。 项目特色与启发 墨田北斋博物馆展示了SANAA建筑事务所在城市文化建筑设计中平衡功能需求与城市文脉的独特手法。项目通过体量化整为零、材料反射特性以及对艺术家创作理念的建筑转译,为当代文化建筑设计提供了如何在密集城市环境中建立建筑与场所对话的参考范例。 设计团队 SANAA是由妹岛和世与西泽立卫共同创立的日本建筑事务所,以极简主义建筑语言和透明轻盈的设计风格闻名。事务所在文化建筑、教育建筑等领域有着丰富经验,代表作品包括金泽21世纪美术馆、劳力士学习中心等,曾获普利兹克建筑奖等国际殊荣。 本文来自 © SANAA, 发布于 © 建筑学院官方网站。 未经授权,禁止转载或摘编。 编辑版本版权归 © 建筑学院官方网站 所有, 设计、图纸及照片版权归设计方 © SANAA ↗ 所有。 查看作者在建筑学院发布的更多作品: SANAA @ 建筑学院官方网站 SANAAsumida-hokusai-museum东京文化建筑当代建筑文化建筑设计 SANAA事务所 & 设计师 下载原图 收藏 0 关于作者 SANAA事务所 & 设计师 关注私信 52 文章 0 评论 0 粉丝 若昂二十一世纪大道公寓楼 / Avenida João XXI Apartment Building | 德·莫拉建筑事务所 上一篇 2026-03-14 上午10:29 波哥尼大学城市校园 / Bocconi University Urban Campus | SANAA 下一篇 2026-03-15 下午9:32 猜你喜欢 希伯伦清真寺及文化中心 / Mosque and Cultural Centre, Heilbronn | 贝尔纳多·巴德尔|Bernardo Bader 2025-11-17 公共建筑设计 卢塞斯艺术学院 / Sint-Lucas School of Fine Arts | Xaveer de Geyter 2026-02-28 公共建筑设计 日本女子大学学生食堂 / Student Cafeteria Japan Women’s University | SANAA 2026-03-06 公共建筑设计 斯克茨恩歌剧院 / Philharmonic Hall In Szczecin | 巴罗齐与维加建筑事务所 3天前 公共建筑设计 堪培拉 Pavilion / Pavilion in Canberra | Pezo Von Ellrichshausen 2026-04-02 公共建筑设计 卢森堡大学云计算礼堂 / The Cloud Auditorium for Luxembourg University | SANAA 2026-03-03 公共建筑设计 发表回复 请登录后评论...登录后才能评论 提交