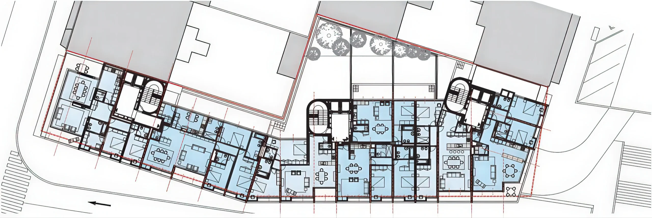
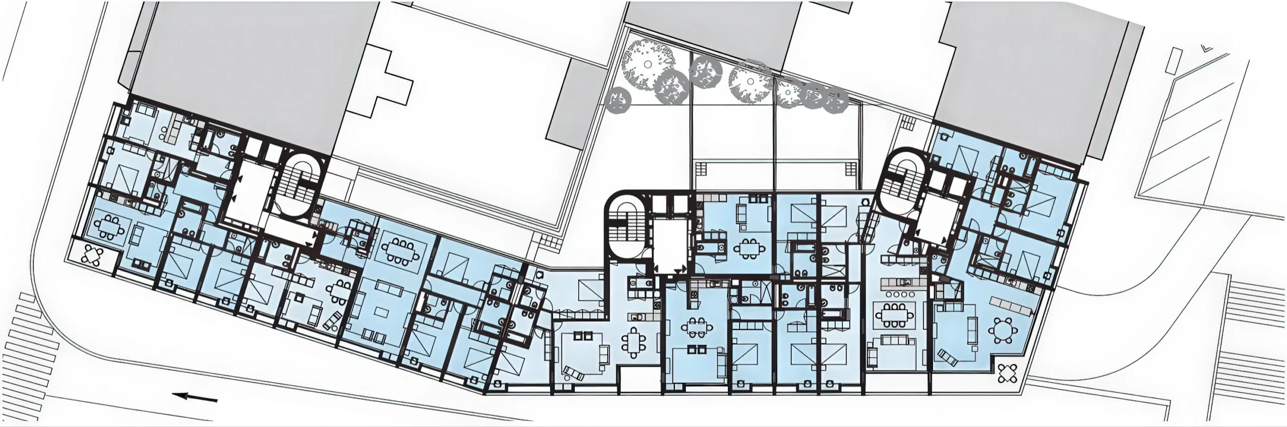
若昂二十一世纪大道公寓楼 / Avenida João XXI Apartment Building | 德·莫拉建筑事务所 德·莫拉|de Moura • 2026-03-14 上午10:29 • 住宅建筑设计, 公寓住宅设计, 建筑设计 若昂二十一世纪大道公寓楼由德·莫拉建筑事务所设计,位于葡萄牙里斯本,是一座连接不同标高住宅楼的多层公寓建筑。项目采用混凝土与哑光金色铝材,通过阳台与露台设计回应温和气候与居住需求,展现当代住宅建筑的连续性与宁静特质。 设计: 德·莫拉|de Moura 类型: 建筑设计 功能: 公寓住宅 风格: 现代主义 材料: 混凝土 金属板 尺度: 中型建筑 地点:里斯本 时间: 2019年 项目概述 若昂二十一世纪大道公寓楼位于葡萄牙里斯本,是一座多层住宅建筑,设计于2019年。项目通过”钉合”策略连接两座不同标高的既有住宅楼,形成统一的居住综合体,体现了德·莫拉建筑事务所在城市住宅设计中的创新思维。 设计理念 设计以”连续性”为核心概念,延续里斯本20世纪现代建筑传统,避免激进形式,追求建筑与城市肌理的和谐共生。德·莫拉建筑事务所通过克制设计语言,让建筑融入城市背景,仅以纪念性建筑作为城市中的特殊存在。 空间与功能 建筑从首层至四层采用变化户型布局,保持传统”左右”单元分布围绕核心筒。每个公寓均设有阳台或露台,不仅回应后疫情时代居住需求,更契合里斯本温和气候特点,将生活空间自然延伸至室外。 材料与技术 项目选用非白色混凝土与哑光金色铝制推拉窗系统,内置百叶窗。材料组合营造宁静建筑表情,结构设计巧妙应对场地高差挑战,通过精确的剖面设计解决不同标高连接的技术难题。 项目特色与启发 若昂二十一世纪大道公寓楼展示了当代住宅建筑如何在尊重传统的同时创新,为高密度城市环境中的住宅设计提供了连接策略与材料应用参考,体现了德·莫拉建筑事务所对城市居住空间的深刻理解。 设计团队 德·莫拉建筑事务所是葡萄牙知名建筑设计团队,以现代主义设计语言与对场地文脉的敏感回应著称。事务所在住宅、文化建筑领域具有丰富经验,致力于创造与环境和谱共生的建筑作品。 项目概述 若昂二十一世纪大道公寓楼位于葡萄牙里斯本,是一座多层住宅建筑,设计于2019年。项目通过”钉合”策略连接两座不同标高的既有住宅楼,形成统一的居住综合体,体现了德·莫拉建筑事务所在城市住宅设计中的创新思维。 设计理念 设计以”连续性”为核心概念,延续里斯本20世纪现代建筑传统,避免激进形式,追求建筑与城市肌理的和谐共生。德·莫拉建筑事务所通过克制设计语言,让建筑融入城市背景,仅以纪念性建筑作为城市中的特殊存在。 空间与功能 建筑从首层至四层采用变化户型布局,保持传统”左右”单元分布围绕核心筒。每个公寓均设有阳台或露台,不仅回应后疫情时代居住需求,更契合里斯本温和气候特点,将生活空间自然延伸至室外。 材料与技术 项目选用非白色混凝土与哑光金色铝制推拉窗系统,内置百叶窗。材料组合营造宁静建筑表情,结构设计巧妙应对场地高差挑战,通过精确的剖面设计解决不同标高连接的技术难题。 项目特色与启发 若昂二十一世纪大道公寓楼展示了当代住宅建筑如何在尊重传统的同时创新,为高密度城市环境中的住宅设计提供了连接策略与材料应用参考,体现了德·莫拉建筑事务所对城市居住空间的深刻理解。 设计团队 德·莫拉建筑事务所是葡萄牙知名建筑设计团队,以现代主义设计语言与对场地文脉的敏感回应著称。事务所在住宅、文化建筑领域具有丰富经验,致力于创造与环境和谱共生的建筑作品。 本文来自 © 德·莫拉|de Moura, 发布于 © 建筑学院官方网站。 未经授权,禁止转载或摘编。 编辑版本版权归 © 建筑学院官方网站 所有, 设计、图纸及照片版权归设计方 © 德·莫拉|de Moura ↗ 所有。 查看作者在建筑学院发布的更多作品: 德·莫拉|de Moura @ 建筑学院官方网站 Avenida João XXI Apartment Building公寓建筑设计德·莫拉建筑事务所现代住宅里斯本住宅 德·莫拉|de Moura事务所 & 设计师 下载原图 收藏 0 关于作者 德·莫拉|de Moura事务所 & 设计师 关注私信 14 文章 0 评论 1 粉丝 德·莫拉(de Moura),即爱德华多·索托·德·莫拉(Eduardo Souto de Moura),2011年普利兹克奖得主,葡萄牙著名建筑师。其作品以极简主义与材质质感著称,擅长将建筑与自然景观深度融合,代表作包括布拉加市政球场、保拉·雷戈博物馆等。 布鲁日会议和展览中心 / Bruges Congress and Exhibition Centre | 德·莫拉建筑事务所 上一篇 2026-03-14 上午9:51 墨田北斋博物馆 / Sumida Hokusai Museum | SANAA 下一篇 2026-03-15 下午9:32 猜你喜欢 科琳斯多杜罗葡萄酒庄园 / Colinas do Douro Winery | 德·莫拉建筑事务所 2025-12-12 工业建筑 知识之屋维拉维德 / Vila Verde House of Knowledge | 德·莫拉建筑事务所 2026-03-18 公共建筑设计 CASA EN ESTRELA / HOUSE IN ESTRELA | 艾雷斯·马特乌斯建筑事务所|Aires Mateus 2025-11-11 公共建筑设计 圣路伦诺孔波拉克旅游综合体 / São Lourenço do Barrocal Tourist Complex | 德·莫拉建筑事务所 2026-03-18 商业空间设计 阿加多夫之家 / House in Ajuda | 艾雷斯·马特乌斯建筑事务所 2025-11-09 公共建筑设计 阿布达佩德皮多拉斯市政博物馆 / Abade Pedrosa Municipal Museum [MMAP] | 德·莫拉建筑事务所 2026-03-19 公共建筑设计 发表回复 请登录后评论...登录后才能评论 提交