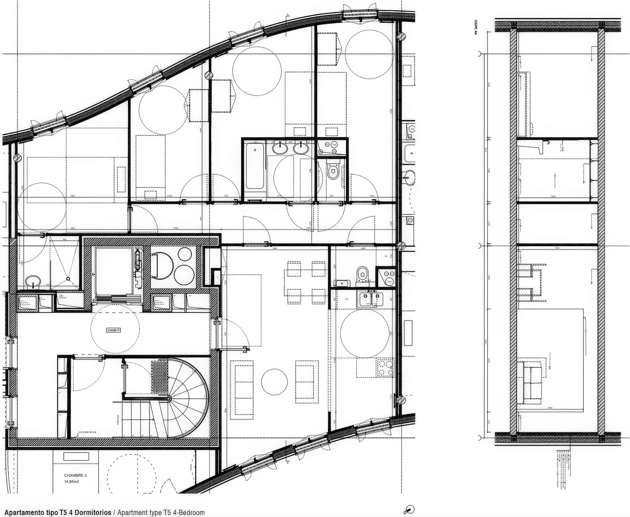
法伊勒住宅 / Fayolle Housing | SANAA SANAA • 2026-02-11 下午1:14 • 住宅建筑设计, 公寓住宅设计, 建筑设计 法伊勒住宅项目由SANAA建筑事务所设计,位于巴黎第16区,是一座集合住宅建筑。项目通过四个有机形态的体量创造出一系列庭院空间,巧妙连接城市与自然景观,展现了当代住宅设计的创新理念。 设计: SANAA 类型: 建筑设计 功能: 公寓住宅 风格: 当代建筑 材料: 混凝土 玻璃 金属板 尺度: 中型建筑 地点:巴黎 时间: 1970年 项目概述 法伊勒住宅项目位于法国巴黎第16区,由SANAA建筑事务所设计,是一座集合住宅建筑。项目包含四个住宅体量,通过独特的有机形态设计,在城市肌理与布洛涅森林之间建立起和谐对话。 设计理念 SANAA建筑事务所以有机形态和曲线立面为核心设计理念,旨在创造建筑与环境的动态互动。设计通过四个蜿蜒的体量组织空间,形成一系列庭院,既延续了巴黎传统城市肌理,又引入了自然景观元素。 空间与功能 每个住宅体量均为四层结构,采用底层架空设计,释放地面空间并建立视觉通透性。多样化的平面布局提供了多种居住模式,所有公寓均能获得充足的自然采光、通风和景观视野。庭院空间在行进过程中呈现开合变化,创造丰富的空间体验。 材料与技术 建筑立面采用米白色灰泥,呼应巴黎传统石材立面,阳极氧化铝百叶窗勾勒出曲线韵律。玻璃幕墙反射天空和公园景观,底层设置金属网气泡结构容纳入口和配套设施,展现材料与技术的精致结合。 项目特色与启发 法伊勒住宅项目展示了SANAA建筑事务所在当代住宅设计中的创新探索,通过有机形态和空间序列重新定义城市居住体验,为高密度城市环境中的住宅设计提供了重要参考。 设计团队 SANAA建筑事务所由妹岛和世与西泽立卫创立,以轻盈、透明和空间流动性著称,在国际建筑界享有盛誉。事务所在法伊勒住宅项目中延续了其一贯的设计哲学,创造出与环境和谱共生的建筑作品。 项目概述 法伊勒住宅项目位于法国巴黎第16区,由SANAA建筑事务所设计,是一座集合住宅建筑。项目包含四个住宅体量,通过独特的有机形态设计,在城市肌理与布洛涅森林之间建立起和谐对话。 设计理念 SANAA建筑事务所以有机形态和曲线立面为核心设计理念,旨在创造建筑与环境的动态互动。设计通过四个蜿蜒的体量组织空间,形成一系列庭院,既延续了巴黎传统城市肌理,又引入了自然景观元素。 空间与功能 每个住宅体量均为四层结构,采用底层架空设计,释放地面空间并建立视觉通透性。多样化的平面布局提供了多种居住模式,所有公寓均能获得充足的自然采光、通风和景观视野。庭院空间在行进过程中呈现开合变化,创造丰富的空间体验。 材料与技术 建筑立面采用米白色灰泥,呼应巴黎传统石材立面,阳极氧化铝百叶窗勾勒出曲线韵律。玻璃幕墙反射天空和公园景观,底层设置金属网气泡结构容纳入口和配套设施,展现材料与技术的精致结合。 项目特色与启发 法伊勒住宅项目展示了SANAA建筑事务所在当代住宅设计中的创新探索,通过有机形态和空间序列重新定义城市居住体验,为高密度城市环境中的住宅设计提供了重要参考。 设计团队 SANAA建筑事务所由妹岛和世与西泽立卫创立,以轻盈、透明和空间流动性著称,在国际建筑界享有盛誉。事务所在法伊勒住宅项目中延续了其一贯的设计哲学,创造出与环境和谱共生的建筑作品。 本文来自 © SANAA, 发布于 © 建筑学院官方网站。 未经授权,禁止转载或摘编。 编辑版本版权归 © 建筑学院官方网站 所有, 设计、图纸及照片版权归设计方 © SANAA ↗ 所有。 查看作者在建筑学院发布的更多作品: SANAA @ 建筑学院官方网站 fayolle-housingSANAA建筑事务所巴黎住宅建筑有机建筑集合住宅设计 SANAA事务所 & 设计师 下载原图 收藏 0 关于作者 SANAA事务所 & 设计师 关注私信 52 文章 0 评论 0 粉丝 昆山博物馆 / Kunshan Museum | SANAA 上一篇 2026-02-11 下午1:14 巴塞尔动物园 Ozeanium / Basel Zoo Ozeanium | Roger Boltshauser 下一篇 2026-02-11 下午1:15 猜你喜欢 伊瓦之家 4 哈科恩 / Shishi-Iwa House N.4 Hakone | SANAA 2026-02-15 商业与综合建筑 如果,建筑是海浪:Le Bouton酒店/D1 Architectural Studio 2021-06-12 建筑设计 住宅开发阿尔特维森 / Residential Development Altwiesen | Roger Boltshauser 2026-02-06 住宅建筑设计 单元式住宅小区 / Unité Housing Blocks | Arrhov Frick 2026-01-24 住宅建筑设计 深圳海事博物馆 / Shenzhen Maritime Museum | SANAA 2026-02-24 公共建筑设计 波哥尼大学城市校园 / Bocconi University Urban Campus | SANAA 2026-03-15 公共建筑设计 发表回复 请登录后评论...登录后才能评论 提交