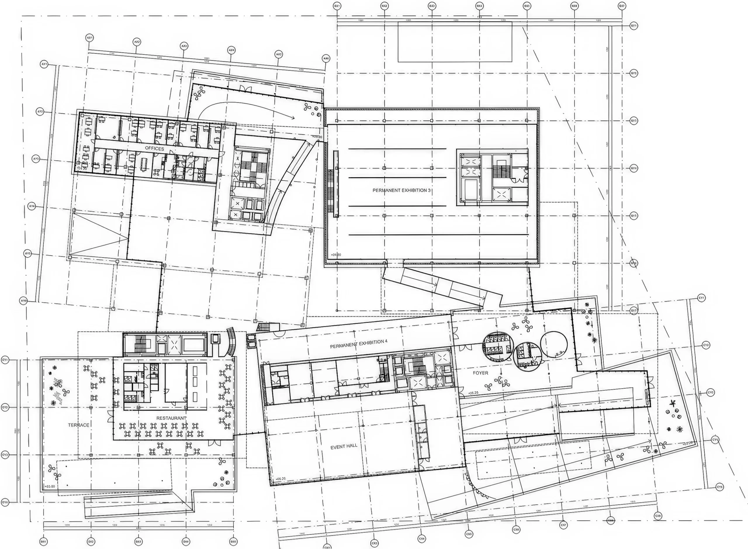
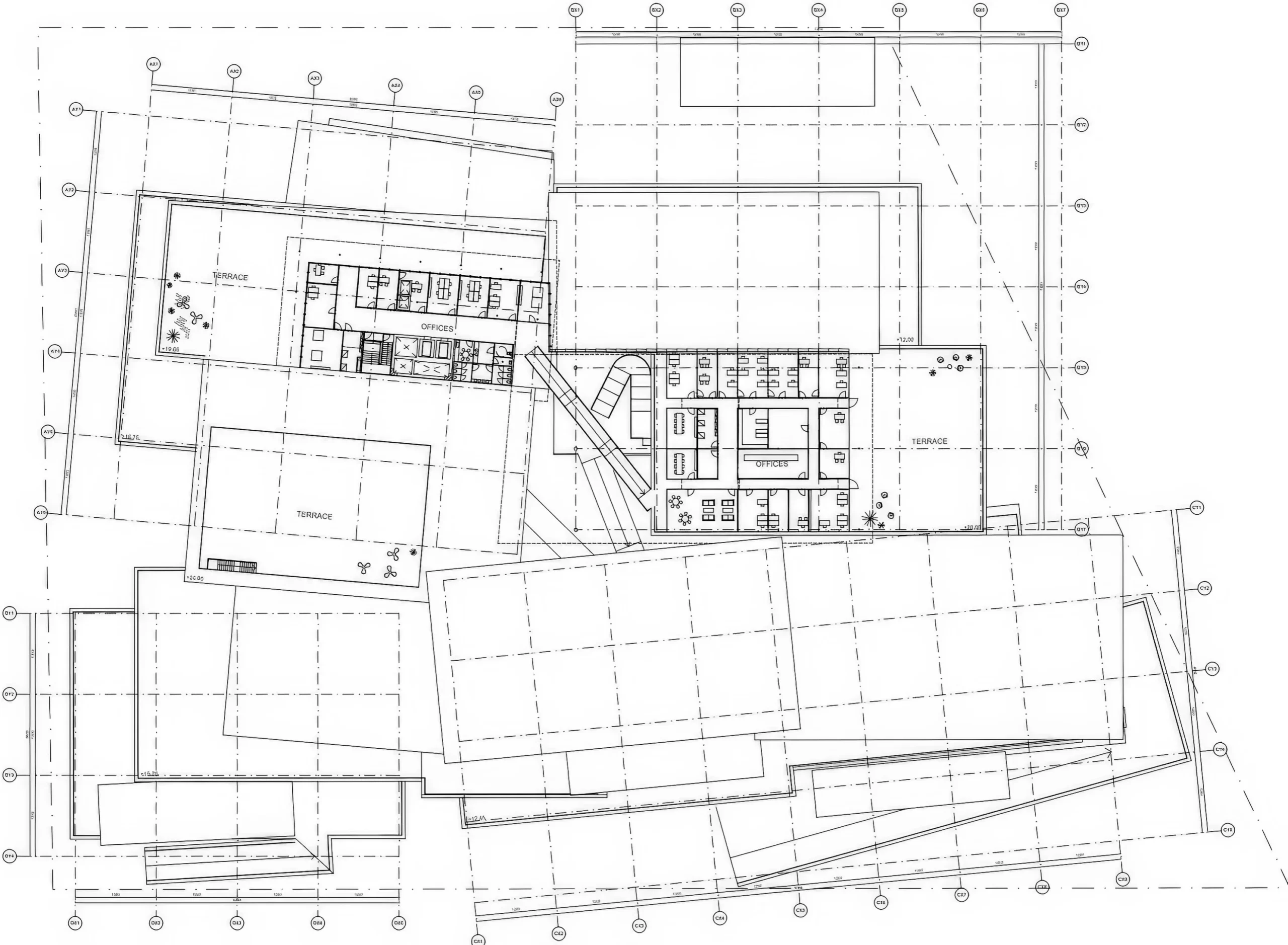
布达佩斯新国家美术馆 / New National Gallery Budapest | SANAA SANAA • 2026-02-22 下午9:49 • 公共建筑设计, 建筑设计, 文化建筑设计 布达佩斯新国家美术馆由SANAA建筑事务所设计,位于匈牙利布达佩斯著名的城市公园内。该项目通过错层悬浮的展览空间设计,创造了一个艺术与自然环境完美融合的文化建筑,让访客在欣赏艺术品的同时也能享受公园的自然美景。 设计: SANAA 类型: 文化建筑设计 功能: 博物馆 风格: 当代建筑 材料: 混凝土 钢材 玻璃 尺度: 大型建筑 地点:布达佩斯 时间: 2015年 项目概述 布达佩斯新国家美术馆位于匈牙利布达佩斯城市公园中心,是一座重要的文化建筑。该项目由SANAA建筑事务所设计,在2015年获得竞赛一等奖,通过创新的建筑设计重新定义了博物馆与城市公共空间的关系。 设计理念 SANAA建筑事务所以创造艺术与自然环境和谐共生的建筑为目标,将博物馆设计为公园的自然延伸。设计概念强调内外空间的连续性,让访客在欣赏艺术品的同时能够享受公园的自然环境,建立艺术与自然之间的新对话。 空间与功能 布达佩斯新国家美术馆采用错层悬浮的展览空间布局,通过连续斜坡连接各个功能区域。展览空间按时间顺序陈列从18世纪至今的艺术作品,形成”时间画廊”的参观体验。建筑内设有咖啡厅、餐厅和工作坊等公共设施,所有空间都对公众开放。 材料与技术 建筑采用现代结构技术实现悬浮的展览空间设计,通过大面积玻璃幕墙引入自然光线。材料选择注重与公园环境的协调,创造轻盈透明的建筑形象,同时确保展览空间的功能需求。 项目特色与启发 布达佩斯新国家美术馆展示了文化建筑与城市公共空间融合的新可能,为当代博物馆设计提供了重要参考。SANAA建筑事务所通过创新的空间组织方式,重新定义了艺术展览与自然环境的关系。 设计团队 SANAA建筑事务所由妹岛和世与西泽立卫创立,以轻盈透明的建筑语言和精致的空间处理闻名。该事务所在文化建筑领域有着丰富的经验,其作品强调建筑与环境的关系,追求空间的开放性与流动性。 项目概述 布达佩斯新国家美术馆位于匈牙利布达佩斯城市公园中心,是一座重要的文化建筑。该项目由SANAA建筑事务所设计,在2015年获得竞赛一等奖,通过创新的建筑设计重新定义了博物馆与城市公共空间的关系。 设计理念 SANAA建筑事务所以创造艺术与自然环境和谐共生的建筑为目标,将博物馆设计为公园的自然延伸。设计概念强调内外空间的连续性,让访客在欣赏艺术品的同时能够享受公园的自然环境,建立艺术与自然之间的新对话。 空间与功能 布达佩斯新国家美术馆采用错层悬浮的展览空间布局,通过连续斜坡连接各个功能区域。展览空间按时间顺序陈列从18世纪至今的艺术作品,形成”时间画廊”的参观体验。建筑内设有咖啡厅、餐厅和工作坊等公共设施,所有空间都对公众开放。 材料与技术 建筑采用现代结构技术实现悬浮的展览空间设计,通过大面积玻璃幕墙引入自然光线。材料选择注重与公园环境的协调,创造轻盈透明的建筑形象,同时确保展览空间的功能需求。 项目特色与启发 布达佩斯新国家美术馆展示了文化建筑与城市公共空间融合的新可能,为当代博物馆设计提供了重要参考。SANAA建筑事务所通过创新的空间组织方式,重新定义了艺术展览与自然环境的关系。 设计团队 SANAA建筑事务所由妹岛和世与西泽立卫创立,以轻盈透明的建筑语言和精致的空间处理闻名。该事务所在文化建筑领域有着丰富的经验,其作品强调建筑与环境的关系,追求空间的开放性与流动性。 本文来自 © SANAA, 发布于 © 建筑学院官方网站。 未经授权,禁止转载或摘编。 编辑版本版权归 © 建筑学院官方网站 所有, 设计、图纸及照片版权归设计方 © SANAA ↗ 所有。 查看作者在建筑学院发布的更多作品: SANAA @ 建筑学院官方网站 New National Gallery BudapestSANAA建筑事务所博物馆设计布达佩斯建筑文化建筑设计 SANAA事务所 & 设计师 下载原图 收藏 0 关于作者 SANAA事务所 & 设计师 关注私信 52 文章 0 评论 0 粉丝 Catarina House / Casa Catarina | Taller Héctor Barroso 上一篇 2026-02-21 下午10:06 新高速列车 Laview / New Express Train Laview | SANAA 下一篇 2026-02-22 下午9:50 猜你喜欢 特定性和自主性 / Specifity and Autonomy | 巴罗齐与维加建筑事务所 2025-11-11 公共建筑设计 安萨尔多文化博物馆 Ansaldo Museum of Cultures | 大卫·奇珀菲尔德建筑事务所|David Chipperfield 2025-11-18 公共建筑设计 石岐珍珠博物馆 / Siyadi Pearl Museum | 安妮·霍尔特罗普|Anne Holtrop 2026-01-07 公共建筑设计 苏州艺术剧院 / Suzhou Arts Theatre | SANAA 2026-02-23 公共建筑设计 卢森堡大学云计算礼堂 / The Cloud Auditorium for Luxembourg University | SANAA 2026-03-03 公共建筑设计 希伯伦清真寺及文化中心 / Mosque and Cultural Centre, Heilbronn | 贝尔纳多·巴德尔|Bernardo Bader 2025-11-17 公共建筑设计 发表回复 请登录后评论...登录后才能评论 提交