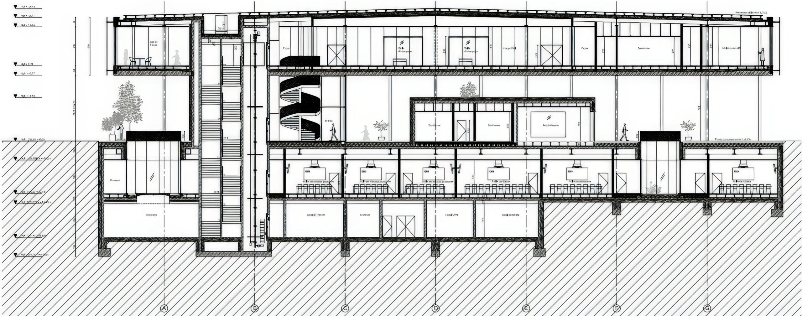
卢森堡大学云计算礼堂 / The Cloud Auditorium for Luxembourg University | SANAA SANAA • 2026-03-03 下午1:08 • 公共建筑设计, 建筑设计, 文化建筑设计 卢森堡大学云计算礼堂由SANAA建筑事务所设计,位于卢森堡市中心,是一座集学术会议、文化演出与公共活动于一体的多功能文化建筑。项目以”云”为概念,通过有机形态与透明立面创造开放的城市界面,成为连接大学校园与城市的重要节点。 设计: SANAA 类型: 文化建筑设计 功能: 大学 风格: 当代建筑 材料: 混凝土 钢材 玻璃 尺度: 中型建筑 地点:卢森堡 时间: 2020年 项目概述 卢森堡大学云计算礼堂位于卢森堡市中心,毗邻卢森堡大学现有校区、J.F.肯尼迪大道、亨利·都铎大楼和中央公园。该项目是一座多功能文化建筑,包含大型礼堂、会议空间和公共区域,设计始于2020年,并在国际竞赛中获得一等奖。 设计理念 SANAA建筑事务所以”云”为核心理念,创造了一个有机流动的建筑形态。设计回应了场地特征,通过柔和的曲线轮廓打破街道线性连续性,同时作为大学新校区门户,强化建筑与城市环境的对话关系。 空间与功能 建筑采用底层架空设计,创造透明开放的公共空间。内部空间组织注重功能分区与流线优化,主要包含800座大型礼堂、辅助会议厅和公共休息区。空间层次丰富,视线通透,实现不同功能区域的自然过渡与互动。 材料与技术 项目采用浮动玻璃幕墙系统,轻盈反射周围景观。结构上运用先进的混凝土柱网支撑体系,结合金属屋面系统。材料选择注重透明性与反射效果,创造建筑与环境的视觉融合。 项目特色与启发 卢森堡大学云计算礼堂以其独特的有机形态和透明性设计,重新定义了文化建筑的城市角色。项目展示了SANAA在建筑形态创新与环境融合方面的专业造诣,为当代文化建筑设计提供了重要参考。 设计团队 SANAA建筑事务所由妹岛和世与西泽立卫创立,以轻盈透明、空间流动的建筑语言著称。事务所在文化建筑、教育设施领域具有丰富经验,代表作品包括金泽21世纪美术馆、劳力士学习中心等。 项目概述 卢森堡大学云计算礼堂位于卢森堡市中心,毗邻卢森堡大学现有校区、J.F.肯尼迪大道、亨利·都铎大楼和中央公园。该项目是一座多功能文化建筑,包含大型礼堂、会议空间和公共区域,设计始于2020年,并在国际竞赛中获得一等奖。 设计理念 SANAA建筑事务所以”云”为核心理念,创造了一个有机流动的建筑形态。设计回应了场地特征,通过柔和的曲线轮廓打破街道线性连续性,同时作为大学新校区门户,强化建筑与城市环境的对话关系。 空间与功能 建筑采用底层架空设计,创造透明开放的公共空间。内部空间组织注重功能分区与流线优化,主要包含800座大型礼堂、辅助会议厅和公共休息区。空间层次丰富,视线通透,实现不同功能区域的自然过渡与互动。 材料与技术 项目采用浮动玻璃幕墙系统,轻盈反射周围景观。结构上运用先进的混凝土柱网支撑体系,结合金属屋面系统。材料选择注重透明性与反射效果,创造建筑与环境的视觉融合。 项目特色与启发 卢森堡大学云计算礼堂以其独特的有机形态和透明性设计,重新定义了文化建筑的城市角色。项目展示了SANAA在建筑形态创新与环境融合方面的专业造诣,为当代文化建筑设计提供了重要参考。 设计团队 SANAA建筑事务所由妹岛和世与西泽立卫创立,以轻盈透明、空间流动的建筑语言著称。事务所在文化建筑、教育设施领域具有丰富经验,代表作品包括金泽21世纪美术馆、劳力士学习中心等。 本文来自 © SANAA, 发布于 © 建筑学院官方网站。 未经授权,禁止转载或摘编。 编辑版本版权归 © 建筑学院官方网站 所有, 设计、图纸及照片版权归设计方 © SANAA ↗ 所有。 查看作者在建筑学院发布的更多作品: SANAA @ 建筑学院官方网站 SANAAThe Cloud Auditorium卢森堡建筑文化建筑设计有机建筑 SANAA事务所 & 设计师 下载原图 收藏 0 关于作者 SANAA事务所 & 设计师 关注私信 52 文章 0 评论 0 粉丝 Gramaxo基金会总部 / Gramaxo Foundation Headquarters | 阿尔瓦罗·西扎|Álvaro Siza 上一篇 2026-03-02 下午12:24 京都站苏拉卡瓦出口广场 / Kumamoto Station. Sirakawa Exit Plaza | SANAA 下一篇 2026-03-03 下午1:08 猜你喜欢 凯林眼镜新总部大楼 / Kering Eyewear New Headquarters | SANAA 2026-02-09 公共建筑设计 花园小屋 / Garden House | 安妮·霍尔特罗普|Anne Holtrop 2026-03-11 住宅建筑设计 知识之屋维拉维德 / Vila Verde House of Knowledge | 德·莫拉建筑事务所 2026-03-18 公共建筑设计 国际当代雕塑博物馆 MIEC / International Museum of Contemporary Sculpture [MIEC] | 阿尔瓦罗·西扎|Álvaro Siza 2026-03-09 公共建筑设计 欧洲信息与文化图书馆 / BEIC – European Library of Information and Culture | SANAA 2026-03-08 住宅建筑设计 新日铁市厅 / The New Hitachi City Hall | SANAA 2026-02-15 公共建筑设计 发表回复 请登录后评论...登录后才能评论 提交