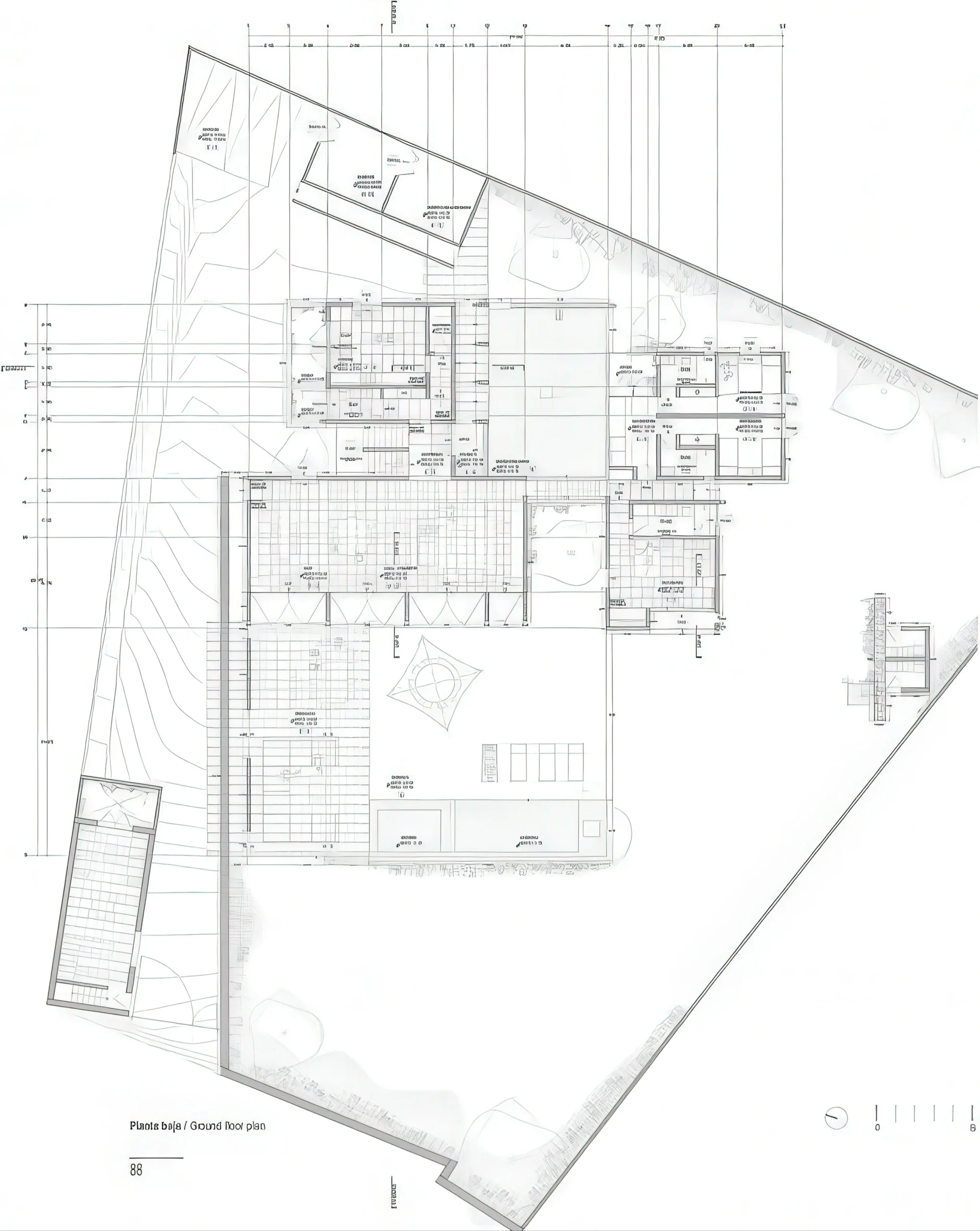
CASA EN AVANDARO / HOUSE IN AVÁNDARO | Taller Héctor Barroso tallerhectorbarroso • 2026-02-14 下午10:25 • 建筑设计, 独立住宅设计 CASA EN AVANDARO 周末住宅由 Taller Héctor Barroso 设计,位于墨西哥 Valle de Bravo 森林中。四个体量围绕中央水池展开,采用当地石材、橡木和夯土等材料,通过传统建造系统实现与自然环境的和谐对话。 设计: tallerhectorbarroso 类型: 独立住宅设计 功能: 独立住宅 风格: 地域主义 材料: 木材 石材 夯土 尺度: 小型建筑 地点:Valle de Bravo 时间: 1970年 项目概述 CASA EN AVANDARO 周末住宅位于墨西哥 Valle de Bravo 森林中,由 Taller Héctor Barroso 设计。项目包含四个分散体量,围绕中央反射水池组织,建筑面积未公开,设计于2017年,建成于2019年。 设计理念 Taller Héctor Barroso 的设计理念强调建筑与自然环境的融合。四个体量根据功能需求不同朝向,通过中央水池形成视觉焦点,创造与森林景观的连续性,体现对场地特征的尊重与回应。 空间与功能 CASA EN AVANDARO 的空间组织以四个体量围绕中央水池展开,形成明确的过渡序列。狭窄格栅在体量交叉处提供私密性,而开放廊道则允许欣赏周围景观,营造动静分明的空间体验。 材料与技术 项目采用当地石材砌块、橡木和夯土等材料,结合传统 vernacular 建造系统。材料重复使用与构造平衡使建筑与场地和谐共生,展现可持续的建筑实践。 项目特色与启发 CASA EN AVANDARO 通过体量分散布局和材料选择,展示了如何在自然环境中实现建筑与景观的对话。该项目为住宅设计提供了尊重场地文脉的设计范例。 设计团队 Taller Héctor Barroso 是墨西哥建筑事务所,专注于住宅与小型建筑项目,擅长运用当地材料与建造技术,创造与自然环境融合的建筑作品。 项目概述 CASA EN AVANDARO 周末住宅位于墨西哥 Valle de Bravo 森林中,由 Taller Héctor Barroso 设计。项目包含四个分散体量,围绕中央反射水池组织,建筑面积未公开,设计于2017年,建成于2019年。 设计理念 Taller Héctor Barroso 的设计理念强调建筑与自然环境的融合。四个体量根据功能需求不同朝向,通过中央水池形成视觉焦点,创造与森林景观的连续性,体现对场地特征的尊重与回应。 空间与功能 CASA EN AVANDARO 的空间组织以四个体量围绕中央水池展开,形成明确的过渡序列。狭窄格栅在体量交叉处提供私密性,而开放廊道则允许欣赏周围景观,营造动静分明的空间体验。 材料与技术 项目采用当地石材砌块、橡木和夯土等材料,结合传统 vernacular 建造系统。材料重复使用与构造平衡使建筑与场地和谐共生,展现可持续的建筑实践。 项目特色与启发 CASA EN AVANDARO 通过体量分散布局和材料选择,展示了如何在自然环境中实现建筑与景观的对话。该项目为住宅设计提供了尊重场地文脉的设计范例。 设计团队 Taller Héctor Barroso 是墨西哥建筑事务所,专注于住宅与小型建筑项目,擅长运用当地材料与建造技术,创造与自然环境融合的建筑作品。 本文来自 © tallerhectorbarroso, 发布于 © 建筑学院官方网站。 未经授权,禁止转载或摘编。 编辑版本版权归 © 建筑学院官方网站 所有, 设计、图纸及照片版权归设计方 © tallerhectorbarroso ↗ 所有。 查看作者在建筑学院发布的更多作品: tallerhectorbarroso @ 建筑学院官方网站 tallerhectorbarroso事务所 & 设计师 下载原图 收藏 0 关于作者 tallerhectorbarroso事务所 & 设计师 关注私信 14 文章 0 评论 0 粉丝 Taller Héctor Barroso是墨西哥知名建筑事务所,由Héctor Barroso Riba于2008年创立。工作室以"林中静谧"的设计哲学著称,擅长利用当地自然资源如植被、土壤和地理特征,创造与自然环境深度融合的建筑方案。其作品曾荣获加拿大AZ奖最佳住宅建筑奖、墨西哥双年展青年建筑师金牌等多项国际荣誉。Taller Héctor Barroso通过尊重场地文脉和采用本土材料,实现建筑与自然的和谐共生,在住宅和度假项目领域具有独特影响力。 帕劳Solità岛Plegamans的住宅 / House in Palau Solità i Plegamans | HArquitectes 上一篇 2026-02-12 上午9:25 长谷村战斗指挥所 Shogin Tact Tsuruoka / Tsuruoka Cultural Hall | SANAA 下一篇 2026-02-14 下午10:25 猜你喜欢 Moshe Novomesky 死海游客中心 / Kimmel Eshkolot 建筑事务所 2022-11-18 公共建筑设计 纸短情长,建筑师永远二十岁 | 致保罗·安德鲁 2018-10-13 建筑设计 青山绿水,红砖泥墙 ——安吉山川乡村记忆馆 / 中国美术学院风景建筑设计研究总院 2018-04-06 文化建筑设计 在重工业化嘈杂环境中隔离出一片净土 — 泰国Sila住宅 2018-05-22 住宅室内设计 100张国际范儿建筑分析图,了解一下 2018-05-15 图纸 克拉默阿克尔小学 / Krämeracker Primary School | Roger Boltshauser 5天前 公共建筑设计 发表回复 请登录后评论...登录后才能评论 提交