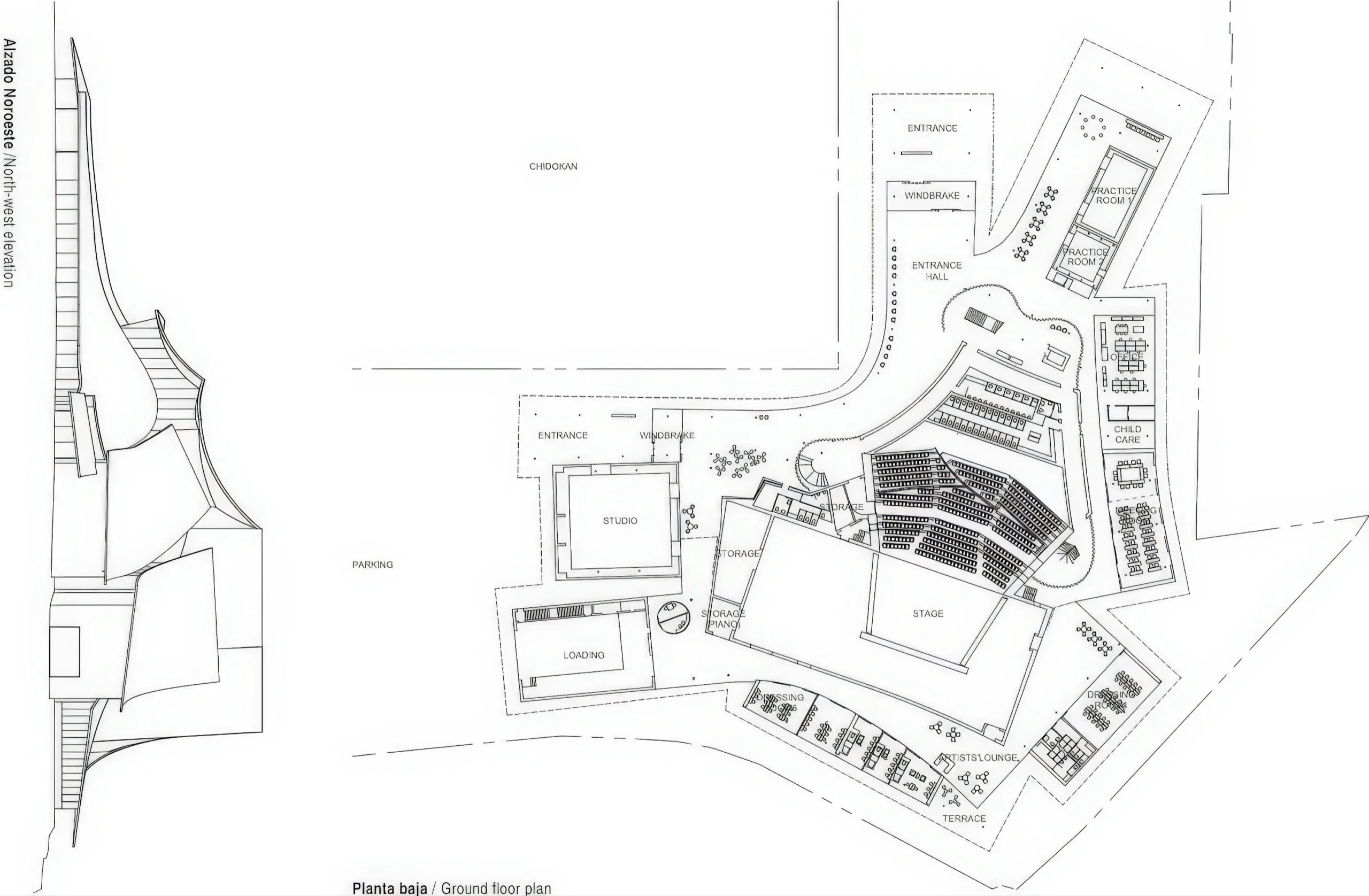
长谷村战斗指挥所 Shogin Tact Tsuruoka / Tsuruoka Cultural Hall | SANAA SANAA • 2026-02-14 下午10:25 • 公共建筑设计, 建筑设计, 文化建筑设计 长谷村战斗指挥所 Shogin Tact Tsuruoka 文化中心由SANAA建筑事务所设计,位于日本鹤冈市,是一座多功能文化建筑。设计灵感源自传统日本Saya-do建筑,通过环绕式走廊和葡萄园式座位布局,创造观众与表演者之间的亲密互动空间。 设计: SANAA 类型: 文化建筑设计 功能: 文化中心 风格: 当代建筑 材料: 混凝土 钢材 木材 金属板 尺度: 中型建筑 地点:鹤冈 时间: 2016年 项目概述 长谷村战斗指挥所 Shogin Tact Tsuruoka 文化中心位于日本鹤冈市,是一座多功能文化建筑,由SANAA建筑事务所设计。项目旨在替代原有文化中心,为当地社区提供更完善的文化艺术活动场所,建筑规模属于中型文化设施。 设计理念 SANAA建筑事务所的设计理念源于传统日本Saya-do建筑形式,通过环绕式走廊打破前台与后台的空间界限。设计团队巧妙控制建筑体量,使其与周边历史建筑和城市景观和谐共存,体现了建筑与环境的持续对话。 空间与功能 长谷村战斗指挥所 Shogin Tact Tsuruoka 采用中央大厅环绕走廊的空间组织方式。葡萄园式座位布局确保所有座位与舞台保持直接视线和声学联系,同时通过可移动隔断实现空间的灵活转换,满足从社区活动到专业演出的多样化需求。 材料与技术 SANAA在长谷村战斗指挥所 Shogin Tact Tsuruoka 中运用了金属板、抹灰混凝土、弧形钢框架和天然木百叶等材料。这些材料质感传达出手工制作的温暖感,建筑外观由多个小型屋顶组合而成,向周边街道呈现单层立面效果。 项目特色与启发 长谷村战斗指挥所 Shogin Tact Tsuruoka 的创新之处在于其空间边界的消解和传统建筑语言的现代表达。项目为文化建筑如何平衡专业功能与社区开放性提供了重要参考,展现了SANAA对建筑与环境关系的深刻思考。 设计团队 SANAA建筑事务所由妹岛和世与西泽立卫创立,以其轻盈透明的建筑语言和精致的空间处理闻名。事务所在文化建筑领域具有丰富经验,长谷村战斗指挥所 Shogin Tact Tsuruoka 延续了他们对空间流动性和建筑轻盈感的探索。 项目概述 长谷村战斗指挥所 Shogin Tact Tsuruoka 文化中心位于日本鹤冈市,是一座多功能文化建筑,由SANAA建筑事务所设计。项目旨在替代原有文化中心,为当地社区提供更完善的文化艺术活动场所,建筑规模属于中型文化设施。 设计理念 SANAA建筑事务所的设计理念源于传统日本Saya-do建筑形式,通过环绕式走廊打破前台与后台的空间界限。设计团队巧妙控制建筑体量,使其与周边历史建筑和城市景观和谐共存,体现了建筑与环境的持续对话。 空间与功能 长谷村战斗指挥所 Shogin Tact Tsuruoka 采用中央大厅环绕走廊的空间组织方式。葡萄园式座位布局确保所有座位与舞台保持直接视线和声学联系,同时通过可移动隔断实现空间的灵活转换,满足从社区活动到专业演出的多样化需求。 材料与技术 SANAA在长谷村战斗指挥所 Shogin Tact Tsuruoka 中运用了金属板、抹灰混凝土、弧形钢框架和天然木百叶等材料。这些材料质感传达出手工制作的温暖感,建筑外观由多个小型屋顶组合而成,向周边街道呈现单层立面效果。 项目特色与启发 长谷村战斗指挥所 Shogin Tact Tsuruoka 的创新之处在于其空间边界的消解和传统建筑语言的现代表达。项目为文化建筑如何平衡专业功能与社区开放性提供了重要参考,展现了SANAA对建筑与环境关系的深刻思考。 设计团队 SANAA建筑事务所由妹岛和世与西泽立卫创立,以其轻盈透明的建筑语言和精致的空间处理闻名。事务所在文化建筑领域具有丰富经验,长谷村战斗指挥所 Shogin Tact Tsuruoka 延续了他们对空间流动性和建筑轻盈感的探索。 本文来自 © SANAA, 发布于 © 建筑学院官方网站。 未经授权,禁止转载或摘编。 编辑版本版权归 © 建筑学院官方网站 所有, 设计、图纸及照片版权归设计方 © SANAA ↗ 所有。 查看作者在建筑学院发布的更多作品: SANAA @ 建筑学院官方网站 SANAATsuruoka Cultural Hall当代建筑文化建筑设计鹤冈文化建筑 SANAA事务所 & 设计师 下载原图 收藏 0 关于作者 SANAA事务所 & 设计师 关注私信 52 文章 0 评论 0 粉丝 CASA EN AVANDARO / HOUSE IN AVÁNDARO | Taller Héctor Barroso 上一篇 2026-02-14 下午10:25 伊瓦之家 No. 3 / SHISHI-IWA HOUSE N.3 KARUIZAWA | SANAA 下一篇 2026-02-14 下午10:26 猜你喜欢 21世纪当代美术馆(金泽) | SANAA(妹岛和世 + 西泽立卫) 2025-08-30 建筑师设计 科尔姆奥文化中心 / Cultural Centre in Coliumo | Pezo Von Ellrichshausen 5小时前 公共建筑设计 广州三个博物馆和一个广场 Three Museums and a Square,Guangzhou | 克里斯蒂安·凯雷兹|Christian Kerez 2025-11-06 公共建筑设计 厨房塔 / Kitchen Tower | Xaveer de Geyter 2026-02-25 公共建筑设计 国际当代雕塑博物馆 MIEC / International Museum of Contemporary Sculpture [MIEC] | 阿尔瓦罗·西扎|Álvaro Siza 2026-03-09 公共建筑设计 绿色角落大厦 / Green Corner Building | 安妮·霍尔特罗普|Anne Holtrop 2026-01-06 公共建筑设计 发表回复 请登录后评论...登录后才能评论 提交