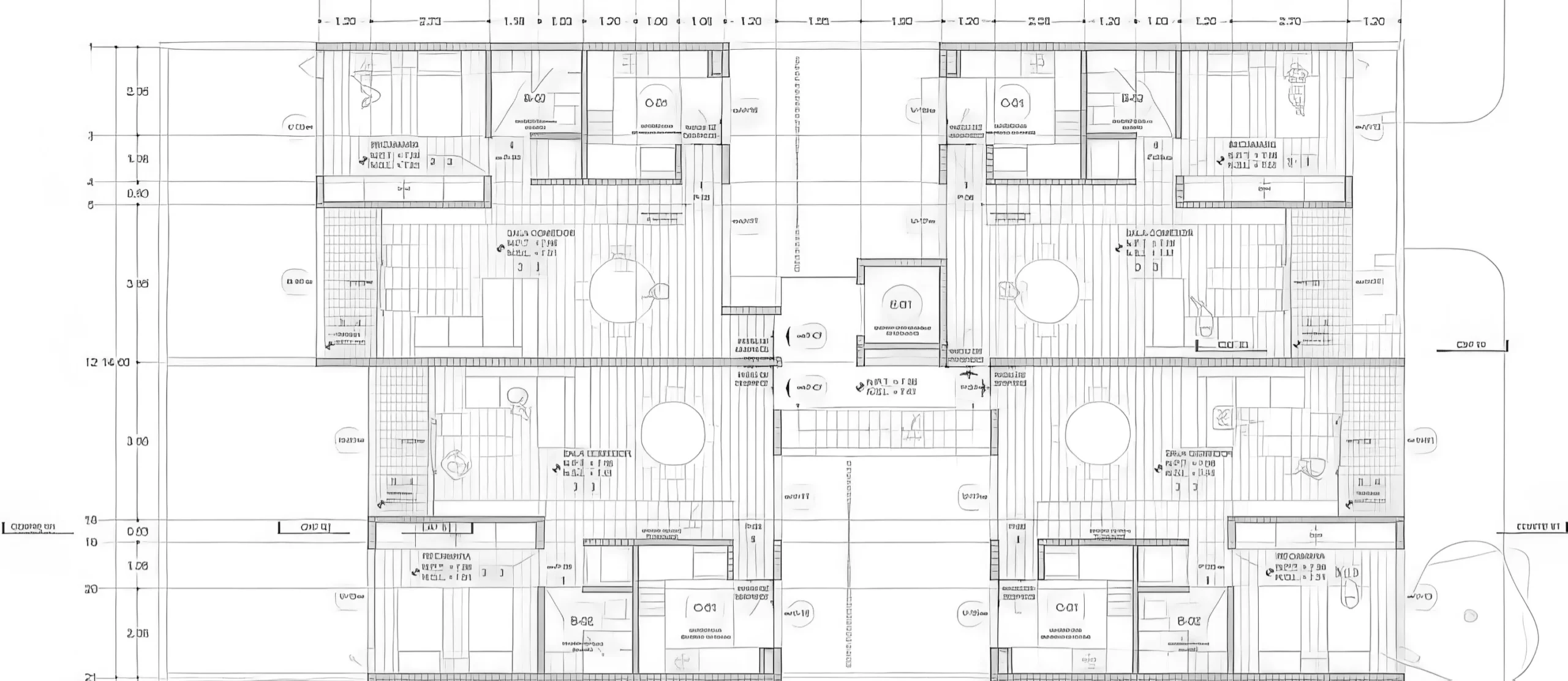
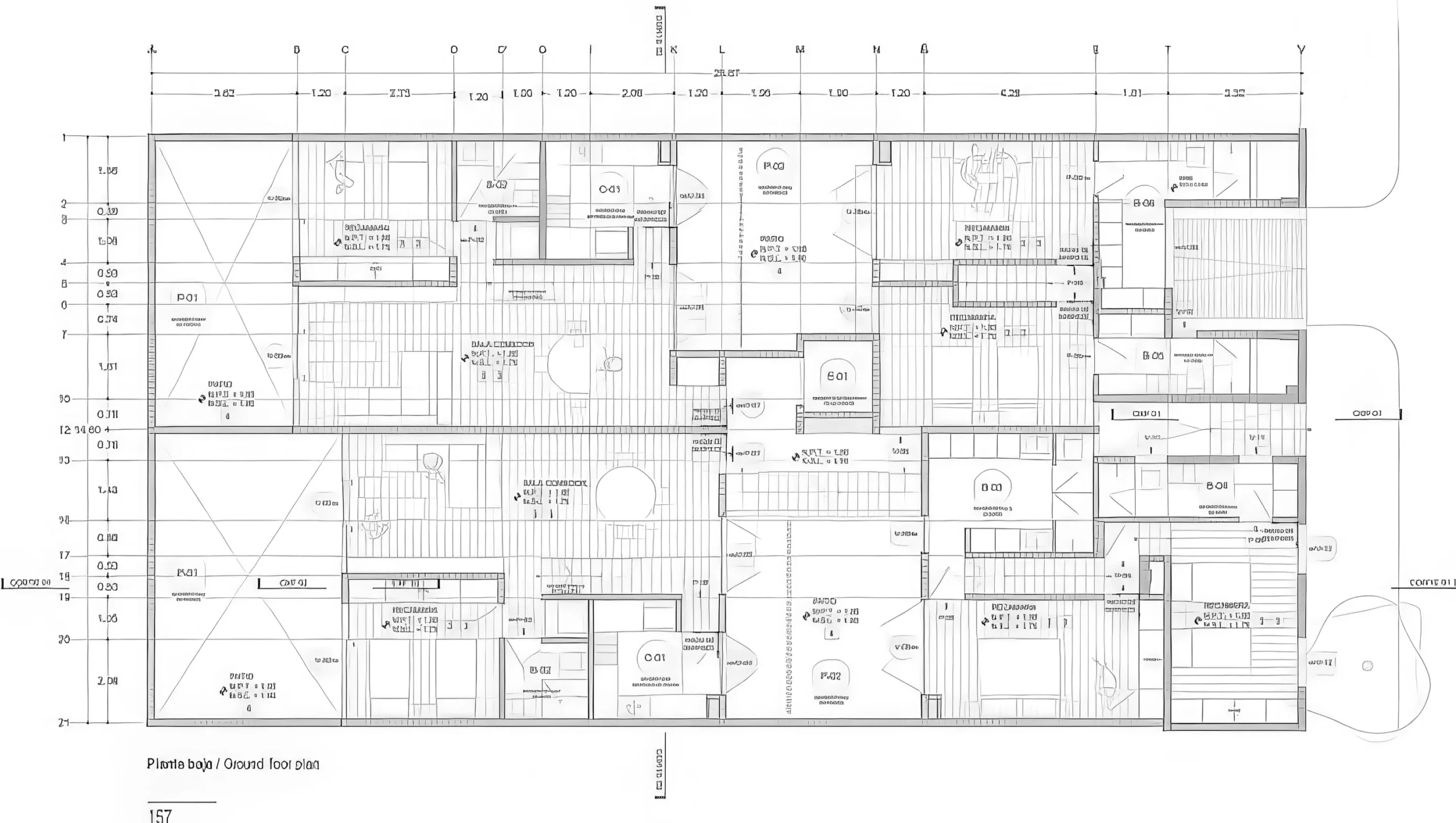
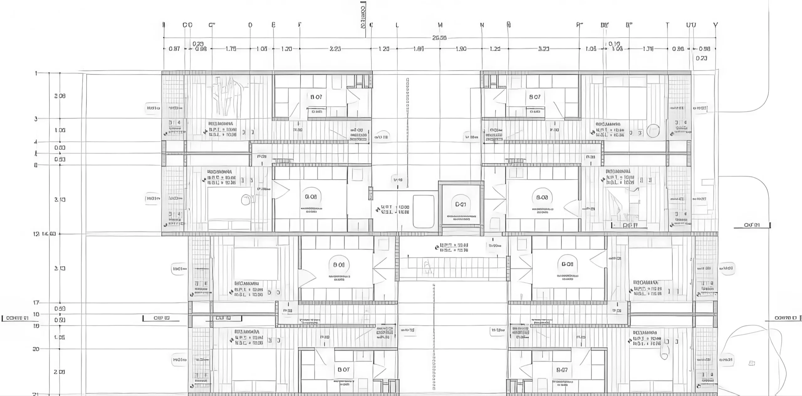
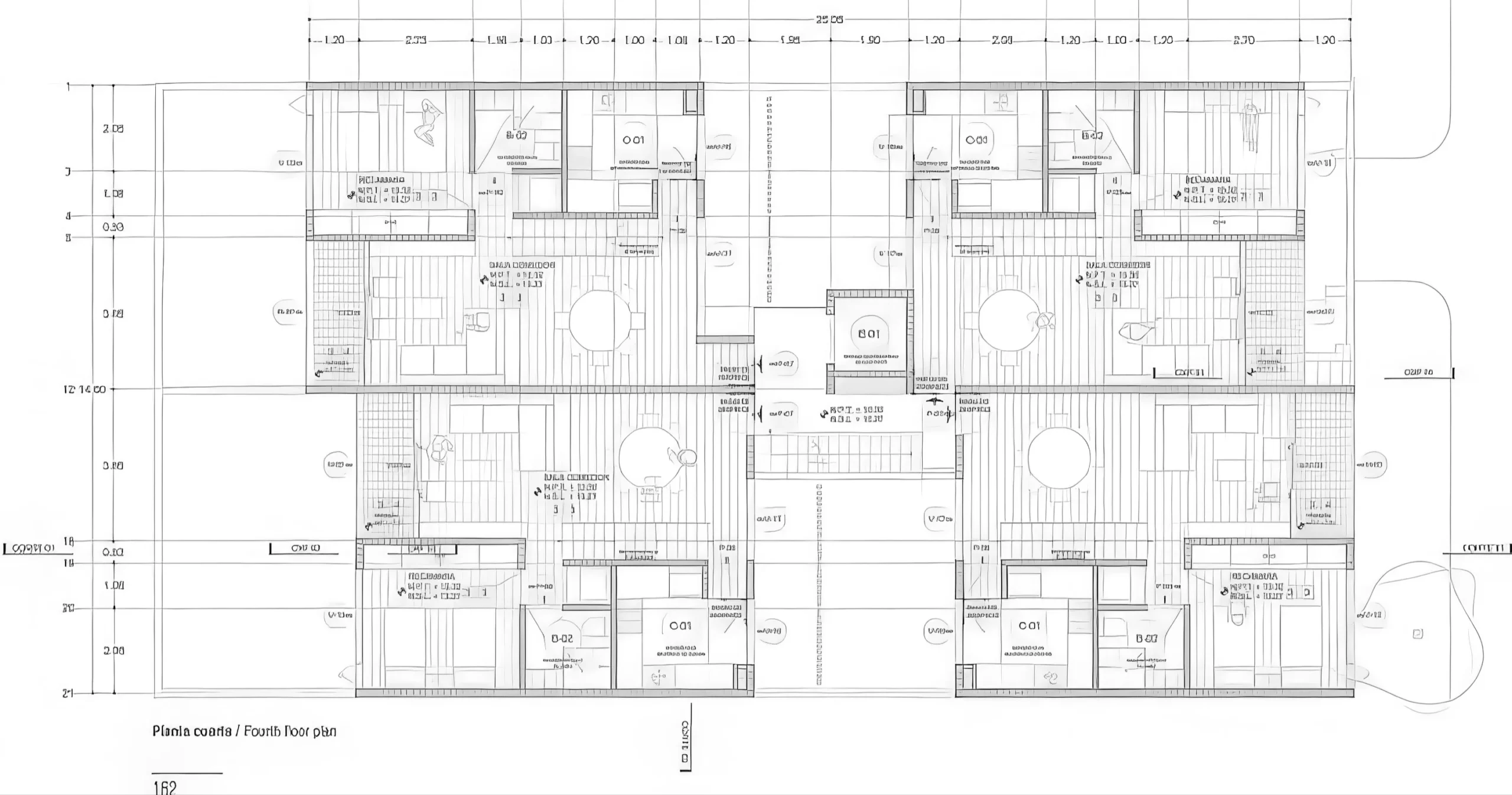
安东尼奥·麦卡伊公寓楼 8 / ANTONIO MACEO APARTMENT BUILDING 8 | Taller Héctor Barroso tallerhectorbarroso • 2026-02-18 下午2:40 • 住宅建筑设计, 公寓住宅设计, 建筑设计 安东尼奥·麦卡伊公寓楼 8 由 Taller Héctor Barroso 设计,位于墨西哥城埃斯坎东社区,是一座五层住宅建筑。项目巧妙保留历史立面,后方新建四个混凝土体量容纳13套公寓,通过集中服务空间创造灵活平面布局,实现自然采光与交叉通风。 设计: tallerhectorbarroso 类型: 建筑设计 功能: 公寓住宅 风格: 当代建筑 材料: 混凝土 尺度: 中型建筑 地点:墨西哥城 时间: 2021年 项目概述 安东尼奥·麦卡伊公寓楼 8 位于墨西哥城埃斯坎东社区,是一座五层住宅建筑,包含13套公寓单元。项目由 Taller Héctor Barroso 设计,设计始于2017年,于2021年建成,巧妙地将新建混凝土体量与受保护的历史立面相结合。 设计理念 Taller Héctor Barroso 的设计回应了墨西哥城社区再密度化的需求,通过保留历史立面与新建混凝土体量的对话,展现对城市文脉的尊重。设计团队以人性化空间组织为核心,创造既满足现代居住需求又延续场所记忆的建筑作品。 空间与功能 安东尼奥·麦卡伊公寓楼 8 采用集中服务核的布局策略,形成灵活的平面组织。五层空间中包含复式公寓单元,通过阳台和中间层扩展室内边界,楼梯等交通元素形成复杂的剖面关系,营造丰富的空间体验和视觉联系。 材料与技术 建筑主要采用现浇混凝土结构,新建体量与保留的历史立面形成材质对比。立面系统遵循严格的模数节奏,通过精确的施工工艺实现建筑的整体和谐。设计注重自然通风和采光,运用交叉通风策略提升环境舒适度。 项目特色与启发 安东尼奥·麦卡伊公寓楼 8 展示了在历史环境中进行当代建筑介入的巧妙策略,为城市再密度化项目提供了重要参考。Taller Héctor Barroso 的设计平衡了保护与创新,对类似的城市更新项目具有重要的借鉴意义。 设计团队 Taller Héctor Barroso 是墨西哥知名建筑事务所,以其对材料、光线和空间关系的深入研究而著称。事务所在住宅设计和城市更新领域具有丰富经验,致力于创造与场地特征紧密相连的建筑作品。 项目概述 安东尼奥·麦卡伊公寓楼 8 位于墨西哥城埃斯坎东社区,是一座五层住宅建筑,包含13套公寓单元。项目由 Taller Héctor Barroso 设计,设计始于2017年,于2021年建成,巧妙地将新建混凝土体量与受保护的历史立面相结合。 设计理念 Taller Héctor Barroso 的设计回应了墨西哥城社区再密度化的需求,通过保留历史立面与新建混凝土体量的对话,展现对城市文脉的尊重。设计团队以人性化空间组织为核心,创造既满足现代居住需求又延续场所记忆的建筑作品。 空间与功能 安东尼奥·麦卡伊公寓楼 8 采用集中服务核的布局策略,形成灵活的平面组织。五层空间中包含复式公寓单元,通过阳台和中间层扩展室内边界,楼梯等交通元素形成复杂的剖面关系,营造丰富的空间体验和视觉联系。 材料与技术 建筑主要采用现浇混凝土结构,新建体量与保留的历史立面形成材质对比。立面系统遵循严格的模数节奏,通过精确的施工工艺实现建筑的整体和谐。设计注重自然通风和采光,运用交叉通风策略提升环境舒适度。 项目特色与启发 安东尼奥·麦卡伊公寓楼 8 展示了在历史环境中进行当代建筑介入的巧妙策略,为城市再密度化项目提供了重要参考。Taller Héctor Barroso 的设计平衡了保护与创新,对类似的城市更新项目具有重要的借鉴意义。 设计团队 Taller Héctor Barroso 是墨西哥知名建筑事务所,以其对材料、光线和空间关系的深入研究而著称。事务所在住宅设计和城市更新领域具有丰富经验,致力于创造与场地特征紧密相连的建筑作品。 本文来自 © tallerhectorbarroso, 发布于 © 建筑学院官方网站。 未经授权,禁止转载或摘编。 编辑版本版权归 © 建筑学院官方网站 所有, 设计、图纸及照片版权归设计方 © tallerhectorbarroso ↗ 所有。 查看作者在建筑学院发布的更多作品: tallerhectorbarroso @ 建筑学院官方网站 Antonio Maceo Apartment Building 8Taller Héctor Barroso住宅建筑设计城市更新墨西哥城建筑 tallerhectorbarroso事务所 & 设计师 下载原图 收藏 0 关于作者 tallerhectorbarroso事务所 & 设计师 关注私信 14 文章 0 评论 0 粉丝 Taller Héctor Barroso是墨西哥知名建筑事务所,由Héctor Barroso Riba于2008年创立。工作室以"林中静谧"的设计哲学著称,擅长利用当地自然资源如植被、土壤和地理特征,创造与自然环境深度融合的建筑方案。其作品曾荣获加拿大AZ奖最佳住宅建筑奖、墨西哥双年展青年建筑师金牌等多项国际荣誉。Taller Héctor Barroso通过尊重场地文脉和采用本土材料,实现建筑与自然的和谐共生,在住宅和度假项目领域具有独特影响力。 洛佩兹科尔蒂亚710公寓楼 / LÓPEZ COTILLA 710 APARTMENT BUILDING | Taller Héctor Barroso 上一篇 2026-02-18 下午2:40 五幢松间房 / FIVE HOMES AMONG PINES | Taller Héctor Barroso 下一篇 2026-02-19 下午9:50 猜你喜欢 西安市未央路小学综合楼 / 中国建筑西北设计研究院 屈培青工作室 2024-01-24 建筑设计 五幢松间房 / FIVE HOMES AMONG PINES | Taller Héctor Barroso 2026-02-19 住宅建筑设计 多义、连接与激活——上海江川路社区食堂设计实践 2020-10-13 建筑设计 洛杉矶四座房子 / FOUR HOUSES IN LOS HELECHOS | Taller Héctor Barroso 2026-02-18 住宅建筑设计 荔湾茶滘的粤式生活:城市空间转变方式的多样性思考 / XAA建筑事务所 2023-11-15 商业建筑设计 卡波体育复合体 / CABO SPORTS COMPLEX | Taller Héctor Barroso 2026-02-17 体育建筑 发表回复 请登录后评论...登录后才能评论 提交