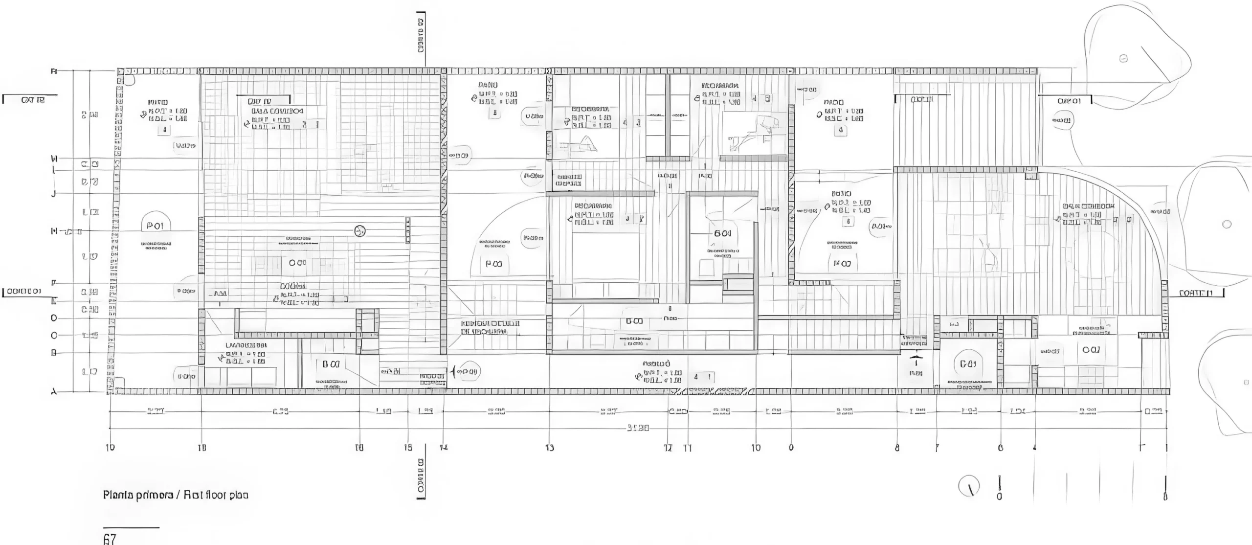
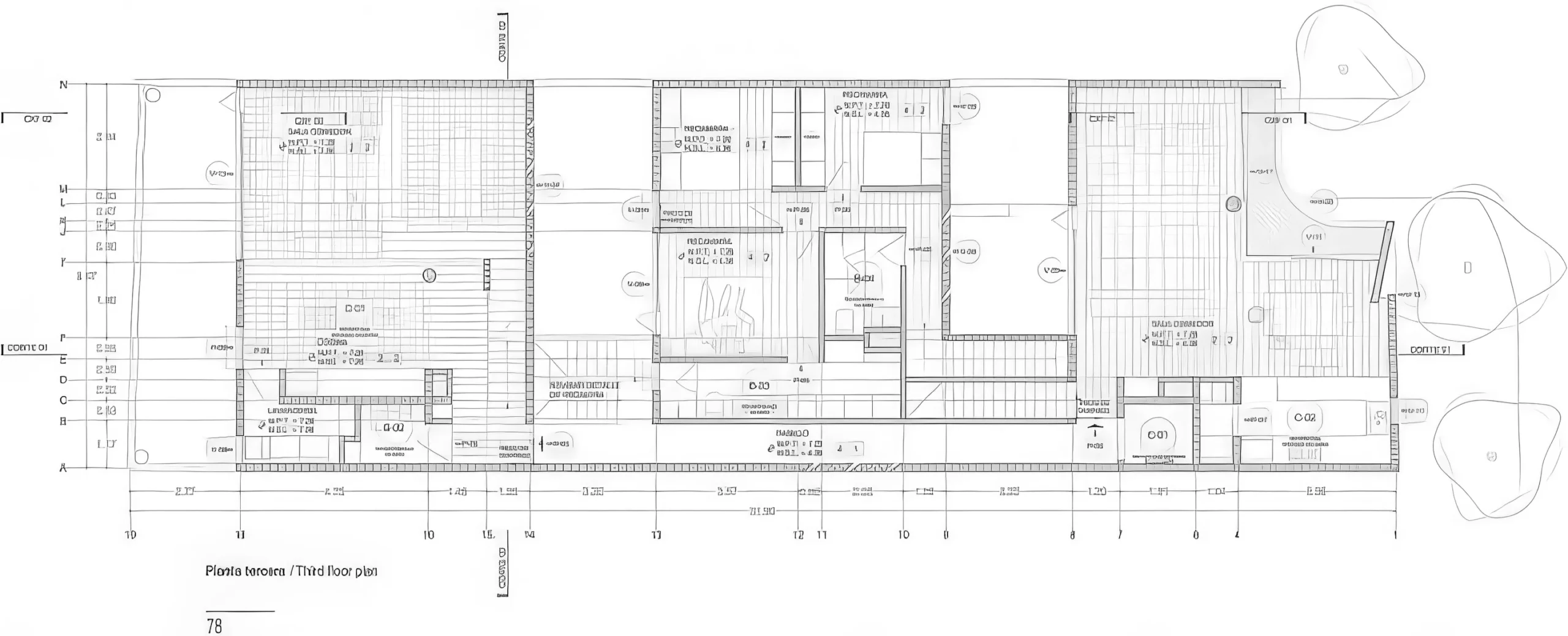
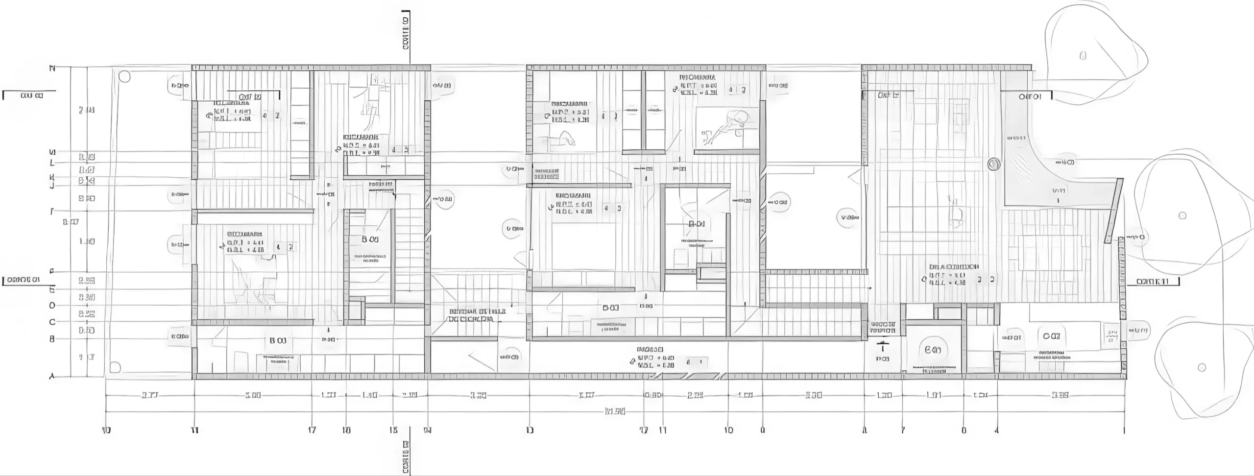
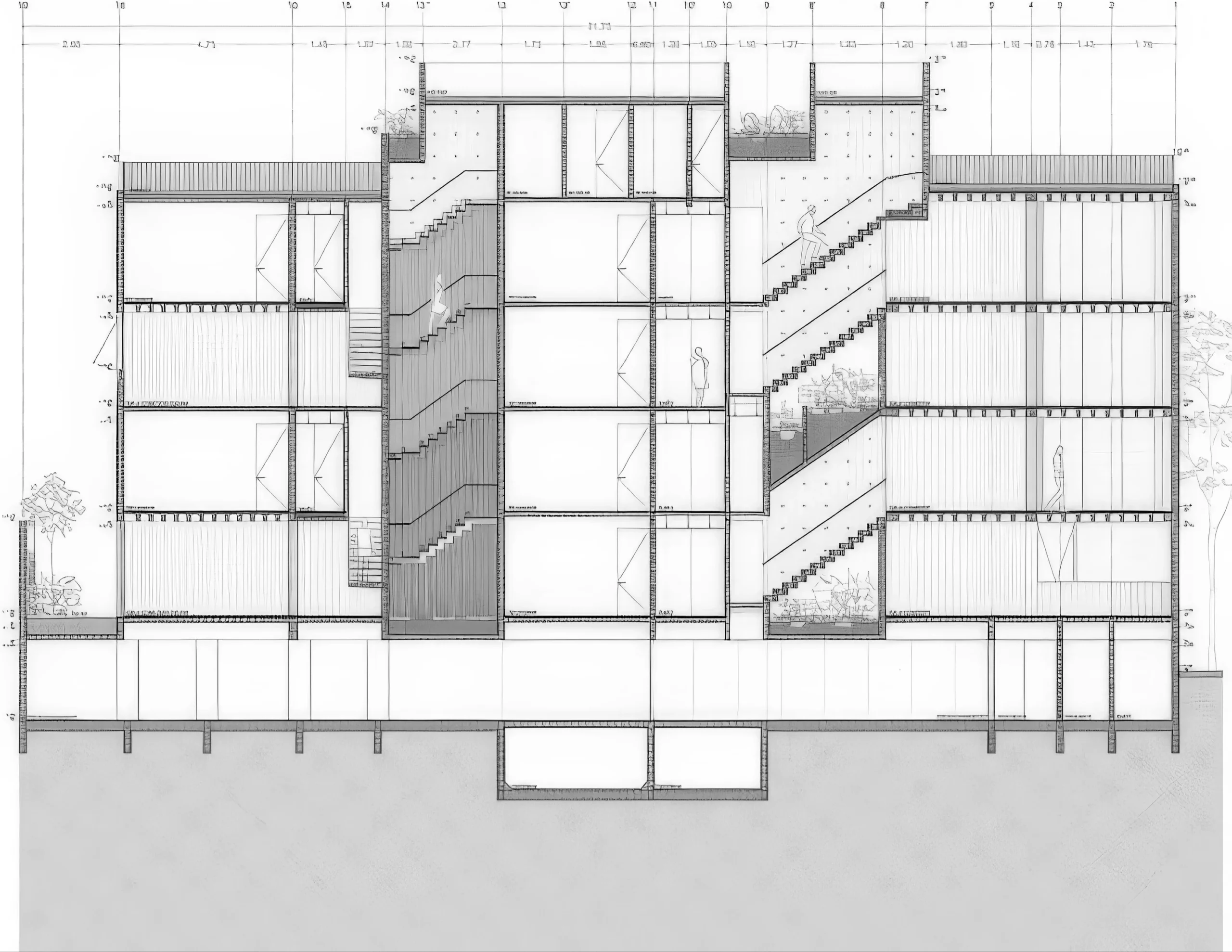
洛佩兹科尔蒂亚710公寓楼 / LÓPEZ COTILLA 710 APARTMENT BUILDING | Taller Héctor Barroso tallerhectorbarroso • 2026-02-18 下午2:40 • 住宅建筑设计, 公寓住宅设计, 建筑设计 洛佩兹科尔蒂亚710公寓楼由Taller Héctor Barroso设计,位于墨西哥城科洛尼亚德尔瓦莱区,是一座创新住宅建筑。项目采用三个体量穿插三个庭院的独特布局,通过光影变化和空间组织创造多样居住体验,展现了当代住宅设计的创新思维。 设计: tallerhectorbarroso 类型: 建筑设计 功能: 公寓住宅 风格: 当代建筑 材料: 混凝土 钢材 木材 玻璃 尺度: 中型建筑 地点:墨西哥城 时间: 2018年 项目概述 洛佩兹科尔蒂亚710公寓楼位于墨西哥城科洛尼亚德尔瓦莱区,是一座中型住宅建筑。项目占地狭长矩形地块,建筑面积约2000平方米,设计于2015年,建成于2018年。这座公寓楼通过创新的空间组织回应了城市高密度居住需求。 设计理念 Taller Héctor Barroso以三个体量穿插三个庭院的组合方式作为核心设计概念,旨在在有限场地内创造丰富的空间体验。设计团队通过体量错动和庭院穿插,巧妙解决了狭长地块的采光通风问题,同时为每户住宅提供了独特的户外空间。 空间与功能 建筑空间组织基于三个主要体量,其间穿插三个庭院花园。前四个住宅单元以交错方式布置在前两个体量之间,第三个体量采用线性或复式系统。所有单元都通过精心设计的流线最大化与外部空间的联系,创造了半阴影与光线交织的丰富空间体验。 材料与技术 项目主要采用混凝土结构体系,结合钢材和玻璃材料。外立面采用特殊色调的混凝土墙面,配以韵律感的开窗设计。施工过程中使用了高质量的松木模板,确保了混凝土表面的精细质感。技术细节包括金属楼梯、玻璃栏杆和木材装饰等。 项目特色与启发 洛佩兹科尔蒂亚710公寓楼的独特之处在于其通过简单的体量组合创造了复杂的空间体验,为高密度城市住宅设计提供了新思路。项目展示了如何在有限场地内通过巧妙的空间组织实现居住品质的提升,对当代城市住宅设计具有重要参考价值。 设计团队 Taller Héctor Barroso是墨西哥知名建筑事务所,专注于住宅和文化类建筑项目。事务所擅长通过简洁的建筑语言和细致的材料运用创造富有诗意的空间体验,在墨西哥当代建筑界享有盛誉。其作品常常体现对光线、材料和空间关系的深入探索。 项目概述 洛佩兹科尔蒂亚710公寓楼位于墨西哥城科洛尼亚德尔瓦莱区,是一座中型住宅建筑。项目占地狭长矩形地块,建筑面积约2000平方米,设计于2015年,建成于2018年。这座公寓楼通过创新的空间组织回应了城市高密度居住需求。 设计理念 Taller Héctor Barroso以三个体量穿插三个庭院的组合方式作为核心设计概念,旨在在有限场地内创造丰富的空间体验。设计团队通过体量错动和庭院穿插,巧妙解决了狭长地块的采光通风问题,同时为每户住宅提供了独特的户外空间。 空间与功能 建筑空间组织基于三个主要体量,其间穿插三个庭院花园。前四个住宅单元以交错方式布置在前两个体量之间,第三个体量采用线性或复式系统。所有单元都通过精心设计的流线最大化与外部空间的联系,创造了半阴影与光线交织的丰富空间体验。 材料与技术 项目主要采用混凝土结构体系,结合钢材和玻璃材料。外立面采用特殊色调的混凝土墙面,配以韵律感的开窗设计。施工过程中使用了高质量的松木模板,确保了混凝土表面的精细质感。技术细节包括金属楼梯、玻璃栏杆和木材装饰等。 项目特色与启发 洛佩兹科尔蒂亚710公寓楼的独特之处在于其通过简单的体量组合创造了复杂的空间体验,为高密度城市住宅设计提供了新思路。项目展示了如何在有限场地内通过巧妙的空间组织实现居住品质的提升,对当代城市住宅设计具有重要参考价值。 设计团队 Taller Héctor Barroso是墨西哥知名建筑事务所,专注于住宅和文化类建筑项目。事务所擅长通过简洁的建筑语言和细致的材料运用创造富有诗意的空间体验,在墨西哥当代建筑界享有盛誉。其作品常常体现对光线、材料和空间关系的深入探索。 本文来自 © tallerhectorbarroso, 发布于 © 建筑学院官方网站。 未经授权,禁止转载或摘编。 编辑版本版权归 © 建筑学院官方网站 所有, 设计、图纸及照片版权归设计方 © tallerhectorbarroso ↗ 所有。 查看作者在建筑学院发布的更多作品: tallerhectorbarroso @ 建筑学院官方网站 Lopez Cotilla 710Taller Héctor Barroso公寓楼设计墨西哥城住宅当代住宅建筑 tallerhectorbarroso事务所 & 设计师 下载原图 收藏 0 关于作者 tallerhectorbarroso事务所 & 设计师 关注私信 14 文章 0 评论 0 粉丝 Taller Héctor Barroso是墨西哥知名建筑事务所,由Héctor Barroso Riba于2008年创立。工作室以"林中静谧"的设计哲学著称,擅长利用当地自然资源如植被、土壤和地理特征,创造与自然环境深度融合的建筑方案。其作品曾荣获加拿大AZ奖最佳住宅建筑奖、墨西哥双年展青年建筑师金牌等多项国际荣誉。Taller Héctor Barroso通过尊重场地文脉和采用本土材料,实现建筑与自然的和谐共生,在住宅和度假项目领域具有独特影响力。 洛杉矶四座房子 / FOUR HOUSES IN LOS HELECHOS | Taller Héctor Barroso 上一篇 2026-02-18 下午2:40 安东尼奥·麦卡伊公寓楼 8 / ANTONIO MACEO APARTMENT BUILDING 8 | Taller Héctor Barroso 下一篇 2026-02-18 下午2:40 猜你喜欢 加那达之家 / Cañada House | Taller Héctor Barroso 2026-02-17 住宅建筑设计 Tulum的六座房屋 / Six Houses in Tulum | Taller Héctor Barroso 2026-02-20 住宅建筑设计 安东尼奥·麦卡伊公寓楼 8 / ANTONIO MACEO APARTMENT BUILDING 8 | Taller Héctor Barroso 2026-02-18 住宅建筑设计 塔卢姆六座房屋 / Six Houses in Tulum | Taller Héctor Barroso 2026-02-19 住宅建筑设计 帕拉尔大街工作室和公寓 / Studio and Apartment on Calle Parral | Taller Héctor Barroso 2026-02-20 住宅建筑设计 安纳阿戈拉斯公寓楼 / ANAXÁGORAS APARTMENT BUILDING | Taller Héctor Barroso 2026-02-17 住宅建筑设计 发表回复 请登录后评论...登录后才能评论 提交