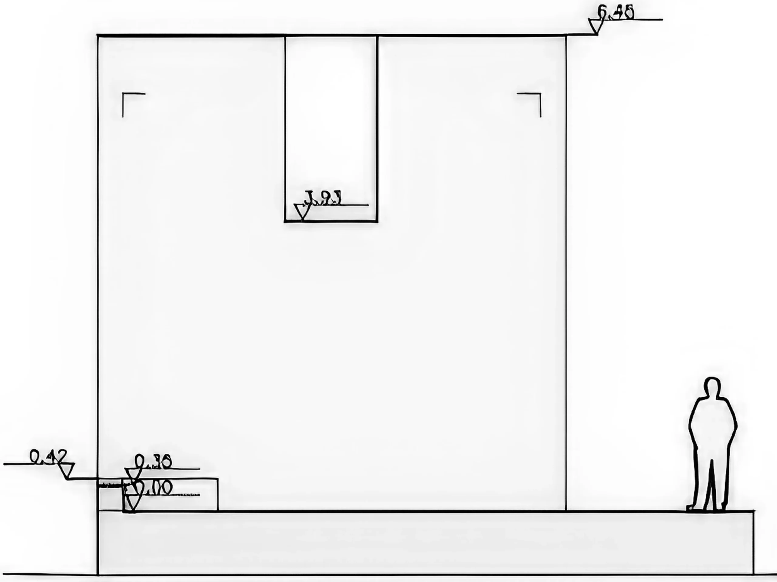
卡帕尔达摩纳哥,卢戈斯 / Capela do Monte, Lagos | 阿尔瓦罗·西扎|Álvaro Siza 阿尔瓦罗·西扎|Alvaro Siza • 2026-03-04 上午10:09 • 公共空间设计, 文化综合体 卡帕尔达摩纳哥小教堂由葡萄牙建筑师阿尔瓦罗·西扎设计,位于卢戈斯一处缓坡高地上。这座小型宗教建筑采用矩形平面,通过白色抹灰墙面、大理石地面和自然通风系统,创造了一个专用于冥想与沉思的私密空间,体现了西扎对场地地形与建筑体量的精准把握。 设计: 阿尔瓦罗·西扎|Alvaro Siza 类型: 文化综合体 功能: 宗教建筑 风格: 极简主义 材料: 混凝土 砖材 尺度: 中型建筑 地点:卢戈斯 时间: 2020年 项目概述 卡帕尔达摩纳哥小教堂位于葡萄牙卢戈斯,是一座小型宗教建筑,建筑面积约65平方米。建筑采用矩形平面,长10.34米,宽6.34米,高6.48米,设计充分考虑了场地2.6英亩的缓坡地形特征。 设计理念 阿尔瓦罗·西扎的设计理念强调建筑与自然的和谐共生,通过简洁的几何形体回应场地地形。小教堂选址在坡地最高点,西向基座不仅形成入口平台,更在斜坡上创造了一个水平基准面,体现了建筑师对场地特征的深刻理解。 空间与功能 空间组织以矩形平面为基础,通过精确的尺度控制营造冥想氛围。建筑主要供日间使用,功能限定为私密性的退修与沉思空间。流线设计简洁明了,从西侧平台进入室内,视线引导自然流畅。 材料与技术 采用29厘米厚保温粘土砖砌体结构,内外墙面均采用白色抹灰处理。地面使用大理石铺装,配合木制门窗和轻质混凝土屋顶板,屋顶覆盖植被土层。建筑不设电力、供暖或供水设施,依靠构造系统和自然通风调节室内气候。 项目特色与启发 卡帕尔达摩纳哥小教堂展现了西扎在小型宗教建筑中的设计功力,其简约的形式语言、精准的场地应对和可持续的设计策略,为当代建筑师提供了如何在有限条件下创造深刻空间体验的范例。 设计团队 阿尔瓦罗·西扎是葡萄牙著名建筑师,1992年普利兹克奖得主,以其现代主义建筑语言和对场地文脉的敏感回应而闻名。其作品涵盖住宅、文化建筑和城市设计等多个领域,在国际建筑界享有盛誉。 项目概述 卡帕尔达摩纳哥小教堂位于葡萄牙卢戈斯,是一座小型宗教建筑,建筑面积约65平方米。建筑采用矩形平面,长10.34米,宽6.34米,高6.48米,设计充分考虑了场地2.6英亩的缓坡地形特征。 设计理念 阿尔瓦罗·西扎的设计理念强调建筑与自然的和谐共生,通过简洁的几何形体回应场地地形。小教堂选址在坡地最高点,西向基座不仅形成入口平台,更在斜坡上创造了一个水平基准面,体现了建筑师对场地特征的深刻理解。 空间与功能 空间组织以矩形平面为基础,通过精确的尺度控制营造冥想氛围。建筑主要供日间使用,功能限定为私密性的退修与沉思空间。流线设计简洁明了,从西侧平台进入室内,视线引导自然流畅。 材料与技术 采用29厘米厚保温粘土砖砌体结构,内外墙面均采用白色抹灰处理。地面使用大理石铺装,配合木制门窗和轻质混凝土屋顶板,屋顶覆盖植被土层。建筑不设电力、供暖或供水设施,依靠构造系统和自然通风调节室内气候。 项目特色与启发 卡帕尔达摩纳哥小教堂展现了西扎在小型宗教建筑中的设计功力,其简约的形式语言、精准的场地应对和可持续的设计策略,为当代建筑师提供了如何在有限条件下创造深刻空间体验的范例。 设计团队 阿尔瓦罗·西扎是葡萄牙著名建筑师,1992年普利兹克奖得主,以其现代主义建筑语言和对场地文脉的敏感回应而闻名。其作品涵盖住宅、文化建筑和城市设计等多个领域,在国际建筑界享有盛誉。 本文来自 © 阿尔瓦罗·西扎|Alvaro Siza, 发布于 © 建筑学院官方网站。 未经授权,禁止转载或摘编。 编辑版本版权归 © 建筑学院官方网站 所有, 设计、图纸及照片版权归设计方 © 阿尔瓦罗·西扎|Alvaro Siza ↗ 所有。 查看作者在建筑学院发布的更多作品: 阿尔瓦罗·西扎|Alvaro Siza @ 建筑学院官方网站 Capela do Monte宗教建筑小教堂设计葡萄牙建筑阿尔瓦罗·西扎 阿尔瓦罗·西扎|Alvaro Siza事务所 & 设计师 下载原图 收藏 0 关于作者 阿尔瓦罗·西扎|Alvaro Siza事务所 & 设计师 关注私信 36 文章 0 评论 2 粉丝 阿尔瓦罗·西扎(Álvaro Siza)是葡萄牙著名建筑师,1992年普利兹克奖得主。他以融合葡萄牙建筑传统与国际现代主义的“诗意现代主义”风格闻名,代表作包括勒萨德帕梅拉游泳池等。 罗杰广场,布鲁塞尔 / Place Rogier, Brussels | Xaveer de Geyter 上一篇 2026-02-28 下午2:11 公共空间谢赫艾伯罕中心 / Public Space Sheikh Ebrahim Center | 安妮·霍尔特罗普|Anne Holtrop 下一篇 2026-03-11 上午9:50 猜你喜欢 永宗岛恩诺里教堂 / shinslab architecture 2024-04-29 建筑设计 漂浮在物质和精神世界中的空间 2017-07-13 文化建筑设计 中国设计博物馆贝乌斯收藏 / China Design Museum. Bauhaus Collection | 阿尔瓦罗·西扎|Álvaro Siza 2025-12-14 公共建筑设计 巨龙山教堂 / INUCE • Dirk U. Moench 2024-06-03 公共建筑设计 奥斯特鲁姆的套房和别墅 / Suites and Villas, Estremoz | 阿尔瓦罗·西扎|Álvaro Siza 2026-03-01 商业与综合建筑 江南水陆工厂 / The Building on the Water Shilien Chemical Industrial Factory | 阿尔瓦罗·西扎 & 卡洛斯·卡斯塔涅拉 2026-01-07 公共建筑设计 发表回复 请登录后评论...登录后才能评论 提交