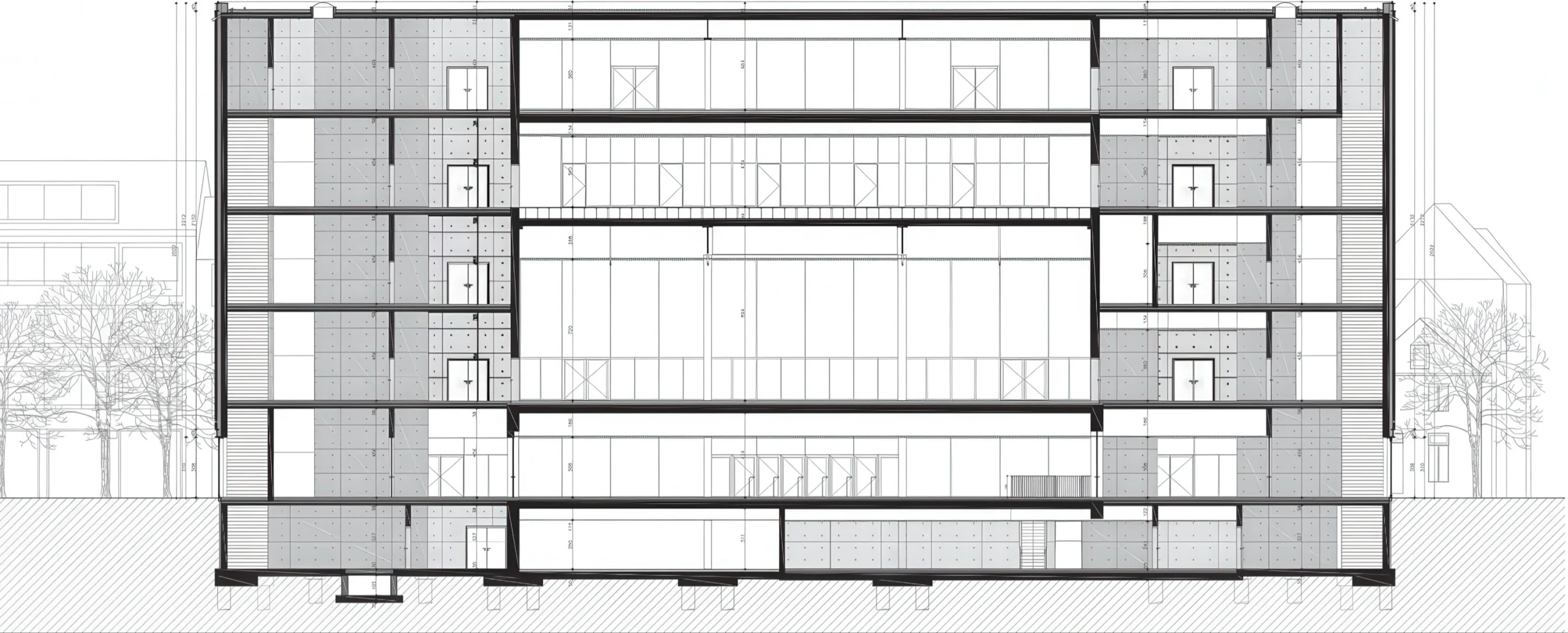
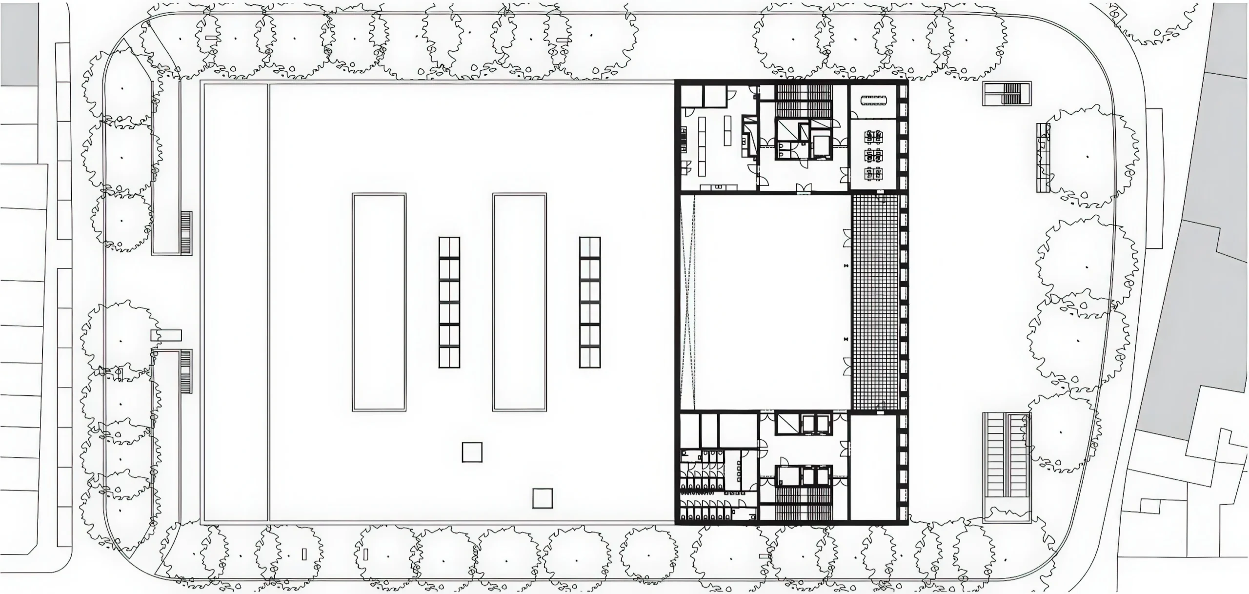
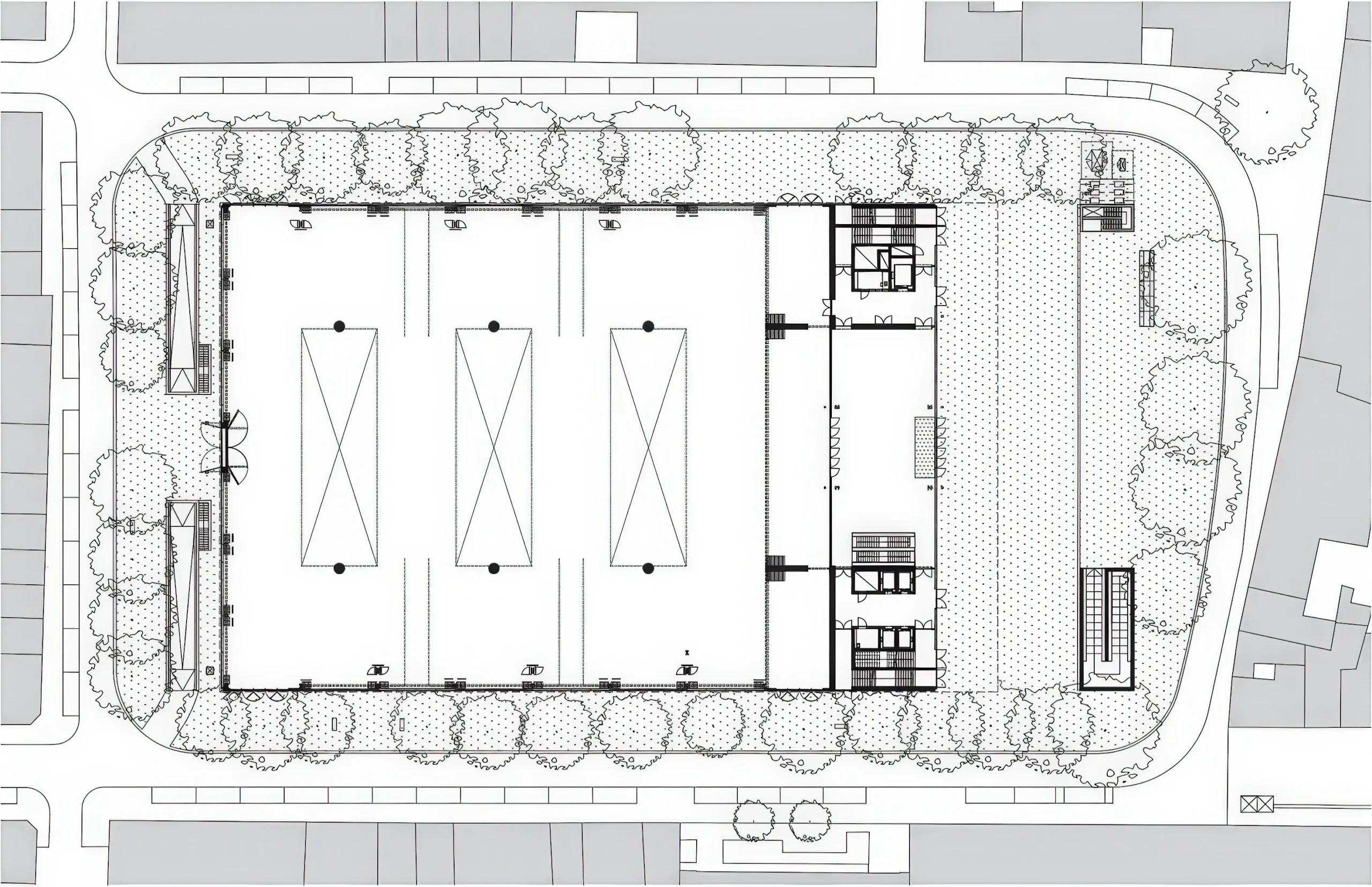
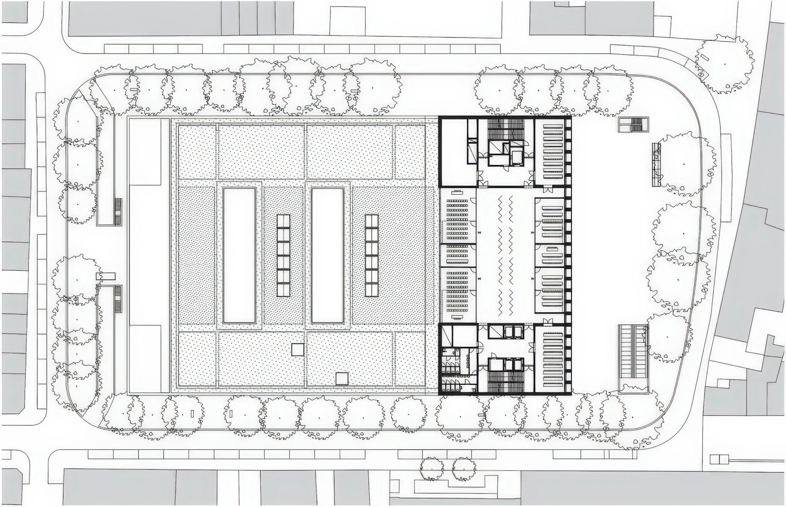
布鲁日会议和展览中心 / Bruges Congress and Exhibition Centre | 德·莫拉建筑事务所 德·莫拉|de Moura • 2026-03-14 上午9:51 • 公共建筑设计, 建筑设计, 文化建筑设计 布鲁日会议和展览中心由德·莫拉建筑事务所设计,位于比利时布鲁日市中心,是一座集会议、展览与餐饮功能于一体的文化建筑。项目通过透明化设计与多尺度空间策略,巧妙回应历史城市肌理,创造开放包容的公共空间。 设计: 德·莫拉|de Moura 类型: 文化建筑设计 功能: 展览馆 风格: 现代主义 材料: 玻璃 砖材 尺度: 大型建筑 地点:布鲁日 时间: 2021年 项目概述 布鲁日会议和展览中心位于比利时布鲁日市中心,是一座集会议、展览与餐饮功能于一体的文化建筑。项目由德·莫拉建筑事务所设计,设计周期为2016-2021年,通过多尺度空间策略巧妙融入历史城市肌理。 设计理念 设计团队以”尺度修正”为核心概念,将建筑视为对城市地理的物理与精神回应。布鲁日会议和展览中心通过垂直与水平体量的对比,既尊重周边街道尺度,又在广场处抬升体量形成公共地标,体现现代”阿戈拉”式的开放精神。 空间与功能 地面层设置透明展览厅,确保从周边街道和广场可轻松进入。顶层餐厅提供布鲁日城市全景视野,空间组织强调公共可达性。建筑内部包含会议厅、展览空间和餐饮区,流线设计注重不同功能区域的有机连接。 材料与技术 主要采用玻璃和砖材,玻璃实现透明性目标,砖材呼应布鲁日本地建筑传统。屋顶设计为花园露台,主立面垂直性既体现公共建筑特征,也满足结构需求和遮阳功能。 项目特色与启发 布鲁日会议和展览中心展示了如何在历史环境中植入当代建筑语言,其多尺度策略和材料选择为城市更新项目提供了重要参考,体现了建筑作为社会服务的本质。 设计团队 德·莫拉建筑事务所是葡萄牙知名建筑设计机构,以简洁有力的建筑语言和对场地文脉的深刻理解著称。事务所在布鲁日会议和展览中心项目中展现了处理复杂城市环境的专业能力。 项目概述 布鲁日会议和展览中心位于比利时布鲁日市中心,是一座集会议、展览与餐饮功能于一体的文化建筑。项目由德·莫拉建筑事务所设计,设计周期为2016-2021年,通过多尺度空间策略巧妙融入历史城市肌理。 设计理念 设计团队以”尺度修正”为核心概念,将建筑视为对城市地理的物理与精神回应。布鲁日会议和展览中心通过垂直与水平体量的对比,既尊重周边街道尺度,又在广场处抬升体量形成公共地标,体现现代”阿戈拉”式的开放精神。 空间与功能 地面层设置透明展览厅,确保从周边街道和广场可轻松进入。顶层餐厅提供布鲁日城市全景视野,空间组织强调公共可达性。建筑内部包含会议厅、展览空间和餐饮区,流线设计注重不同功能区域的有机连接。 材料与技术 主要采用玻璃和砖材,玻璃实现透明性目标,砖材呼应布鲁日本地建筑传统。屋顶设计为花园露台,主立面垂直性既体现公共建筑特征,也满足结构需求和遮阳功能。 项目特色与启发 布鲁日会议和展览中心展示了如何在历史环境中植入当代建筑语言,其多尺度策略和材料选择为城市更新项目提供了重要参考,体现了建筑作为社会服务的本质。 设计团队 德·莫拉建筑事务所是葡萄牙知名建筑设计机构,以简洁有力的建筑语言和对场地文脉的深刻理解著称。事务所在布鲁日会议和展览中心项目中展现了处理复杂城市环境的专业能力。 本文来自 © 德·莫拉|de Moura, 发布于 © 建筑学院官方网站。 未经授权,禁止转载或摘编。 编辑版本版权归 © 建筑学院官方网站 所有, 设计、图纸及照片版权归设计方 © 德·莫拉|de Moura ↗ 所有。 查看作者在建筑学院发布的更多作品: 德·莫拉|de Moura @ 建筑学院官方网站 bruges-congress-and-exhibition-centre会议展览中心布鲁日文化建筑德·莫拉建筑事务所现代主义 德·莫拉|de Moura事务所 & 设计师 下载原图 收藏 0 关于作者 德·莫拉|de Moura事务所 & 设计师 关注私信 14 文章 0 评论 1 粉丝 德·莫拉(de Moura),即爱德华多·索托·德·莫拉(Eduardo Souto de Moura),2011年普利兹克奖得主,葡萄牙著名建筑师。其作品以极简主义与材质质感著称,擅长将建筑与自然景观深度融合,代表作包括布拉加市政球场、保拉·雷戈博物馆等。 奥伊雷斯的房子 / House in Oeiras | 德·莫拉建筑事务所 上一篇 2026-03-13 下午1:11 梵蒂冈小教堂 / Vatican Chapel for the Venice Biennale | 德·莫拉建筑事务所 下一篇 2026-03-14 上午10:19 猜你喜欢 阿尔坎波塞修道院修复 / Alcobaça Monastery Renovation | 德·莫拉建筑事务所 2025-12-15 公共建筑设计 大剧院 Auditorium / Teatro-Auditorio | 阿尔瓦罗·西扎|Álvaro Siza 2026-03-02 公共建筑设计 库拉卡维房屋 / House in Curacaví | Pezo Von Ellrichshausen 2026-02-07 住宅建筑设计 圣卢西亚路公寓 / Apartments on Rua da Senhora da Luz | 德·莫拉建筑事务所 2025-12-26 住宅建筑设计 阿瓜斯多港口实验室 / Águas do Porto Laboratory | 德·莫拉建筑事务所 2026-03-19 工业建筑 知识之屋维拉维德 / Vila Verde House of Knowledge | 德·莫拉建筑事务所 2026-03-18 公共建筑设计 发表回复 请登录后评论...登录后才能评论 提交