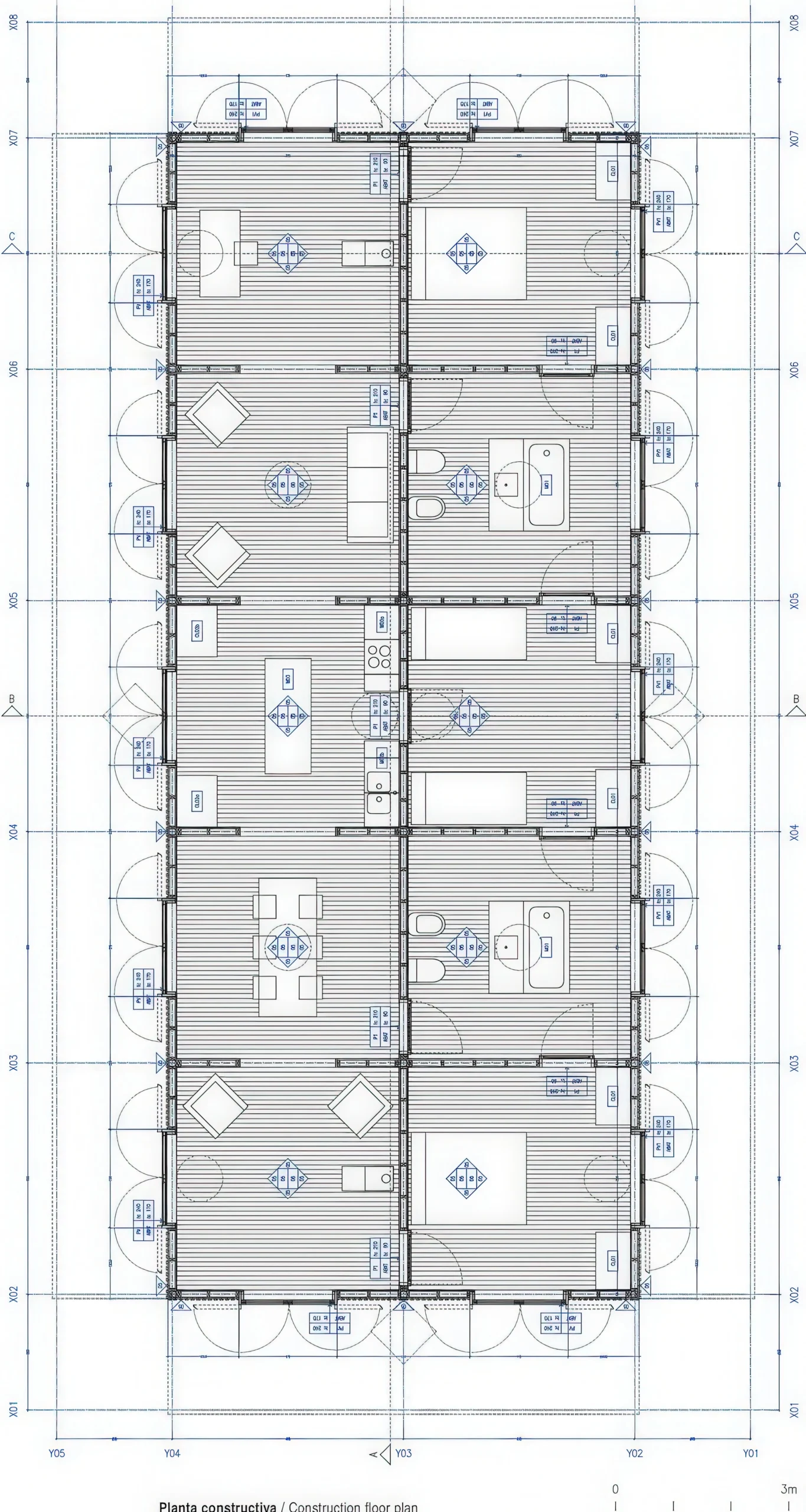
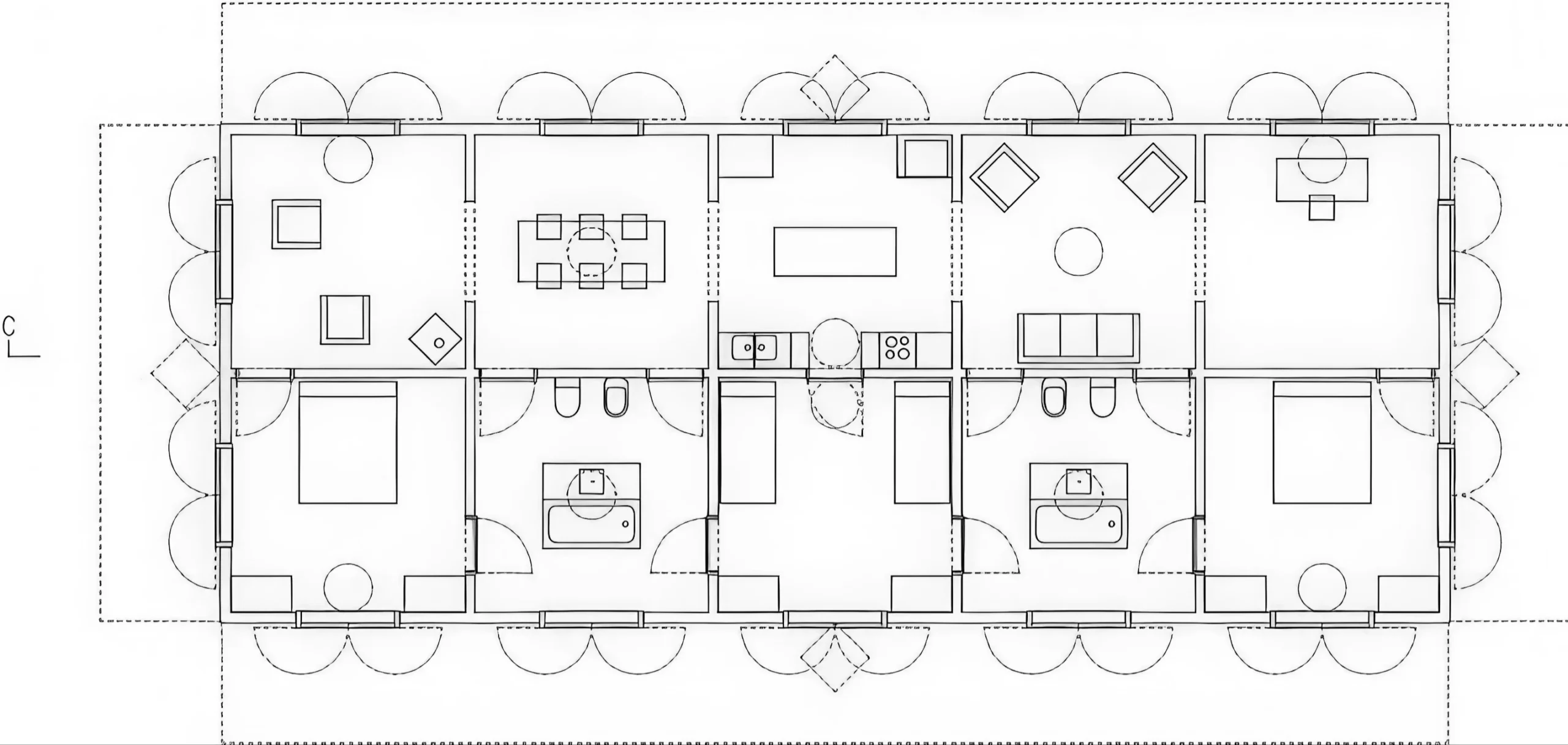
佛罗里达的房子 / House in Florida | Pezo Von Ellrichshausen Pezo Von Ellrichshausen • 2026-03-28 下午3:17 • 住宅建筑设计, 建筑设计, 独立住宅设计 佛罗里达的房子由智利建筑事务所Pezo Von Ellrichshausen设计,位于智利第八大区,是一座季节性使用的独立住宅。该项目通过水平延展的体量与精心设计的开窗系统,在人工基座上创造了一个光影丰富的居住空间,展现了现代住宅建筑的精致与简约。 设计: Pezo Von Ellrichshausen 类型: 独立住宅设计 功能: 独立住宅 风格: 现代主义 材料: 木材 尺度: 小型建筑 地点:智利第八大区 时间: 2014年 项目概述 佛罗里达的房子位于智利第八大区,是一座季节性使用的独立住宅。项目由Pezo Von Ellrichshausen事务所设计,原为永久性住宅改造而成,规模缩小三分之一,建筑面积适中。设计始于2013年,建成于2014年。 设计理念 设计团队以”弹性关系”为核心理念,在原有项目虚构足迹的基础上重新构思。建筑水平延伸的形态呼应山脚下蜿蜒河流的流动感,通过双重立面与规则房间序列,在开放景观与私密功能之间建立动态平衡。 空间与功能 建筑内部采用对称布局,两侧各设五个房间,通过不同的开窗系统组织空间。面向开放景观的连续布置公共功能,面向山体的不连续布置私密功能。屋顶穿孔系统对角拉伸空间感知深度,中央切向穿孔模糊房间界限,创造统一的空间体验。 材料与技术 建筑全部采用浸渍松木结构,外墙使用染色粗糙木板,内饰采用平滑柔软木板。屋顶延伸超出室内范围,在四个立面形成显著阴影,展现木构造的精致工艺与材料表现力。 项目特色与启发 佛罗里达的房子展示了如何通过材料转换与空间重组实现建筑功能的灵活转变。其精确的空间序列与光影控制为小型住宅设计提供了重要参考,体现了当代建筑对场地文脉与使用需求的深度回应。 设计团队 Pezo Von Ellrichshausen是智利知名建筑事务所,由Mauricio Pezo和Sofia von Ellrichshausen创立。事务所以严谨的几何研究、材料探索和空间实验著称,在住宅建筑领域具有重要影响力,其作品多次获得国际奖项。 项目概述 佛罗里达的房子位于智利第八大区,是一座季节性使用的独立住宅。项目由Pezo Von Ellrichshausen事务所设计,原为永久性住宅改造而成,规模缩小三分之一,建筑面积适中。设计始于2013年,建成于2014年。 设计理念 设计团队以”弹性关系”为核心理念,在原有项目虚构足迹的基础上重新构思。建筑水平延伸的形态呼应山脚下蜿蜒河流的流动感,通过双重立面与规则房间序列,在开放景观与私密功能之间建立动态平衡。 空间与功能 建筑内部采用对称布局,两侧各设五个房间,通过不同的开窗系统组织空间。面向开放景观的连续布置公共功能,面向山体的不连续布置私密功能。屋顶穿孔系统对角拉伸空间感知深度,中央切向穿孔模糊房间界限,创造统一的空间体验。 材料与技术 建筑全部采用浸渍松木结构,外墙使用染色粗糙木板,内饰采用平滑柔软木板。屋顶延伸超出室内范围,在四个立面形成显著阴影,展现木构造的精致工艺与材料表现力。 项目特色与启发 佛罗里达的房子展示了如何通过材料转换与空间重组实现建筑功能的灵活转变。其精确的空间序列与光影控制为小型住宅设计提供了重要参考,体现了当代建筑对场地文脉与使用需求的深度回应。 设计团队 Pezo Von Ellrichshausen是智利知名建筑事务所,由Mauricio Pezo和Sofia von Ellrichshausen创立。事务所以严谨的几何研究、材料探索和空间实验著称,在住宅建筑领域具有重要影响力,其作品多次获得国际奖项。 本文来自 © Pezo Von Ellrichshausen, 发布于 © 建筑学院官方网站。 未经授权,禁止转载或摘编。 编辑版本版权归 © 建筑学院官方网站 所有, 设计、图纸及照片版权归设计方 © Pezo Von Ellrichshausen ↗ 所有。 查看作者在建筑学院发布的更多作品: Pezo Von Ellrichshausen @ 建筑学院官方网站 house-in-floridaPezo von Ellrichshausen智利住宅独立住宅设计现代主义 Pezo Von Ellrichshausen事务所 & 设计师 下载原图 收藏 0 关于作者 Pezo Von Ellrichshausen事务所 & 设计师 关注私信 22 文章 0 评论 0 粉丝 Pezo Von Ellrichshausen是智利知名建筑事务所,由Mauricio Pezo与Sofia von Ellrichshausen创立。其作品以强烈的雕塑感、对几何形态的探索和材料的诗意运用而闻名,涵盖住宅、艺术装置与展览设计。事务所曾多次参展威尼斯建筑双年展,是南美当代建筑的重要代表。访问官网pezo.cl,探索其深邃而独特的设计世界。 堪培拉游客中心 / Visitor Centre in Canberra | Pezo Von Ellrichshausen 上一篇 2026-03-28 下午3:17 丹佛展馆 / Pavilion in Denver | Pezo Von Ellrichshausen 下一篇 2026-03-28 下午3:17 猜你喜欢 加那达之家 / Cañada House | Taller Héctor Barroso 2026-02-17 住宅建筑设计 布鲁日会议和展览中心 / Bruges Congress and Exhibition Centre | 德·莫拉建筑事务所 2026-03-14 公共建筑设计 Casa Demont / Casa Demont | MARKLEE 建筑事务所 2025-11-14 公共建筑设计 哥特式建筑 Geschinen / Girsberger House | 吉翁·A·卡米纳达|Gion A. Caminada 2026-03-26 住宅建筑设计 堪培拉 Pavilion / Pavilion in Canberra | Pezo Von Ellrichshausen 2026-01-09 公共建筑设计 沃尔彭之家 / Walpen House | 吉翁·A·卡米纳达|Gion A. Caminada 2025-12-20 住宅建筑设计 发表回复 请登录后评论...登录后才能评论 提交