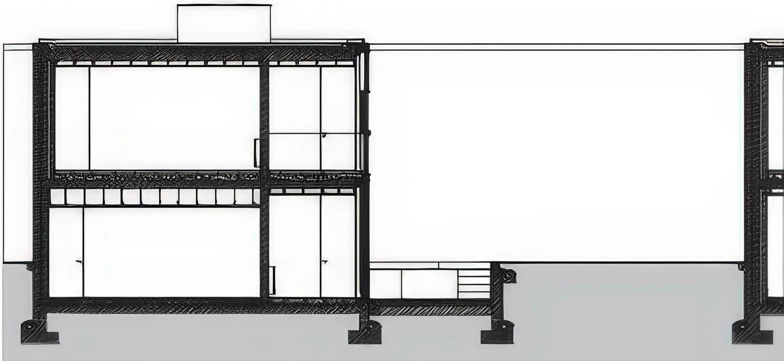
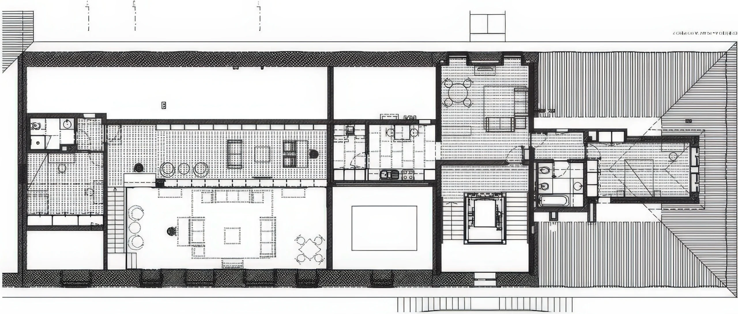
昆塔多斯塞佩达斯住宅区 / Quinta dos Cepêdas | 德·莫拉建筑事务所 德·莫拉|de Moura • 2026-03-17 上午10:04 • 住宅建筑设计, 公寓住宅设计, 建筑设计 昆塔多斯塞佩达斯住宅区位于葡萄牙波尔图安塔斯区,由德·莫拉建筑事务所设计。项目通过创新的庭院住宅群布局,取代原计划的高层建筑,保留了场地历史特征并创造了丰富的绿化空间与社区设施。 设计: 德·莫拉|de Moura 类型: 建筑设计 功能: 公寓住宅 风格: 当代建筑 材料: 混凝土 木材 玻璃 石材 尺度: 中型建筑 地点:波尔图 时间: 2021年 项目概述 昆塔多斯塞佩达斯住宅区位于葡萄牙波尔图安塔斯区,是一个集合住宅开发项目。该项目由德·莫拉建筑事务所设计,设计周期为2009年至2021年,通过创新的低层庭院住宅群取代原计划的高层建筑方案,保留了场地的历史建筑与自然特征。 设计理念 德·莫拉建筑事务所拒绝了市政当局建议的高层建筑方案,转而采用低层庭院住宅群的设计策略。这一理念旨在最大限度地保留场地原有的历史建筑、农田特征和自然景观,通过密集的绿化植被来稀释建筑体量对环境的视觉冲击。 空间与功能 项目由一系列两层高的庭院住宅组成,每个住宅单元都拥有私密的户外空间。社区内设有共享花园、游泳池、修复的洞穴和湖泊等公共设施。空间布局通过精心设计的步行道系统连接各个区域,创造了丰富的空间体验和社区互动机会。 材料与技术 项目在材料选择上注重与原有环境的协调,保留了场地的历史建筑并进行修复。大量植被被引入建筑立面,形成垂直绿化系统。土地经过全面整治后种植了数十棵树木,通过自然生长来柔化建筑体量的视觉影响。 项目特色与启发 昆塔多斯塞佩达斯住宅区展示了在城市更新项目中如何平衡开发密度与环境保护的创新思路。德·莫拉建筑事务所的设计为高密度住宅开发提供了替代高层建筑的可行方案,对当代城市住宅设计具有重要的参考价值。 设计团队 德·莫拉建筑事务所是葡萄牙知名建筑设计机构,以其对场地文脉的深刻理解和创新的空间解决方案而闻名。事务所在住宅设计领域有着丰富的经验,擅长通过精心的空间组织和材料运用创造具有独特场所感的建筑环境。 项目概述 昆塔多斯塞佩达斯住宅区位于葡萄牙波尔图安塔斯区,是一个集合住宅开发项目。该项目由德·莫拉建筑事务所设计,设计周期为2009年至2021年,通过创新的低层庭院住宅群取代原计划的高层建筑方案,保留了场地的历史建筑与自然特征。 设计理念 德·莫拉建筑事务所拒绝了市政当局建议的高层建筑方案,转而采用低层庭院住宅群的设计策略。这一理念旨在最大限度地保留场地原有的历史建筑、农田特征和自然景观,通过密集的绿化植被来稀释建筑体量对环境的视觉冲击。 空间与功能 项目由一系列两层高的庭院住宅组成,每个住宅单元都拥有私密的户外空间。社区内设有共享花园、游泳池、修复的洞穴和湖泊等公共设施。空间布局通过精心设计的步行道系统连接各个区域,创造了丰富的空间体验和社区互动机会。 材料与技术 项目在材料选择上注重与原有环境的协调,保留了场地的历史建筑并进行修复。大量植被被引入建筑立面,形成垂直绿化系统。土地经过全面整治后种植了数十棵树木,通过自然生长来柔化建筑体量的视觉影响。 项目特色与启发 昆塔多斯塞佩达斯住宅区展示了在城市更新项目中如何平衡开发密度与环境保护的创新思路。德·莫拉建筑事务所的设计为高密度住宅开发提供了替代高层建筑的可行方案,对当代城市住宅设计具有重要的参考价值。 设计团队 德·莫拉建筑事务所是葡萄牙知名建筑设计机构,以其对场地文脉的深刻理解和创新的空间解决方案而闻名。事务所在住宅设计领域有着丰富的经验,擅长通过精心的空间组织和材料运用创造具有独特场所感的建筑环境。 本文来自 © 德·莫拉|de Moura, 发布于 © 建筑学院官方网站。 未经授权,禁止转载或摘编。 编辑版本版权归 © 建筑学院官方网站 所有, 设计、图纸及照片版权归设计方 © 德·莫拉|de Moura ↗ 所有。 查看作者在建筑学院发布的更多作品: 德·莫拉|de Moura @ 建筑学院官方网站 Quinta dos Cepêdas住宅区设计庭院住宅德·莫拉建筑事务所波尔图住宅 德·莫拉|de Moura事务所 & 设计师 下载原图 收藏 0 关于作者 德·莫拉|de Moura事务所 & 设计师 关注私信 14 文章 0 评论 1 粉丝 德·莫拉(de Moura),即爱德华多·索托·德·莫拉(Eduardo Souto de Moura),2011年普利兹克奖得主,葡萄牙著名建筑师。其作品以极简主义与材质质感著称,擅长将建筑与自然景观深度融合,代表作包括布拉加市政球场、保拉·雷戈博物馆等。 克罗地亚兹戈尔单体住宅 / Single Family House in Zagreb | 德·莫拉|de Moura 上一篇 2026-03-17 上午9:39 乔治城大厦 / Georgetown Building | 德·莫拉建筑事务所 下一篇 2026-03-18 上午9:19 猜你喜欢 阿布达佩德皮多拉斯市政博物馆 / Abade Pedrosa Municipal Museum [MMAP] | 德·莫拉建筑事务所 2026-03-19 公共建筑设计 阿尔坎波塞修道院修复 / Alcobaça Monastery Renovation | 德·莫拉建筑事务所 2025-12-20 公共建筑设计 若昂二十一世纪大道公寓楼 / Avenida João XXI Apartment Building | 德·莫拉建筑事务所 2026-03-14 住宅建筑设计 阿尔坎波塞修道院修复 / Alcobaça Monastery Renovation | 德·莫拉建筑事务所 2026-03-19 公共建筑设计 圣达霍拉的房子 House in Sra. da Hora | 德莫拉建筑事务所|De Mora 2025-11-24 公共建筑设计 知识之屋维拉维德 / Vila Verde House of Knowledge | 德·莫拉建筑事务所 2026-03-18 公共建筑设计 发表回复 请登录后评论...登录后才能评论 提交