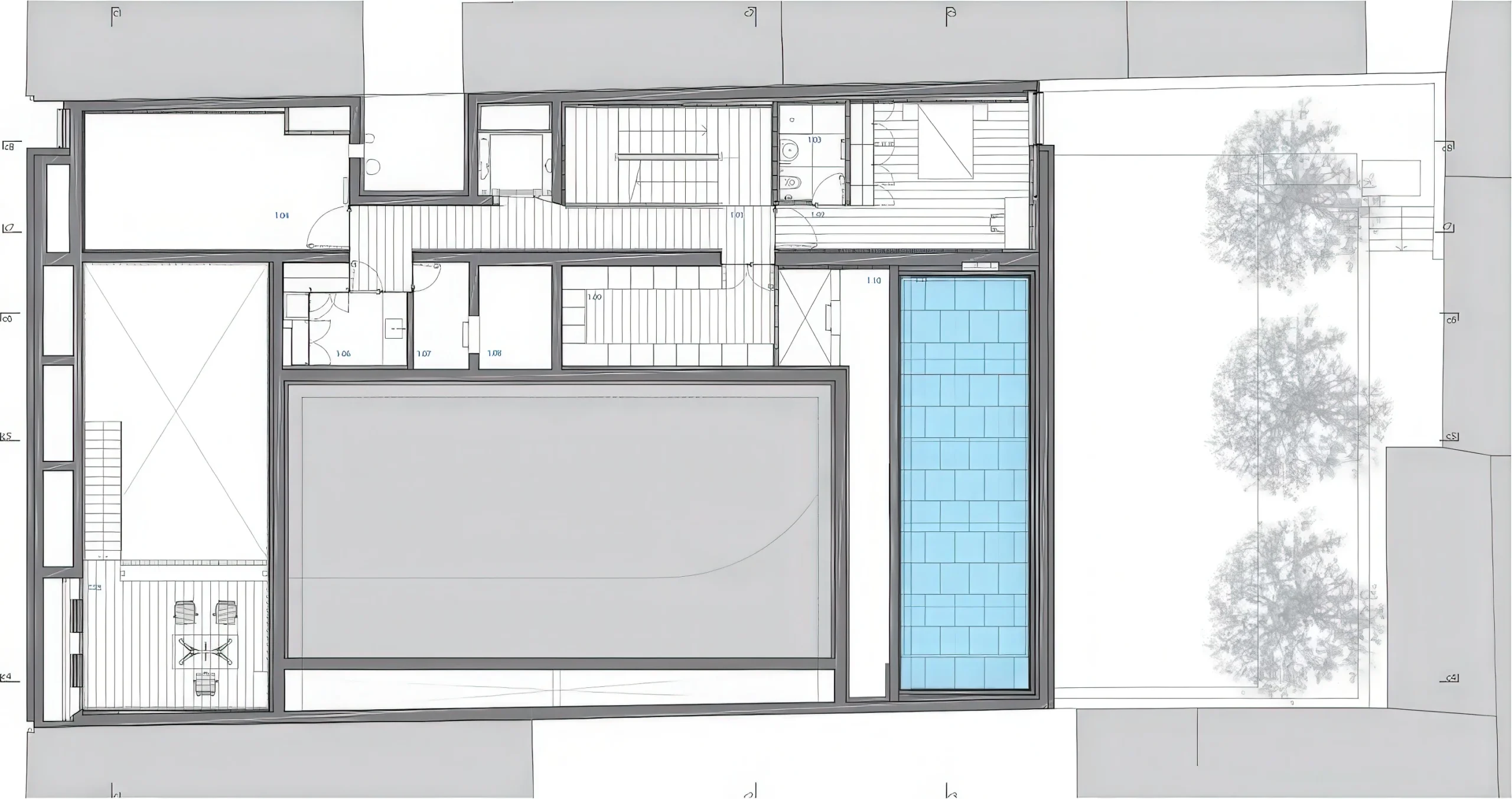
克罗地亚兹戈尔单体住宅 / Single Family House in Zagreb | 德·莫拉|de Moura 德·莫拉|de Moura • 2026-03-17 上午9:39 • 住宅建筑设计, 建筑设计, 独立住宅设计 克罗地亚兹戈尔单体住宅由葡萄牙建筑师德·莫拉与3LHD合作设计,位于克罗地亚首都萨格勒布市中心。这座独立住宅通过三个体量形成U形布局,巧妙填补城市肌理空隙,以现代建筑语言回应历史街区环境,创造私密与开放并存的生活空间。 设计: 德·莫拉|de Moura 类型: 独立住宅设计 功能: 独立住宅 风格: 当代建筑 材料: 混凝土 钢材 木材 玻璃 石材 尺度: 小型建筑 地点:萨格勒布 时间: 1970年 项目概述 克罗地亚兹戈尔单体住宅位于克罗地亚首都萨格勒布市中心,是一座四层独立住宅建筑。项目由葡萄牙建筑师德·莫拉与当地事务所3LHD合作设计,设计始于2014年,于2021年建成。建筑巧妙填补了城市历史街区的空隙,通过三个体量形成U形布局,创造了两处室外庭院空间。 设计理念 德·莫拉的设计理念旨在恰当填补萨格勒布市中心已形成的城市肌理中的空隙。建筑尊重沿街历史体量结构,前立面几乎封闭,通过尺度和材质与邻近的新古典主义建筑融合。在左侧设置小型开口,强调与相邻建筑的分隔线,体现了对城市文脉的敏感回应。 空间与功能 住宅分布在四个楼层,设有三个独立入口。底层和一层集中了入口、技术区域和服务用房,二层围绕花园布置所有社交区域,包括游泳池和水疗区。三层卧室区域呈线性体量,东西向贯穿场地,设有植被露台。两个花园庭院分别服务于私密区域和车辆入口,创造了层次丰富的空间体验。 材料与技术 建筑采用混合结构体系:前三层为混凝土结构,顶层为轻型钢框架。东西立面采用手工锤击饰面的清水混凝土,其余立面使用钢框架、铝板和带铝制遮阳板的金属细木工。室内地面结合非洲阿夫泽利亚木材和白色阿连特茹大理石,体现了材料选择的精致与地域特色。 项目特色与启发 克罗地亚兹戈尔单体住宅展示了如何在历史城市环境中植入当代建筑语言。德·莫拉通过精准的体量操作和材料选择,创造了既尊重文脉又具现代性的居住空间。项目为城市更新中的住宅设计提供了重要参考,体现了建筑与城市对话的可能性。 设计团队 德·莫拉是葡萄牙著名建筑师,2011年普利兹克奖得主,以极简主义设计和材料运用的精准性著称。其作品注重场地文脉、光线和空间体验,在国际建筑界享有盛誉。在本项目中,德·莫拉与克罗地亚本土事务所3LHD合作,共同完成了这一城市住宅作品。 项目概述 克罗地亚兹戈尔单体住宅位于克罗地亚首都萨格勒布市中心,是一座四层独立住宅建筑。项目由葡萄牙建筑师德·莫拉与当地事务所3LHD合作设计,设计始于2014年,于2021年建成。建筑巧妙填补了城市历史街区的空隙,通过三个体量形成U形布局,创造了两处室外庭院空间。 设计理念 德·莫拉的设计理念旨在恰当填补萨格勒布市中心已形成的城市肌理中的空隙。建筑尊重沿街历史体量结构,前立面几乎封闭,通过尺度和材质与邻近的新古典主义建筑融合。在左侧设置小型开口,强调与相邻建筑的分隔线,体现了对城市文脉的敏感回应。 空间与功能 住宅分布在四个楼层,设有三个独立入口。底层和一层集中了入口、技术区域和服务用房,二层围绕花园布置所有社交区域,包括游泳池和水疗区。三层卧室区域呈线性体量,东西向贯穿场地,设有植被露台。两个花园庭院分别服务于私密区域和车辆入口,创造了层次丰富的空间体验。 材料与技术 建筑采用混合结构体系:前三层为混凝土结构,顶层为轻型钢框架。东西立面采用手工锤击饰面的清水混凝土,其余立面使用钢框架、铝板和带铝制遮阳板的金属细木工。室内地面结合非洲阿夫泽利亚木材和白色阿连特茹大理石,体现了材料选择的精致与地域特色。 项目特色与启发 克罗地亚兹戈尔单体住宅展示了如何在历史城市环境中植入当代建筑语言。德·莫拉通过精准的体量操作和材料选择,创造了既尊重文脉又具现代性的居住空间。项目为城市更新中的住宅设计提供了重要参考,体现了建筑与城市对话的可能性。 设计团队 德·莫拉是葡萄牙著名建筑师,2011年普利兹克奖得主,以极简主义设计和材料运用的精准性著称。其作品注重场地文脉、光线和空间体验,在国际建筑界享有盛誉。在本项目中,德·莫拉与克罗地亚本土事务所3LHD合作,共同完成了这一城市住宅作品。 本文来自 © 德·莫拉|de Moura, 发布于 © 建筑学院官方网站。 未经授权,禁止转载或摘编。 编辑版本版权归 © 建筑学院官方网站 所有, 设计、图纸及照片版权归设计方 © 德·莫拉|de Moura ↗ 所有。 查看作者在建筑学院发布的更多作品: 德·莫拉|de Moura @ 建筑学院官方网站 Single Family House in Zagreb城市更新住宅德·莫拉独立住宅设计萨格勒布住宅 德·莫拉|de Moura事务所 & 设计师 下载原图 收藏 0 关于作者 德·莫拉|de Moura事务所 & 设计师 关注私信 14 文章 0 评论 1 粉丝 德·莫拉(de Moura),即爱德华多·索托·德·莫拉(Eduardo Souto de Moura),2011年普利兹克奖得主,葡萄牙著名建筑师。其作品以极简主义与材质质感著称,擅长将建筑与自然景观深度融合,代表作包括布拉加市政球场、保拉·雷戈博物馆等。 中国设计博物馆贝乌斯收藏 / China Design Museum. Bauhaus Collection | 阿尔瓦罗·西扎|Álvaro Siza 上一篇 2026-03-16 下午12:19 昆塔多斯塞佩达斯住宅区 / Quinta dos Cepêdas | 德·莫拉建筑事务所 下一篇 2026-03-17 上午10:04 猜你喜欢 克拉多伊村屋 House in Campolide | 艾雷斯·马特乌斯建筑事务所|Aires Mateus 2025-10-30 公共建筑设计 上海石库沟住宅 / Shochikucho House | SANAA 2026-02-23 住宅建筑设计 荷兰私人住宅,霍伊莱特 / Private house, Hoeilaart | Xaveer de Geyter 2026-02-26 住宅建筑设计 Lapidus工作室 / Atelier Lapidus | Arrhov Frick 2026-01-21 住宅建筑设计 伊克塔帕半岛上的房子 House in Punta Ixtapa | 曼努埃尔·塞万提斯|Manuel Cervantes 2025-12-10 公共建筑设计 马德雷德萨里亚街上的房子 / House on Major de Sarrià Street | HArquitectes 2026-01-03 住宅建筑设计 发表回复 请登录后评论...登录后才能评论 提交