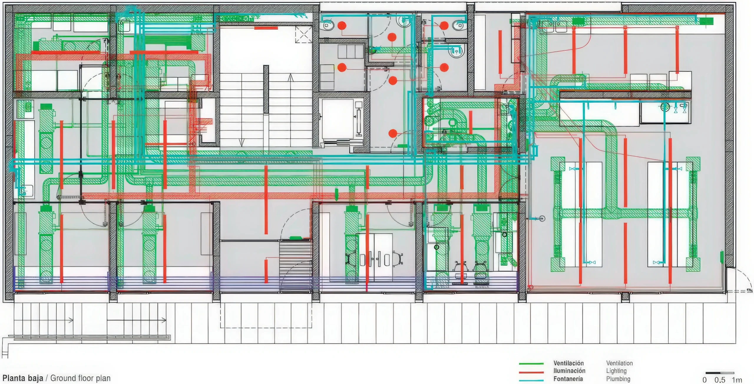
阿瓜斯多港口实验室 / Águas do Porto Laboratory | 德·莫拉建筑事务所 德·莫拉|de Moura • 2026-03-19 下午2:10 • 工业建筑, 特殊建筑 阿瓜斯多港口实验室由德·莫拉建筑事务所设计,位于葡萄牙波尔图市,是一座专门用于水质检测与分析的科研建筑。项目通过拆除原有不规则空间,重建为直角布局的实验室空间,实现了功能性与经济性的平衡。 设计: 德·莫拉|de Moura 类型: 特殊建筑 功能: 研究中心 风格: 现代主义 材料: 木材 玻璃 尺度: 小型建筑 地点:波尔图 时间: 1970年 项目概述 阿瓜斯多港口实验室位于葡萄牙波尔图市,是一座专门用于水质检测与分析的科研建筑。项目于2017年开始设计,2021年建成,通过拆除原有不规则空间,重建为功能完善的实验室设施。 设计理念 设计团队基于实验室功能需求,决定拆除原有不规则角度的建筑,重新构建直角空间布局。这一决策虽然增加了初期成本,但最终实现了整体预算的节约,同时确保了实验室设备的标准化布置与高效运行。 空间与功能 建筑采用严谨的空间组织,上层设置专业实验室区域,配备标准化实验台和设备布局。所有技术设备均设计为可见式安装,便于维护管理,同时要求精确的安装工艺,确保实验室功能的高效实现。 材料与技术 建筑外部采用木制门窗,内部隔断使用铝材和玻璃,营造出简约而实用的工作环境。所有设备管线均采用明装设计,简化了维护流程,但要求更高的安装精度,体现了功能优先的设计原则。 项目特色与启发 阿瓜斯多港口实验室展现了如何在有限预算内实现专业实验室功能的最优化,其严谨的空间规划和设备布局为类似科研建筑提供了重要参考,体现了功能需求驱动设计的核心理念。 设计团队 德·莫拉建筑事务所是葡萄牙知名建筑设计机构,以严谨的功能主义和简约美学著称。事务所在实验室建筑领域具有丰富经验,擅长将复杂功能需求转化为清晰的空间解决方案。 项目概述 阿瓜斯多港口实验室位于葡萄牙波尔图市,是一座专门用于水质检测与分析的科研建筑。项目于2017年开始设计,2021年建成,通过拆除原有不规则空间,重建为功能完善的实验室设施。 设计理念 设计团队基于实验室功能需求,决定拆除原有不规则角度的建筑,重新构建直角空间布局。这一决策虽然增加了初期成本,但最终实现了整体预算的节约,同时确保了实验室设备的标准化布置与高效运行。 空间与功能 建筑采用严谨的空间组织,上层设置专业实验室区域,配备标准化实验台和设备布局。所有技术设备均设计为可见式安装,便于维护管理,同时要求精确的安装工艺,确保实验室功能的高效实现。 材料与技术 建筑外部采用木制门窗,内部隔断使用铝材和玻璃,营造出简约而实用的工作环境。所有设备管线均采用明装设计,简化了维护流程,但要求更高的安装精度,体现了功能优先的设计原则。 项目特色与启发 阿瓜斯多港口实验室展现了如何在有限预算内实现专业实验室功能的最优化,其严谨的空间规划和设备布局为类似科研建筑提供了重要参考,体现了功能需求驱动设计的核心理念。 设计团队 德·莫拉建筑事务所是葡萄牙知名建筑设计机构,以严谨的功能主义和简约美学著称。事务所在实验室建筑领域具有丰富经验,擅长将复杂功能需求转化为清晰的空间解决方案。 本文来自 © 德·莫拉|de Moura, 发布于 © 建筑学院官方网站。 未经授权,禁止转载或摘编。 编辑版本版权归 © 建筑学院官方网站 所有, 设计、图纸及照片版权归设计方 © 德·莫拉|de Moura ↗ 所有。 查看作者在建筑学院发布的更多作品: 德·莫拉|de Moura @ 建筑学院官方网站 aguas-do-porto-laboratory功能主义建筑实验室建筑设计德·莫拉建筑事务所波尔图实验室 德·莫拉|de Moura事务所 & 设计师 下载原图 收藏 0 关于作者 德·莫拉|de Moura事务所 & 设计师 关注私信 14 文章 0 评论 1 粉丝 德·莫拉(de Moura),即爱德华多·索托·德·莫拉(Eduardo Souto de Moura),2011年普利兹克奖得主,葡萄牙著名建筑师。其作品以极简主义与材质质感著称,擅长将建筑与自然景观深度融合,代表作包括布拉加市政球场、保拉·雷戈博物馆等。 地形作屋 / Topography as House | 安妮·霍尔特罗普|Anne Holtrop 上一篇 2026-03-10 下午1:07 科琳斯多杜罗葡萄酒庄园 / Colinas do Douro Winery | 德·莫拉建筑事务所 下一篇 2026-03-20 上午9:24 猜你喜欢 若昂二十一世纪大道公寓楼 / Avenida João XXI Apartment Building | 德·莫拉建筑事务所 2026-03-14 住宅建筑设计 阿布达佩德皮多拉斯市政博物馆 / Abade Pedrosa Municipal Museum [MMAP] | 德·莫拉建筑事务所 2026-03-19 公共建筑设计 圣卢西亚路公寓 / Apartments on Rua da Senhora da Luz | 德·莫拉建筑事务所 2026-03-20 住宅建筑设计 圣路伦诺孔波拉克旅游综合体 / São Lourenço do Barrocal Tourist Complex | 德·莫拉建筑事务所 2026-03-18 商业空间设计 梵蒂冈小教堂 / Vatican Chapel for the Venice Biennale | 德·莫拉建筑事务所 2026-03-14 公共建筑设计 阿瓜斯多港口实验室 / Águas do Porto Laboratory | 德·莫拉建筑事务所 2025-12-28 工业建筑 发表回复 请登录后评论...登录后才能评论 提交