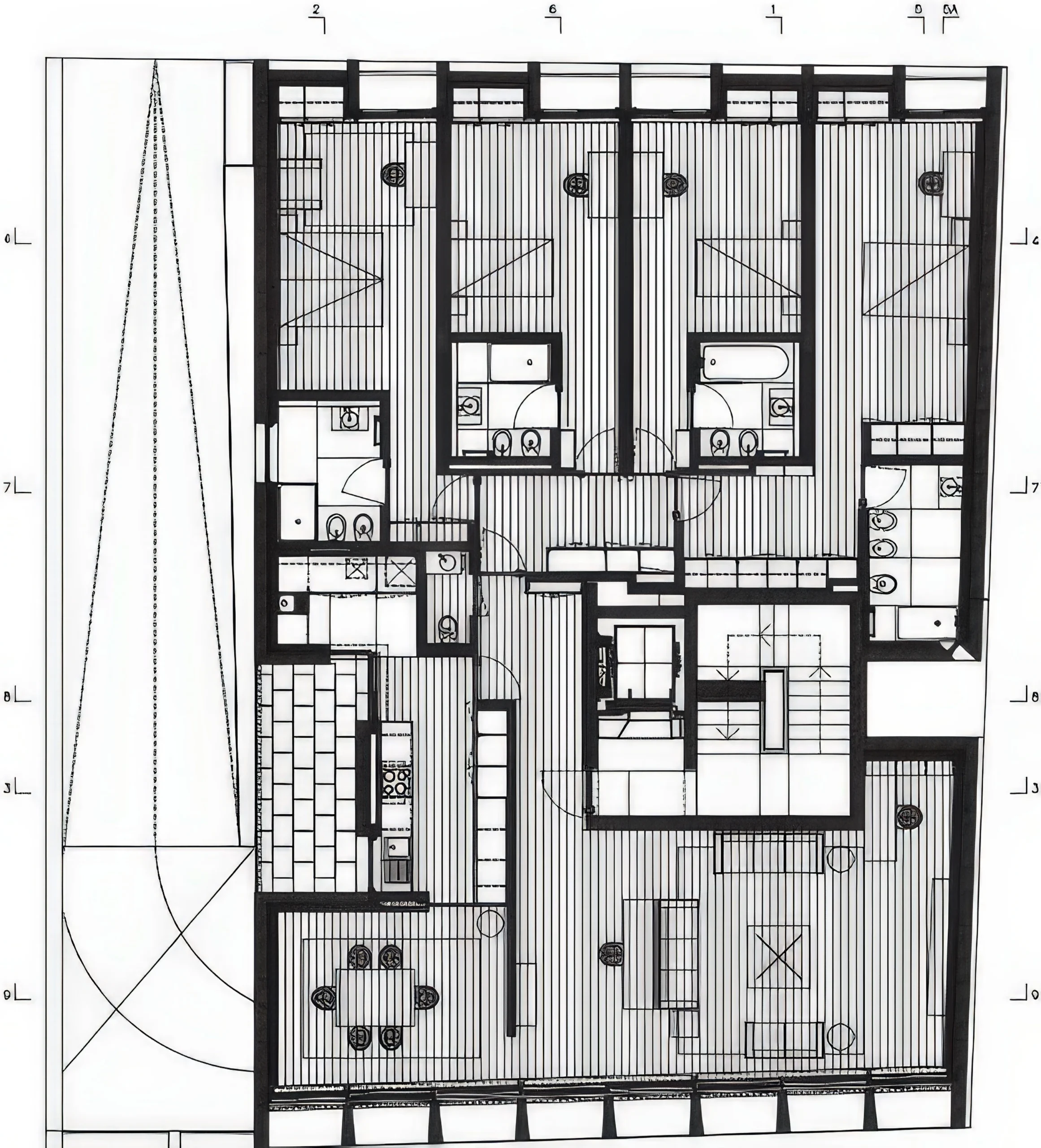
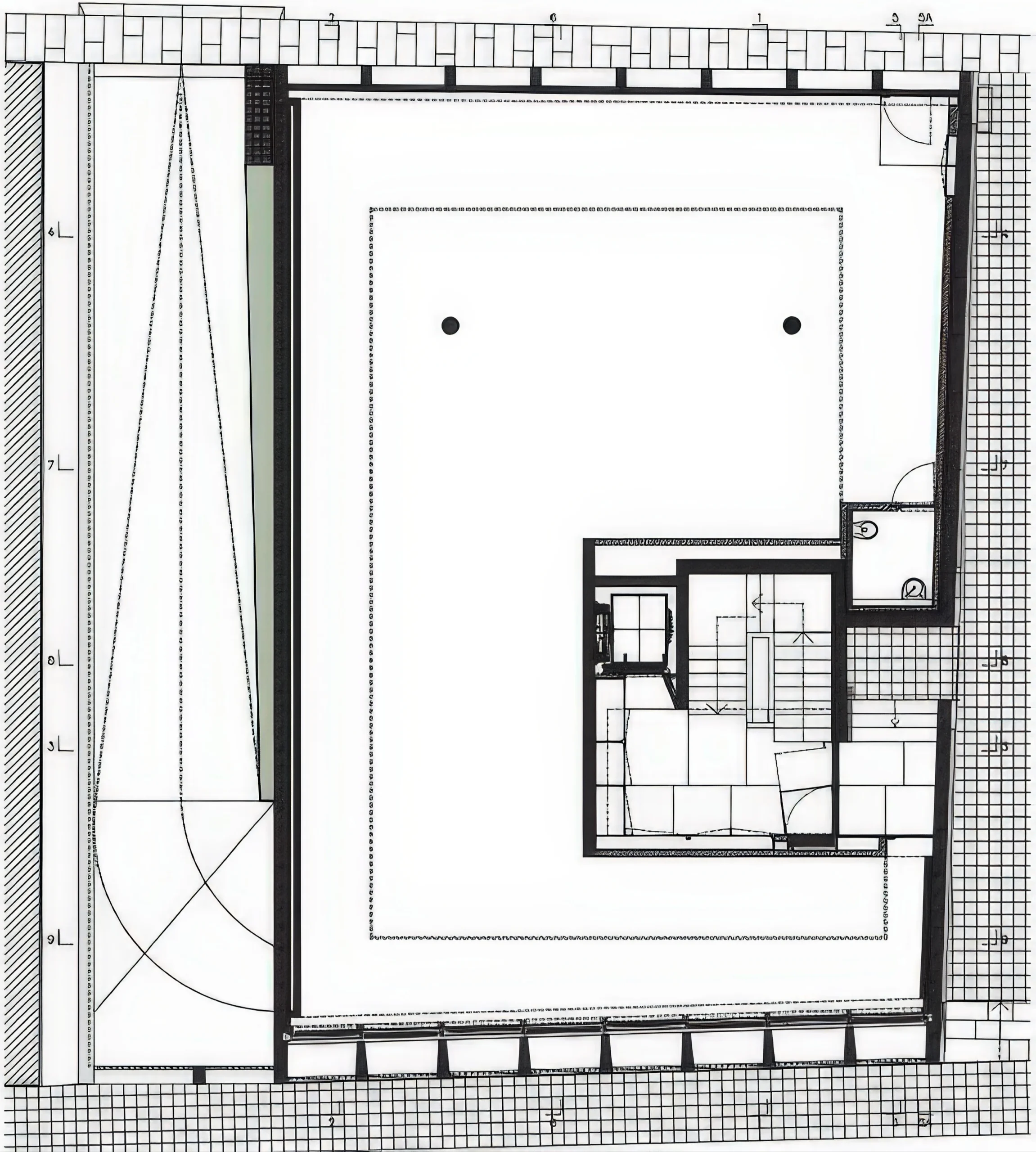
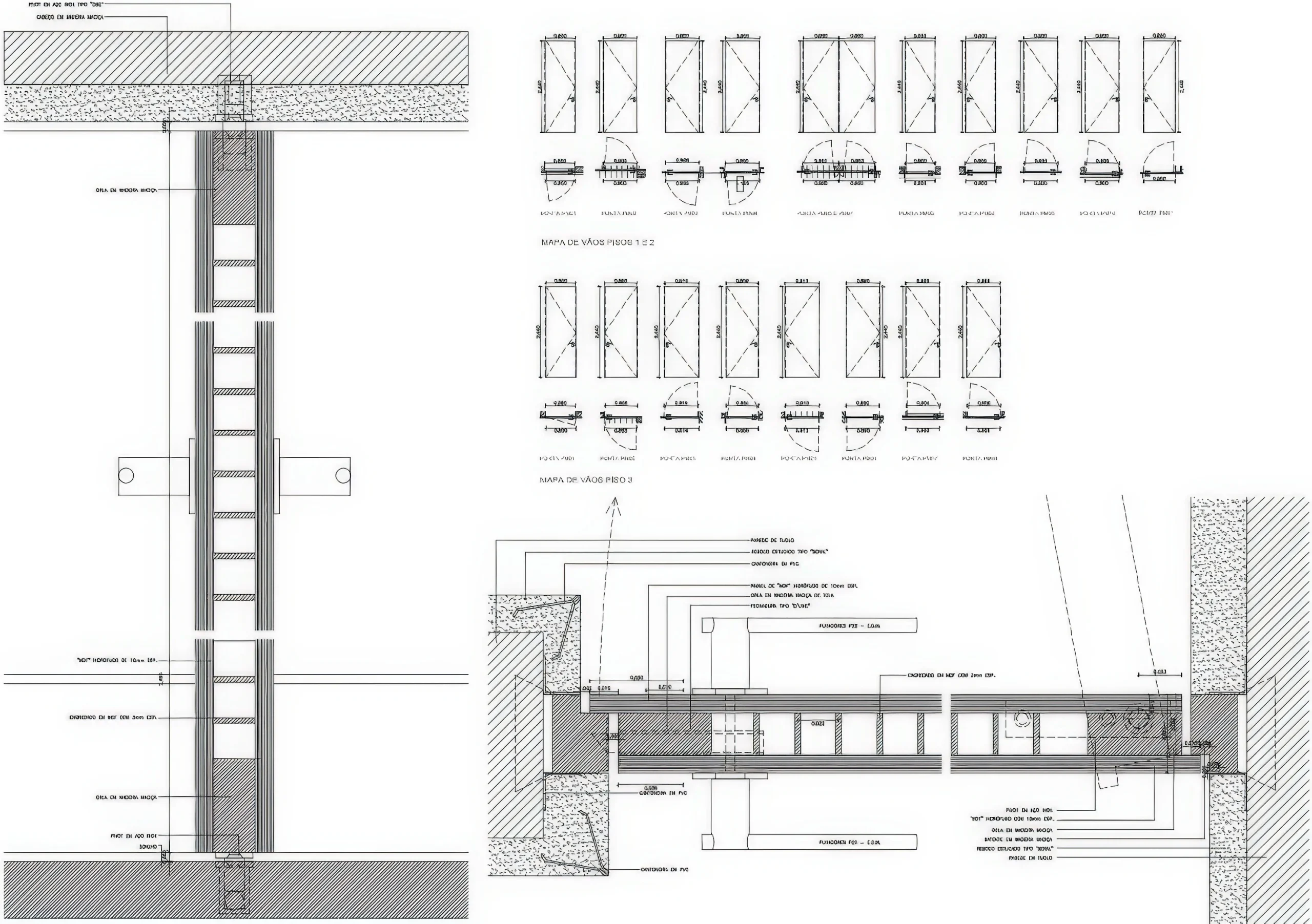
圣卢西亚路公寓 / Apartments on Rua da Senhora da Luz | 德·莫拉建筑事务所 德莫拉建筑事务所|De Mora • 2025-12-26 下午7:44 • 住宅建筑设计, 公寓住宅设计, 建筑设计, 独立住宅设计 圣卢西亚路公寓由葡萄牙德·莫拉建筑事务所设计,位于波尔图福兹杜罗历史区。这座住宅建筑通过”挖掘”体量策略回应城市规范,西侧客厅面向大海,东侧卧室朝向街道,展现了现代建筑与历史环境的和谐对话。 设计: 贝尔纳多·巴德尔|Bernardo Bader 类型: 独立住宅设计 功能: 公寓住宅 风格: 现代主义 材料: 混凝土 钢材 玻璃 尺度: 中型建筑 地点:波尔图 时间: 2017年 项目概述 圣卢西亚路公寓项目位于葡萄牙波尔图福兹杜罗历史保护区,总建筑面积1452平方米,包含五层空间:地下车库、底层商业空间及三层住宅公寓。该项目设计始于2009年,于2017年完工,体现了德·莫拉建筑事务所在城市历史环境中的设计智慧。 设计理念 德·莫拉建筑事务所以”体量挖掘”为核心设计策略,通过削减和退让建筑体量来满足城市规范要求,同时尊重福兹杜罗历史区的场所特征。设计将城市限制转化为创作优势,通过反复推敲策略,实现了建筑与环境的深度对话。 空间与功能 圣卢西亚路公寓的空间组织基于明确的方位逻辑:西侧设置客厅等社交空间,充分利用海景资源;东侧布置卧室等私密区域,面向后街。建筑顶层设有50平方米的公共社交露台,三个住宅单元面积约250平方米,分别配置三至四间卧室。 材料与技术 建筑西立面采用清水混凝土网格体系,展现抽象构造原则;北立面和南立面使用OSB模板浇筑的混凝土墙面,赋予表面独特的质感韵律;东立面混凝土网格重新诠释了波尔图市中心石砌建筑的构图秩序,通过储藏体积的巧妙布置增加立面厚度和阳台深度。 项目特色与启发 圣卢西亚路公寓展示了如何在严格的城市规范下创造高品质住宅空间,其”规范驱动设计”的方法为历史城区更新提供了重要参考。德·莫拉建筑事务所在该项目中展现的设计转化能力,对当代城市建筑设计具有重要启发意义。 设计团队 德·莫拉建筑事务所是葡萄牙知名建筑设计机构,以严谨的构造逻辑和对场所文脉的深刻理解著称。事务所在住宅建筑、文化设施等领域拥有丰富经验,圣卢西亚路公寓项目体现了其在城市历史环境中平衡规范要求与设计创新的专业能力。 项目概述 圣卢西亚路公寓项目位于葡萄牙波尔图福兹杜罗历史保护区,总建筑面积1452平方米,包含五层空间:地下车库、底层商业空间及三层住宅公寓。该项目设计始于2009年,于2017年完工,体现了德·莫拉建筑事务所在城市历史环境中的设计智慧。 设计理念 德·莫拉建筑事务所以”体量挖掘”为核心设计策略,通过削减和退让建筑体量来满足城市规范要求,同时尊重福兹杜罗历史区的场所特征。设计将城市限制转化为创作优势,通过反复推敲策略,实现了建筑与环境的深度对话。 空间与功能 圣卢西亚路公寓的空间组织基于明确的方位逻辑:西侧设置客厅等社交空间,充分利用海景资源;东侧布置卧室等私密区域,面向后街。建筑顶层设有50平方米的公共社交露台,三个住宅单元面积约250平方米,分别配置三至四间卧室。 材料与技术 建筑西立面采用清水混凝土网格体系,展现抽象构造原则;北立面和南立面使用OSB模板浇筑的混凝土墙面,赋予表面独特的质感韵律;东立面混凝土网格重新诠释了波尔图市中心石砌建筑的构图秩序,通过储藏体积的巧妙布置增加立面厚度和阳台深度。 项目特色与启发 圣卢西亚路公寓展示了如何在严格的城市规范下创造高品质住宅空间,其”规范驱动设计”的方法为历史城区更新提供了重要参考。德·莫拉建筑事务所在该项目中展现的设计转化能力,对当代城市建筑设计具有重要启发意义。 设计团队 德·莫拉建筑事务所是葡萄牙知名建筑设计机构,以严谨的构造逻辑和对场所文脉的深刻理解著称。事务所在住宅建筑、文化设施等领域拥有丰富经验,圣卢西亚路公寓项目体现了其在城市历史环境中平衡规范要求与设计创新的专业能力。 本文来自 © 德莫拉建筑事务所|De Mora, 发布于 © 建筑学院官方网站。 未经授权,禁止转载或摘编。 编辑版本版权归 © 建筑学院官方网站 所有, 设计、图纸及照片版权归设计方 © 德莫拉建筑事务所|De Mora ↗ 所有。 查看作者在建筑学院发布的更多作品: 德莫拉建筑事务所|De Mora @ 建筑学院官方网站 Apartments on Rua da Senhora da Luz住宅建筑设计德·莫拉建筑事务所波尔图住宅 德莫拉建筑事务所|De Mora事务所 & 设计师 下载原图 收藏 0 关于作者 德莫拉建筑事务所|De Mora事务所 & 设计师 关注私信 17 文章 0 评论 0 粉丝 德莫拉建筑事务所是普利兹克奖得主阿尔瓦罗·西扎的事务所,代表葡萄牙现代建筑的巅峰。其作品以极简的几何形态、对光与场所的敏锐感知著称,擅长运用白色墙体与当地材料。从塞拉尔维斯博物馆到住宅改造,西扎的事务所展现了建筑与自然、历史文脉的深刻对话,是全球建筑师与学子研究的典范。 Art Collection Siedle / COLECCION DE ARTE SIEDLE | 布兰德胡伯建筑事务所|Brandlhuber 上一篇 2025-12-25 上午11:45 健康疗养在哈巴纳 / Wellness Retreat in Habarana | 帕琳达·坎南加拉|Palinda Kannangara 下一篇 2025-12-26 下午8:39 猜你喜欢 布鲁日会议和展览中心 / Bruges Congress and Exhibition Centre | 德·莫拉建筑事务所 2026-03-14 公共建筑设计 布鲁斯特波特住宅区 / Brunstorp Residential Complex | Arrhov Frick 2026-01-04 公寓住宅设计 阿尔坎波塞修道院修复 / Alcobaça Monastery Renovation | 德·莫拉建筑事务所 2025-12-15 公共建筑设计 阿瓜斯多港口实验室 / Águas do Porto Laboratory | 德·莫拉建筑事务所 2026-03-19 工业建筑 阿布达佩德皮多拉斯市政博物馆 / Abade Pedrosa Municipal Museum [MMAP] | 德·莫拉建筑事务所 2026-03-19 公共建筑设计 知识之屋维拉维德 / Vila Verde House of Knowledge | 德·莫拉建筑事务所 2026-03-18 公共建筑设计 发表回复 请登录后评论...登录后才能评论 提交