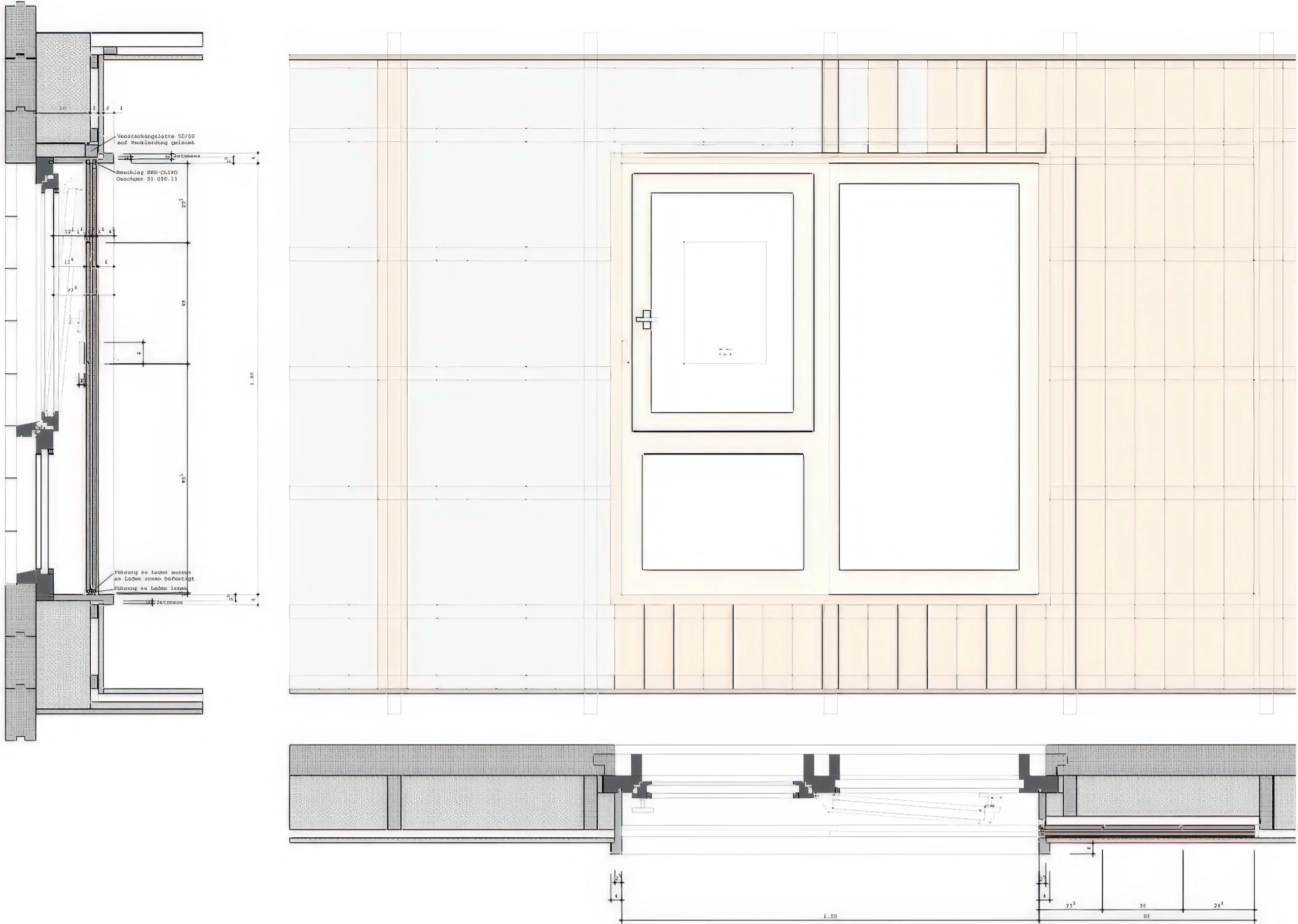
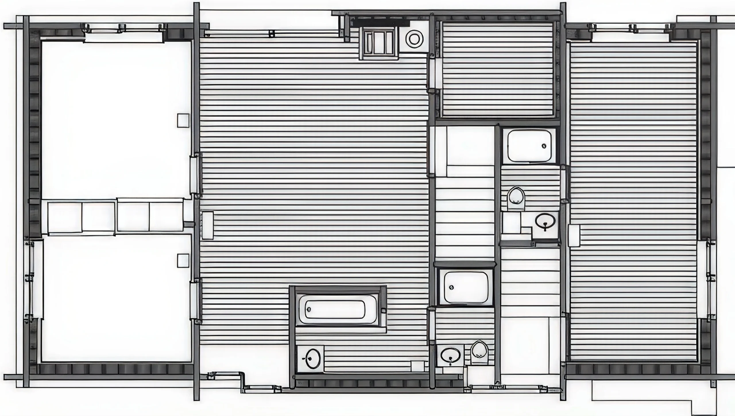
沃尔彭之家 / Walpen House | 吉翁·A·卡米纳达|Gion A. Caminada 吉翁·A·卡米纳达|Gion A Caminada • 2026-03-25 上午11:24 • 住宅建筑设计, 建筑设计, 独立住宅设计 沃尔彭之家由吉翁·A·卡米纳达设计,位于瑞士布拉滕贝纳特斯,是一座独立住宅建筑。该项目巧妙结合当地传统建造技术与现代木构工艺,通过岩石锚固结构与多层次空间组织,创造出雕塑般的居住体验。 设计: 吉翁·A·卡米纳达|Gion A Caminada 类型: 独立住宅设计 功能: 独立住宅 风格: 地域主义 材料: 木材 尺度: 小型建筑 地点:布拉滕贝纳特斯 时间: 2002年 项目概述 沃尔彭之家位于瑞士布拉滕贝纳特斯,是一座独立住宅建筑,设计于2000年,2002年建成。项目依山而建,充分利用岩石地形,建筑面积约300平方米,体现了传统建造智慧与现代设计的完美融合。 设计理念 吉翁·A·卡米纳达的设计理念源于对当地建造传统的深刻理解与创新应用。沃尔彭之家并非简单模仿历史形式,而是继承传统技术适应地形的智慧,通过现代木构工艺重新诠释地域建筑语言,实现建筑与自然的和谐共生。 空间与功能 沃尔彭之家的空间组织以厨房为核心,楼梯从下层入口区通向中央厨房区域。建筑”捕捉”岩石下方的室外空间作为储藏区,服务于住宅和周边环境。卧室区域采用简约设计,与中央空间的丰富木构形成鲜明对比,营造出精致的生活氛围。 材料与技术 项目主要采用实木构造技术,充分发挥木材的造型潜力。建筑突出部分由石砌墙体支撑,结构与饰面的关系得到感性强调。木板的直接材质感贯穿主要空间,转角、边缘、悬挑和台阶等细节都展现出木构造的艺术表现力。 项目特色与启发 沃尔彭之家展示了传统建造技术在当代建筑设计中的持续有效性,为建筑师提供了将地域智慧与现代工艺结合的典范。项目对木构造潜力的极致探索,为住宅设计中的材料表达与空间塑造提供了重要参考。 设计团队 吉翁·A·卡米纳达是瑞士著名建筑师,以其对传统建造技术的深入研究与现代转化而闻名。他的作品常常探索木材构造的可能性,在尊重地域文脉的同时展现当代建筑语言的创新性。 项目概述 沃尔彭之家位于瑞士布拉滕贝纳特斯,是一座独立住宅建筑,设计于2000年,2002年建成。项目依山而建,充分利用岩石地形,建筑面积约300平方米,体现了传统建造智慧与现代设计的完美融合。 设计理念 吉翁·A·卡米纳达的设计理念源于对当地建造传统的深刻理解与创新应用。沃尔彭之家并非简单模仿历史形式,而是继承传统技术适应地形的智慧,通过现代木构工艺重新诠释地域建筑语言,实现建筑与自然的和谐共生。 空间与功能 沃尔彭之家的空间组织以厨房为核心,楼梯从下层入口区通向中央厨房区域。建筑”捕捉”岩石下方的室外空间作为储藏区,服务于住宅和周边环境。卧室区域采用简约设计,与中央空间的丰富木构形成鲜明对比,营造出精致的生活氛围。 材料与技术 项目主要采用实木构造技术,充分发挥木材的造型潜力。建筑突出部分由石砌墙体支撑,结构与饰面的关系得到感性强调。木板的直接材质感贯穿主要空间,转角、边缘、悬挑和台阶等细节都展现出木构造的艺术表现力。 项目特色与启发 沃尔彭之家展示了传统建造技术在当代建筑设计中的持续有效性,为建筑师提供了将地域智慧与现代工艺结合的典范。项目对木构造潜力的极致探索,为住宅设计中的材料表达与空间塑造提供了重要参考。 设计团队 吉翁·A·卡米纳达是瑞士著名建筑师,以其对传统建造技术的深入研究与现代转化而闻名。他的作品常常探索木材构造的可能性,在尊重地域文脉的同时展现当代建筑语言的创新性。 本文来自 © 吉翁·A·卡米纳达|Gion A Caminada, 发布于 © 建筑学院官方网站。 未经授权,禁止转载或摘编。 编辑版本版权归 © 建筑学院官方网站 所有, 设计、图纸及照片版权归设计方 © 吉翁·A·卡米纳达|Gion A Caminada ↗ 所有。 查看作者在建筑学院发布的更多作品: 吉翁·A·卡米纳达|Gion A Caminada @ 建筑学院官方网站 walpen-house吉翁·A·卡米纳达木构造建筑独立住宅设计瑞士住宅建筑 吉翁·A·卡米纳达|Gion A Caminada事务所 & 设计师 下载原图 收藏 0 关于作者 吉翁·A·卡米纳达|Gion A Caminada事务所 & 设计师 关注私信 22 文章 0 评论 0 粉丝 瑞士建筑师吉翁·A·卡米纳达(Gion A. Caminada)以其对传统木结构的现代诠释与乡村建筑复兴而闻名。他的官方网站 theaficionados.com 系统展示其代表作、设计哲学及对乡土文化的深刻思考。访问该站可深入了解其如何将地方传统转化为当代可持续的建筑语言。 VRIN 多功能厅 / Vrin Multi-purpose Hall | 吉翁·A·卡米纳达|Gion A. Caminada 上一篇 2026-03-24 上午9:55 弗斯特纳布尔克的库伯尔之家 / Kübler House in Fürstenaubruck | 吉翁·A·卡米纳达|Gion A. Caminada 下一篇 2026-03-25 上午11:38 猜你喜欢 梅尔迪斯的房子 II / House in Melides II | 艾雷斯·马特乌斯建筑事务所 2025-11-11 公共建筑设计 卡马之家和艾瓦哈之家 / Kama House and Alwah House | RCR 建筑事务所 2025-11-13 公共建筑设计 山上的房子 House on a Hill | 谭姆与维德高德建筑事务所|Tham & Videgård 2025-11-07 公共建筑设计 Casa Demont / Casa Demont | MARKLEE 建筑事务所 2025-11-14 公共建筑设计 巴西贝萨雷斯保护区两座房子 | 曼努埃尔·塞万提斯|Manuel Cervantes 2025-12-07 公共建筑设计 双座屋及工作室,阿玛特帕克 Two Houses and Studio, Amatepec | 曼努埃尔·塞万提斯|Manuel Cervantes 2025-12-08 住宅室内设计 发表回复 请登录后评论...登录后才能评论 提交